Аренда офиса Бизнес-центр «Двинцев»

Объект успешно реализован!
Аренда офиса Бизнес-центр «Двинцев» Аренда офиса Бизнес-центр «Двинцев» Аренда офиса Бизнес-центр «Двинцев» Аренда офиса Бизнес-центр «Двинцев» Аренда офиса Бизнес-центр «Двинцев»
Аренда офиса Бизнес-центр «Двинцев» - превью Аренда офиса Бизнес-центр «Двинцев» - превью Аренда офиса Бизнес-центр «Двинцев» - превью Аренда офиса Бизнес-центр «Двинцев» - превью Аренда офиса Бизнес-центр «Двинцев» - превью
Москва, Улица Двинцев, 12к1
Объект успешно реализован, но у нас есть много других интересных предложений. Позвоните по телефону +7 495 230-28-26, либо оставьте заявку на подбор прямо сейчас и получите список подходящих для вас объектов.
загрузка карты...
Аренда в год за м2 64 866 ₽
Аренда в месяц 3 573 036 ₽
Схема сделки прямая аренда
Общие
ID 60977
Тип сделки Аренда
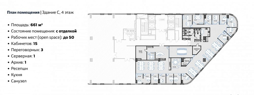
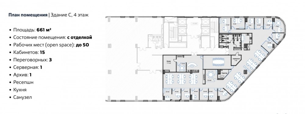
Площадь 661.00
Площадь всего 49000.00
Тип объекта Бизнес-центр
Класс здания A
Этаж 4
Всего этажей в здании 15
Метраж по этажам
Информация об объекте
Состояние объекта рабочее
Состояние блока выполнена стандартная офисная отделка
Планировка Смешанная
Коммуникации Система пожаротушения,Система видеонаблюдения,Интернет,Телефония
Парковка подземная 12000р/мес
Отопление Центральное
Вентиляция и кондиционирование Современная система вентиляции и кондиционирования
КПП Гостевой пропуск
Коммерческие условия
Аренда в год за м2 64 866 ₽
Аренда в месяц 3 573 036 ₽
Схема сделки прямая аренда
Тип собственника Юридическое лицо

Описание объекта
Предлагаем в аренду офис в бизнес-центре класса А в Марьиной роще. До метро Савеловская и Марьина Роща 10 минут пешком.
Общая площадь 661м2, смешанная планировка (15 кабинетов, open-space, 3 переговорных, серверная, кухня, санузел), ремонт за выездом арендатора. В здании приточно-вытяжная вентиляция, центральное кондиционирование.
Офис сдается без мебели.
В ставку включена эксплуатация.
За дополнительную плату предоставляют места на подземной парковке.
Офис будет свободен к заезду с 1 января.

Нужна консультация по подбору помещения под офис?

Наши специалисты подберут для вас самые выгодные варианты для долгосрочного инвестирования,
помогут в сопровождении и сделки, проверят все юридические вопросы касаемо приобретения недвижимости.

* Нажимая на кнопку «Отправить», Вы даете согласие на обработку персональных данных в соответствии с Политикой конфиденциальности

Похожие объекты

Калужская (3 мин. 🚶)
Москва, Профсоюзная улица, 65к1
Бизнес-центр «Лотте»
Тип: Офисы
Площадь: 606.04 м2
Отделка:выполнена стандартная офисная отделка
2 218 106 в месяц
43 920 в год за м2
Позвонить Подробнее
ЦСКА (5 мин. 🚶)
Москва, Улица Авиаконструктора Микояна, 12
Бизнес-центр «Линкор»
Тип: Офисы
Площадь: 671.32 м2
Отделка:выполнена стандартная офисная отделка
2 252 279 в месяц
40 260 в год за м2
Позвонить Подробнее
Водный стадион (12 мин. 🚶)
Москва, Выборгская улица, 16с3
БЦ "Выборгский" с3
Тип: Офисы
Площадь: 662.00 м2
Отделка:выполнена стандартная офисная отделка
1 514 325 в месяц
27 450 в год за м2
Позвонить Подробнее
Кунцевская (20 мин. 🚗)
Москва, Верейская улица, 11
Бизнес-центр «Квадрат»
Тип: Офисы
Площадь: 698.00 м2
Отделка:выполнена стандартная офисная отделка
2 617 500 в месяц
45 000 в год за м2
Позвонить Подробнее
Китай-город (7 мин. 🚶)
Москва, Подкопаевский переулок, 4
Бизнес-центр «Ивановская горка»
Тип: Офисы
Площадь: 599.00 м2
Отделка:качественная отделка
3 943 417 в месяц
79 000 в год за м2
Позвонить Подробнее
Кунцевская (17 мин. 🚗)
Москва, Инновационный центр Сколково, улица Сикорского, 11
БЦ "Ренова Лаб Сколково"
Тип: Офисы
Площадь: 697.00 м2
Отделка:качественная отделка
2 125 850 в месяц
36 600 в год за м2
Позвонить Подробнее
Новокузнецкая (7 мин. 🚶)
Москва, Озерковская набережная, 12
Озерковская набережная, 12
Тип: Офисы
Площадь: 603.20 м2
Отделка:выполнена стандартная офисная отделка
1 658 800 в месяц
33 000 в год за м2
Позвонить Подробнее
Новослободская (2 мин. 🚶)
Москва, Долгоруковская улица, 40
Жилое здание "Долгоруковская ул.,40"
Тип: Офисы
Площадь: 618.80 м2
Отделка:выполнена стандартная офисная отделка
2 970 240 в месяц
57 600 в год за м2
Позвонить Подробнее
Беговая (5 мин. 🚗)
Москва, 1-й Магистральный тупик, 5А
Бизнес-центр "Магистраль Плаза"
Тип: Офисы
Площадь: 627.00 м2
Отделка:качественная отделка
2 612 500 в месяц
50 000 в год за м2
Позвонить Подробнее
Таганская (5 мин. 🚶)
Москва, Улица Земляной Вал, 68/18с3
Офисное здание «Земляной 68/18 с3»
Тип: Офисы
Площадь: 692.10 м2
2 750 000 в месяц
47 681 в год за м2
Позвонить Подробнее
Парк Победы (5 мин. 🚶)
Москва, улица Василисы Кожиной, 1
Бизнес-центр "Парк Победы"
Тип: Офисы
Площадь: 683.00 м2
Отделка:выполнена стандартная офисная отделка
3 127 059 в месяц
54 941 в год за м2
Позвонить Подробнее
Бауманская (5 мин. 🚶)
Москва, Старокирочный переулок, 2
Административное здание "Старокирочный переулок, 2"
Тип: Офисы
Площадь: 705.00 м2
Отделка:отделка в стиле Loft
1 900 000 в месяц
32 340 в год за м2
Позвонить Подробнее
Цветной бульвар (5 мин. 🚶)
Москва, Цветной бульвар, 25с3
Бизнес-центр «Мосэнка Плаза 2»
Тип: Офисы
Площадь: 226.00 м2
Отделка:выполнена стандартная офисная отделка
1 102 880 в месяц
58 560 в год за м2
Позвонить Подробнее
Шаболовская (11 мин. 🚶)
Москва, Ленинский проспект, 15А
Бизнес-центр «Central Park Tower»
Тип: Офисы
Площадь: 827.20 м2
Отделка:выполнена высококачественная отделка
4 793 624 в месяц
69 540 в год за м2
Позвонить Подробнее
Новослободская (5 мин. 🚶)
Москва, Краснопролетарская улица, 36
Бизнес-центр «Амбер Плаза»
Тип: Офисы
Площадь: 728.00 м2
Отделка:качественная отделка
3 700 667 в месяц
61 000 в год за м2
Позвонить Подробнее
Павелецкая (9 мин. 🚶)
Москва, Космодамианская набережная, 52с3
Бизнес-центр «Риверсайд Тауэрс» к 3
Тип: Офисы
Площадь: 4004.00 м2
Отделка:выполнена стандартная офисная отделка
23 203 180 в месяц
69 540 в год за м2
Позвонить Подробнее
Парк культуры (6 мин. 🚶)
Москва, Улица Остоженка, 25
Жилое здание «Остоженка 25»
Тип: Офисы
Площадь: 1843.00 м2
Отделка:качественная отделка
9 600 000 в месяц
62 507 в год за м2
Позвонить Подробнее
Войковская (7 мин. 🚶)
Москва, Ленинградское шоссе, 16Ас1
Бизнес-центр «Метрополис»
Тип: Офисы
Площадь: 1206.00 м2
Отделка:Shell and Core
6 030 000 в месяц
60 000 в год за м2
Позвонить Подробнее
Китай-город (7 мин. 🚶)
Москва, Подкопаевский переулок, 4
Бизнес-центр «Ивановская горка»
Тип: Офисы
Площадь: 1595.80 м2
Отделка:выполнена высококачественная отделка
8 976 375 в месяц
67 500 в год за м2
Позвонить Подробнее
Китай-город (8 мин. 🚶)
Москва, Малый Ивановский переулок, 7-9с1
Бизнес-центр "Ноев ковчег"
Тип: Офисы
Площадь: 314.80 м2
Отделка:выполнена стандартная офисная отделка
1 547 767 в месяц
59 000 в год за м2
Позвонить Подробнее
Китай-город (9 мин. 🚶)
Москва, Колпачный переулок, 9А
Бизнес-центр "ЮРГЕНСОН"
Тип: Офисы
Площадь: 1563.73 м2
Отделка:помещение без отделки
9 121 758 в месяц
70 000 в год за м2
Позвонить Подробнее
Китай-город (9 мин. 🚶)
Москва, Колпачный переулок, 9А
Бизнес-центр "ЮРГЕНСОН"
Тип: Офисы
Площадь: 7300.00 м2
Отделка:помещение без отделки
39 183 926 в месяц
64 412 в год за м2
Позвонить Подробнее
Баррикадная (5 мин. 🚶)
Москва, Гранатный переулок, 24/4с2
Гранатный переулок, 24/4с2
Тип: Офисы
Площадь: 490.00 м2
2 700 000 в месяц
66 122 в год за м2
Позвонить Подробнее
Маяковская (4 мин. 🚶)
Москва, 4-я Тверская-Ямская улица, 14с1
Особняк "4-я Тверская-Ямская улица, 14с1"
Тип: Офисы
Площадь: 2621.00 м2
Отделка:выполнена стандартная офисная отделка
13 190 183 в месяц
60 390 в год за м2
Позвонить Подробнее
Савёловская (7 мин. 🚶)
Москва, Вятская улица, 27с22
Бизнес-парк «Фактория»
Тип: Офисы
Площадь: 4344.90 м2
Отделка:выполнена стандартная офисная отделка
14 483 000 в месяц
40 000 в год за м2
Позвонить Подробнее
Савёловская (7 мин. 🚶)
Москва, Вятская улица, 27с20
Бизнес-парк «Фактория»
Тип: Офисы
Площадь: 5062.00 м2
Отделка:выполнена стандартная офисная отделка
14 764 167 в месяц
35 000 в год за м2
Позвонить Подробнее
Савёловская (7 мин. 🚶)
Москва, Вятская улица, 27с20
Бизнес-парк «Фактория»
Тип: Офисы
Площадь: 2468.00 м2
Отделка:выполнена стандартная офисная отделка
7 198 333 в месяц
35 000 в год за м2
Позвонить Подробнее
Савёловская (7 мин. 🚶)
Москва, Вятская улица, 27с19
Бизнес-парк «Фактория»
Тип: Офисы
Площадь: 2594.00 м2
Отделка:выполнена стандартная офисная отделка
7 565 833 в месяц
35 000 в год за м2
Позвонить Подробнее
Савёловская (5 мин. 🚶)
Москва, Улица Правды, 26
Бизнес-центр «Северное сияние»
Тип: Офисы
Площадь: 2279.00 м2
Отделка:выполнена стандартная офисная отделка
13 438 503 в месяц
70 760 в год за м2
Позвонить Подробнее
Савёловская (10 мин. 🚶)
Москва, Улица Двинцев, 12к1
Бизнес-центр «Двинцев»
Тип: Офисы
Площадь: 362.00 м2
Отделка:качественная отделка
2 003 338 в месяц
66 409 в год за м2
Позвонить Подробнее
Савёловская (10 мин. 🚶)
Москва, Улица Двинцев, 12к1
Бизнес-центр «Двинцев»
Тип: Офисы
Площадь: 683.00 м2
Отделка:качественная отделка
3 779 779 в месяц
66 409 в год за м2
Позвонить Подробнее
Савёловская (5 мин. 🚶)
Москва, Бумажный проезд, 19с4
БЦ STONE TOWERS
Тип: Офисы
Площадь: 70.00 м2
Отделка:выполнена высококачественная отделка
370 000 в месяц
63 429 в год за м2
Позвонить Подробнее
Савёловская (12 мин. 🚶)
Москва, Вятская улица, 35с4
Бизнес-центр «Вятка»
Тип: Офисы
Площадь: 951.00 м2
Отделка:выполнена стандартная офисная отделка
3 142 263 в месяц
39 650 в год за м2
Позвонить Подробнее
Савёловская (5 мин. 🚶)
Москва, Бумажный проезд, 19с4
БЦ STONE TOWERS
Тип: Офисы
Площадь: 280.00 м2
Отделка:качественная отделка
1 633 334 в месяц
70 000 в год за м2
Позвонить Подробнее
Савёловская (5 мин. 🚶)
Москва, Улица Правды, 26
Бизнес-центр «Северное сияние»
Тип: Офисы
Площадь: 1287.00 м2
Отделка:отделка арендатора
6 803 940 в месяц
63 440 в год за м2
Позвонить Подробнее
Савёловская (5 мин. 🚶)
Москва, Улица Правды, 26
Бизнес-центр «Северное сияние»
Тип: Офисы
Площадь: 2290.00 м2
Отделка:выполнена высококачественная отделка
10 476 750 в месяц
54 900 в год за м2
Позвонить Подробнее