Продажа индустриальной недвижимости AFI Пром Алтуфьево

Продажа индустриальной недвижимости AFI Пром Алтуфьево
Москва, Алтуфьевское шоссе, 27Ас1
Позвоните по телефону +7 495 230-28-26, либо оставьте заявку на просмотр прямо сейчас и узнайте условия специального предложения по объекту.
загрузка карты...
Капина Владлена Викторовна

Объект ведет консультант:

Капина Владлена Викторовна

Общие
ID 61426
Тип сделки Продажа
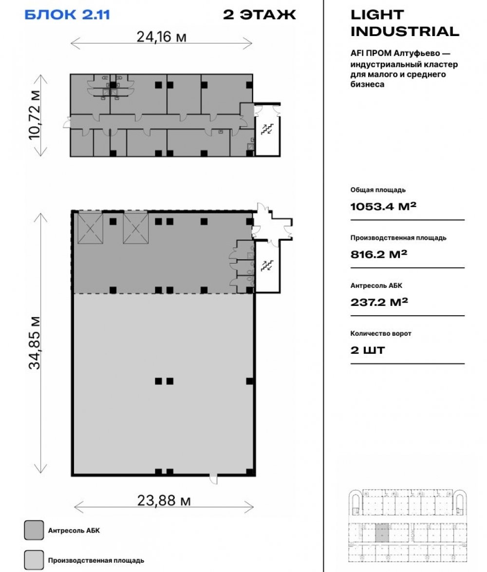
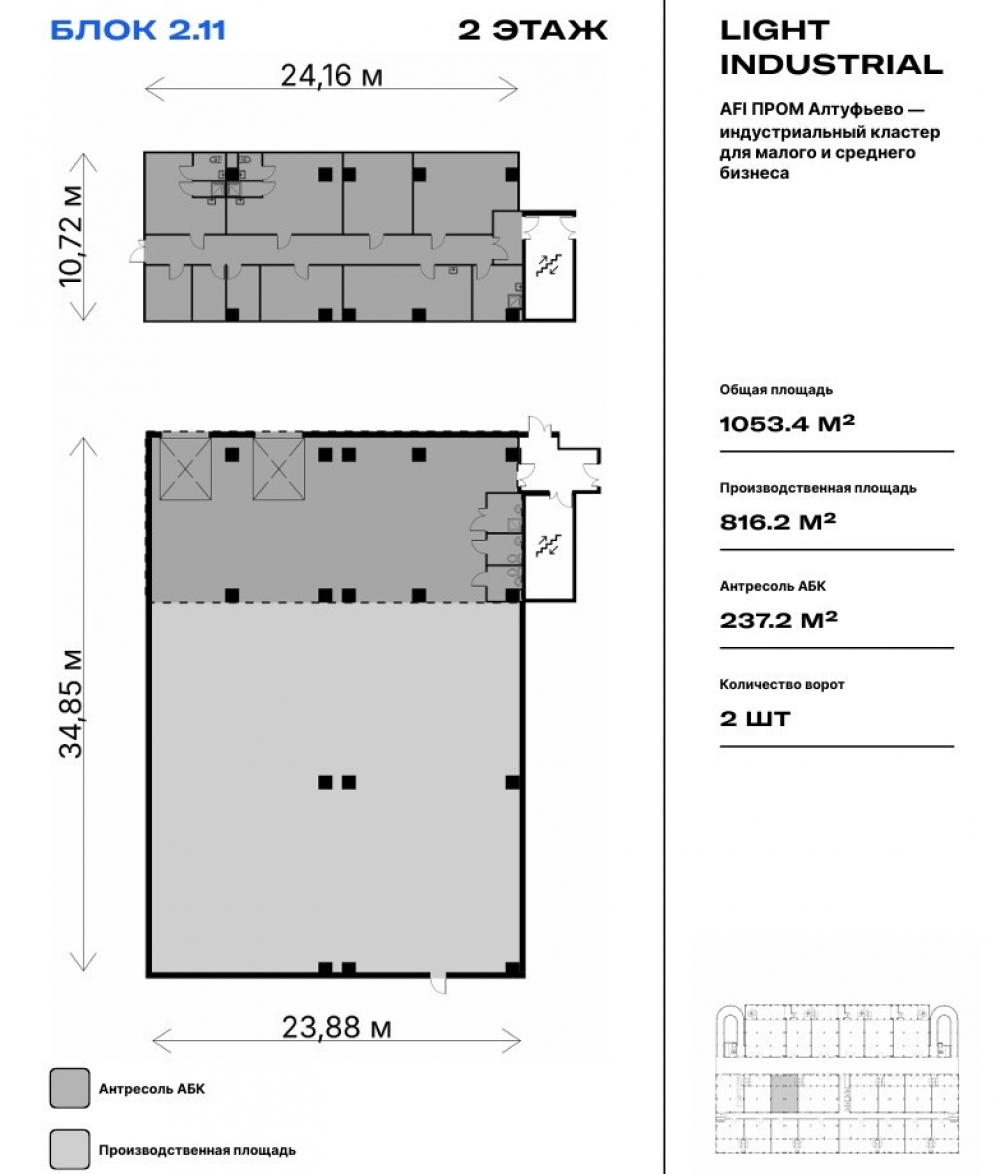
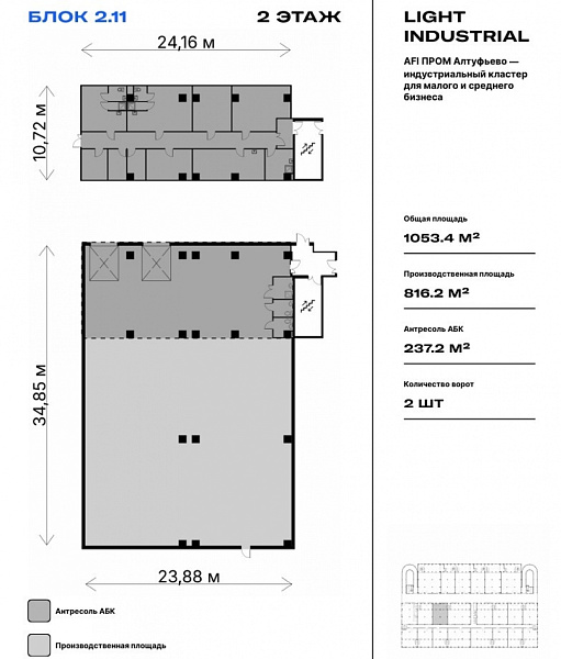
Площадь 1053.40
Площадь всего 133000.00
Тип объекта Складской комплекс
Всего этажей в здании 8
Информация об объекте
Состояние объекта новое строительство
Состояние блока помещение без отделки
Перекрытия Железобетонные
Нюансы Новостройка
Коммерческие условия
За все 292 634 520 ₽
За м 2 277 800 ₽
Тип собственника Юридическое лицо
Имущественный комплекс
Вода Да
Канализация Да
Наличие газа или возможность подключения Нет
Коммуникации комплекса
Тип комплекса Складской
Температурный режим склада Тёплый склад
Огороженная территория Да
Наличие ж\д путей Нет
Пропускная система Да
Объекты комплекса №1
Адрес Алтуфьевское шоссе, 27Ас1
Тип Производственно-складское формата Лайт Индастрил
Площадь 133700
Кол-во этажей 4
Планировка Свободная

Описание объекта
Продажа складского помещения на 2 этаже, площадью 1053.4 м2 в многоэтажном производственном здании формата "Лайт Индастриал" в AFI ПРОМ Алтуфьево

Здание состоит из автономных коммерческих блоков (юнитов), которые можно объединять
под технологию резидента

Ввод в эксплуатацию декабрь 2026 года

4 производственных этажа соединены автомобильными рампами с доступов среднетоннажного автотранспорта на этаж

Все помещения обеспечены возможность разгрузки крупнотоннажного, среднетоннажного и малотоннажного транспорта

Вертикальное сообщение обеспечено общими грузовыми лифтами

Общая площадь кластера 375000 м2
4 этажа с паркингом на крыше
Высота потолка 7 метров
Нагрузка на пол 1.5/4 тонны
Шаг колонн в производственной зоне 12х12
АБК выполнен в виде антресолей на отметке +4 метра
Электрическая мощность 0,09 кВт на 1 кв.м.

АРЕНДА С ВЫКУПОМ
Цена: 277 800 руб/м2 включая НДС
УСЛОВИЯ:
Первый взнос: 30% по цене 240 000 руб/м2
Срок аренды: 5 лет
ПРЕИМУЩЕСТВА:
Фиксированная цена выкупа

Нужна консультация ?

Наши специалисты подберут для вас самые выгодные варианты для долгосрочного инвестирования,
помогут в сопровождении и сделки, проверят все юридические вопросы касаемо приобретения недвижимости.

* Нажимая на кнопку «Отправить», Вы даете согласие на обработку персональных данных в соответствии с Политикой конфиденциальности

Похожие объекты

Медведково (33 мин. 🚗)
Московская область, Королёв, Канальный проезд, 6
Индустриальный комплекс "Спутник Парк" Лайт Индастриал
Тип: Индустриальная недвижимость
Площадь: 1065.00 м2
159 750 000 за все
150 000 за м2
Позвонить Подробнее
Саларьево (23 мин. 🚗)
Москва, Новомосковский административный округ, район Внуково, посёлок Толстопальцево, 9/34
Промышленный парк Соколово
Тип: Индустриальная недвижимость
Площадь: 1034.00 м2
152 765 228 за все
147 742 за м2
Позвонить Подробнее
(18 мин. 🚗)
Москва, район Троицк, деревня Кувекино, 3
Прoмышленный пapк Кувекино
Тип: Индустриальная недвижимость
Площадь: 1034.00 м2
148 728 492 за все
143 838 за м2
Позвонить Подробнее

Доходность 15.79 %

Ховрино (30 мин. 🚗)
Московская область, городской округ Солнечногорск, деревня Литвиново, 1/3
Складской комплекс "Литвиново 1/3"
Тип: Арендный бизнес, Индустриальная недвижимость
Площадь: 1044.00 м2
Арендатор: Х5 Логистик
Месячный платеж: 2 500 000
245 000 000 за все
234 674 за м2
Позвонить Подробнее
Котельники (25 мин. 🚗)
Московская область, Лыткарино, Детский городок ЗИЛ
Складской комплекс Лыткарино Лайт
Тип: Индустриальная недвижимость
Площадь: 1000.00 м2
122 000 000 за все
122 000 за м2
Позвонить Подробнее
Юго-Западная (20 мин. 🚗)
Московская область, Одинцово, Северная улица, 5с1
ЖК "Одинбург" 5с1
Тип: Индустриальная недвижимость
Площадь: 1023.30 м2
194 427 000 за все
190 000 за м2
Позвонить Подробнее
Ховрино (24 мин. 🚗)
Московская область, Химки, Заводская улица, 1
Складской комплекс "Место. Химки Заводская"
Тип: Индустриальная недвижимость
Площадь: 1000.00 м2
165 592 000 за все
165 592 за м2
Позвонить Подробнее
Сходненская (7 мин. 🚗)
Москва, улица Свободы, 35с2
ПСК "Level work Свободы"
Тип: Индустриальная недвижимость
Площадь: 979.00 м2
179 585 687 за все
183 438 за м2
Позвонить Подробнее
Ховрино (29 мин. 🚶)
Московская область, Химки, микрорайон Подрезково, квартал Филино, 143
ПСК "Молжаниново"
Тип: Индустриальная недвижимость
Площадь: 1350.00 м2
273 000 000 за все
202 222 за м2
Позвонить Подробнее

Московская область, Раменский муниципальный округ, деревня Сафоново, Шоссейная улица, 13
ПСК "Сафоново, Шоссейная улица, 13"
Тип: Индустриальная недвижимость
Площадь: 3084.70 м2
270 000 000 за все
87 529 за м2
Позвонить Подробнее
Отрадное (8 мин. 🚗)
Москва, Алтуфьевское шоссе, 27Ас1
AFI Пром Алтуфьево
Тип: Индустриальная недвижимость
Площадь: 907.90 м2
312 136 020 за все
343 800 за м2
Позвонить Подробнее
Отрадное (8 мин. 🚗)
Москва, Алтуфьевское шоссе, 27Ас1
AFI Пром Алтуфьево
Тип: Индустриальная недвижимость
Площадь: 840.00 м2
288 792 000 за все
343 800 за м2
Позвонить Подробнее
Ховрино (30 мин. 🚗)
Москва, Новосходненское шоссе, 5А
ПСК "Мега Молжаниново"
Тип: Индустриальная недвижимость
Площадь: 1708.03 м2
264 990 000 за все
155 144 за м2
Позвонить Подробнее
Саларьево (23 мин. 🚗)
Москва, Новомосковский административный округ, район Внуково, посёлок Толстопальцево, 9/34
Промышленный парк Соколово
Тип: Индустриальная недвижимость
Площадь: 2067.00 м2
305 382 714 за все
147 742 за м2
Позвонить Подробнее
Сокольники (12 мин. 🚶)
Москва, Леснорядский переулок, 18с1
ОСЗ "Леснорядский пер. 18с1"
Тип: Индустриальная недвижимость
Площадь: 3031.60 м2
299 000 000 за все
98 628 за м2
Позвонить Подробнее
Дмитровская (20 мин. 🚶)
Москва, улица Вучетича, 1А
Комплекс административных зданий "Вучетича 1Ас1-6"
Тип: Индустриальная недвижимость
Площадь: 3157.00 м2
300 000 000 за все
95 027 за м2
Позвонить Подробнее
Отрадное (8 мин. 🚗)
Москва, Алтуфьевское шоссе, 27Ас1
AFI Пром Алтуфьево
Тип: Индустриальная недвижимость
Площадь: 840.80 м2
233 574 240 за все
277 800 за м2
Позвонить Подробнее
Отрадное (8 мин. 🚗)
Москва, Алтуфьевское шоссе, 27Ас1
AFI Пром Алтуфьево
Тип: Индустриальная недвижимость
Площадь: 1196.60 м2
332 415 480 за все
277 800 за м2
Позвонить Подробнее
Отрадное (8 мин. 🚗)
Москва, Алтуфьевское шоссе, 27Ас1
AFI Пром Алтуфьево
Тип: Индустриальная недвижимость
Площадь: 2076.80 м2
576 935 040 за все
277 800 за м2
Позвонить Подробнее
Отрадное (8 мин. 🚗)
Москва, Алтуфьевское шоссе, 27Ас1
AFI Пром Алтуфьево
Тип: Индустриальная недвижимость
Площадь: 907.90 м2
312 136 020 за все
343 800 за м2
Позвонить Подробнее
Отрадное (8 мин. 🚗)
Москва, Алтуфьевское шоссе, 27Ас1
AFI Пром Алтуфьево
Тип: Индустриальная недвижимость
Площадь: 840.00 м2
288 792 000 за все
343 800 за м2
Позвонить Подробнее
Отрадное (8 мин. 🚗)
Москва, Алтуфьевское шоссе, 27Ас1
AFI Пром Алтуфьево
Тип: Индустриальная недвижимость
Площадь: 1190.70 м2
409 362 660 за все
343 800 за м2
Позвонить Подробнее
Отрадное (8 мин. 🚗)
Москва, Алтуфьевское шоссе, 27Ас1
AFI Пром Алтуфьево
Тип: Индустриальная недвижимость
Площадь: 1911.70 м2
657 242 460 за все
343 800 за м2
Позвонить Подробнее