Аренда торгового помещения Гостиница Юность

Аренда торгового помещения Гостиница Юность
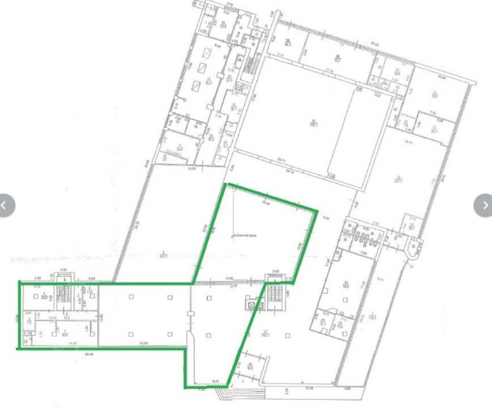
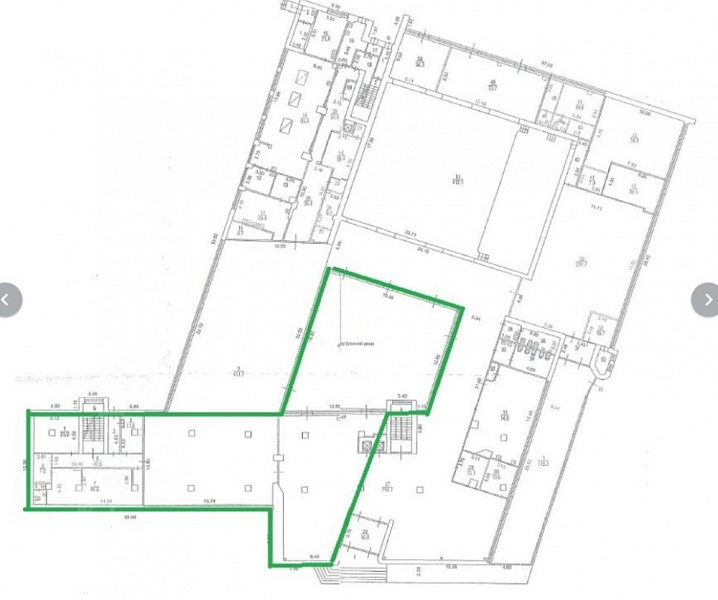
Москва, улица Хамовнический Вал, 34
Позвоните по телефону +7 495 230-28-26, либо оставьте заявку на просмотр прямо сейчас и узнайте условия специального предложения по объекту.
загрузка карты...
Аренда в год за м2 60 000 ₽
Аренда в месяц 3 000 000 ₽
Схема сделки прямая аренда
Крупнова Любовь Сергеевна

Объект ведет консультант:

Крупнова Любовь Сергеевна

Общие
ID 61689
Тип сделки Аренда
Площадь 600.00
Площадь всего 8518.00
Тип объекта Административное здание
Этаж 1
Всего этажей в здании 8
Метраж по этажам
Информация об объекте
Состояние объекта рабочее
Состояние блока требуется косметический ремонт
Планировка Открытая
Перекрытия Железобетонные
Нюансы Отдельный вход
Торговая недвижимость
Линия домов 1 линия
Возможности Ресторанная вытяжка,Витрины,Место для рекламы,Проходное место,Проездное место
Электр. мощность (кВт) 100
Коммерческие условия
Аренда в год за м2 60 000 ₽
Аренда в месяц 3 000 000 ₽
Схема сделки прямая аренда
Тип собственника Юридическое лицо

Описание объекта
Сдаётся торговая площадь под ресторан около метро в гостинице Юность.
     В указанную площадь входит помещение на 1 этаже и подвал, в котором расположены холодильники . Есть дополнительная территория внутри двора , можно обустроить территорию на втором этаже , а также установить летнюю веранду на улице у метро.
Мощность 100 кВт, рядом подстанция - мощность любая.

Нужна консультация по подбору торговых площадей для аренды?

Наши специалисты подберут для вас самые выгодные варианты для долгосрочного инвестирования,
помогут в сопровождении и сделки, проверят все юридические вопросы касаемо приобретения недвижимости.

* Нажимая на кнопку «Отправить», Вы даете согласие на обработку персональных данных в соответствии с Политикой конфиденциальности

Похожие объекты

Нагатинская (4 мин. 🚶)
Москва, Варшавское шоссе, 32
Бизнес-центр «Варшавское 32»
Тип: Торговое помещение
Площадь: 654.00 м2
1 199 000 в месяц
22 000 в год за м2
Позвонить Подробнее

Москва, улица Стромынка, 25с1
ТЦ FoodPark
Тип: Торговое помещение
Площадь: 633.00 м2
Мощность:30 кВт
1 028 625 в месяц
19 500 в год за м2
Позвонить Подробнее
Новослободская (2 мин. 🚶)
Москва, Долгоруковская улица, 40
Жилое здание "Долгоруковская ул.,40"
Тип: Торговое помещение
Площадь: 622.00 м2
Мощность:150 кВт
3 732 000 в месяц
72 000 в год за м2
Позвонить Подробнее
Коньково (1 мин. 🚶)
Москва, Профсоюзная улица, 109
Административное здание "Профсоюзная улица, 109А, 109Б"
Тип: Торговое помещение
Площадь: 548.00 м2
1 507 000 в месяц
33 000 в год за м2
Позвонить Подробнее
Новокосино (15 мин. 🚗)
Московская область, Балашиха, улица Флёрова, 2/3
Жилой дом
Тип: Торговое помещение
Площадь: 570.00 м2
Мощность:50 кВт
400 000 в месяц
8 421 в год за м2
Позвонить Подробнее
Орехово (15 мин. 🚶)
Москва, улица Маршала Захарова, 6к1с2
Административное здание "улица Маршала Захарова, 6к1с2"
Тип: Торговое помещение
Площадь: 562.00 м2
Мощность:130 кВт
1 250 000 в месяц
26 690 в год за м2
Позвонить Подробнее
Комсомольская (5 мин. 🚶)
Москва, Каланчёвский тупик, 3-5с1
Особняк " Каланчёвский тупик, 3-5с1"
Тип: Торговое помещение
Площадь: 654.00 м2
Мощность:170 кВт
1 900 000 в месяц
34 862 в год за м2
Позвонить Подробнее
Шаболовская (3 мин. 🚶)
Москва, улица Шаболовка, 31
Бизнес-центр «Шаболовка 31»
Тип: Торговое помещение
Площадь: 642.00 м2
Мощность:65 кВт
1 444 500 в месяц
27 000 в год за м2
Позвонить Подробнее
Щёлковская (5 мин. 🚶)
Москва, Уральская улица, 1А
ТЦ "Уральская 1А"
Тип: Торговое помещение
Площадь: 647.40 м2
1 700 000 в месяц
31 511 в год за м2
Позвонить Подробнее
Университет (19 мин. 🚶)
Москва, Ленинский проспект, 82/2
Жилое здание "Ленинский проспект, 82/2"
Тип: Торговое помещение
Площадь: 550.30 м2
Мощность:60 кВт
2 354 000 в месяц
51 332 в год за м2
Позвонить Подробнее
Сухаревская (5 мин. 🚶)
Москва, проспект Мира, 12с1
Особняк "пр-т Мира 12с1"
Тип: Торговое помещение
Площадь: 550.00 м2
Мощность:600 кВт
2 000 000 в месяц
43 636 в год за м2
Позвонить Подробнее
Красные Ворота (10 мин. 🚶)
Москва, проспект Академика Сахарова, 7
ЖК "RED7"
Тип: Торговое помещение
Площадь: 584.80 м2
Мощность:78 кВт
1 754 400 в месяц
36 000 в год за м2
Позвонить Подробнее
Автозаводская (8 мин. 🚶)
Москва, Велозаводская улица, 6А
Жилое здание Велозаводская, 6
Тип: Торговое помещение
Площадь: 99.80 м2
Мощность:75 кВт
470 000 в месяц
56 513 в год за м2
Позвонить Подробнее
Беляево (10 мин. 🚶)
Москва, улица Введенского, 13В
ЖК "ул. Введенского, д. 13В"
Тип: Торговое помещение
Площадь: 62.00 м2
Мощность:25 кВт
300 000 в месяц
58 065 в год за м2
Позвонить Подробнее
Полежаевская (5 мин. 🚶)
Закрытая продажа #62342
Тип: Торговое помещение
Площадь: 133.00 м2
Мощность:20 кВт
600 000 в месяц
54 135 в год за м2
Позвонить Подробнее
Полежаевская (5 мин. 🚶)
Закрытая продажа #62341
Тип: Торговое помещение
Площадь: 255.00 м2
Мощность:30 кВт
1 150 000 в месяц
54 118 в год за м2
Позвонить Подробнее
Полежаевская (5 мин. 🚶)
Закрытая продажа #62339
Тип: Торговое помещение
Площадь: 200.00 м2
Мощность:40 кВт
920 000 в месяц
55 200 в год за м2
Позвонить Подробнее
Хорошёвская (3 мин. 🚶)
Закрытая продажа #62337
Тип: Торговое помещение
Площадь: 196.00 м2
900 000 в месяц
55 102 в год за м2
Позвонить Подробнее
(8 мин. 🚶)
Москва, 1-я улица Бухвостова, 2к3
ЖК "Преображенская площадь"
Тип: Торговое помещение
Площадь: 43.83 м2
Мощность:12 кВт
223 500 в месяц
61 191 в год за м2
Позвонить Подробнее
Шелепиха (15 мин. 🚶)
Москва, Шелепихинская набережная, 38к8
ЖК Сидней Прайм
Тип: Торговое помещение
Площадь: 180.00 м2
Мощность:15 кВт
900 000 в месяц
60 000 в год за м2
Позвонить Подробнее
Октябрьское Поле (10 мин. 🚶)
Москва, улица Расплетина, 3
ЖК "Театральный квартал"
Тип: Торговое помещение
Площадь: 102.00 м2
Мощность:30 кВт
467 500 в месяц
55 000 в год за м2
Позвонить Подробнее
Отрадное (11 мин. 🚶)
Москва, Отрадная улица, 8
Жилой комплекс Дом «МАЛЕВИЧ»
Тип: Торговое помещение
Площадь: 55.00 м2
275 000 в месяц
60 000 в год за м2
Позвонить Подробнее
Отрадное (11 мин. 🚶)
Москва, Отрадная улица, 8
Жилой комплекс Дом «МАЛЕВИЧ»
Тип: Торговое помещение
Площадь: 172.50 м2
Мощность:12 кВт
862 500 в месяц
60 000 в год за м2
Позвонить Подробнее
Отрадное (11 мин. 🚶)
Москва, Отрадная улица, 8
Жилой комплекс Дом «МАЛЕВИЧ»
Тип: Торговое помещение
Площадь: 323.00 м2
Мощность:135 кВт
1 615 000 в месяц
60 000 в год за м2
Позвонить Подробнее