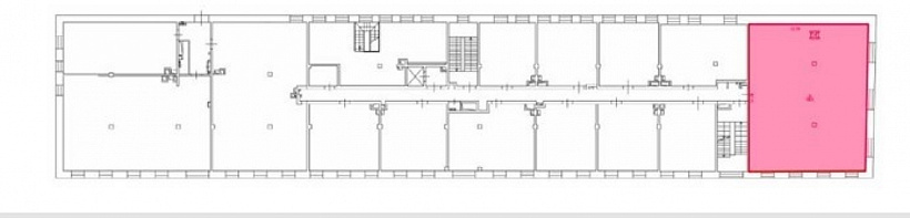
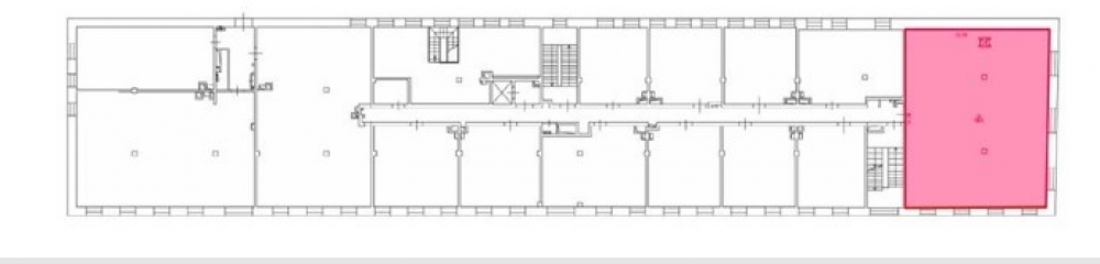
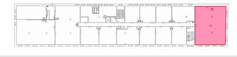
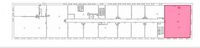
Аренда офиса МФК «Art Residence»

Объект успешно реализован!
Аренда офиса МФК «Art Residence»
Москва, 3-я улица Ямского Поля, 9
Объект успешно реализован, но у нас есть много других интересных предложений. Позвоните по телефону +7 495 230-28-26, либо оставьте заявку на подбор прямо сейчас и получите список подходящих для вас объектов.
загрузка карты...
Аренда в год за м2 53 420 ₽
Аренда в месяц 847 600 ₽
Схема сделки прямая аренда
Общие
ID 61992
Тип сделки Аренда
Площадь 190.40
Площадь всего 40000.00
Тип объекта Многофункциональный комплекс
Класс здания A
Этаж 2
Всего этажей в здании 6
Метраж по этажам
Информация об объекте
Состояние объекта новое строительство
Состояние блока Shell and Core
Планировка Открытая
Коммуникации Система пожаротушения,Система видеонаблюдения,Интернет,Телефония
Перекрытия Железобетонные
Отопление Центральное
Вентиляция и кондиционирование Современная система вентиляции и кондиционирования
КПП Гостевой пропуск
Коммерческие условия
Аренда в год за м2 53 420 ₽
Аренда в месяц 847 600 ₽
Схема сделки прямая аренда
Тип собственника Юридическое лицо

Описание объекта
АРЕНДА ПРЕДСТАВИТЕЛЬСКОГО ОФИСА В ЖИЛОМ КОМПЛЕКСЕ  ПРЕМИУМ-КЛАССА ART RESIDENCE

Комплекс зданий располагается в пешей доступности от станции метро  «Белорусская» (7 минут) и продолжающего свое развитие делового квартала «Белая Площадь». Также важнейшей точкой притяжения становится находящийся по соседству МФК SLAVA.

КОРПУС ETUDE
- Помещение свободного назначения
- Индивидуальная мокрая точка
- Широкоформатное остекление с естественным проветриванием
- Наземный паркинг для гостей и посетителей комплекса
- Прямой заезд с Ленинградского проспекта

Нужна консультация по подбору помещения под офис?

Наши специалисты подберут для вас самые выгодные варианты для долгосрочного инвестирования,
помогут в сопровождении и сделки, проверят все юридические вопросы касаемо приобретения недвижимости.

* Нажимая на кнопку «Отправить», Вы даете согласие на обработку персональных данных в соответствии с Политикой конфиденциальности

Похожие объекты

Краснопресненская (5 мин. 🚶)
Москва, переулок Капранова, 3с2
Бизнес-центр «Премьер Плаза» с2
Тип: Офисы
Площадь: 173.00 м2
Отделка:выполнена стандартная офисная отделка
793 839 в месяц
55 064 в год за м2
Позвонить Подробнее
Сретенский бульвар (2 мин. 🚶)
Москва, Сретенский бульвар, 5
Жилое здание "Сретенский бульвар, 5"
Тип: Офисы
Площадь: 180.00 м2
Отделка:выполнена высококачественная отделка
1 120 000 в месяц
74 667 в год за м2
Позвонить Подробнее
Полянка (5 мин. 🚶)
Москва, улица Большая Якиманка, 17/2с1
Бизнес центр "улица Большая Якиманка, 17/2с1"
Тип: Офисы
Площадь: 184.10 м2
Отделка:качественная отделка
767 083 в месяц
50 000 в год за м2
Позвонить Подробнее
Кузнецкий Мост (5 мин. 🚶)
Москва, Улица Кузнецкий Мост, 7
Особняк «Кузнецкий Мост 7»
Тип: Офисы
Площадь: 175.70 м2
Отделка:выполнена стандартная офисная отделка
550 000 в месяц
37 564 в год за м2
Позвонить Подробнее
Чеховская (10 мин. 🚶)
Москва, Столешников переулок, 14
Бизнес-центр «Столешников 14»
Тип: Офисы
Площадь: 191.00 м2
Отделка:качественная отделка
800 000 в месяц
50 262 в год за м2
Позвонить Подробнее
Деловой центр Деловой центр (МЦК) (2 мин. 🚶)
Москва, Пресненская набережная, 6с2
Москва-Сити "Башня Империя"
Тип: Офисы
Площадь: 196.00 м2
Отделка:Shell and Core
1 100 000 в месяц
67 347 в год за м2
Позвонить Подробнее
Белорусская (11 мин. 🚶)
Москва, Лесная улица, 43
Бизнес-центр «Лесная 43»
Тип: Офисы
Площадь: 185.00 м2
Отделка:выполнена стандартная офисная отделка
1 002 084 в месяц
65 000 в год за м2
Позвонить Подробнее
Спортивная (10 мин. 🚶)
Москва, Малая Пироговская улица, 18с1
Малая Пироговская улица, 18с1
Тип: Офисы
Площадь: 186.00 м2
Отделка:выполнена стандартная офисная отделка
542 500 в месяц
35 000 в год за м2
Позвонить Подробнее
Чкаловская (12 мин. 🚶)
Москва, Нижняя Сыромятническая улица, 10с6
Бизнес-центр Центр дизайна Artplay (Артплэй) к6
Тип: Офисы
Площадь: 200.00 м2
Отделка:отделка в стиле Loft
733 333 в месяц
44 000 в год за м2
Позвонить Подробнее
Краснопресненская (7 мин. 🚶)
Москва, Малый Предтеченский переулок, 1/2
Административное здание "Малый Предтеченский пер. 1/2с1"
Тип: Офисы
Площадь: 188.10 м2
Отделка:выполнена стандартная офисная отделка
580 000 в месяц
37 002 в год за м2
Позвонить Подробнее
Новокузнецкая (10 мин. 🚶)
Москва, Большая Татарская улица, 35с3
Офисный центр "Замоскворечье"
Тип: Офисы
Площадь: 180.00 м2
Отделка:выполнена стандартная офисная отделка
675 000 в месяц
45 000 в год за м2
Позвонить Подробнее
Фили
Москва, Береговой проезд, 5Ак1
Бизнес-центр "Фили Град"
Тип: Офисы
Площадь: 196.20 м2
Отделка:выполнена стандартная офисная отделка
784 800 в месяц
48 000 в год за м2
Позвонить Подробнее
Динамо (5 мин. 🚶)
Москва, Ленинградский проспект, 31Ас1
МФК "МонАрх"
Тип: Офисы
Площадь: 246.40 м2
Отделка:отделка арендатора
1 002 027 в месяц
48 800 в год за м2
Позвонить Подробнее
Краснопресненская (5 мин. 🚶)
Москва, переулок Капранова, 3с2
Бизнес-центр «Премьер Плаза» с2
Тип: Офисы
Площадь: 173.00 м2
Отделка:выполнена стандартная офисная отделка
793 839 в месяц
55 064 в год за м2
Позвонить Подробнее
Парк культуры (6 мин. 🚶)
Москва, Улица Остоженка, 25
Жилое здание «Остоженка 25»
Тип: Офисы
Площадь: 1081.00 м2
Отделка:выполнена высококачественная отделка
5 104 000 в месяц
56 659 в год за м2
Позвонить Подробнее
Красные Ворота (5 мин. 🚶)
Москва, Садовая-Спасская улица, 28
БЦ "Садовая-Спасская 28"
Тип: Офисы
Площадь: 80.00 м2
Отделка:выполнена высококачественная отделка
386 667 в месяц
58 000 в год за м2
Позвонить Подробнее
Кунцевская (20 мин. 🚗)
Москва, Верейская улица, 11
Бизнес-центр «Квадрат»
Тип: Офисы
Площадь: 312.00 м2
Отделка:выполнена стандартная офисная отделка
1 300 000 в месяц
50 000 в год за м2
Позвонить Подробнее
Войковская (7 мин. 🚶)
Москва, Ленинградское шоссе, 16Ас1
Бизнес-центр «Метрополис»
Тип: Офисы
Площадь: 495.00 м2
Отделка:выполнена стандартная офисная отделка
2 268 750 в месяц
55 000 в год за м2
Позвонить Подробнее
Новослободская (2 мин. 🚶)
Москва, Долгоруковская улица, 40
Жилое здание "Долгоруковская ул.,40"
Тип: Офисы
Площадь: 618.80 м2
Отделка:выполнена стандартная офисная отделка
2 970 240 в месяц
57 600 в год за м2
Позвонить Подробнее
Беговая (5 мин. 🚗)
Москва, 1-й Магистральный тупик, 5А
Бизнес-центр "Магистраль Плаза"
Тип: Офисы
Площадь: 627.00 м2
Отделка:качественная отделка
2 612 500 в месяц
50 000 в год за м2
Позвонить Подробнее
Кропоткинская (9 мин. 🚶)
Москва, Пречистенская набережная, 17-19
Бизнес-центр «Баркли Плаза»
Тип: Офисы
Площадь: 115.00 м2
Отделка:качественная отделка
546 250 в месяц
57 000 в год за м2
Позвонить Подробнее
Кропоткинская (9 мин. 🚶)
Москва, Пречистенская набережная, 17-19
Бизнес-центр «Баркли Плаза»
Тип: Офисы
Площадь: 1200.00 м2
Отделка:выполнена стандартная офисная отделка
5 500 000 в месяц
55 000 в год за м2
Позвонить Подробнее
Парк Победы (5 мин. 🚶)
Москва, улица Василисы Кожиной, 1
Бизнес-центр "Парк Победы"
Тип: Офисы
Площадь: 961.90 м2
Отделка:выполнена стандартная офисная отделка
4 404 861 в месяц
54 952 в год за м2
Позвонить Подробнее
Парк Победы (5 мин. 🚶)
Москва, улица Василисы Кожиной, 1
Бизнес-центр "Парк Победы"
Тип: Офисы
Площадь: 683.00 м2
Отделка:выполнена стандартная офисная отделка
3 127 059 в месяц
54 941 в год за м2
Позвонить Подробнее
Белорусская (13 мин. 🚶)
Москва, Улица Грузинский Вал, 10
БЦ «Грузинский вал 10 »
Тип: Офисы
Площадь: 353.30 м2
Отделка:отделка в стиле Loft
1 987 313 в месяц
67 500 в год за м2
Позвонить Подробнее
Белорусская (2 мин. 🚶)
Москва, Лесная улица, 7
Бизнес-центр «Белые сады»
Тип: Офисы
Площадь: 1522.00 м2
Отделка:качественная отделка
14 003 668 в месяц
110 410 в год за м2
Позвонить Подробнее
Белорусская (11 мин. 🚶)
Москва, Лесная улица, 43
Бизнес-центр «Лесная 43»
Тип: Офисы
Площадь: 400.00 м2
Отделка:качественная отделка
2 166 667 в месяц
65 000 в год за м2
Позвонить Подробнее
Белорусская (11 мин. 🚶)
Москва, Лесная улица, 43
Бизнес-центр «Лесная 43»
Тип: Офисы
Площадь: 185.00 м2
Отделка:выполнена стандартная офисная отделка
1 002 084 в месяц
65 000 в год за м2
Позвонить Подробнее
Белорусская (11 мин. 🚶)
Москва, Лесная улица, 43
Бизнес-центр «Лесная 43»
Тип: Офисы
Площадь: 128.10 м2
Отделка:качественная отделка
320 000 в месяц
29 977 в год за м2
Позвонить Подробнее
Белорусская (11 мин. 🚶)
Москва, Лесная улица, 43
Бизнес-центр «Лесная 43»
Тип: Офисы
Площадь: 550.00 м2
Отделка:качественная отделка
2 841 667 в месяц
62 000 в год за м2
Позвонить Подробнее
Белорусская (11 мин. 🚶)
Москва, Лесная улица, 43
Бизнес-центр «Лесная 43»
Тип: Офисы
Площадь: 800.00 м2
Отделка:выполнена стандартная офисная отделка
3 993 334 в месяц
59 900 в год за м2
Позвонить Подробнее
Белорусская (5 мин. 🚶)
Москва, 1-я Тверская-Ямская улица, 21
Бизнес-центр «Четыре Ветра"
Тип: Офисы
Площадь: 886.00 м2
Отделка:качественная отделка
6 935 903 в месяц
93 940 в год за м2
Позвонить Подробнее
Белорусская (10 мин. 🚶)
Москва, Средний Тишинский переулок, 28
Бизнес-центр «Чайка Плаза 2»
Тип: Офисы
Площадь: 112.00 м2
Отделка:качественная отделка
370 067 в месяц
39 650 в год за м2
Позвонить Подробнее
Белорусская (9 мин. 🚶)
Москва, 3-я улица Ямского Поля, 18
Бизнес-центр «Золотой Век»
Тип: Офисы
Площадь: 146.00 м2
Отделка:выполнена стандартная офисная отделка
425 833 в месяц
35 000 в год за м2
Позвонить Подробнее
Белорусская (5 мин. 🚶)
Москва, 1-я Тверская-Ямская улица, 21
Бизнес-центр «Четыре Ветра"
Тип: Офисы
Площадь: 411.00 м2
Отделка:выполнена стандартная офисная отделка
3 217 445 в месяц
93 940 в год за м2
Позвонить Подробнее
Белорусская (12 мин. 🚶)
Москва, 5-я улица Ямского Поля, 5с1
Бизнес-центр «Ямское Плаза»
Тип: Офисы
Площадь: 1032.70 м2
Отделка:выполнена стандартная офисная отделка
2 393 799 в месяц
27 816 в год за м2
Позвонить Подробнее