Аренда торгового помещения Бизнес-центр «Lunar (Лунар)»

Аренда торгового помещения Бизнес-центр «Lunar (Лунар)» Аренда торгового помещения Бизнес-центр «Lunar (Лунар)»
Аренда торгового помещения Бизнес-центр «Lunar (Лунар)» - превью Аренда торгового помещения Бизнес-центр «Lunar (Лунар)» - превью
Москва, Ленинский проспект, 38
Позвоните по телефону +7 495 230-28-26, либо оставьте заявку на просмотр прямо сейчас и узнайте условия специального предложения по объекту.
загрузка карты...
Аренда в год за м2 100 000 ₽
Аренда в месяц 753 333 ₽
Общие
ID 62103
Тип сделки Аренда
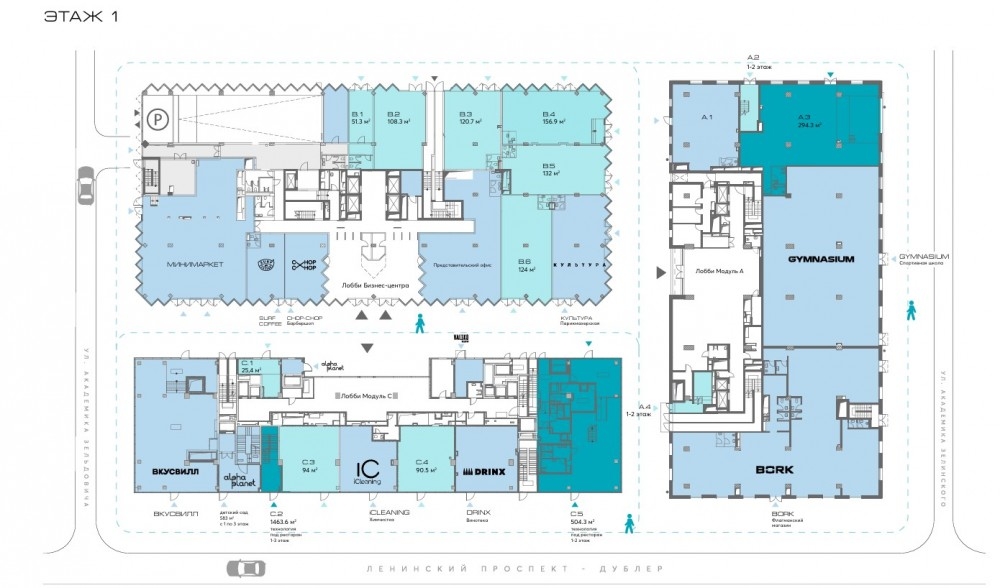
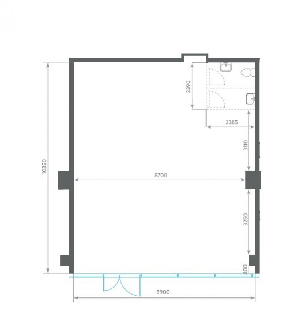
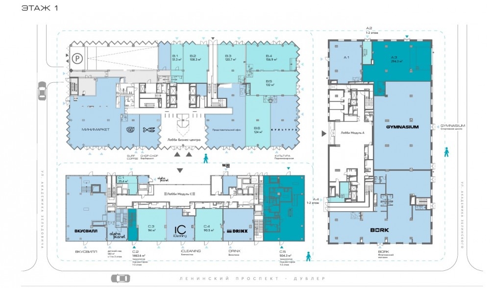
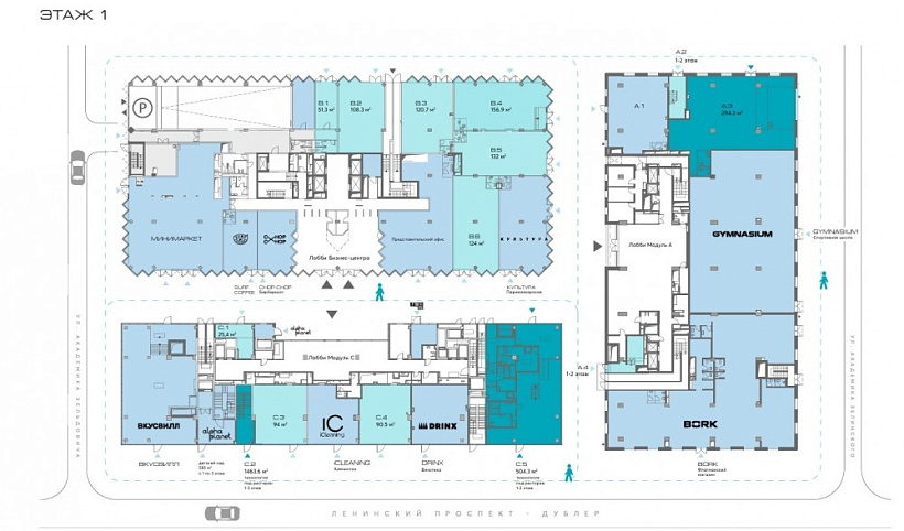
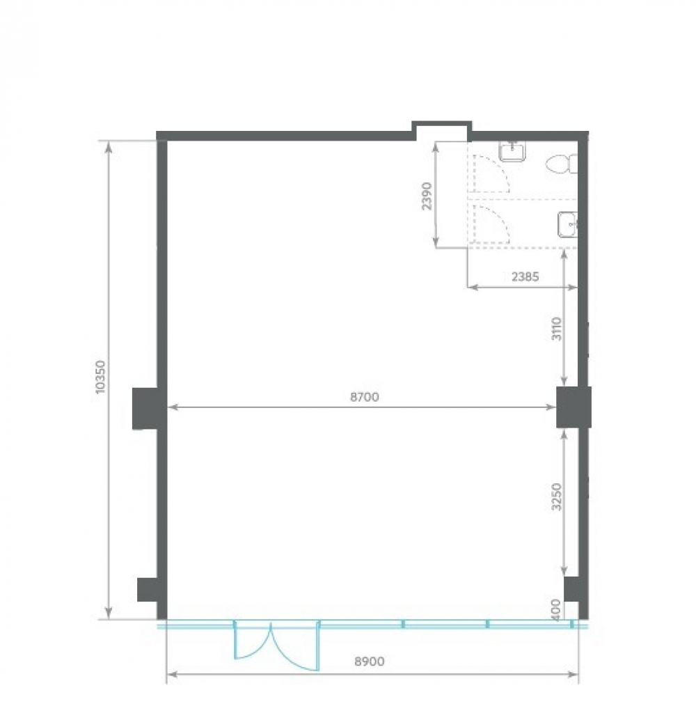
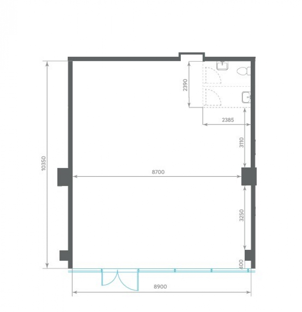
Площадь 90.40
Площадь всего 13400.00
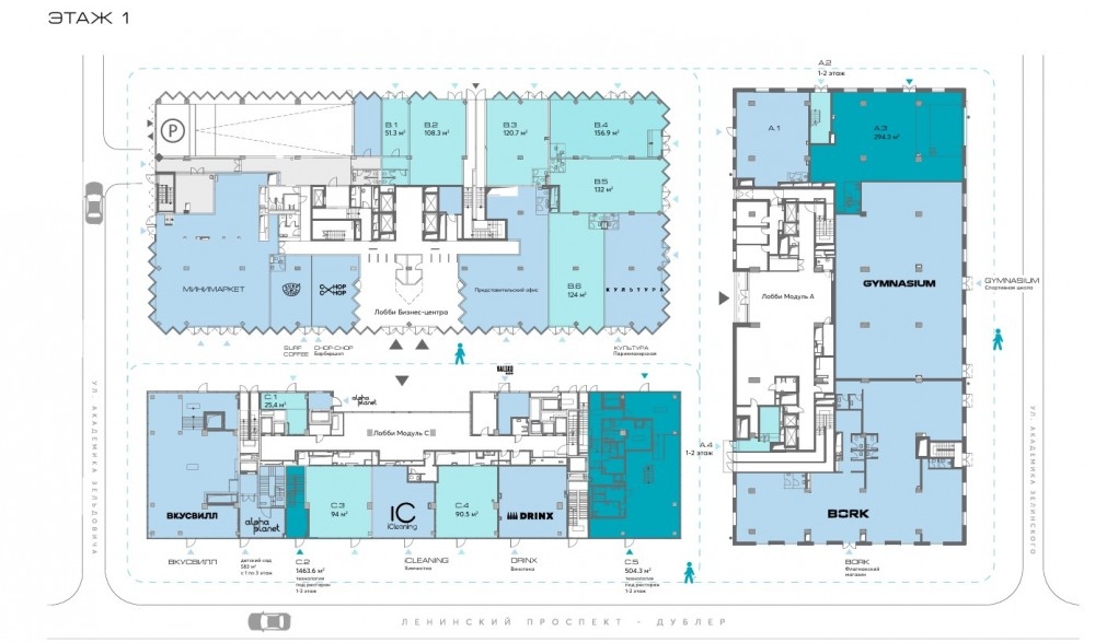
Тип объекта Бизнес-центр
Класс здания A
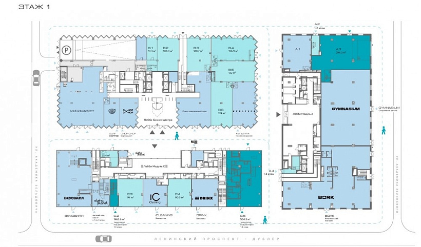
Этаж 1
Всего этажей в здании 6
Метраж по этажам
Информация об объекте
Состояние блока Shell and Core
Планировка Открытая
Парковка арендную ставку входит 1 м/м. Подземная
Нюансы Отдельный вход
Торговая недвижимость
Линия домов 1 линия
Возможности Зона разгрузки,Витрины,Место для рекламы,Проходное место,Проездное место
Электр. мощность (кВт) 15
Коммерческие условия
Аренда в год за м2 100 000 ₽
Аренда в месяц 753 333 ₽
Тип собственника Юридическое лицо

Описание объекта
Сдается в аренду торговое помещение с мокрой точкой на Ленинском проспекте !

Технологическое оснащение: свободного назначения
Вентиляция/кондиционирование: центральная система
Ставка аренды: 100.000 руб./м2 в год, включая НДС
эксплуатация оплачивается отдельно

Мокрая точка
Престижное расположение на первой линии Ленинского проспекта.
Класс «А» — комфорт для сотрудников и солидный имидж для клиентов
Современный архитектурный комплекс с развитой инфраструктурой.
Идеально для офиса компании, шоу-рума, представительского центра.

Всего 10 минут пешком до станции метро Ленинский проспект и МЦК (Площадь Гагарина, Воробьевы горы). Рядом выезды на ТТК (800 метров), Садовое кольцо и МКАД, что обеспечивает быструю связь с любой частью города.

В пешей доступности знаменитый Нескучный сад, Воробьевы горы с панорамным видом на город, Сад МГУ и Новодевичьи пруды.
Также, рядом находится Штаб-Квартира Яндекс, что будет являться несомненным преимуществом для Вашего бизнеса.
Транспортная доступность: 10 минут пешком до метро «Ленинский проспект» и МЦК «Площадь Гагарина». Удобные выезды на ТТК и крупные магистрали.
О бизнес-центре:
Отдельное шестиэтажное здание площадью 13 400 м²
Архитектурный проект — бюро «Цимайло Ляшенко и Партнеры»
Девелопер — Hutton Development
Современные инженерные системы: приточно-вытяжная вентиляция, центральное кондиционирование (чиллер-фанкойл), лифты ThyssenKrupp
Панорамное остекление с высоким уровнем естественного света и приватности
Парковка:
В арендную ставку включено 1 машиноместо на подземной парковке.

Нужна консультация по подбору торговых площадей для аренды?

Наши специалисты подберут для вас самые выгодные варианты для долгосрочного инвестирования,
помогут в сопровождении и сделки, проверят все юридические вопросы касаемо приобретения недвижимости.

* Нажимая на кнопку «Отправить», Вы даете согласие на обработку персональных данных в соответствии с Политикой конфиденциальности

Похожие объекты

Деловой центр Деловой центр (МЦК) (7 мин. 🚶)
Москва, Пресненская набережная, 12
Москва-Сити «Башня Федерация»
Тип: Торговое помещение
Площадь: 92.00 м2
Мощность:25 кВт
673 440 в месяц
87 840 в год за м2
Позвонить Подробнее
Владыкино (15 мин. 🚶)
Москва, Северо-Восточный административный округ, район Отрадное, жилой комплекс Сигнальный 16, 2.1
ЖК "Сигнальный"
Тип: Торговое помещение
Площадь: 81.70 м2
Мощность:16 кВт
450 000 в месяц
66 095 в год за м2
Позвонить Подробнее
Перово (1 мин. 🚶)
Москва, Зелёный проспект, 19
Административное здание Зеленый проспект, 19
Тип: Торговое помещение
Площадь: 86.80 м2
500 000 в месяц
69 124 в год за м2
Позвонить Подробнее
Пражская (2 мин. 🚶)
Москва, улица Красного Маяка, 2Б
ТЦ "Пражский пассаж"
Тип: Торговое помещение
Площадь: 90.00 м2
Мощность:20 кВт
900 000 в месяц
120 000 в год за м2
Позвонить Подробнее
Коломенская (1 мин. 🚶)
Москва, проспект Андропова, 23
ТЦ "Коломенский"
Тип: Торговое помещение
Площадь: 97.80 м2
Мощность:15 кВт
489 000 в месяц
60 000 в год за м2
Позвонить Подробнее
Коломенская (1 мин. 🚶)
Москва, проспект Андропова, 23
ТЦ "Коломенский"
Тип: Торговое помещение
Площадь: 92.50 м2
Мощность:15 кВт
462 500 в месяц
60 000 в год за м2
Позвонить Подробнее
Коломенская (1 мин. 🚶)
Москва, проспект Андропова, 23
ТЦ "Коломенский"
Тип: Торговое помещение
Площадь: 91.10 м2
Мощность:15 кВт
455 500 в месяц
60 000 в год за м2
Позвонить Подробнее
Улица 1905 года (13 мин. 🚶)
Москва, Мантулинская улица, 2
Жилое здание "Мантулинская 2"
Тип: Торговое помещение
Площадь: 92.00 м2
420 000 в месяц
54 783 в год за м2
Позвонить Подробнее
Котельники (14 мин. 🚗)
Московская область, городской округ Люберцы, посёлок городского типа Мирный, улица Военкора Максима Фомина, 6
ЖК "Томилино Парк"
Тип: Торговое помещение
Площадь: 88.40 м2
Мощность:15 кВт
265 200 в месяц
36 000 в год за м2
Позвонить Подробнее
Братиславская (9 мин. 🚶)
Москва, Люблинская улица, 153
ТЦ "Люблю Молл"
Тип: Торговое помещение
Площадь: 82.50 м2
544 500 в месяц
79 200 в год за м2
Позвонить Подробнее
Электрозаводская (9 мин. 🚶)
Москва, Большая Почтовая улица, 30с1к10
ЖК "Резиденции Архитекторов"
Тип: Торговое помещение
Площадь: 82.00 м2
656 000 в месяц
96 000 в год за м2
Позвонить Подробнее
Мичуринский проспект (13 мин. 🚗)
Москва, улица Мичуринский Проспект, Олимпийская Деревня, 3
Торговый центр "Мичуринский Проспект, Олимпийская Деревня, 3"
Тип: Торговое помещение
Площадь: 90.00 м2
Мощность:30 кВт
350 000 в месяц
46 667 в год за м2
Позвонить Подробнее
Тверская (5 мин. 🚶)
Москва, Тверская улица, 15
Жилое здание "Тверская улица д. 15"
Тип: Торговое помещение
Площадь: 232.00 м2
Мощность:100 кВт
2 000 000 в месяц
103 448 в год за м2
Позвонить Подробнее
Деловой центр Деловой центр (МЦК) (7 мин. 🚶)
Москва, Пресненская набережная, 12
Москва-Сити «Башня Федерация»
Тип: Торговое помещение
Площадь: 24.70 м2
Мощность:8 кВт
195 871 в месяц
95 160 в год за м2
Позвонить Подробнее
Деловой центр Деловой центр (МЦК) (7 мин. 🚶)
Москва, Пресненская набережная, 12
Москва-Сити «Башня Федерация»
Тип: Торговое помещение
Площадь: 52.30 м2
Мощность:26 кВт
414 739 в месяц
95 160 в год за м2
Позвонить Подробнее
Щёлковская (8 мин. 🚶)
Москва, Уральская улица, 5А
Административное здание "Уральская улица, 5А"
Тип: Торговое помещение
Площадь: 21.00 м2
180 000 в месяц
102 857 в год за м2
Позвонить Подробнее
Электрозаводская (9 мин. 🚶)
Москва, Большая Почтовая улица, 30с1к10
ЖК "Резиденции Архитекторов"
Тип: Торговое помещение
Площадь: 82.00 м2
656 000 в месяц
96 000 в год за м2
Позвонить Подробнее
Ломоносовский проспект (7 мин. 🚶)
Москва, Мичуринский проспект, 7к1
ЖК Шуваловский
Тип: Торговое помещение
Площадь: 94.00 м2
Мощность:78 кВт
750 000 в месяц
95 745 в год за м2
Позвонить Подробнее
Павелецкая (2 мин. 🚶)
Москва, Новокузнецкая улица, 39
Административное здание «Новокузнецкая 39»
Тип: Торговое помещение
Площадь: 45.30 м2
Мощность:35 кВт
400 000 в месяц
105 960 в год за м2
Позвонить Подробнее
Савёловская (7 мин. 🚶)
Москва, Вятская улица, 27
Бизнес-парк «Фактория»
Тип: Торговое помещение
Площадь: 84.40 м2
700 000 в месяц
99 526 в год за м2
Позвонить Подробнее
ЗИЛ (15 мин. 🚶)
Москва, набережная Марка Шагала, 11к3
ЖК Шагал
Тип: Торговое помещение
Площадь: 50.00 м2
Мощность:10 кВт
400 000 в месяц
96 000 в год за м2
Позвонить Подробнее
Китай-город (3 мин. 🚶)
Москва, улица Маросейка, 6-8с1
Административное здание «Маросейка 6/8с1»
Тип: Торговое помещение
Площадь: 253.60 м2
Мощность:90 кВт
2 099 000 в месяц
99 322 в год за м2
Позвонить Подробнее
Юго-Западная (3 мин. 🚶)
Москва, проспект Вернадского, 80
ЖК Full House
Тип: Торговое помещение
Площадь: 88.10 м2
Мощность:18 кВт
704 800 в месяц
96 000 в год за м2
Позвонить Подробнее
Фрунзенская (4 мин. 🚶)
Москва, Комсомольский проспект, 27с5
Жилое здание «Комсомольский 27 с5»
Тип: Торговое помещение
Площадь: 222.00 м2
1 700 002 в месяц
91 892 в год за м2
Позвонить Подробнее
Ленинский проспект (10 мин. 🚶)
Москва, Ленинский проспект, 38
Бизнес-центр «Lunar (Лунар)»
Тип: Торговое помещение
Площадь: 251.50 м2
Мощность:23 кВт
1 047 917 в месяц
50 000 в год за м2
Позвонить Подробнее
Ленинский проспект (10 мин. 🚶)
Москва, Ленинский проспект, 38
Бизнес-центр «Lunar (Лунар)»
Тип: Торговое помещение
Площадь: 224.00 м2
Мощность:23 кВт
933 333 в месяц
50 000 в год за м2
Позвонить Подробнее
Ленинский проспект (10 мин. 🚶)
Москва, Ленинский проспект, 38
Бизнес-центр «Lunar (Лунар)»
Тип: Торговое помещение
Площадь: 531.80 м2
Мощность:350 кВт
3 102 167 в месяц
70 000 в год за м2
Позвонить Подробнее
Ленинский проспект (10 мин. 🚶)
Москва, Ленинский проспект, 38
Бизнес-центр «Lunar (Лунар)»
Тип: Торговое помещение
Площадь: 1463.60 м2
Мощность:450 кВт
7 318 000 в месяц
60 000 в год за м2
Позвонить Подробнее
Ленинский проспект (10 мин. 🚶)
Москва, Ленинский проспект, 38
Бизнес-центр «Lunar (Лунар)»
Тип: Торговое помещение
Площадь: 156.90 м2
Мощность:56 кВт
799 994 в месяц
61 185 в год за м2
Позвонить Подробнее
Ленинский проспект (10 мин. 🚶)
Москва, Ленинский проспект, 38
Бизнес-центр «Lunar (Лунар)»
Тип: Торговое помещение
Площадь: 94.00 м2
700 000 в месяц
89 362 в год за м2
Позвонить Подробнее