Аренда офиса Бизнес-центр «Новая рига»

Аренда офиса Бизнес-центр «Новая рига» Аренда офиса Бизнес-центр «Новая рига» Аренда офиса Бизнес-центр «Новая рига»
Аренда офиса Бизнес-центр «Новая рига» - превью Аренда офиса Бизнес-центр «Новая рига» - превью Аренда офиса Бизнес-центр «Новая рига» - превью
Москва, 2-я Лыковская улица, 63с10
Позвоните по телефону +7 495 230-28-26, либо оставьте заявку на просмотр прямо сейчас и узнайте условия специального предложения по объекту.
загрузка карты...
Аренда в год за м2 21 600 ₽
Аренда в месяц 396 000 ₽
Схема сделки прямая аренда
Первушина Марина Алексеевна

Объект ведет консультант:

Первушина Марина Алексеевна

Общие
ID 62475
Тип сделки Аренда
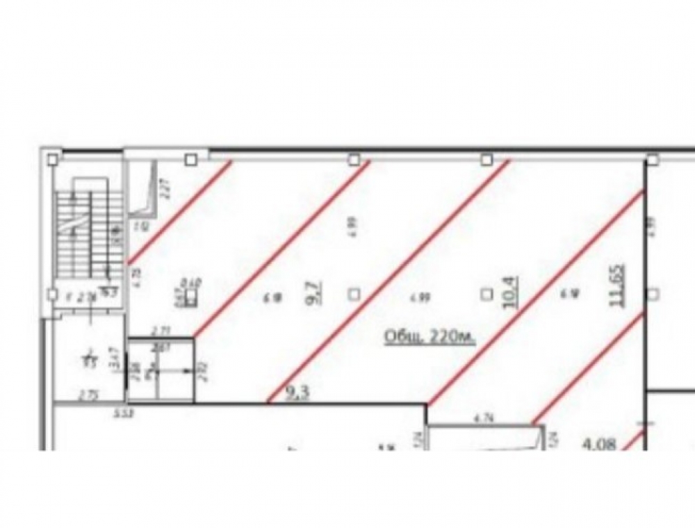
Площадь 220.00
Площадь всего 7000.00
Тип объекта Бизнес-центр
Класс здания B
Этаж 2
Всего этажей в здании 3
Метраж по этажам
Информация об объекте
Состояние объекта рабочее
Состояние блока выполнена стандартная офисная отделка
Планировка Открытая
Коммуникации Система видеонаблюдения,Интернет,Телефония
Перекрытия Железобетонные
Парковка наземная бесплатно
КПП Гостевой пропуск
Коммерческие условия
Аренда в год за м2 21 600 ₽
Аренда в месяц 396 000 ₽
Схема сделки прямая аренда
Тип собственника Юридическое лицо

Описание объекта
Предлагаем в аренду офис в бизнес-центре класса В в Строгино. Метро в пешей доступности.
Офис расположен на 2-м этаже, свободная планировка, отделка за выездом арендатора, с/у на этаже. В здании приточная вентиляция, центральное кондиционирование.
Офис сдается без мебели.
В ставку включена эксплуатация и к/у.
Бесплатно предоставляются места на парковке.
Офис свободен к заезду.

Нужна консультация по подбору помещения под офис?

Наши специалисты подберут для вас самые выгодные варианты для долгосрочного инвестирования,
помогут в сопровождении и сделки, проверят все юридические вопросы касаемо приобретения недвижимости.

* Нажимая на кнопку «Отправить», Вы даете согласие на обработку персональных данных в соответствии с Политикой конфиденциальности

Похожие объекты

Чеховская
Москва, Столешников переулок, 9с3
Жилое здание "Столешников переулок, 9с3"
Тип: Офисы
Площадь: 217.00 м2
Отделка:качественная отделка
1 450 000 в месяц
80 184 в год за м2
Позвонить Подробнее
Речной вокзал (14 мин. 🚗)
Москва, Смольная улица, 14
Бизнес-центр «Смольный»
Тип: Офисы
Площадь: 221.47 м2
Отделка:выполнена стандартная офисная отделка
461 396 в месяц
25 000 в год за м2
Позвонить Подробнее
Бунинская аллея (4 мин. 🚶)
Москва, улица Адмирала Руднева, 20
БЦ "Варяг"
Тип: Офисы
Площадь: 220.00 м2
Отделка:качественная отделка
210 000 в месяц
11 455 в год за м2
Позвонить Подробнее
Нахимовский проспект (5 мин. 🚶)
Москва, Одесская улица, 2кА
Бизнес-центр «Лотос»
Тип: Офисы
Площадь: 200.00 м2
Отделка:качественная отделка
790 000 в месяц
47 400 в год за м2
Позвонить Подробнее
Курская (5 мин. 🚶)
Москва, Нижний Сусальный переулок, 5с4
Бизнес Квартал «Арма»
Тип: Офисы
Площадь: 205.80 м2
Отделка:отделка в стиле Loft
943 250 в месяц
55 000 в год за м2
Позвонить Подробнее
Шаболовская (11 мин. 🚶)
Москва, Ленинский проспект, 15А
Бизнес-центр «Central Park Tower»
Тип: Офисы
Площадь: 216.60 м2
Отделка:качественная отделка
1 387 323 в месяц
76 860 в год за м2
Позвонить Подробнее
Профсоюзная (5 мин. 🚶)
Москва, Улица Кржижановского, 14к3
Бизнес-центр «Ферро-Плаза»
Тип: Офисы
Площадь: 228.00 м2
Отделка:выполнена стандартная офисная отделка
779 000 в месяц
41 000 в год за м2
Позвонить Подробнее
Бауманская (2 мин. 🚶)
Москва, Спартаковская улица, 21
Особняк «Спартаковская 21»
Тип: Офисы
Площадь: 208.50 м2
Отделка:выполнена стандартная офисная отделка
450 000 в месяц
25 899 в год за м2
Позвонить Подробнее
Менделеевская (11 мин. 🚶)
Москва, Тихвинский переулок, 11с2
Бизнес-центр «Тихвинский 11 с2»
Тип: Офисы
Площадь: 218.50 м2
Отделка:выполнена стандартная офисная отделка
600 000 в месяц
32 952 в год за м2
Позвонить Подробнее
Курская (5 мин. 🚶)
Москва, 2-й Сыромятнический переулок, 1
Бизнес-центр "Дельта Плаза"
Тип: Офисы
Площадь: 205.00 м2
Отделка:выполнена стандартная офисная отделка
1 135 871 в месяц
66 490 в год за м2
Позвонить Подробнее
Калужская (7 мин. 🚶)
Москва, улица Обручева, 23с1
Бизнес - центр "Geolog"
Тип: Офисы
Площадь: 216.00 м2
Отделка:Shell and Core
587 520 в месяц
32 640 в год за м2
Позвонить Подробнее
Калужская (7 мин. 🚶)
Москва, улица Обручева, 23с1
Бизнес - центр "Geolog"
Тип: Офисы
Площадь: 226.50 м2
Отделка:Shell and Core
616 080 в месяц
32 640 в год за м2
Позвонить Подробнее
Речной вокзал (32 мин. 🚗)
Москва, Химки, Ленинградская улица, 25
Бизнес-центр «KHIMKI ONE»
Тип: Офисы
Площадь: 1918.63 м2
Отделка:Shell and Core
3 332 181 в месяц
20 841 в год за м2
Позвонить Подробнее
Владыкино (4 мин. 🚗)
Москва, Берёзовая аллея, 7Б
ОСЗ "Берёзовая аллея 7Б"
Тип: Офисы
Площадь: 1750.00 м2
3 355 166 в месяц
23 007 в год за м2
Позвонить Подробнее
Электрозаводская (15 мин. 🚶)
Москва, Большая Почтовая улица, 26Вс2
Бизнес-центр «Пост Плаза»
Тип: Офисы
Площадь: 155.60 м2
Отделка:качественная отделка
253 109 в месяц
19 520 в год за м2
Позвонить Подробнее
Кожуховская (6 мин. 🚶)
Москва, 2-й Южнопортовый проезд, 14/22
Офисно-складской комплекс «Южнопортовый»
Тип: Офисы
Площадь: 2500.00 м2
Отделка:требуется косметический ремонт
4 166 667 в месяц
20 000 в год за м2
Позвонить Подробнее
Кожуховская (6 мин. 🚶)
Москва, 2-й Южнопортовый проезд, 14/22
Офисно-складской комплекс «Южнопортовый»
Тип: Офисы
Площадь: 1520.00 м2
Отделка:требуется косметический ремонт
2 533 333 в месяц
20 000 в год за м2
Позвонить Подробнее
Кожуховская (6 мин. 🚶)
Москва, 2-й Южнопортовый проезд, 14/22
Офисно-складской комплекс «Южнопортовый»
Тип: Офисы
Площадь: 980.00 м2
Отделка:выполнена стандартная офисная отделка
1 633 333 в месяц
20 000 в год за м2
Позвонить Подробнее
Кожуховская (6 мин. 🚶)
Москва, 2-й Южнопортовый проезд, 14/22
Офисно-складской комплекс «Южнопортовый»
Тип: Офисы
Площадь: 670.00 м2
Отделка:требуется косметический ремонт
1 116 667 в месяц
20 000 в год за м2
Позвонить Подробнее
Кожуховская (6 мин. 🚶)
Москва, 2-й Южнопортовый проезд, 14/22
Офисно-складской комплекс «Южнопортовый»
Тип: Офисы
Площадь: 850.00 м2
Отделка:выполнена стандартная офисная отделка
1 416 667 в месяц
20 000 в год за м2
Позвонить Подробнее
Университет (5 мин. 🚶)
Москва, Проспект Вернадского, 6
БЦ «Капитолий»
Тип: Офисы
Площадь: 1648.00 м2
Отделка:выполнена стандартная офисная отделка
3 015 840 в месяц
21 960 в год за м2
Позвонить Подробнее
Юго-Западная (10 мин. 🚶)
Москва, проспект Вернадского, 125А
ОСЗ "Проспект Вернадского 125А"
Тип: Офисы
Площадь: 951.50 м2
1 807 850 в месяц
22 800 в год за м2
Позвонить Подробнее
Марксистская (8 мин. 🚶)
Закрытая продажа #63153
Тип: Офисы
Площадь: 280.00 м2
Отделка:выполнена стандартная офисная отделка
466 667 в месяц
20 000 в год за м2
Позвонить Подробнее
(15 мин. 🚶)
Москва, Улица Коновалова, 14
Улица Коновалова, 14
Тип: Офисы
Площадь: 761.00 м2
1 268 333 в месяц
20 000 в год за м2
Позвонить Подробнее
Строгино (9 мин. 🚶)
Москва, Улица Кулакова, 20с1А
Бизнес-центр «Технопарк Орбита»
Тип: Офисы
Площадь: 479.40 м2
Отделка:выполнена стандартная офисная отделка
1 401 246 в месяц
35 075 в год за м2
Позвонить Подробнее
Строгино (15 мин. 🚶)
Москва, Улица Маршала Прошлякова, 30
Бизнес-центр «Зенит Плаза»
Тип: Офисы
Площадь: 224.00 м2
Отделка:выполнена стандартная офисная отделка
476 000 в месяц
25 500 в год за м2
Позвонить Подробнее
Строгино (20 мин. 🚗)
Москва, 2-я Лыковская улица, 63с10
Бизнес-центр «Новая рига»
Тип: Офисы
Площадь: 318.00 м2
Отделка:выполнена стандартная офисная отделка
572 400 в месяц
21 600 в год за м2
Позвонить Подробнее
Строгино (20 мин. 🚗)
Москва, 2-я Лыковская улица, 63с10
Бизнес-центр «Новая рига»
Тип: Офисы
Площадь: 646.00 м2
Отделка:выполнена стандартная офисная отделка
1 162 800 в месяц
21 600 в год за м2
Позвонить Подробнее