Продажа офиса Здание "Люберцы, улица 3-е Почтовое Отделение, 54А"

Продажа офиса Здание Продажа офиса Здание Продажа офиса Здание
Продажа офиса Здание Продажа офиса Здание Продажа офиса Здание
Московская область, Люберцы, микрорайон Городок Б, улица 3-е Почтовое Отделение, 54А
Позвоните по телефону +7 495 230-28-26, либо оставьте заявку на просмотр прямо сейчас и узнайте условия специального предложения по объекту.
загрузка карты...
Общие
ID 62613
Тип сделки Продажа
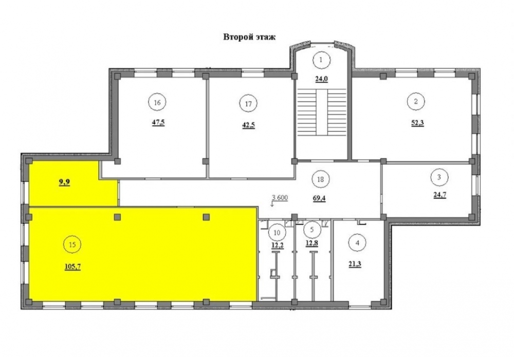
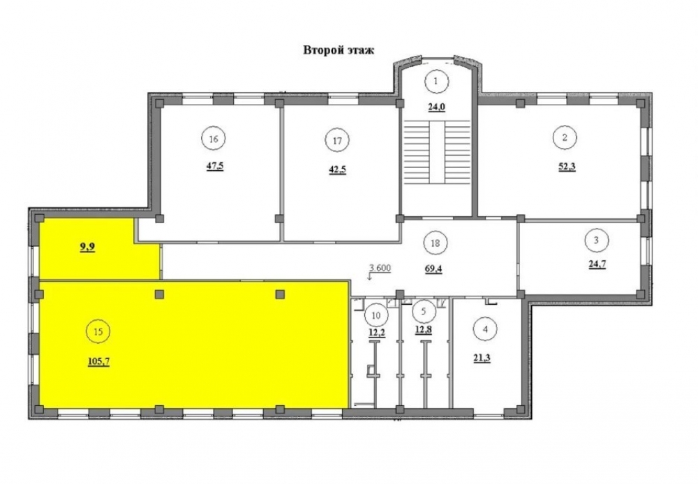
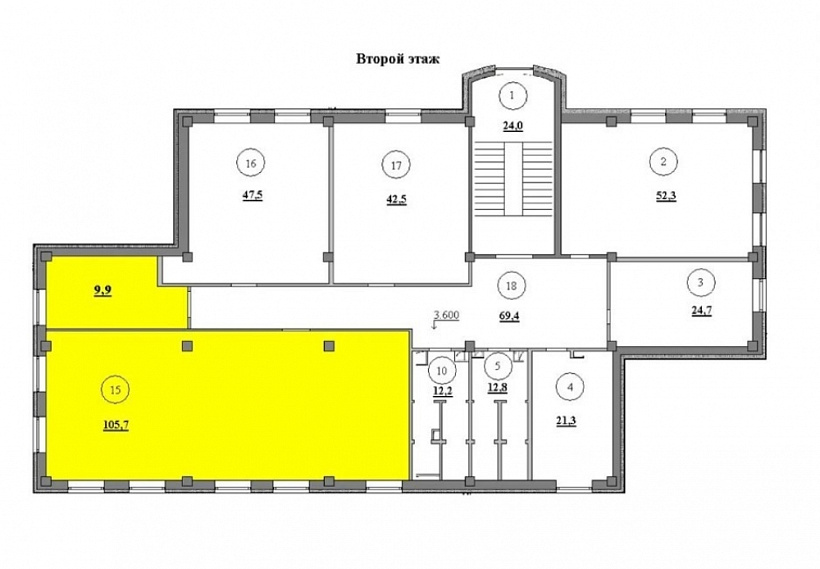
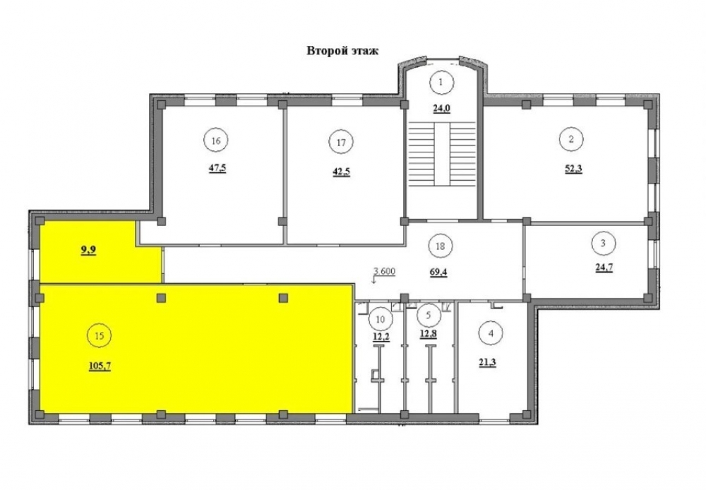
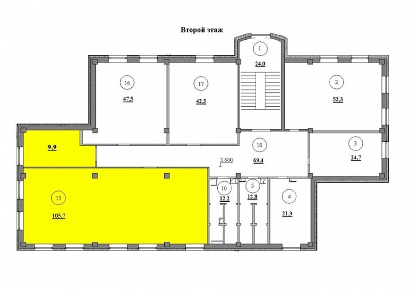
Площадь 108.00
Тип объекта Особняк
Этаж 2
Всего этажей в здании 3
Метраж по этажам
Информация об объекте
Состояние объекта рабочее
Состояние блока отделка арендатора
Планировка Залы и кабинеты
Перекрытия Железобетонные
Парковка городская
Коммерческие условия
За все 13 100 000 ₽
За м 2 121 296 ₽
Тип собственника Физическое лицо

Описание объекта
Предлагается к покупке Помещение на 2м этаже площадью 108 кв.м. по адресу г. Люберцы, ул. 3-е Почтовое Отделение, д. 54 а. В помещении выполнен ремонт, готово к заезду. Подойдет под офис, салон красоты и другой Ваш бизнес.

Электрическая мощность 30 кВт

Нужна консультация по покупке или продаже офиса?

Наши специалисты подберут для вас самые выгодные варианты для долгосрочного инвестирования,
помогут в сопровождении и сделки, проверят все юридические вопросы касаемо приобретения недвижимости.

* Нажимая на кнопку «Отправить», Вы даете согласие на обработку персональных данных в соответствии с Политикой конфиденциальности

Похожие объекты

Озёрная (3 мин. 🚶)
Москва, Озёрная улица, 42с1
ЖК "Страна Озёрная"
Тип: Офисы
Площадь: 100.90 м2
Отделка:помещение без отделки
82 490 000 за все
817 542 за м2
Позвонить Подробнее
(8 мин. 🚶)
Москва, Камергерский переулок, 4с1
Комплекс "Камергер"
Тип: Офисы
Площадь: 111.30 м2
Отделка:помещение без отделки
189 210 000 за все
1 700 000 за м2
Позвонить Подробнее
Марьина Роща (10 мин. 🚶)
Москва, 3-й проезд Марьиной Рощи, 40с1
Офисное здание «3-й Марьиной Рощи 40с1»
Тип: Офисы
Площадь: 107.30 м2
Отделка:отделка в стиле Loft
31 653 500 за все
295 000 за м2
Позвонить Подробнее
Озёрная (8 мин. 🚶)
Москва, Озёрная улица, 44Б
Бизнес-центр "ЛЭЙКС 2"
Тип: Офисы
Площадь: 99.00 м2
Отделка:выполнена стандартная офисная отделка
43 783 277 за все
442 255 за м2
Позвонить Подробнее
Озёрная (8 мин. 🚶)
Москва, Озёрная улица, 44Б
Бизнес-центр "ЛЭЙКС 2"
Тип: Офисы
Площадь: 118.40 м2
Отделка:выполнена стандартная офисная отделка
50 718 276 за все
428 364 за м2
Позвонить Подробнее
Багратионовская (8 мин. 🚶)
Москва, Кастанаевская улица, 16с1
Бизнес-центр "Фили Резиденс"
Тип: Офисы
Площадь: 105.20 м2
Отделка:Shell and Core
60 000 000 за все
570 342 за м2
Позвонить Подробнее
Фонвизинская (6 мин. 🚶)
Москва, Огородный проезд, 20
Бизнес-центр UPSIDE (Апсайд) ОСТАНКИНО
Тип: Офисы
Площадь: 116.23 м2
Отделка:Shell and Core
43 993 055 за все
378 500 за м2
Позвонить Подробнее
Марьина Роща (5 мин. 🚶)
Москва, улица Сущёвский Вал, 43
БЦ "Варст"
Тип: Офисы
Площадь: 112.00 м2
Отделка:выполнена стандартная офисная отделка
50 400 000 за все
450 000 за м2
Позвонить Подробнее
Марьина Роща (5 мин. 🚶)
Москва, улица Сущёвский Вал, 43
БЦ "Варст"
Тип: Офисы
Площадь: 114.00 м2
Отделка:выполнена стандартная офисная отделка
42 180 000 за все
370 000 за м2
Позвонить Подробнее
Строгино (14 мин. 🚗)
Москва, МКАД, 64-й километр, 1
Бизнес парк "«Rublevo Business Park (Рублево Бизнес Парк)»"
Тип: Офисы
Площадь: 110.21 м2
Отделка:Shell and Core
39 387 731 за все
357 388 за м2
Позвонить Подробнее
Строгино (14 мин. 🚗)
Москва, МКАД, 64-й километр, 1
Бизнес парк "«Rublevo Business Park (Рублево Бизнес Парк)»"
Тип: Офисы
Площадь: 99.66 м2
Отделка:Shell and Core
32 232 173 за все
323 421 за м2
Позвонить Подробнее
Тульская (3 мин. 🚶)
Москва, Холодильный переулок, 3к1
БЦ "Башня Рябов"
Тип: Офисы
Площадь: 101.20 м2
Отделка:Shell and Core
52 624 000 за все
520 000 за м2
Позвонить Подробнее
Дмитровская (10 мин. 🚶)
Москва, Большая Новодмитровская улица, 23с2
Бизнес-центр «Большая Новодмитровская 23 С2»
Тип: Офисы
Площадь: 28.70 м2
Отделка:выполнена стандартная офисная отделка
14 039 663 за все
489 187 за м2
Позвонить Подробнее
Войковская (20 мин. 🚶)
Москва, Новопетровская улица, 1с1
Административное здание "Новопетровская улица, 1с1"
Тип: Офисы
Площадь: 40.00 м2
Отделка:Shell and Core
14 000 000 за все
350 000 за м2
Позвонить Подробнее
Строгино (5 мин. 🚶)
Москва, улица Маршала Прошлякова, 19
МФК "Строгино Сити"
Тип: Офисы
Площадь: 27.20 м2
Отделка:помещение без отделки
13 586 400 за все
499 500 за м2
Позвонить Подробнее
Окружная (10 мин. 🚗)
Москва, Алтуфьевское шоссе, 35к1
МФК "HALO (ГАЛО)"
Тип: Офисы
Площадь: 84.90 м2
Отделка:Shell and Core
13 760 280 за все
162 076 за м2
Позвонить Подробнее