Аренда индустриальной недвижимости Здание "Лихоборская набережная, 11с16"

Аренда индустриальной недвижимости Здание
Москва, Лихоборская набережная, 11с16
Позвоните по телефону +7 495 230-28-26, либо оставьте заявку на просмотр прямо сейчас и узнайте условия специального предложения по объекту.
загрузка карты...
Аренда в год за м2 18 000 ₽
Аренда в месяц 358 500 ₽
Схема сделки прямая аренда
Общие
ID 62753
Тип сделки Аренда
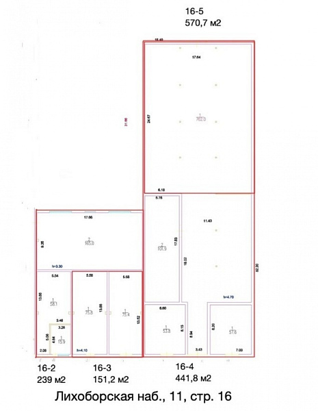
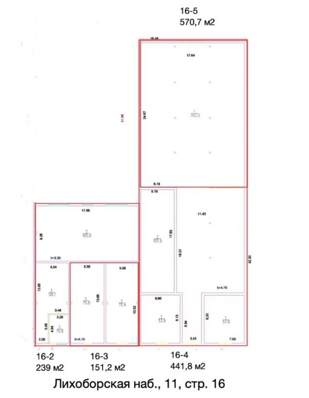
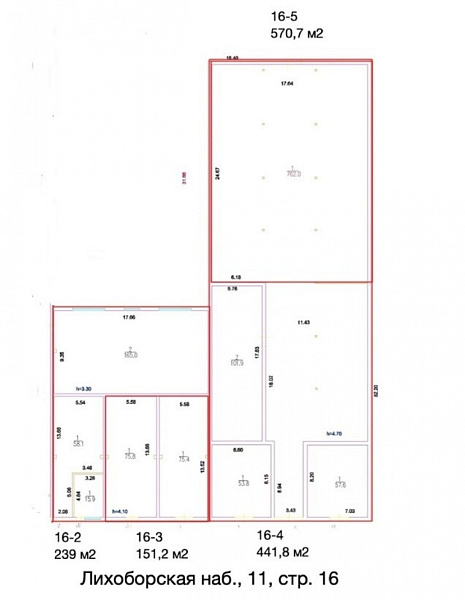
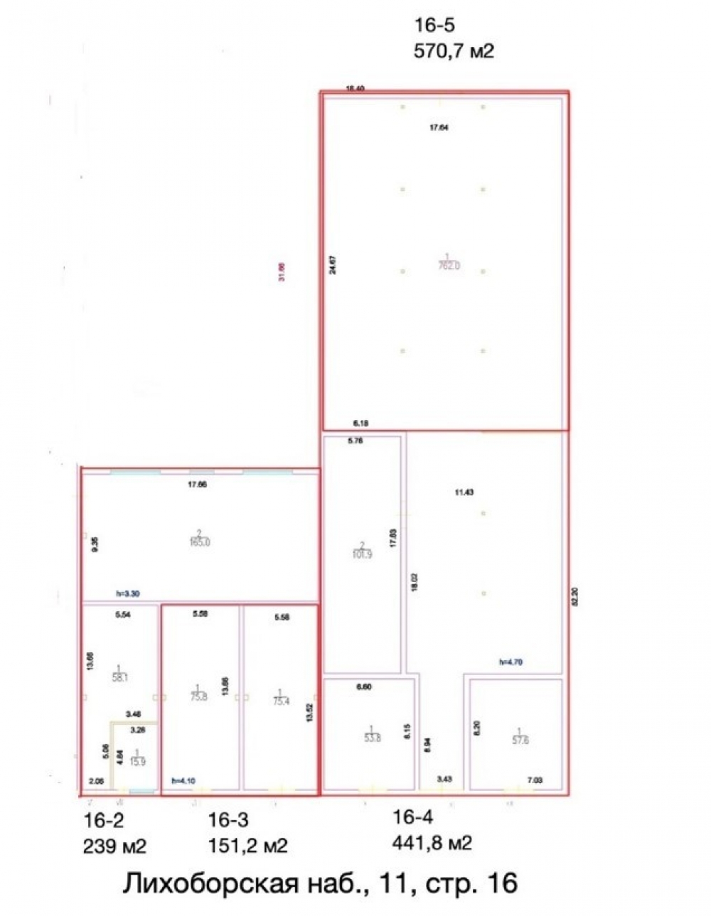
Площадь 239.00
Площадь всего 809.70
Тип объекта Производственное здание
Всего этажей в здании 1
Информация об объекте
Состояние объекта рабочее
Состояние блока требуется косметический ремонт
Перекрытия Железобетонные
Нюансы ПСН
Коммерческие условия
Аренда в год за м2 18 000 ₽
Аренда в месяц 358 500 ₽
Схема сделки прямая аренда
Тип собственника Юридическое лицо

Описание объекта
Предлагается в аренду помещение с отдельным входом в нежилом кирпичном здании на Лихоборской набережной СЗАО г. Москвы площадью 239 кв.м., парковка по периметру на 2 машин, мощность 40 кВт с возможностью увеличения, отопление, ХВС, ГВС, канализация. Прямая аренда.

Отличная транспортная доступность: 15-18 мин пешком от м.Коптево, м.Лихоборская, м.Моссельмаш, на авто не далеко (МСД, СВХ, СЗХ, Ленинградское ш, Дмитровское ш).
Управляющая компания обеспечивает охрану, уборку территории и вывоз мусора. Эксплутационные расходы включены в стоимость. Коммунальные услуги оплачиваются отдельно согласно показаниям счетчиков.

Идеально подойдет для производства, хранения и другого бизнеса!

Нужна консультация ?

Наши специалисты подберут для вас самые выгодные варианты для долгосрочного инвестирования,
помогут в сопровождении и сделки, проверят все юридические вопросы касаемо приобретения недвижимости.

* Нажимая на кнопку «Отправить», Вы даете согласие на обработку персональных данных в соответствии с Политикой конфиденциальности

Похожие объекты

Кантемировская (14 мин. 🚗)
Москва, Котляковская улица, 6с8
Офисно-производственный комплекс "Котляковская улица, 6с8"
Тип: Индустриальная недвижимость
Площадь: 1310.00 м2
1 800 000 в месяц
16 489 в год за м2
Позвонить Подробнее
Царицыно (31 мин. 🚗)
Москва, 6-я Радиальная улица, 17
ПСК "КЛАСТЕР" 6-я Радиальная 17
Тип: Индустриальная недвижимость
Площадь: 1157.80 м2
1 821 370 в месяц
18 878 в год за м2
Позвонить Подробнее
Царицыно (31 мин. 🚗)
Москва, 6-я Радиальная улица, 17
ПСК "КЛАСТЕР" 6-я Радиальная 17
Тип: Индустриальная недвижимость
Площадь: 2048.00 м2
2 969 600 в месяц
17 400 в год за м2
Позвонить Подробнее
Новохохловская (8 мин. 🚶)
Москва, Новохохловская улица, 21к2с3
ОСК "Ринг Парк"
Тип: Индустриальная недвижимость
Площадь: 2084.50 м2
3 126 750 в месяц
18 000 в год за м2
Позвонить Подробнее
Саларьево (17 мин. 🚶)
Москва, Новомосковский административный округ, район Коммунарка, квартал № 74, 1с2
Складской комплекс "Саларьево"
Тип: Индустриальная недвижимость
Площадь: 3600.00 м2
5 400 000 в месяц
18 000 в год за м2
Позвонить Подробнее
Саларьево (17 мин. 🚶)
Москва, Новомосковский административный округ, район Коммунарка, квартал № 74, 1с2
Складской комплекс "Саларьево"
Тип: Индустриальная недвижимость
Площадь: 7200.00 м2
10 800 000 в месяц
18 000 в год за м2
Позвонить Подробнее
Царицыно (31 мин. 🚗)
Москва, 6-я Радиальная улица, 17
ПСК "КЛАСТЕР" 6-я Радиальная 17
Тип: Индустриальная недвижимость
Площадь: 2553.80 м2
3 845 570 в месяц
18 070 в год за м2
Позвонить Подробнее
Котельники (20 мин. 🚗)
Московская область, Котельники, 1-й Покровский проезд, 5
ТЦ "Мега Белая Дача"
Тип: Индустриальная недвижимость
Площадь: 6000.00 м2
8 250 000 в месяц
16 500 в год за м2
Позвонить Подробнее
Ховрино (35 мин. 🚗)
Московская область, городской округ Солнечногорск, территория Индустриальный Парк Есипово
ПСК "Есипово" Industrial City
Тип: Индустриальная недвижимость
Площадь: 1335.01 м2
2 002 515 в месяц
18 000 в год за м2
Позвонить Подробнее
Тёплый стан (14 мин. 🚗)
Москва, Новомосковский административный округ, район Коммунарка, Калужское шоссе, 21-й километр, с1
ТЦ "Мега Теплый Стан"
Тип: Индустриальная недвижимость
Площадь: 6000.00 м2
8 250 000 в месяц
16 500 в год за м2
Позвонить Подробнее
Тёплый стан (14 мин. 🚗)
Москва, Новомосковский административный округ, район Коммунарка, Калужское шоссе, 21-й километр, с1
ТЦ "Мега Теплый Стан"
Тип: Индустриальная недвижимость
Площадь: 3000.00 м2
4 125 000 в месяц
16 500 в год за м2
Позвонить Подробнее
Тёплый стан (14 мин. 🚗)
Москва, Новомосковский административный округ, район Коммунарка, Калужское шоссе, 21-й километр, с1
ТЦ "Мега Теплый Стан"
Тип: Индустриальная недвижимость
Площадь: 34020.00 м2
46 777 500 в месяц
16 500 в год за м2
Позвонить Подробнее