Аренда офиса Бизнес-парк «Фактория»

Объект успешно реализован!
Аренда офиса Бизнес-парк «Фактория»
Москва, Вятская улица, 27
Объект успешно реализован, но у нас есть много других интересных предложений. Позвоните по телефону +7 495 230-28-26, либо оставьте заявку на подбор прямо сейчас и получите список подходящих для вас объектов.
загрузка карты...
Аренда в год за м2 51 600 ₽
Аренда в месяц 2 158 600 ₽
Схема сделки прямая аренда
Общие
ID 63032
Тип сделки Аренда
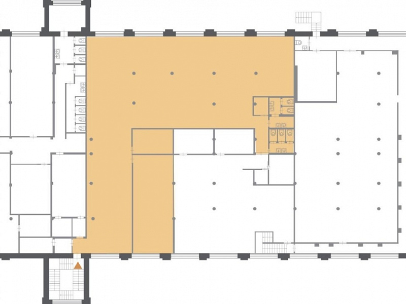
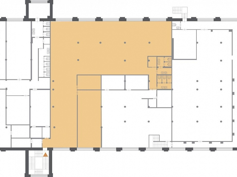
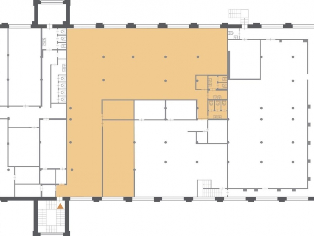
Площадь 502.00
Площадь всего 59000.00
Тип объекта Бизнес-парк
Класс здания B
Этаж 2
Всего этажей в здании 15
Метраж по этажам
Информация об объекте
Состояние объекта после реконструкции
Состояние блока отделка в стиле Loft
Планировка Смешанная
Коммуникации Система пожаротушения,Система видеонаблюдения,Интернет,Телефония
Лифт пассажирский 6
Перекрытия Железобетонные
Парковка наземная 20000р/мес
Отопление Центральное
Вентиляция и кондиционирование Современная система вентиляции и кондиционирования
КПП Гостевой пропуск
Коммерческие условия
Аренда в год за м2 51 600 ₽
Аренда в месяц 2 158 600 ₽
Схема сделки прямая аренда
Тип собственника Юридическое лицо

Описание объекта
Предлагаем в аренду офис в Савеловском районе. До м.Савеловская 5-6 минут пешком.
Офис расположен на 2-м этаже, смешанная планировка, выполнена отделка в стиле лофт, свои с/у. Установлена  приточная вентиляция и кондиционирование. Потолки 4,5м.
Офис сдается без мебели.
В ставку включена эксплуатация, к/у оплачивается отдельно.
За дополнительную плату предоставляются места на парковке.
Офис свободен к заезду.

Нужна консультация по подбору помещения под офис?

Наши специалисты подберут для вас самые выгодные варианты для долгосрочного инвестирования,
помогут в сопровождении и сделки, проверят все юридические вопросы касаемо приобретения недвижимости.

* Нажимая на кнопку «Отправить», Вы даете согласие на обработку персональных данных в соответствии с Политикой конфиденциальности

Похожие объекты

Кропоткинская (8 мин. 🚶)
Москва, Барыковский переулок, 2
Бизнес-центр «Ост Хаус»
Тип: Офисы
Площадь: 486.70 м2
Отделка:качественная отделка
3 000 000 в месяц
73 968 в год за м2
Позвонить Подробнее
Новослободская (5 мин. 🚶)
Москва, Краснопролетарская улица, 16
Бизнес-центр "Красный Пролетарий"
Тип: Офисы
Площадь: 538.00 м2
Отделка:выполнена стандартная офисная отделка
1 905 417 в месяц
42 500 в год за м2
Позвонить Подробнее
Белорусская (11 мин. 🚶)
Москва, Лесная улица, 43
Бизнес-центр «Лесная 43»
Тип: Офисы
Площадь: 550.00 м2
Отделка:качественная отделка
2 841 667 в месяц
62 000 в год за м2
Позвонить Подробнее
Сокольники (8 мин. 🚗)
Москва, 3-я Рыбинская улица, 18с2
Бизнес-центр «Буревестник»
Тип: Офисы
Площадь: 528.13 м2
Отделка:выполнена стандартная офисная отделка
1 718 183 в месяц
39 040 в год за м2
Позвонить Подробнее
Цветной бульвар (4 мин. 🚶)
Москва, Цветной бульвар, 22с1
Бизнес-центр «Цветной 22 с1»
Тип: Офисы
Площадь: 474.00 м2
Отделка:выполнена стандартная офисная отделка
1 975 000 в месяц
50 000 в год за м2
Позвонить Подробнее
Бауманская (7 мин. 🚶)
Москва, Бауманская улица, 11с8
Торгово-офисный комлекс"Бауманская улица, 11с8"
Тип: Офисы
Площадь: 522.00 м2
Отделка:отделка в стиле Loft
1 696 500 в месяц
39 000 в год за м2
Позвонить Подробнее
Марксистская (7 мин. 🚶)
Москва, Таганская улица, 17-23
Бизнес-центр «Мосэнка Парк Тауэрс 4»
Тип: Офисы
Площадь: 459.00 м2
Отделка:выполнена стандартная офисная отделка
1 913 265 в месяц
50 020 в год за м2
Позвонить Подробнее
Пушкинская (1 мин. 🚶)
Закрытая продажа #63680
Тип: Офисы
Площадь: 455.00 м2
Отделка:выполнена высококачественная отделка
2 800 000 в месяц
73 846 в год за м2
Позвонить Подробнее
Румянцево (3 мин. 🚶)
Москва, Поселение Московский, деревня Румянцево, Киевское шоссе, 1
Бизнес-парк «Румянцево»
Тип: Офисы
Площадь: 471.00 м2
Отделка:выполнена стандартная офисная отделка
667 250 в месяц
17 000 в год за м2
Позвонить Подробнее
Серпуховская (7 мин. 🚶)
Москва, Люсиновская улица, 36с1
Бизнес-центр "Glass House"
Тип: Офисы
Площадь: 550.00 м2
Отделка:выполнена стандартная офисная отделка
2 268 750 в месяц
49 500 в год за м2
Позвонить Подробнее
Серпуховская (6 мин. 🚶)
Москва, Большой Строченовский переулок, 7
Бизнес-центр «Велка»
Тип: Офисы
Площадь: 454.00 м2
Отделка:качественная отделка
1 600 000 в месяц
42 291 в год за м2
Позвонить Подробнее
Полянка (5 мин. 🚶)
Москва, улица Большая Якиманка, 17/2с1
Бизнес центр "улица Большая Якиманка, 17/2с1"
Тип: Офисы
Площадь: 467.00 м2
Отделка:выполнена стандартная офисная отделка
2 101 500 в месяц
54 000 в год за м2
Позвонить Подробнее
Чеховская (10 мин. 🚶)
Москва, Столешников переулок, 14
Бизнес-центр «Столешников 14»
Тип: Офисы
Площадь: 191.00 м2
Отделка:качественная отделка
800 000 в месяц
50 262 в год за м2
Позвонить Подробнее
Римская (10 мин. 🚶)
Москва, Волочаевская улица, 40Гс4
Особняк «Волочаевская 40с4»
Тип: Офисы
Площадь: 325.00 м2
Отделка:выполнена высококачественная отделка
1 337 000 в месяц
49 366 в год за м2
Позвонить Подробнее
Калужская (10 мин. 🚶)
Москва, Улица Бутлерова, 17
Бизнес-центр «NEO GEO»
Тип: Офисы
Площадь: 1315.60 м2
Отделка:выполнена высококачественная отделка
5 430 000 в месяц
49 529 в год за м2
Позвонить Подробнее
Цветной бульвар (4 мин. 🚶)
Москва, Цветной бульвар, 22с1
Бизнес-центр «Цветной 22 с1»
Тип: Офисы
Площадь: 474.00 м2
Отделка:выполнена стандартная офисная отделка
1 975 000 в месяц
50 000 в год за м2
Позвонить Подробнее
Кунцевская (20 мин. 🚗)
Москва, Верейская улица, 11
Бизнес-центр «Квадрат»
Тип: Офисы
Площадь: 312.00 м2
Отделка:выполнена стандартная офисная отделка
1 248 000 в месяц
48 000 в год за м2
Позвонить Подробнее
Марксистская (7 мин. 🚶)
Москва, Таганская улица, 17-23
Бизнес-центр «Мосэнка Парк Тауэрс 4»
Тип: Офисы
Площадь: 459.00 м2
Отделка:выполнена стандартная офисная отделка
1 913 265 в месяц
50 020 в год за м2
Позвонить Подробнее
Марксистская (7 мин. 🚶)
Москва, Таганская улица, 17-23
Бизнес-центр «Мосэнка Парк Тауэрс 4»
Тип: Офисы
Площадь: 112.00 м2
Отделка:выполнена стандартная офисная отделка
444 080 в месяц
47 580 в год за м2
Позвонить Подробнее
Марксистская (7 мин. 🚶)
Москва, Таганская улица, 17-23
Бизнес-центр «Мосэнка Парк Тауэрс 4»
Тип: Офисы
Площадь: 616.00 м2
Отделка:выполнена стандартная офисная отделка
2 567 693 в месяц
50 020 в год за м2
Позвонить Подробнее
Римская (2 мин. 🚶)
Москва, Бульвар Энтузиастов, 2
Бизнес-центр «Golden Gate»
Тип: Офисы
Площадь: 1572.00 м2
Отделка:качественная отделка
7 205 000 в месяц
55 000 в год за м2
Позвонить Подробнее
Римская (2 мин. 🚶)
Москва, Бульвар Энтузиастов, 2
Бизнес-центр «Golden Gate»
Тип: Офисы
Площадь: 786.00 м2
Отделка:качественная отделка
3 602 500 в месяц
55 000 в год за м2
Позвонить Подробнее
Полянка (5 мин. 🚶)
Москва, улица Большая Якиманка, 17/2с1
Бизнес центр "улица Большая Якиманка, 17/2с1"
Тип: Офисы
Площадь: 1012.00 м2
Отделка:выполнена стандартная офисная отделка
4 486 450 в месяц
53 199 в год за м2
Позвонить Подробнее
Серпуховская (7 мин. 🚶)
Москва, Люсиновская улица, 36с1
Бизнес-центр "Glass House"
Тип: Офисы
Площадь: 550.00 м2
Отделка:выполнена стандартная офисная отделка
2 268 750 в месяц
49 500 в год за м2
Позвонить Подробнее
Савёловская (5 мин. 🚶)
Москва, Улица Правды, 26
Бизнес-центр «Северное сияние»
Тип: Офисы
Площадь: 2279.00 м2
Отделка:выполнена стандартная офисная отделка
13 438 503 в месяц
70 760 в год за м2
Позвонить Подробнее
Савёловская (10 мин. 🚶)
Москва, Улица Двинцев, 12к1
Бизнес-центр «Двинцев»
Тип: Офисы
Площадь: 362.00 м2
Отделка:качественная отделка
2 003 338 в месяц
66 409 в год за м2
Позвонить Подробнее
Савёловская (10 мин. 🚶)
Москва, Улица Двинцев, 12к1
Бизнес-центр «Двинцев»
Тип: Офисы
Площадь: 683.00 м2
Отделка:качественная отделка
3 779 779 в месяц
66 409 в год за м2
Позвонить Подробнее
Савёловская (5 мин. 🚶)
Москва, Бумажный проезд, 19с4
БЦ STONE TOWERS
Тип: Офисы
Площадь: 70.00 м2
Отделка:выполнена высококачественная отделка
370 000 в месяц
63 429 в год за м2
Позвонить Подробнее
Савёловская (12 мин. 🚶)
Москва, Вятская улица, 35с4
Бизнес-центр «Вятка»
Тип: Офисы
Площадь: 951.00 м2
Отделка:выполнена стандартная офисная отделка
3 142 263 в месяц
39 650 в год за м2
Позвонить Подробнее
Савёловская (5 мин. 🚶)
Москва, Бумажный проезд, 19с4
БЦ STONE TOWERS
Тип: Офисы
Площадь: 280.00 м2
Отделка:качественная отделка
1 633 334 в месяц
70 000 в год за м2
Позвонить Подробнее
Савёловская (7 мин. 🚶)
Москва, Вятская улица, 27
Бизнес-парк «Фактория»
Тип: Офисы
Площадь: 245.30 м2
Отделка:отделка арендатора
932 140 в месяц
45 600 в год за м2
Позвонить Подробнее
Савёловская (5 мин. 🚶)
Москва, Улица Правды, 26
Бизнес-центр «Северное сияние»
Тип: Офисы
Площадь: 1287.00 м2
Отделка:отделка арендатора
6 803 940 в месяц
63 440 в год за м2
Позвонить Подробнее
Савёловская (5 мин. 🚶)
Москва, Улица Правды, 26
Бизнес-центр «Северное сияние»
Тип: Офисы
Площадь: 2290.00 м2
Отделка:выполнена высококачественная отделка
10 476 750 в месяц
54 900 в год за м2
Позвонить Подробнее
Савёловская (10 мин. 🚶)
Москва, Улица Двинцев, 12к1
Бизнес-центр «Двинцев»
Тип: Офисы
Площадь: 903.00 м2
Отделка:качественная отделка
4 997 277 в месяц
66 409 в год за м2
Позвонить Подробнее
Савёловская (5 мин. 🚶)
Москва, Бумажный проезд, 19с4
БЦ STONE TOWERS
Тип: Офисы
Площадь: 143.00 м2
Отделка:Shell and Core
540 000 в месяц
45 315 в год за м2
Позвонить Подробнее
Савёловская (12 мин. 🚶)
Москва, Вятская улица, 35с4
Бизнес-центр «Вятка»
Тип: Офисы
Площадь: 990.00 м2
Отделка:выполнена стандартная офисная отделка
3 271 125 в месяц
39 650 в год за м2
Позвонить Подробнее