Аренда торгового помещения МФК «Город Столиц»

Аренда торгового помещения МФК «Город Столиц» Аренда торгового помещения МФК «Город Столиц»
Аренда торгового помещения МФК «Город Столиц» - превью Аренда торгового помещения МФК «Город Столиц» - превью
Москва, Пресненская набережная, 8с1
Позвоните по телефону +7 495 230-28-26, либо оставьте заявку на просмотр прямо сейчас и узнайте условия специального предложения по объекту.
загрузка карты...
Аренда в год за м2 330 275 ₽
Аренда в месяц 600 000 ₽
Схема сделки прямая аренда
Общие
ID 63090
Тип сделки Аренда
Площадь 21.80
Площадь всего 288680.00
Тип объекта Многофункциональный комплекс
Класс здания A
Этаж 1
Всего этажей в здании 73
Метраж по этажам
Информация об объекте
Состояние объекта рабочее
Состояние блока отделка арендатора
Планировка Открытая
Коммуникации Система пожаротушения,Система видеонаблюдения,Бесперебойное питание,Интернет,Телефония
Лифт пассажирский 40
Перекрытия Железобетонные
Парковка платная
Отопление Центральное
Вентиляция и кондиционирование Современная система вентиляции и кондиционирования
КПП Гостевой пропуск
Торговая недвижимость
Линия домов 1 линия
Возможности Витрины,Место для рекламы,Проходное место,Проездное место
Электр. мощность (кВт) 10
Коммерческие условия
Аренда в год за м2 330 275 ₽
Аренда в месяц 600 000 ₽
Схема сделки прямая аренда
Тип собственника Физическое лицо

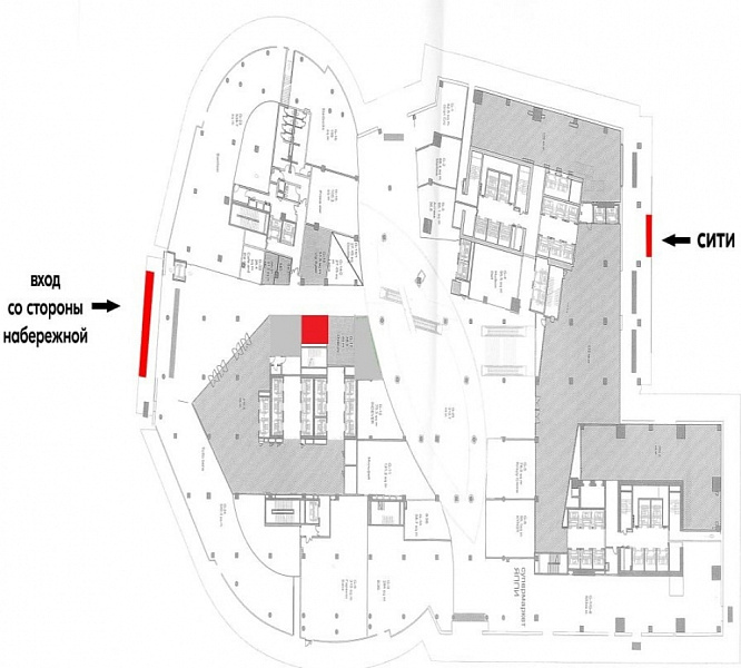
Описание объекта
Ваша точка притяжения в самом сердце Москва-Сити
Предлагаем в аренду ключевую торговую площадь 21.8 м² на первом этаже башни «Город Столиц». Это не просто помещение — это прямой доступ к многотысячному потоку платежеспособной аудитории: сотрудникам офисов, жителям и гостям делового центра.

Почему это уникальное предложение:

Локация-бестселлер: Первая линия в башне «Москва» (МФК «Город Столиц»). Ваши будущие клиенты уже здесь.

Максимальный трафик: Ежедневная проходимость гарантирует высокую видимость вашего бизнеса без дополнительных затрат на привлечение.

Полная готовность: Помещение с качественным ремонтом, высокими потолками (4 м) и всеми централизованными коммуникациями (отопление, кондиционирование, вода).

Гибкие условия для старта: Прямая аренда от собственника без комиссии, с предоставлением арендных каникул (1 месяц) на запуск.

Идеальная синергия: Удачное соседство с кофейнями, ресторанами и салонами создаёт готовую потребительскую экосистему.

Идеально для:
Премиального ритейла (ювелирные изделия, аксессуары, гастрономия)
Популярного фастфуда, кофейни или бара
Аптеки или сервисного центра для жителей и гостей Сити

Другого бизнеса, где важны статус и проходимость

Эксплуатационные расходы в ставку не входят. Оплачиваются отдельно, согласно тарифам Управляющей компании (УК).

Инженерные системы  Отопление, кондиционирование — централизованные. Водоснабжение: ХВС, ГВС. Канализация: хоз.-бытовая. Вентиляция: общеобменная.

Нужна консультация по подбору торговых площадей для аренды?

Наши специалисты подберут для вас самые выгодные варианты для долгосрочного инвестирования,
помогут в сопровождении и сделки, проверят все юридические вопросы касаемо приобретения недвижимости.

* Нажимая на кнопку «Отправить», Вы даете согласие на обработку персональных данных в соответствии с Политикой конфиденциальности

Похожие объекты

Смоленская (Филевская) Смоленская (Арбатско-Покровская) (2 мин. 🚶)
Москва, Карманицкий переулок, 9
БЦ Арбат
Тип: Торговое помещение
Площадь: 22.30 м2
620 000 в месяц
333 632 в год за м2
Позвонить Подробнее
Щёлковская (8 мин. 🚶)
Москва, Уральская улица, 5А
Административное здание "Уральская улица, 5А"
Тип: Торговое помещение
Площадь: 21.00 м2
180 000 в месяц
102 857 в год за м2
Позвонить Подробнее

Спец. предложение

Китай-город (10 мин. 🚶)
Москва, Улица Покровка, 8
Особняк «Покровка 8»
Тип: Торговое помещение
Площадь: 20.00 м2
Мощность:15 кВт
311 850 в месяц
187 110 в год за м2
Позвонить Подробнее
Войковская (10 мин. 🚗)
Москва, улица Зои и Александра Космодемьянских, 35/1
Жилое здание "ул. Зои и Александра Космодемьянских, 35/1"
Тип: Торговое помещение
Площадь: 122.00 м2
Мощность:25 кВт
3 558 333 в месяц
350 000 в год за м2
Позвонить Подробнее
Театральная (3 мин. 🚶)
Москва, Театральный проезд, 2
«Метрополь»
Тип: Торговое помещение
Площадь: 182.60 м2
Мощность:50 кВт
4 641 000 в месяц
304 995 в год за м2
Позвонить Подробнее
Смоленская (Филевская) Смоленская (Арбатско-Покровская) (2 мин. 🚶)
Москва, Карманицкий переулок, 9
БЦ Арбат
Тип: Торговое помещение
Площадь: 22.30 м2
620 000 в месяц
333 632 в год за м2
Позвонить Подробнее
Алексеевская
Москва, проспект Мира, 97
Жилое здание "проспект Мира, 97"
Тип: Торговое помещение
Площадь: 18.00 м2
500 000 в месяц
333 333 в год за м2
Позвонить Подробнее
Алексеевская
Москва, проспект Мира, 97
Жилое здание "проспект Мира, 97"
Тип: Торговое помещение
Площадь: 12.00 м2
300 000 в месяц
300 000 в год за м2
Позвонить Подробнее
Деловой центр Деловой центр (МЦК) (5 мин. 🚶)
Москва, Пресненская набережная, 8с1
МФК «Город Столиц»
Тип: Торговое помещение
Площадь: 41.90 м2
Мощность:11 кВт
1 100 000 в месяц
315 036 в год за м2
Позвонить Подробнее
Китай-город (1 мин. 🚶)
Москва, улица Солянка, 2/6с1
Административное здание "Солянка, 2/6с1"
Тип: Торговое помещение
Площадь: 24.30 м2
700 000 в месяц
345 679 в год за м2
Позвонить Подробнее
Тушинская (1 мин. 🚶)
Москва, Тушинская улица, 24с15
ОСЗ "Тушинская, 24с15"
Тип: Торговое помещение
Площадь: 11.20 м2
300 000 в месяц
321 429 в год за м2
Позвонить Подробнее
Китай-город (3 мин. 🚶)
Москва, Улица Солянка, 2/6
Особняк «Солянка 2/6»
Тип: Торговое помещение
Площадь: 24.30 м2
700 000 в месяц
345 679 в год за м2
Позвонить Подробнее
Деловой центр Деловой центр (МЦК) (7 мин. 🚶)
Москва, Пресненская набережная, 12
Москва-Сити «Башня Федерация»
Тип: Торговое помещение
Площадь: 11.70 м2
Мощность:5 кВт
157 014 в месяц
161 040 в год за м2
Позвонить Подробнее
Деловой центр Деловой центр (МЦК) (7 мин. 🚶)
Москва, Пресненская набережная, 12
Москва-Сити «Башня Федерация»
Тип: Торговое помещение
Площадь: 92.00 м2
Мощность:25 кВт
617 320 в месяц
80 520 в год за м2
Позвонить Подробнее
Деловой центр Деловой центр (МЦК) (7 мин. 🚶)
Москва, Пресненская набережная, 12
Москва-Сити «Башня Федерация»
Тип: Торговое помещение
Площадь: 52.30 м2
Мощность:26 кВт
414 739 в месяц
95 160 в год за м2
Позвонить Подробнее
Деловой центр Деловой центр (МЦК) (5 мин. 🚶)
Москва, Пресненская набережная, 8с1
МФК «Город Столиц»
Тип: Торговое помещение
Площадь: 41.90 м2
Мощность:11 кВт
1 100 000 в месяц
315 036 в год за м2
Позвонить Подробнее