Аренда торгового помещения МФК «Город Столиц»

Аренда торгового помещения МФК «Город Столиц» Аренда торгового помещения МФК «Город Столиц»
Аренда торгового помещения МФК «Город Столиц» - превью Аренда торгового помещения МФК «Город Столиц» - превью
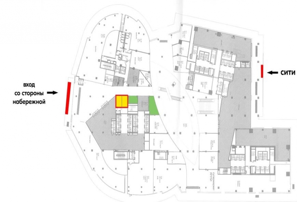
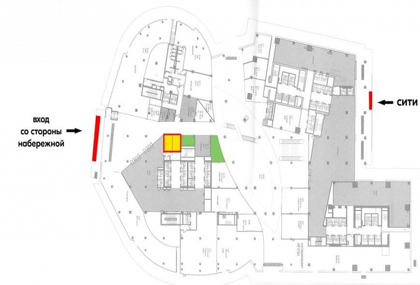
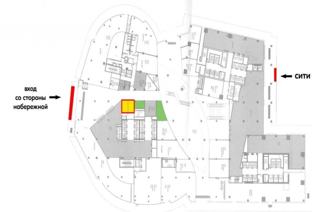
Москва, Пресненская набережная, 8с1
Позвоните по телефону +7 495 230-28-26, либо оставьте заявку на просмотр прямо сейчас и узнайте условия специального предложения по объекту.
загрузка карты...
Аренда в год за м2 315 036 ₽
Аренда в месяц 1 100 000 ₽
Схема сделки прямая аренда
Общие
ID 63122
Тип сделки Аренда
Площадь 41.90
Площадь всего 288680.00
Тип объекта Многофункциональный комплекс
Класс здания A
Этаж 1
Всего этажей в здании 73
Метраж по этажам
Информация об объекте
Состояние объекта рабочее
Состояние блока отделка арендатора
Планировка Открытая
Коммуникации Система пожаротушения,Система видеонаблюдения,Бесперебойное питание,Интернет,Телефония
Лифт пассажирский 40
Перекрытия Железобетонные
Парковка Парковка Сити
Отопление Центральное
Вентиляция и кондиционирование Современная система вентиляции и кондиционирования
КПП Гостевой пропуск
Торговая недвижимость
Линия домов 1 линия
Возможности Витрины,Место для рекламы,Проходное место,Проездное место
Электр. мощность (кВт) 11
Коммерческие условия
Аренда в год за м2 315 036 ₽
Аренда в месяц 1 100 000 ₽
Схема сделки прямая аренда
Тип собственника Физическое лицо

Описание объекта
Готовое помещение 41,9 м² с ремонтом и всеми коммуникациями в башне «Город Столиц». Прямая аренда от собственника на выгодных условиях без комиссий и с льготным периодом для старта. Сердце бизнеса в Москва-Сити: ваша точка присутствия премиум-класса. Вход общий с улицы
Отопление, кондиционирование — централизованные (фанкойл). Водоснабжение: ХВС, ГВС. Канализация: хоз.-бытовая. Вентиляция: общеобменная.

Нужна консультация по подбору торговых площадей для аренды?

Наши специалисты подберут для вас самые выгодные варианты для долгосрочного инвестирования,
помогут в сопровождении и сделки, проверят все юридические вопросы касаемо приобретения недвижимости.

* Нажимая на кнопку «Отправить», Вы даете согласие на обработку персональных данных в соответствии с Политикой конфиденциальности

Похожие объекты

Мичуринский проспект (20 мин. 🚶)
Москва, Озёрная улица, 1к2/4
Level Мичуринский
Тип: Торговое помещение
Площадь: 40.00 м2
370 000 в месяц
111 000 в год за м2
Позвонить Подробнее
Трубная (3 мин. 🚶)
Москва, Рождественский бульвар, 5/7с1
Жилое здание «Рождественский 5/7 с1»
Тип: Торговое помещение
Площадь: 45.00 м2
Мощность:15 кВт
450 000 в месяц
120 000 в год за м2
Позвонить Подробнее
Деловой центр Деловой центр (МЦК) (7 мин. 🚶)
Москва, Пресненская набережная, 12
Москва-Сити «Башня Федерация»
Тип: Торговое помещение
Площадь: 44.50 м2
Мощность:50 кВт
325 740 в месяц
87 840 в год за м2
Позвонить Подробнее
(8 мин. 🚶)
Москва, 1-я улица Бухвостова, 2к3
ЖК "Преображенская площадь"
Тип: Торговое помещение
Площадь: 43.83 м2
Мощность:12 кВт
223 500 в месяц
61 191 в год за м2
Позвонить Подробнее
Кунцевская (10 мин. 🚶)
Москва, Молдавская улица, 1с8
Бизнес-центр "Upside Кунцево"
Тип: Торговое помещение
Площадь: 43.50 м2
Мощность:5 кВт
286 818 в месяц
79 122 в год за м2
Позвонить Подробнее
Водный стадион (3 мин. 🚶)
Москва, Головинское шоссе, 3
БЦ "Флагман"
Тип: Торговое помещение
Площадь: 45.00 м2
Мощность:60 кВт
270 000 в месяц
72 000 в год за м2
Позвонить Подробнее
Савёловская (8 мин. 🚶)
Закрытая продажа #61311
Тип: Торговое помещение
Площадь: 40.00 м2
178 000 в месяц
53 400 в год за м2
Позвонить Подробнее
Октябрьское Поле (1 мин. 🚶)
Москва, улица Маршала Бирюзова, 16
Жилое здание
Тип: Торговое помещение
Площадь: 43.60 м2
750 000 в месяц
206 422 в год за м2
Позвонить Подробнее
ЗИЛ (15 мин. 🚶)
Москва, улица Петра Кончаловского, 5
ЖК "Шагал"
Тип: Торговое помещение
Площадь: 40.00 м2
200 000 в месяц
60 000 в год за м2
Позвонить Подробнее
Октябрьская (9 мин. 🚶)
Москва, Калужская площадь, 1к1
Торговый-центр "Европа"
Тип: Торговое помещение
Площадь: 38.10 м2
425 000 в месяц
133 858 в год за м2
Позвонить Подробнее
Молодёжная (1 мин. 🚶)
Москва, Ярцевская улица, 27к1
Жилой дом "Ярцевская 27к1"
Тип: Торговое помещение
Площадь: 40.90 м2
480 000 в месяц
140 831 в год за м2
Позвонить Подробнее
Молодёжная (1 мин. 🚶)
Москва, Ярцевская улица, 27к1
Жилой дом "Ярцевская 27к1"
Тип: Торговое помещение
Площадь: 37.20 м2
480 000 в месяц
154 839 в год за м2
Позвонить Подробнее
Деловой центр Деловой центр (МЦК) (5 мин. 🚶)
Москва, Пресненская набережная, 8с1
МФК «Город Столиц»
Тип: Торговое помещение
Площадь: 21.80 м2
Мощность:10 кВт
600 000 в месяц
330 275 в год за м2
Позвонить Подробнее
Китай-город (1 мин. 🚶)
Москва, улица Солянка, 2/6с1
Административное здание "Солянка, 2/6с1"
Тип: Торговое помещение
Площадь: 24.30 м2
700 000 в месяц
345 679 в год за м2
Позвонить Подробнее
Алексеевская
Москва, проспект Мира, 97
Жилое здание "проспект Мира, 97"
Тип: Торговое помещение
Площадь: 18.00 м2
500 000 в месяц
333 333 в год за м2
Позвонить Подробнее
Алексеевская
Москва, проспект Мира, 97
Жилое здание "проспект Мира, 97"
Тип: Торговое помещение
Площадь: 12.00 м2
300 000 в месяц
300 000 в год за м2
Позвонить Подробнее
Тушинская (1 мин. 🚶)
Москва, Тушинская улица, 24с15
ОСЗ "Тушинская, 24с15"
Тип: Торговое помещение
Площадь: 11.20 м2
300 000 в месяц
321 429 в год за м2
Позвонить Подробнее
Китай-город (3 мин. 🚶)
Москва, Улица Солянка, 2/6
Особняк «Солянка 2/6»
Тип: Торговое помещение
Площадь: 24.30 м2
700 000 в месяц
345 679 в год за м2
Позвонить Подробнее
Кропоткинская (1 мин. 🚶)
Москва, Гоголевский бульвар, 3
Особняк «Гоголевский 3»
Тип: Торговое помещение
Площадь: 101.70 м2
Мощность:15 кВт
2 500 000 в месяц
294 985 в год за м2
Позвонить Подробнее
Деловой центр Деловой центр (МЦК) (5 мин. 🚶)
Москва, Пресненская набережная, 8с1
МФК «Город Столиц»
Тип: Торговое помещение
Площадь: 21.80 м2
Мощность:10 кВт
600 000 в месяц
330 275 в год за м2
Позвонить Подробнее
Деловой центр Деловой центр (МЦК) (7 мин. 🚶)
Москва, Пресненская набережная, 12
Москва-Сити «Башня Федерация»
Тип: Торговое помещение
Площадь: 11.70 м2
199 836 в месяц
204 960 в год за м2
Позвонить Подробнее
Деловой центр Деловой центр (МЦК) (7 мин. 🚶)
Москва, Пресненская набережная, 12
Москва-Сити «Башня Федерация»
Тип: Торговое помещение
Площадь: 92.00 м2
Мощность:70 кВт
673 440 в месяц
87 840 в год за м2
Позвонить Подробнее
Деловой центр Деловой центр (МЦК) (7 мин. 🚶)
Москва, Пресненская набережная, 12
Москва-Сити «Башня Федерация»
Тип: Торговое помещение
Площадь: 24.70 м2
Мощность:70 кВт
195 871 в месяц
95 160 в год за м2
Позвонить Подробнее
Деловой центр Деловой центр (МЦК) (7 мин. 🚶)
Москва, Пресненская набережная, 12
Москва-Сити «Башня Федерация»
Тип: Торговое помещение
Площадь: 52.00 м2
Мощность:40 кВт
414 739 в месяц
95 709 в год за м2
Позвонить Подробнее
Деловой центр Деловой центр (МЦК) (7 мин. 🚶)
Москва, Пресненская набережная, 12
Москва-Сити «Башня Федерация»
Тип: Торговое помещение
Площадь: 44.50 м2
Мощность:50 кВт
325 740 в месяц
87 840 в год за м2
Позвонить Подробнее