Аренда офиса Бизнес-центр «NOVO» (ново)

Объект успешно реализован!
Аренда офиса Бизнес-центр «NOVO» (ново) Аренда офиса Бизнес-центр «NOVO» (ново) Аренда офиса Бизнес-центр «NOVO» (ново) Аренда офиса Бизнес-центр «NOVO» (ново) Аренда офиса Бизнес-центр «NOVO» (ново)
Аренда офиса Бизнес-центр «NOVO» (ново) - превью Аренда офиса Бизнес-центр «NOVO» (ново) - превью Аренда офиса Бизнес-центр «NOVO» (ново) - превью Аренда офиса Бизнес-центр «NOVO» (ново) - превью Аренда офиса Бизнес-центр «NOVO» (ново) - превью
Москва, Улица Сущёвский Вал, 18
Объект успешно реализован, но у нас есть много других интересных предложений. Позвоните по телефону +7 495 230-28-26, либо оставьте заявку на подбор прямо сейчас и получите список подходящих для вас объектов.
загрузка карты...
Аренда в год за м2 65 000 ₽
Аренда в месяц 1 977 084 ₽
Схема сделки прямая аренда
Общие
ID 63380
Тип сделки Аренда
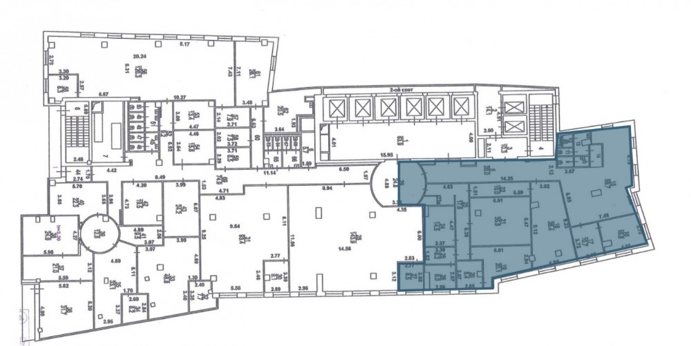
Площадь 365.00
Площадь всего 37950.00
Тип объекта Бизнес-центр
Класс здания A
Этаж 10
Всего этажей в здании 22
Метраж по этажам
Информация об объекте
Состояние объекта рабочее
Состояние блока выполнена высококачественная отделка
Планировка Залы и кабинеты
Коммуникации Система пожаротушения,Система видеонаблюдения,Интернет,Телефония
Лифт пассажирский 5
Перекрытия Железобетонные
Парковка - механизированная - 8 000,00 руб., в т.ч. НДС 20%; - немеханизированная - 15 000,00 руб., в т.ч. НДС 20%; - улица (гостевая) - 12 000,00 руб., в т.ч. НДС 20%.
Отопление Центральное
Вентиляция и кондиционирование Современная система вентиляции и кондиционирования
КПП Гостевой пропуск
Торговая недвижимость
Линия домов 1 линия
Возможности Витрины,Место для рекламы,Проходное место,Проездное место
Коммерческие условия
Аренда в год за м2 65 000 ₽
Аренда в месяц 1 977 084 ₽
Схема сделки прямая аренда
Тип собственника Юридическое лицо

Описание объекта
Предлагается в аренду офис в БЦ «Новосущевский» - стильное 22-этажное офисное здание, расположенное в одном из самых развивающихся бизнес-районов Москвы в Белорусско-Савеловском субрынке.  Арендаторы выбирают бизнес-центр за удобное расположение, современные инженерные системы, большой паркинг и эффективные планировки этажей. Необычные архитектурные решения, панорамное остекление и система подсветки сделали бизнес-центр доминантой района.

Ставка аренды включает НДС. Коммунальные услуги и электричество оплачиваются отдельно.  Дополнительная опция: возможность арендовать помещение с мебелью.
Готово к заезду - май 2026 года.

Нужна консультация по подбору помещения под офис?

Наши специалисты подберут для вас самые выгодные варианты для долгосрочного инвестирования,
помогут в сопровождении и сделки, проверят все юридические вопросы касаемо приобретения недвижимости.

* Нажимая на кнопку «Отправить», Вы даете согласие на обработку персональных данных в соответствии с Политикой конфиденциальности

Похожие объекты

Китай-город (7 мин. 🚶)
Москва, Подкопаевский переулок, 4
Бизнес-центр «Ивановская горка»
Тип: Офисы
Площадь: 364.00 м2
Отделка:качественная отделка
1 986 833 в месяц
65 500 в год за м2
Позвонить Подробнее
Белорусская (11 мин. 🚶)
Москва, Лесная улица, 43
Бизнес-центр «Лесная 43»
Тип: Офисы
Площадь: 400.00 м2
Отделка:качественная отделка
2 166 667 в месяц
65 000 в год за м2
Позвонить Подробнее
Савёловская (10 мин. 🚶)
Москва, Улица Двинцев, 12к1
Бизнес-центр «Двинцев»
Тип: Офисы
Площадь: 362.00 м2
Отделка:качественная отделка
2 003 338 в месяц
66 409 в год за м2
Позвонить Подробнее
Медведково (16 мин. 🚗)
Московская область, Мытищи, улица Колпакова, 46А
Бизнес-центр "Мытищи, улица Колпакова, 46А"
Тип: Офисы
Площадь: 400.00 м2
Отделка:требуется косметический ремонт
540 000 в месяц
16 200 в год за м2
Позвонить Подробнее
Арбатская (Филевская) Арбатская (Арбатско-Покровская) (3 мин. 🚶)
Москва, Улица Арбат, 10
Торгово-офисный комплекс "Midland Plaza"
Тип: Офисы
Площадь: 341.00 м2
Отделка:выполнена стандартная офисная отделка
1 980 000 в месяц
69 677 в год за м2
Позвонить Подробнее
Молодёжная (5 мин. 🚶)
Москва, Ярцевская улица, 19
Бизнес-центр «Кунцево Плаза»
Тип: Офисы
Площадь: 400.00 м2
Отделка:качественная отделка
2 724 667 в месяц
81 740 в год за м2
Позвонить Подробнее
Сухаревская (6 мин. 🚶)
Москва, Последний переулок, 19
Бизнес-центр «Сретенка Комплекс»
Тип: Офисы
Площадь: 351.00 м2
Отделка:выполнена стандартная офисная отделка
2 034 045 в месяц
69 540 в год за м2
Позвонить Подробнее
ЦСКА (5 мин. 🚶)
Москва, Улица Авиаконструктора Микояна, 12
Бизнес-центр «Линкор»
Тип: Офисы
Площадь: 373.00 м2
Отделка:выполнена стандартная офисная отделка
1 175 572 в месяц
37 820 в год за м2
Позвонить Подробнее
Фрунзенская (5 мин. 🚶)
Москва, Улица Россолимо, 17с1
Технопарк "Россолимо"
Тип: Офисы
Площадь: 377.40 м2
Отделка:требуется косметический ремонт
1 258 000 в месяц
40 000 в год за м2
Позвонить Подробнее
Тульская (2 мин. 🚶)
Москва, Гамсоновский переулок, 2с11
Бизнес-центр "Рябовская мануфактура" Ryabov LOFT
Тип: Офисы
Площадь: 337.47 м2
Отделка:выполнена высококачественная отделка
1 462 370 в месяц
52 000 в год за м2
Позвонить Подробнее
Кропоткинская (6 мин. 🚶)
Москва, Пожарский переулок, 15
Бизнес-центр «Депо»
Тип: Офисы
Площадь: 338.00 м2
Отделка:качественная отделка
1 947 162 в месяц
69 130 в год за м2
Позвонить Подробнее
Киевская (5 мин. 🚶)
Москва, Брянская улица, 5
Бизнес-центр "Европа Билдинг"
Тип: Офисы
Площадь: 400.00 м2
Отделка:выполнена стандартная офисная отделка
1 800 000 в месяц
54 000 в год за м2
Позвонить Подробнее
Китай-город (7 мин. 🚶)
Москва, Подкопаевский переулок, 4
Бизнес-центр «Ивановская горка»
Тип: Офисы
Площадь: 364.00 м2
Отделка:качественная отделка
1 986 833 в месяц
65 500 в год за м2
Позвонить Подробнее
Деловой центр Деловой центр (МЦК) (2 мин. 🚶)
Москва, Пресненская набережная, 6с2
Москва-Сити "Башня Империя"
Тип: Офисы
Площадь: 221.00 м2
Отделка:качественная отделка
1 200 000 в месяц
65 158 в год за м2
Позвонить Подробнее
Деловой центр Деловой центр (МЦК) (2 мин. 🚶)
Москва, Пресненская набережная, 6с2
Москва-Сити "Башня Империя"
Тип: Офисы
Площадь: 196.00 м2
Отделка:Shell and Core
1 100 000 в месяц
67 347 в год за м2
Позвонить Подробнее
Белорусская (11 мин. 🚶)
Москва, Лесная улица, 43
Бизнес-центр «Лесная 43»
Тип: Офисы
Площадь: 400.00 м2
Отделка:качественная отделка
2 166 667 в месяц
65 000 в год за м2
Позвонить Подробнее
Белорусская (11 мин. 🚶)
Москва, Лесная улица, 43
Бизнес-центр «Лесная 43»
Тип: Офисы
Площадь: 185.00 м2
Отделка:выполнена стандартная офисная отделка
1 002 084 в месяц
65 000 в год за м2
Позвонить Подробнее
Белорусская (11 мин. 🚶)
Москва, Лесная улица, 43
Бизнес-центр «Лесная 43»
Тип: Офисы
Площадь: 550.00 м2
Отделка:качественная отделка
2 841 667 в месяц
62 000 в год за м2
Позвонить Подробнее
Белорусская (11 мин. 🚶)
Москва, Лесная улица, 43
Бизнес-центр «Лесная 43»
Тип: Офисы
Площадь: 800.00 м2
Отделка:выполнена стандартная офисная отделка
3 993 334 в месяц
59 900 в год за м2
Позвонить Подробнее
Савёловская (5 мин. 🚶)
Москва, Улица Правды, 26
Бизнес-центр «Северное сияние»
Тип: Офисы
Площадь: 2279.00 м2
Отделка:выполнена стандартная офисная отделка
13 438 503 в месяц
70 760 в год за м2
Позвонить Подробнее
Спортивная (2 мин. 🚶)
Москва, улица Усачёва, 62
МФК Arkenston
Тип: Офисы
Площадь: 324.50 м2
Отделка:отделка в стиле Loft
1 757 708 в месяц
65 000 в год за м2
Позвонить Подробнее
Марьина Роща (14 мин. 🚶)
Москва, Улица Сущёвский Вал, 18
Бизнес-центр «NOVO» (ново)
Тип: Офисы
Площадь: 1312.00 м2
Отделка:выполнена высококачественная отделка
6 560 000 в месяц
60 000 в год за м2
Позвонить Подробнее
Савёловская (10 мин. 🚶)
Москва, Улица Двинцев, 12к1
Бизнес-центр «Двинцев»
Тип: Офисы
Площадь: 362.00 м2
Отделка:качественная отделка
2 003 338 в месяц
66 409 в год за м2
Позвонить Подробнее
Савёловская (10 мин. 🚶)
Москва, Улица Двинцев, 12к1
Бизнес-центр «Двинцев»
Тип: Офисы
Площадь: 683.00 м2
Отделка:качественная отделка
3 779 779 в месяц
66 409 в год за м2
Позвонить Подробнее
Марьина Роща (11 мин. 🚶)
Москва, Октябрьская улица, 80
Административное здание «Октябрьская 80»
Тип: Офисы
Площадь: 313.50 м2
Отделка:отделка арендатора
782 500 в месяц
29 952 в год за м2
Позвонить Подробнее
Марьина Роща (11 мин. 🚶)
Москва, Октябрьская улица, 80с1
Административное здание "Октябрьская улица, 80с1"
Тип: Офисы
Площадь: 566.00 м2
Отделка:отделка арендатора
1 415 000 в месяц
30 000 в год за м2
Позвонить Подробнее
Марьина Роща (11 мин. 🚶)
Москва, Октябрьская улица, 80с3
Административное здание "Октябрьская улица, 80с3"
Тип: Офисы
Площадь: 761.00 м2
Отделка:отделка арендатора
1 902 500 в месяц
30 000 в год за м2
Позвонить Подробнее
Марьина Роща (12 мин. 🚶)
Москва, Полковая улица, 3
Бизнес-центр «Офис-парк Шереметьевский»
Тип: Офисы
Площадь: 830.00 м2
Отделка:выполнена стандартная офисная отделка
1 798 333 в месяц
26 000 в год за м2
Позвонить Подробнее
Марьина Роща (14 мин. 🚶)
Москва, Улица Сущёвский Вал, 18
Бизнес-центр «NOVO» (ново)
Тип: Офисы
Площадь: 1312.00 м2
Отделка:выполнена высококачественная отделка
6 560 000 в месяц
60 000 в год за м2
Позвонить Подробнее
Марьина Роща (12 мин. 🚶)
Москва, Полковая улица, 3
Бизнес-центр «Офис-парк Шереметьевский»
Тип: Офисы
Площадь: 600.00 м2
Отделка:выполнена стандартная офисная отделка
1 300 000 в месяц
26 000 в год за м2
Позвонить Подробнее
Марьина Роща (13 мин. 🚶)
Москва, улица Сущёвский Вал, 16с3
Бизнес-парк «Минаевский»
Тип: Офисы
Площадь: 264.00 м2
Отделка:выполнена стандартная офисная отделка
575 000 в месяц
26 136 в год за м2
Позвонить Подробнее
Марьина Роща (14 мин. 🚶)
Москва, Улица Сущёвский Вал, 18
Бизнес-центр «NOVO» (ново)
Тип: Офисы
Площадь: 1495.00 м2
Отделка:качественная отделка
6 852 084 в месяц
55 000 в год за м2
Позвонить Подробнее
Марьина Роща (14 мин. 🚶)
Москва, Улица Сущёвский Вал, 18
Бизнес-центр «NOVO» (ново)
Тип: Офисы
Площадь: 500.00 м2
Отделка:качественная отделка
2 375 000 в месяц
57 000 в год за м2
Позвонить Подробнее
Марьина Роща (14 мин. 🚶)
Москва, Улица Сущёвский Вал, 18
Бизнес-центр «NOVO» (ново)
Тип: Офисы
Площадь: 1497.00 м2
Отделка:выполнена стандартная офисная отделка
5 613 750 в месяц
45 000 в год за м2
Позвонить Подробнее
Марьина Роща (14 мин. 🚶)
Москва, Улица Сущёвский Вал, 18
Бизнес-центр «NOVO» (ново)
Тип: Офисы
Площадь: 1300.00 м2
Отделка:качественная отделка
5 958 334 в месяц
55 000 в год за м2
Позвонить Подробнее