Аренда офиса Бизнес центр "улица Большая Якиманка, 17/2с1"

Аренда офиса Бизнес центр Аренда офиса Бизнес центр Аренда офиса Бизнес центр
Аренда офиса Бизнес центр Аренда офиса Бизнес центр Аренда офиса Бизнес центр
Москва, улица Большая Якиманка, 17/2с1
Позвоните по телефону +7 495 230-28-26, либо оставьте заявку на просмотр прямо сейчас и узнайте условия специального предложения по объекту.
загрузка карты...
Аренда в год за м2 54 000 ₽
Аренда в месяц 1 138 500 ₽
Схема сделки прямая аренда
Первушина Марина Алексеевна

Объект ведет консультант:

Первушина Марина Алексеевна

Общие
ID 63561
Тип сделки Аренда
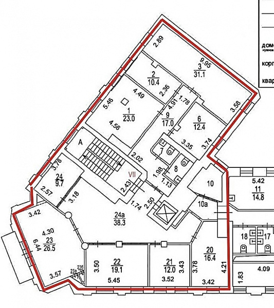
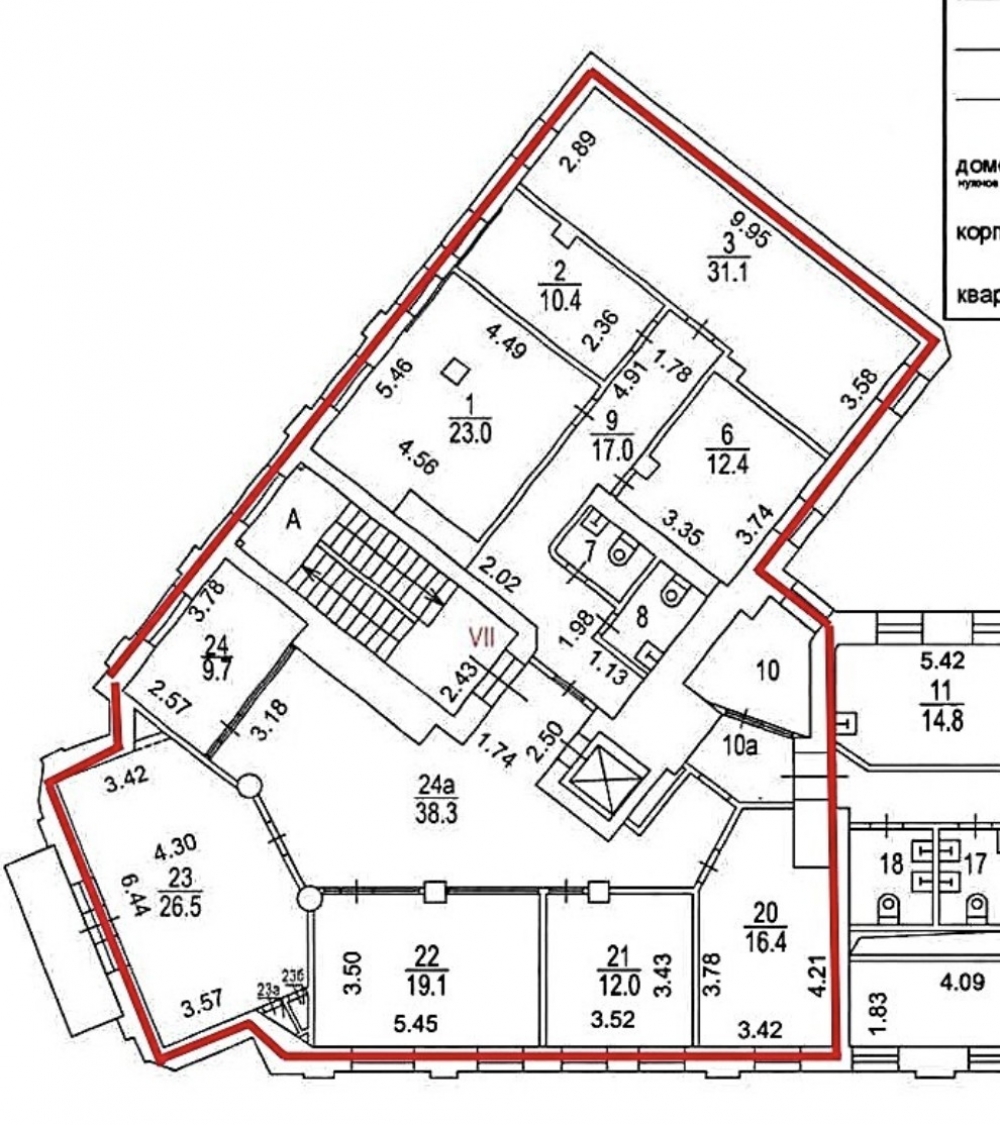
Площадь 253.00
Площадь всего 2997.00
Тип объекта Бизнес-центр
Класс здания B
Этаж 3
Всего этажей в здании 5
Метраж по этажам
Информация об объекте
Состояние объекта рабочее
Состояние блока выполнена стандартная офисная отделка
Планировка Залы и кабинеты
Перекрытия Железобетонные
Парковка городская
Коммерческие условия
Аренда в год за м2 54 000 ₽
Аренда в месяц 1 138 500 ₽
Схема сделки прямая аренда
Тип собственника Юридическое лицо

Описание объекта
Предлагаем в аренду офис в бизнес-центре класса В+ на Якиманке. 3 минуты пешком до м.Полянка.
Офис расположен на 3 этаже, есть лифт, стандартный офисный ремонт, смешаннаяя планировка, свои с/у. Установлена приточно-вытяжная вентиляция, кондиционирование.
Офис сдается без мебели.
Парковка городская.
Офис свободен к заезду.

Нужна консультация по подбору помещения под офис?

Наши специалисты подберут для вас самые выгодные варианты для долгосрочного инвестирования,
помогут в сопровождении и сделки, проверят все юридические вопросы касаемо приобретения недвижимости.

* Нажимая на кнопку «Отправить», Вы даете согласие на обработку персональных данных в соответствии с Политикой конфиденциальности

Похожие объекты

Кутузовская (10 мин. 🚶)
Москва, Поклонная улица, 3
Деловой комплекс «Poklonka Place»
Тип: Офисы
Площадь: 276.00 м2
Отделка:выполнена стандартная офисная отделка
1 262 240 в месяц
54 880 в год за м2
Позвонить Подробнее
Чкаловская (4 мин. 🚶)
Москва, Подсосенский переулок, 23с6
БЦ "Подсосенский 23"
Тип: Офисы
Площадь: 241.00 м2
Отделка:выполнена стандартная офисная отделка
500 000 в месяц
24 896 в год за м2
Позвонить Подробнее
Серпуховская (7 мин. 🚶)
Москва, Люсиновская улица, 36с1
Бизнес-центр "Glass House"
Тип: Офисы
Площадь: 274.20 м2
Отделка:выполнена высококачественная отделка
1 131 075 в месяц
49 500 в год за м2
Позвонить Подробнее
Павелецкая (9 мин. 🚶)
Москва, Космодамианская набережная, 52с10
Бизнес-центр «Риверсайд Тауэрс»
Тип: Офисы
Площадь: 266.80 м2
Отделка:выполнена стандартная офисная отделка
880 440 в месяц
39 600 в год за м2
Позвонить Подробнее
Пушкинская (3 мин. 🚶)
Москва, Сытинский переулок, 5/10с3
Жилое здание "Сытинский переулок, 5/10с3"
Тип: Офисы
Площадь: 276.20 м2
Отделка:отделка арендатора
800 000 в месяц
34 757 в год за м2
Позвонить Подробнее
Динамо (5 мин. 🚶)
Москва, Ленинградский проспект, 31Ас1
МФК "МонАрх"
Тип: Офисы
Площадь: 246.40 м2
Отделка:отделка арендатора
1 002 027 в месяц
48 800 в год за м2
Позвонить Подробнее
Проспект Вернадского (14 мин. 🚶)
Москва, Улица Удальцова, 1А
Бизнес-центр «Удальцова Плаза»
Тип: Офисы
Площадь: 228.00 м2
Отделка:качественная отделка
874 000 в месяц
46 000 в год за м2
Позвонить Подробнее
Международная (5 мин. 🚶)
Москва, Пресненская набережная, 10А
Бизнес-центр «Башня на набережной»
Тип: Офисы
Площадь: 270.00 м2
Отделка:качественная отделка
2 470 500 в месяц
109 800 в год за м2
Позвонить Подробнее
Парк культуры (6 мин. 🚶)
Москва, Улица Остоженка, 25
Жилое здание «Остоженка 25»
Тип: Офисы
Площадь: 265.00 м2
Отделка:выполнена высококачественная отделка
1 856 000 в месяц
84 045 в год за м2
Позвонить Подробнее
Красносельская (10 мин. 🚶)
Москва, Спартаковский переулок, 2с1
Лофт-квартал «Платформа»
Тип: Офисы
Площадь: 253.00 м2
Отделка:отделка в стиле Loft
760 000 в месяц
36 047 в год за м2
Позвонить Подробнее
Рижская (6 мин. 🚶)
Москва, улица Гиляровского, 65с1
БЦ "улица Гиляровского, 65с1"
Тип: Офисы
Площадь: 247.00 м2
Отделка:выполнена стандартная офисная отделка
617 500 в месяц
30 000 в год за м2
Позвонить Подробнее
Полянка (5 мин. 🚶)
Москва, улица Большая Якиманка, 17/2с1
Бизнес центр "улица Большая Якиманка, 17/2с1"
Тип: Офисы
Площадь: 272.10 м2
Отделка:выполнена стандартная офисная отделка
1 043 050 в месяц
46 000 в год за м2
Позвонить Подробнее
Кутузовская (10 мин. 🚶)
Москва, Поклонная улица, 3
Деловой комплекс «Poklonka Place»
Тип: Офисы
Площадь: 276.00 м2
Отделка:выполнена стандартная офисная отделка
1 262 240 в месяц
54 880 в год за м2
Позвонить Подробнее
Марьина Роща (14 мин. 🚶)
Москва, Улица Сущёвский Вал, 18
Бизнес-центр «NOVO» (ново)
Тип: Офисы
Площадь: 1300.00 м2
Отделка:качественная отделка
5 850 000 в месяц
54 000 в год за м2
Позвонить Подробнее
Ленинский проспект (17 мин. 🚶)
Москва, улица Орджоникидзе, 11/52
КДЦ "Гагаринский"
Тип: Офисы
Площадь: 1803.00 м2
Отделка:помещение без отделки
7 512 500 в месяц
50 000 в год за м2
Позвонить Подробнее
Курская (5 мин. 🚶)
Москва, Улица Земляной Вал, 9
Бизнес-центр «СитиДел»
Тип: Офисы
Площадь: 910.70 м2
Отделка:выполнена стандартная офисная отделка
3 718 692 в месяц
49 000 в год за м2
Позвонить Подробнее
Чкаловская (10 мин. 🚶)
Москва, Улица Земляной Вал, 50А/8с2
Бизнес-центр «СадКо»
Тип: Офисы
Площадь: 686.00 м2
Отделка:выполнена стандартная офисная отделка
2 964 092 в месяц
51 850 в год за м2
Позвонить Подробнее
Рижская (10 мин. 🚶)
Москва, Проспект Мира, 64
Бизнес-центр «Мира 64»
Тип: Офисы
Площадь: 768.00 м2
Отделка:помещения частично отремонтированы
3 302 400 в месяц
51 600 в год за м2
Позвонить Подробнее
Шаболовская (7 мин. 🚶)
Москва, Улица Шухова, 14
Бизнес-центр «Шухова Плаза»
Тип: Офисы
Площадь: 946.58 м2
Отделка:выполнена стандартная офисная отделка
3 944 004 в месяц
49 999 в год за м2
Позвонить Подробнее
Красные Ворота (10 мин. 🚶)
Москва, Улица Чаплыгина, 9с1
Офисное здание «Чаплыгина 9 с1»
Тип: Офисы
Площадь: 323.00 м2
Отделка:качественная отделка
1 345 833 в месяц
50 000 в год за м2
Позвонить Подробнее
Деловой центр Деловой центр (МЦК) (2 мин. 🚶)
Москва, Пресненская набережная, 6с2
Москва-Сити "Башня Империя"
Тип: Офисы
Площадь: 63.00 м2
Отделка:качественная отделка
300 000 в месяц
57 143 в год за м2
Позвонить Подробнее
Чеховская (2 мин. 🚶)
Москва, Тверская улица, 16с3
Бизнес-центр «Тверской»
Тип: Офисы
Площадь: 183.89 м2
Отделка:выполнена стандартная офисная отделка
766 515 в месяц
50 020 в год за м2
Позвонить Подробнее
Марксистская (6 мин. 🚶)
Москва, Марксистская улица, 16
Бизнес-центр «Мосаларко»
Тип: Офисы
Площадь: 285.00 м2
Отделка:требуется косметический ремонт
1 216 950 в месяц
51 240 в год за м2
Позвонить Подробнее
Марксистская (6 мин. 🚶)
Москва, Марксистская улица, 16
Бизнес-центр «Мосаларко»
Тип: Офисы
Площадь: 361.00 м2
Отделка:требуется косметический ремонт
1 541 470 в месяц
51 240 в год за м2
Позвонить Подробнее
Полянка (7 мин. 🚶)
Москва, Улица Большая Ордынка, 44с4
Бизнес-центр «Ордынский»
Тип: Офисы
Площадь: 1254.50 м2
Отделка:выполнена стандартная офисная отделка
4 757 273 в месяц
45 506 в год за м2
Позвонить Подробнее
Полянка (5 мин. 🚶)
Москва, улица Большая Якиманка, 17/2с1
Бизнес центр "улица Большая Якиманка, 17/2с1"
Тип: Офисы
Площадь: 184.10 м2
Отделка:качественная отделка
767 083 в месяц
50 000 в год за м2
Позвонить Подробнее
Полянка (5 мин. 🚶)
Москва, улица Большая Якиманка, 17/2с1
Бизнес центр "улица Большая Якиманка, 17/2с1"
Тип: Офисы
Площадь: 467.80 м2
Отделка:выполнена стандартная офисная отделка
2 033 500 в месяц
52 163 в год за м2
Позвонить Подробнее
Полянка (5 мин. 🚶)
Москва, улица Большая Якиманка, 17/2с1
Бизнес центр "улица Большая Якиманка, 17/2с1"
Тип: Офисы
Площадь: 214.80 м2
Отделка:качественная отделка
895 000 в месяц
50 000 в год за м2
Позвонить Подробнее
Полянка (5 мин. 🚶)
Москва, улица Большая Якиманка, 17/2с1
Бизнес центр "улица Большая Якиманка, 17/2с1"
Тип: Офисы
Площадь: 272.10 м2
Отделка:выполнена стандартная офисная отделка
1 043 050 в месяц
46 000 в год за м2
Позвонить Подробнее
Полянка (5 мин. 🚶)
Москва, улица Большая Якиманка, 17/2с1
Бизнес центр "улица Большая Якиманка, 17/2с1"
Тип: Офисы
Площадь: 924.00 м2
Отделка:выполнена стандартная офисная отделка
3 843 633 в месяц
49 917 в год за м2
Позвонить Подробнее
Полянка (7 мин. 🚶)
Москва, Улица Большая Ордынка, 44с4
Бизнес-центр «Ордынский»
Тип: Офисы
Площадь: 147.60 м2
Отделка:выполнена стандартная офисная отделка
517 707 в месяц
42 090 в год за м2
Позвонить Подробнее
Полянка (6 мин. 🚶)
Москва, улица Большая Ордынка, 44с1
ОСЗ "Большая Ордынка, 44с1"
Тип: Офисы
Площадь: 532.60 м2
1 997 250 в месяц
45 000 в год за м2
Позвонить Подробнее