Продажа торгового помещения Административное «Профсоюзная 152 к2»

Продажа торгового помещения Административное «Профсоюзная 152 к2» Продажа торгового помещения Административное «Профсоюзная 152 к2» Продажа торгового помещения Административное «Профсоюзная 152 к2»
Продажа торгового помещения Административное «Профсоюзная 152 к2» - превью Продажа торгового помещения Административное «Профсоюзная 152 к2» - превью Продажа торгового помещения Административное «Профсоюзная 152 к2» - превью
Москва, Профсоюзная улица, 152к1
Позвоните по телефону +7 495 230-28-26, либо оставьте заявку на просмотр прямо сейчас и узнайте условия специального предложения по объекту.
загрузка карты...
Капина Владлена Викторовна

Объект ведет консультант:

Капина Владлена Викторовна

Общие
ID 63694
Тип сделки Продажа
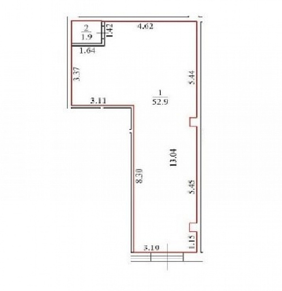
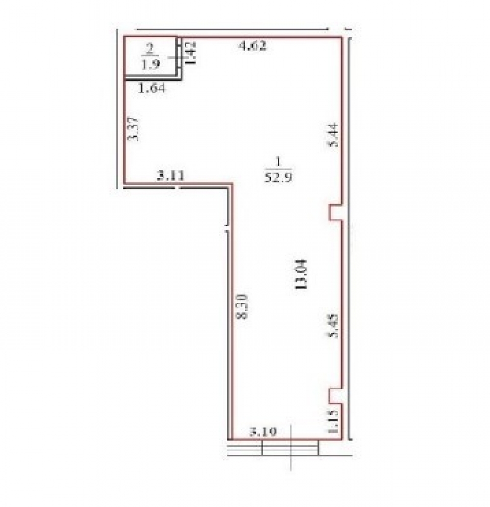
Площадь 54.80
Площадь всего 2654.00
Тип объекта Административное здание
Этаж 1
Всего этажей в здании 1
Метраж по этажам
Информация об объекте
Состояние объекта рабочее
Состояние блока отделка арендатора
Планировка Открытая
Нюансы Отдельный вход
Эксплуатация включена
Торговая недвижимость
Линия домов 1 линия
Возможности Витрины,Место для рекламы,Проходное место,Проездное место
Электр. мощность (кВт) 20
Коммерческие условия
За все 29 990 000 ₽
За м 2 547 263 ₽
Тип собственника Юридическое лицо

Описание объекта
На продажу предлагается торговое помещение. Первая линия домов ул. Профсоюзная.
Первый этаж торгового здания, отдельный вход, большая витрина. Помещение и здание после ремонта, в отличном состоянии.
Развитое сетевое окружение: Почта России, Wildberries, Ароматный Мир, СДЭК, ДоДо Пицца, Аптека Фармленд, супермаркет Пятерочка, Аптека Горздрав, супермаркет ЧИЖИК.

Ориентир по арендной ставке: 270 000 - 280 000 руб. / мес.

Нужна консультация покупке или продаже торговых помещений?

Наши специалисты подберут для вас самые выгодные варианты для долгосрочного инвестирования,
помогут в сопровождении и сделки, проверят все юридические вопросы касаемо приобретения недвижимости.

* Нажимая на кнопку «Отправить», Вы даете согласие на обработку персональных данных в соответствии с Политикой конфиденциальности

Похожие объекты

Сокол Сокольники Соколиная Гора (3 мин. 🚶)
Москва, Ленинградский проспект, 69с1
Жилое здание "Ленинградский пр-т 69"
Тип: Торговое помещение
Площадь: 50.00 м2
Мощность:100 кВт
14 000 000 за все
280 000 за м2
Позвонить Подробнее
Электрозаводская (1 мин. 🚶)
Москва, Большая Семёновская улица, 23А
Административное Здание
Тип: Торговое помещение
Площадь: 50.00 м2
Мощность:15 кВт
32 000 000 за все
640 000 за м2
Позвонить Подробнее
Рязанский проспект (8 мин. 🚶)
Москва, улица Академика Скрябина, 3/1к1
Жилой дом " Академика Скрябина, 3/1к1"
Тип: Торговое помещение
Площадь: 58.40 м2
Мощность:20 кВт
19 200 000 за все
328 767 за м2
Позвонить Подробнее
Проспект Мира (3 мин. 🚶)
Москва, Проспект Мира, 40
Бизнес-центр «Garden Mir»
Тип: Торговое помещение
Площадь: 50.70 м2
Мощность:25 кВт
139 171 500 за все
2 745 000 за м2
Позвонить Подробнее
Партизанская (8 мин. 🚶)
Москва, Окружной проезд, 16
Окружной проезд, 16
Тип: Торговое помещение
Площадь: 54.80 м2
Мощность:15 кВт
26 300 000 за все
479 927 за м2
Позвонить Подробнее
Кунцевская (18 мин. 🚗)
Москва, улица Петра Алексеева, 12с1
КутузовGRAD II (КутузовГрад II) МАНУФАКТУРА XIX
Тип: Торговое помещение
Площадь: 57.70 м2
Мощность:8 кВт
35 910 000 за все
622 357 за м2
Позвонить Подробнее
Краснопресненская (5 мин. 🚶)
Москва, улица Красная Пресня, 12
Жилой дом " Красная Пресня 12"
Тип: Торговое помещение
Площадь: 52.90 м2
77 000 000 за все
1 455 577 за м2
Позвонить Подробнее
Красногвардейская (40 мин. 🚗)
Московская область, Ленинский городской округ, посёлок Развилка, Римский проезд, 13
ЖК "Римский"
Тип: Торговое помещение
Площадь: 56.30 м2
Мощность:12 кВт
20 000 000 за все
355 240 за м2
Позвонить Подробнее
Деловой центр Деловой центр (МЦК) (7 мин. 🚶)
Москва, Пресненская набережная, 12
Москва-Сити «Башня Федерация»
Тип: Торговое помещение
Площадь: 52.30 м2
Мощность:26 кВт
63 800 000 за все
1 219 885 за м2
Позвонить Подробнее
Курская (2 мин. 🚶)
Москва, улица Земляной Вал, 23с1
Жилое здание " Земляной Вал, 23с1"
Тип: Торговое помещение
Площадь: 55.50 м2
82 800 000 за все
1 491 892 за м2
Позвонить Подробнее
Ховрино (25 мин. 🚗)
Москва, Ленинградское шоссе, 228к6
ЖК «1-й Ленинградский», к. 1
Тип: Торговое помещение
Площадь: 53.30 м2
Мощность:15 кВт
18 000 000 за все
337 711 за м2
Позвонить Подробнее
Селигерская (2 мин. 🚶)
Москва, Дмитровское шоссе, вл89
Жилое здание "Дмитровское шоссе, вл89"
Тип: Торговое помещение
Площадь: 56.90 м2
60 000 000 за все
1 054 482 за м2
Позвонить Подробнее
Алма-Атинская (1 мин. 🚶)
Москва, Братеевская улица, 16к1
Жилое здание "Братеевская улица, 16к1"
Тип: Торговое помещение
Площадь: 205.80 м2
27 000 000 за все
131 195 за м2
Позвонить Подробнее
Окружная (10 мин. 🚗)
Москва, Алтуфьевское шоссе, 35к1
МФК "HALO (ГАЛО)"
Тип: Торговое помещение
Площадь: 148.20 м2
28 009 800 за все
189 000 за м2
Позвонить Подробнее
Электрозаводская (1 мин. 🚶)
Москва, Большая Семёновская улица, 23А
Административное Здание
Тип: Торговое помещение
Площадь: 50.00 м2
Мощность:15 кВт
32 000 000 за все
640 000 за м2
Позвонить Подробнее
Селигерская (7 мин. 🚶)
Москва, Дмитровское шоссе, 93к2
Жилое здание "Дмитровское шоссе, 93к2"
Тип: Торговое помещение
Площадь: 67.90 м2
30 000 000 за все
441 826 за м2
Позвонить Подробнее

Спец. предложение

Добрынинская (5 мин. 🚶)
Москва, Житная улица, 10
Жилое здание «Житная 10»
Тип: Торговое помещение
Площадь: 120.00 м2
Мощность:15 кВт
29 000 000 за все
241 667 за м2
Позвонить Подробнее
Тульская (11 мин. 🚗)
Москва, ЖК Пейв
ЖК "ПЕЙВ"
Тип: Торговое помещение
Площадь: 37.80 м2
31 113 180 за все
823 100 за м2
Позвонить Подробнее
Савёловская (8 мин. 🚶)
Москва, Угловой переулок, 27
Жилое здание "Угловой переулок, 27"
Тип: Торговое помещение
Площадь: 129.60 м2
30 000 000 за все
231 481 за м2
Позвонить Подробнее
ВДНХ (16 мин. 🚶)
Москва, проспект Мира, 131
Жилое здание "проспект Мира, 131"
Тип: Торговое помещение
Площадь: 82.00 м2
28 700 000 за все
350 000 за м2
Позвонить Подробнее
Медведково (30 мин. 🚗)
Московская область, Мытищи, улица Стрельбище Динамо, 10
ЖК "Мытищи Парк"
Тип: Торговое помещение
Площадь: 94.40 м2
Мощность:31 кВт
28 500 000 за все
301 907 за м2
Позвонить Подробнее
Медведково (30 мин. 🚗)
Московская область, Мытищи, 1-й Стрелковый переулок, 5
ЖК "Мытищи Парк"5
Тип: Торговое помещение
Площадь: 135.40 м2
27 000 000 за все
199 409 за м2
Позвонить Подробнее
Медведково (30 мин. 🚗)
Московская область, Мытищи, 1-й Стрелковый переулок, 5
ЖК "Мытищи Парк"5
Тип: Торговое помещение
Площадь: 127.40 м2
28 000 000 за все
219 780 за м2
Позвонить Подробнее
Калужская (7 мин. 🚶)
Москва, Старокалужское шоссе, 62
Бизнес-центр «Vallex»
Тип: Торговое помещение
Площадь: 99.20 м2
Мощность:35 кВт
32 736 000 за все
330 000 за м2
Позвонить Подробнее