Аренда торгового помещения Бизнес-центр «Кусково»

Аренда торгового помещения Бизнес-центр «Кусково»
Москва, Кусковская улица, 20А
Позвоните по телефону +7 495 230-28-26, либо оставьте заявку на просмотр прямо сейчас и узнайте условия специального предложения по объекту.
загрузка карты...
Аренда в год за м2 28 000 ₽
Аренда в месяц 1 073 333 ₽
Схема сделки прямая аренда
Первушина Марина Алексеевна

Объект ведет консультант:

Первушина Марина Алексеевна

Общие
ID 64022
Тип сделки Аренда
Площадь 460.00
Площадь всего 28333.00
Тип объекта Бизнес-центр
Класс здания B
Этаж 1
Всего этажей в здании 7
Метраж по этажам
Информация об объекте
Состояние блока отделка арендатора
Планировка Открытая
Коммуникации Система пожаротушения,Система видеонаблюдения,Интернет,Телефония
Парковка наземная бесплатно, возможно закрепленное место за 8000р/мес
КПП Гостевой пропуск
Нюансы Отдельный вход,ПСН
Торговая недвижимость
Линия домов 1 линия
Возможности Зона разгрузки,Витрины,Место для рекламы,Проходное место,Проездное место
Электр. мощность (кВт) 100
Коммерческие условия
Аренда в год за м2 28 000 ₽
Аренда в месяц 1 073 333 ₽
Схема сделки прямая аренда
Тип собственника Юридическое лицо

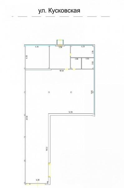
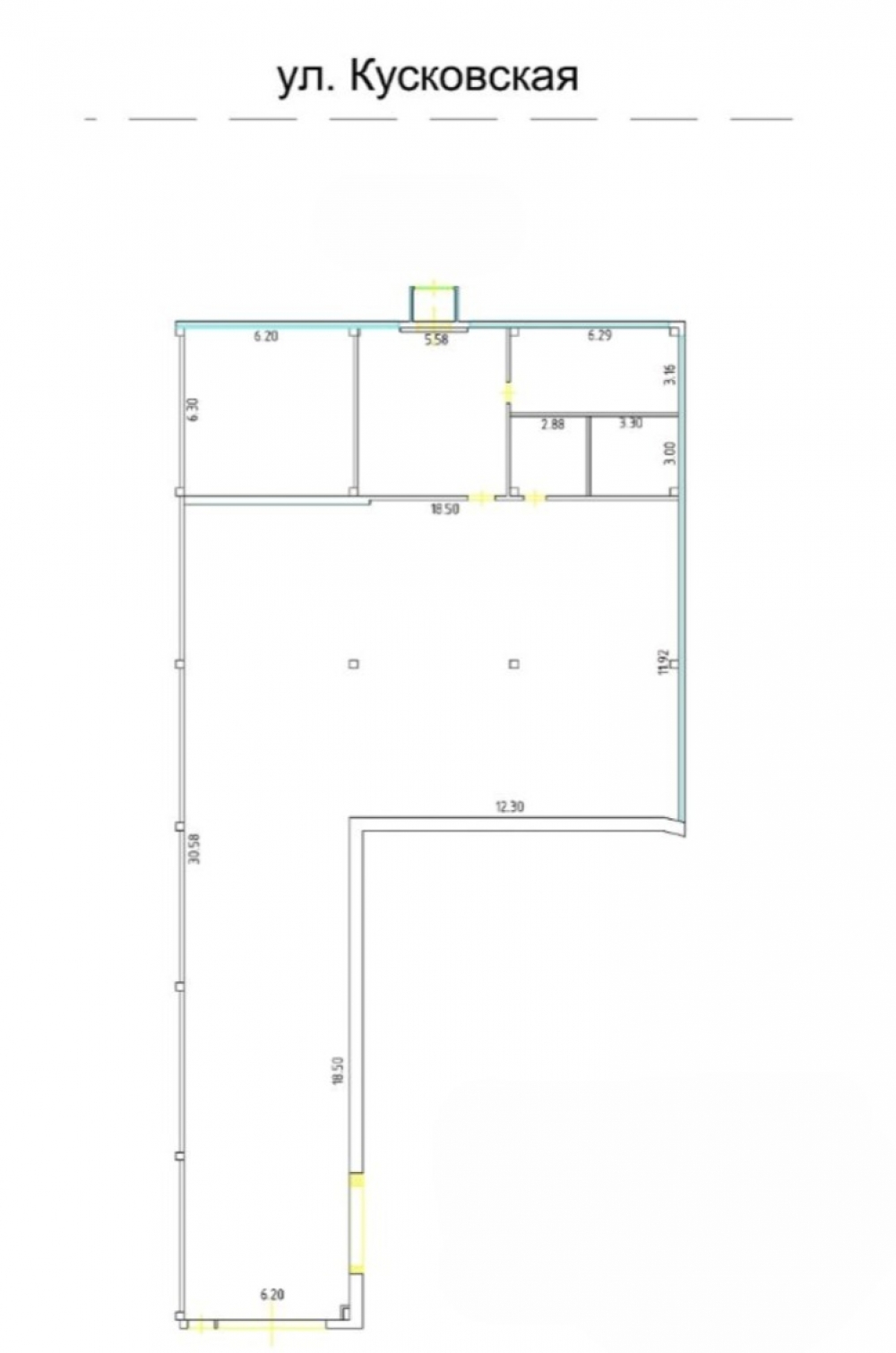
Описание объекта
Предлагается в аренду помещение свободного назначения на первом этаже бизнес-комплекса в Кусково. До м. Перово 10-15 минут пешком. Удобный выезд на МКАД и ТТК.
Общая площадь 460м2. Свободная планировка, потолки 3,6м, бетонный пол, высокая нагрузка (нет подвала). Отдельный вход с фасада и удобный подъезд для грузового и легкового транспорта (до 10т) со двора. Инженерное обеспечение: выделенная электрическая мощность 100 кВт, освещение, отопление, ХВС и водоотведение.
Помещение свободно к заезду.

Нужна консультация по подбору торговых площадей для аренды?

Наши специалисты подберут для вас самые выгодные варианты для долгосрочного инвестирования,
помогут в сопровождении и сделки, проверят все юридические вопросы касаемо приобретения недвижимости.

* Нажимая на кнопку «Отправить», Вы даете согласие на обработку персональных данных в соответствии с Политикой конфиденциальности

Похожие объекты

Крестьянская Застава (7 мин. 🚶)
Москва, Волгоградский проспект, 9с1
Жилое здание "Волгоградский проспект, 9с1"
Тип: Торговое помещение
Площадь: 415.00 м2
Мощность:99 кВт
969 000 в месяц
28 019 в год за м2
Позвонить Подробнее
Алексеевская (7 мин. 🚶)
Москва, проспект Мира, 108
Жилое здание "проспект Мира д. 108"
Тип: Торговое помещение
Площадь: 430.00 м2
Мощность:65 кВт
600 000 в месяц
16 744 в год за м2
Позвонить Подробнее
Шаболовская (7 мин. 🚶)
Москва, улица Шаболовка, 14с2
ОСЗ "улица Шаболовка, 14с2"
Тип: Торговое помещение
Площадь: 442.10 м2
Мощность:150 кВт
2 100 000 в месяц
57 001 в год за м2
Позвонить Подробнее
Шаболовская (11 мин. 🚶)
Москва, Ленинский проспект, 15А
Бизнес-центр «Central Park Tower»
Тип: Торговое помещение
Площадь: 464.00 м2
Мощность:100 кВт
2 594 533 в месяц
67 100 в год за м2
Позвонить Подробнее
Тверская (1 мин. 🚶)
Москва, Тверская улица, 14
Жилое здание "Тверская улица, 14"
Тип: Торговое помещение
Площадь: 460.70 м2
Мощность:130 кВт
6 500 000 в месяц
169 308 в год за м2
Позвонить Подробнее
Новокосино (12 мин. 🚶)
Москва, Новокосинская улица, 48
ОСЗ "Новокосинская 48"
Тип: Торговое помещение
Площадь: 455.00 м2
Мощность:84 кВт
900 000 в месяц
23 736 в год за м2
Позвонить Подробнее
Новослободская (2 мин. 🚶)
Москва, Долгоруковская улица, 40
Жилое здание "Долгоруковская ул.,40"
Тип: Торговое помещение
Площадь: 489.80 м2
400 000 в месяц
9 800 в год за м2
Позвонить Подробнее
Третьяковская (13 мин. 🚶)
Москва, Болотная улица, 14с1
Административное здание " Болотная улица, 14с1"
Тип: Торговое помещение
Площадь: 421.00 м2
2 000 000 в месяц
57 007 в год за м2
Позвонить Подробнее
Проспект Вернадского (9 мин. 🚶)
Москва, улица Удальцова, 79
Жилое здание "улица Удальцова, 79"
Тип: Торговое помещение
Площадь: 500.00 м2
Мощность:65 кВт
1 500 000 в месяц
36 000 в год за м2
Позвонить Подробнее
Щёлковская (7 мин. 🚗)
Москва, Хабаровская улица, 12/23
Жилое здание "Хабаровская улица, 12/23"
Тип: Торговое помещение
Площадь: 471.10 м2
450 000 в месяц
11 463 в год за м2
Позвонить Подробнее
Китай-город (3 мин. 🚶)
Москва, улица Маросейка, 6-8с1
Административное здание «Маросейка 6/8с1»
Тип: Торговое помещение
Площадь: 436.40 м2
Мощность:90 кВт
2 415 000 в месяц
66 407 в год за м2
Позвонить Подробнее
Фрунзенская (10 мин. 🚶)
Москва, улица Ефремова, 10с1
ЖК "САДОВЫЕ КВАРТАЛЫ"
Тип: Торговое помещение
Площадь: 430.00 м2
Мощность:200 кВт
3 000 000 в месяц
83 721 в год за м2
Позвонить Подробнее
Крестьянская Застава (7 мин. 🚶)
Москва, Волгоградский проспект, 9с1
Жилое здание "Волгоградский проспект, 9с1"
Тип: Торговое помещение
Площадь: 415.00 м2
Мощность:99 кВт
969 000 в месяц
28 019 в год за м2
Позвонить Подробнее
Коммунарка (15 мин. 🚗)
Москва, Новомосковский административный округ, район Коммунарка, Скандинавский бульвар, 14
ЖК "Скандинавия"
Тип: Торговое помещение
Площадь: 136.00 м2
Мощность:41 кВт
340 000 в месяц
30 000 в год за м2
Позвонить Подробнее
Тульская (10 мин. 🚶)
Москва, Варшавское шоссе, 2
Жилое здание "Варшавское шоссе, 2"
Тип: Торговое помещение
Площадь: 689.30 м2
Мощность:100 кВт
1 500 000 в месяц
26 113 в год за м2
Позвонить Подробнее
Новогиреево (10 мин. 🚗)
Москва, шоссе Энтузиастов, 55
Жилое здание "шоссе Энтузиастов, 55"
Тип: Торговое помещение
Площадь: 311.00 м2
700 000 в месяц
27 010 в год за м2
Позвонить Подробнее
Крестьянская Застава (7 мин. 🚶)
Москва, Волгоградский проспект, 9с1
Жилое здание "Волгоградский проспект, 9с1"
Тип: Торговое помещение
Площадь: 281.00 м2
Мощность:68 кВт
690 000 в месяц
29 466 в год за м2
Позвонить Подробнее
Медведково (3 мин. 🚶)
Москва, улица Грекова, вл7
Административное здание "улица Грекова, вл7"
Тип: Торговое помещение
Площадь: 3761.68 м2
8 150 307 в месяц
26 000 в год за м2
Позвонить Подробнее
Красные Ворота (8 мин. 🚶)
Москва, Садовая-Спасская улица, 3с3
Офисное здание «Садовая-Спасская 3 с3»
Тип: Торговое помещение
Площадь: 3175.10 м2
Мощность:540 кВт
7 110 000 в месяц
26 872 в год за м2
Позвонить Подробнее
Сокол Сокольники Соколиная Гора (3 мин. 🚶)
Москва, Ленинградский проспект, 69с1
Жилое здание "Ленинградский пр-т 69"
Тип: Торговое помещение
Площадь: 300.00 м2
Мощность:100 кВт
650 000 в месяц
26 000 в год за м2
Позвонить Подробнее
Сокол Сокольники Соколиная Гора (3 мин. 🚶)
Москва, Ленинградский проспект, 69с1
Жилое здание "Ленинградский пр-т 69"
Тип: Торговое помещение
Площадь: 50.00 м2
Мощность:100 кВт
125 000 в месяц
30 000 в год за м2
Позвонить Подробнее
Сходненская (2 мин. 🚶)
Москва, улица Героев Панфиловцев, 1к3
Жилое здание "улица Героев Панфиловцев, 1к3"
Тип: Торговое помещение
Площадь: 89.30 м2
Мощность:15 кВт
225 000 в месяц
30 235 в год за м2
Позвонить Подробнее
(16 мин. 🚗)
Москва, Базовская улица, 24Б
Жилое здание "Базовская улица, 24Б"
Тип: Торговое помещение
Площадь: 118.10 м2
Мощность:25 кВт
250 000 в месяц
25 402 в год за м2
Позвонить Подробнее
(10 мин. 🚗)
Москва, Долгопрудная аллея, 15к5
ЖК "Мой Адрес в Северном"
Тип: Торговое помещение
Площадь: 408.00 м2
Мощность:80 кВт
900 000 в месяц
26 471 в год за м2
Позвонить Подробнее
Перово (1 мин. 🚶)
Москва, Зелёный проспект, 19
Торгово-офисный комплекс Зеленый проспект, 19
Тип: Торговое помещение
Площадь: 90.00 м2
Мощность:50 кВт
550 000 в месяц
73 333 в год за м2
Позвонить Подробнее
Перово (6 мин. 🚶)
Москва, 3-я Владимирская улица, 23
ЖК "3-я Владимирская улица, 23"
Тип: Торговое помещение
Площадь: 46.60 м2
250 000 в месяц
64 378 в год за м2
Позвонить Подробнее