Аренда офиса Особняк на Цветном Бульваре

Аренда офиса Особняк на Цветном Бульваре
Москва, 1-й Колобовский переулок, 19с1
Позвоните по телефону +7 495 230-28-26, либо оставьте заявку на просмотр прямо сейчас и узнайте условия специального предложения по объекту.
загрузка карты...
Аренда в год за м2 48 800 ₽
Аренда в месяц 1 679 940 ₽
Схема сделки прямая аренда
Первушина Марина Алексеевна

Объект ведет консультант:

Первушина Марина Алексеевна

Общие
ID 26307
Тип сделки Аренда
Площадь 413.10
Площадь всего 413.10
Тип объекта Особняк
Класс здания B
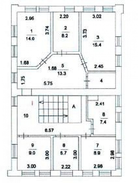
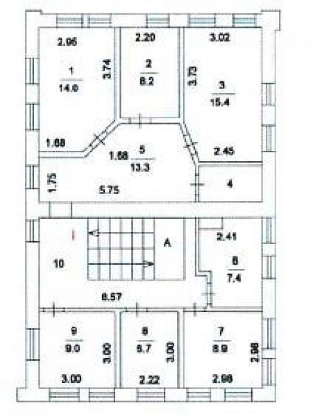
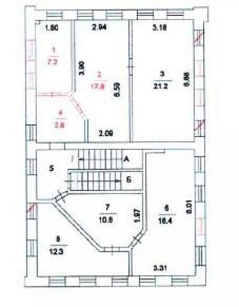
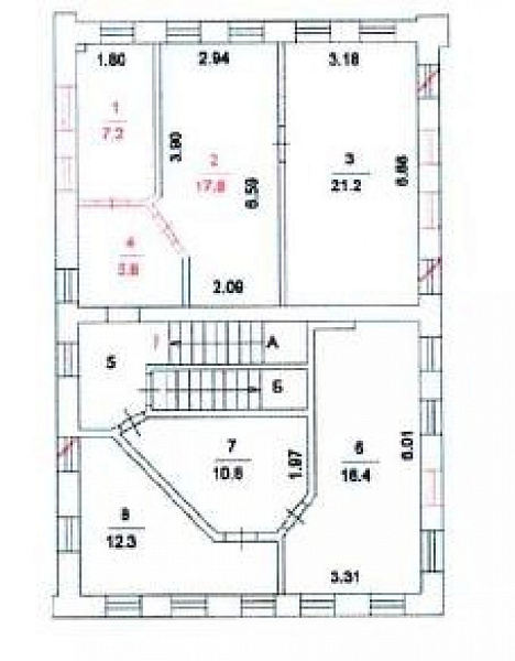
Этаж -1 - 2
Всего этажей в здании 3
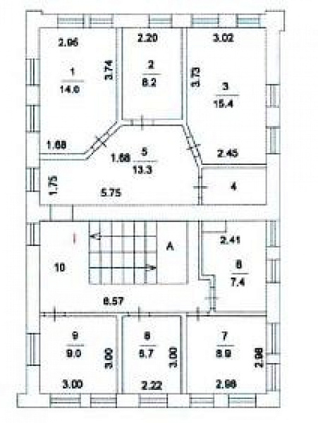
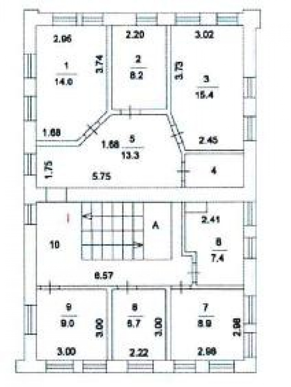
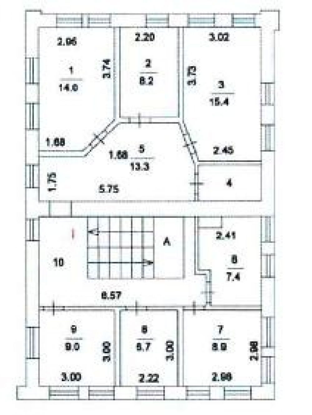
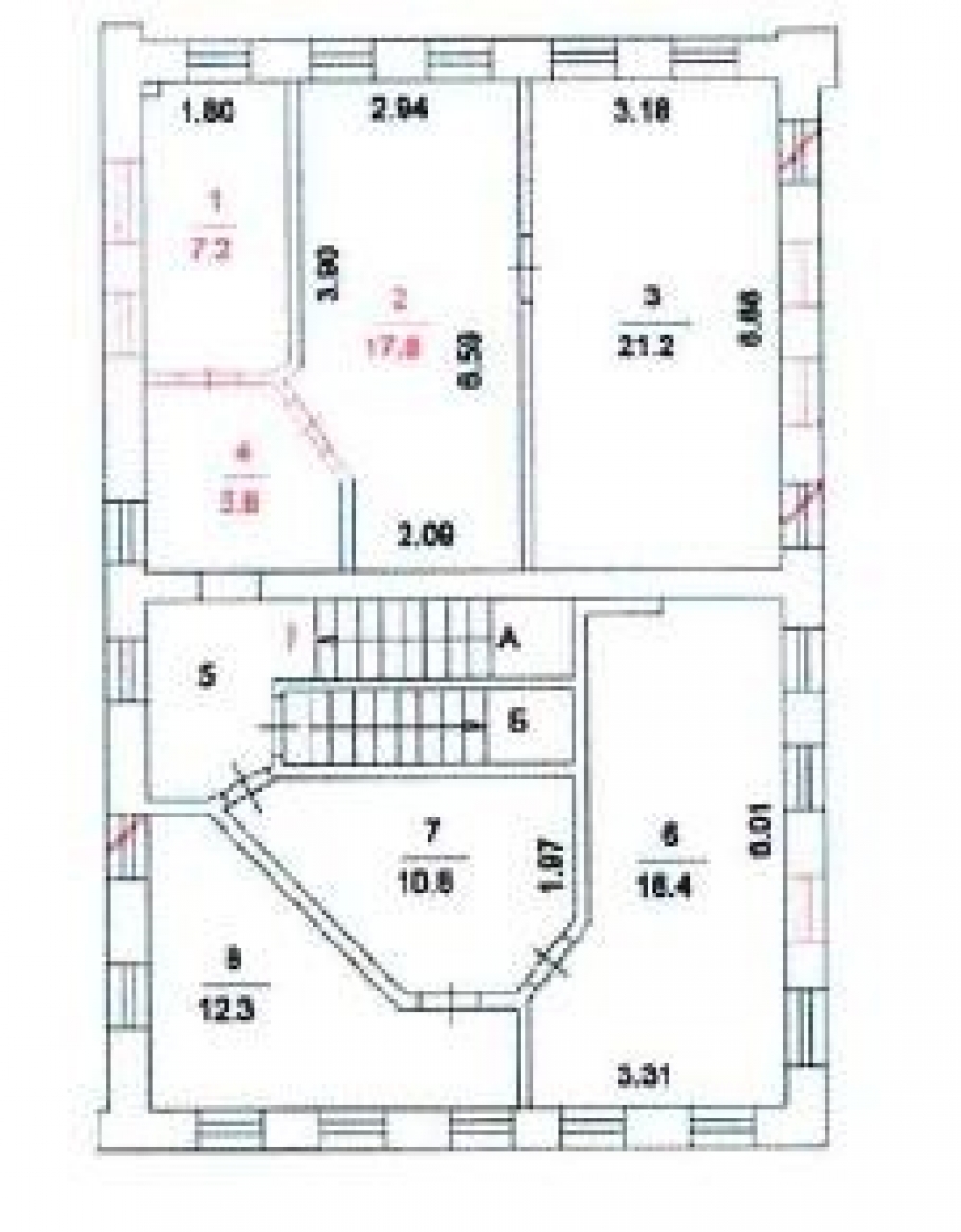
Метраж по этажам
Этаж: цоколь - 100 м2
Этаж: 1 - 100 м2
Этаж: 2 - 100 м2
Этаж: мансарда - 100 м2
Информация об объекте
Планировка Смешанная
Коммуникации Система видеонаблюдения,Интернет,Телефония
Парковка 4 Огороженых,4 машиноместа на наземной огороженной парковке перед зданием
КПП Гостевой пропуск
Нюансы Отдельный вход,ПСН
Коммерческие условия
Аренда в год за м2 48 800 ₽
Аренда в месяц 1 679 940 ₽
Схема сделки прямая аренда
Тип собственника Юридическое лицо

Описание объекта
Сдается особняк класса В в ЦАО. Первая линия домов. Огороженная территория. 2 независимых входа. Комфортное расположение в тихом переулке в историческом центре Москвы: 5 мин. пешей доступности от ст. метро «Цветной Бульвар»; 2 мин. пешей доступности от ст. метро «Трубная».
В подвале кассы и депозитарий, кухня. На первом этаже зона ресепшн и переговорные комнаты. Второй этаж используются под офис для сотрудников. Мансарда - VIP зона для руководства.
Высота потолков: 1, 2 этажи – 3 метра; Мансардный – 3,10 метра, Цокольный – 2,95 метра.
Подойдет под размещение офиса, банка, мед. клинику. Сдается с мебелью.
4 машиноместа на огороженной наземной парковке.
Офис свободен к заезду.

Нужна консультация по подбору помещения под офис?

Наши специалисты подберут для вас самые выгодные варианты для долгосрочного инвестирования,
помогут в сопровождении и сделки, проверят все юридические вопросы касаемо приобретения недвижимости.

* Нажимая на кнопку «Отправить», Вы даете согласие на обработку персональных данных в соответствии с Политикой конфиденциальности

Похожие объекты

Динамо (10 мин. 🚶)
Москва, Ленинградский проспект, 36с41
Бизнес-центр "MULTISPACE"
Тип: Офисы
Площадь: 373.00 м2
Отделка:качественная отделка
4 526 200 в месяц
145 615 в год за м2
Позвонить Подробнее
Комсомольская (5 мин. 🚶)
Москва, Каланчёвская улица, 15А
БЦ «Каланчевский»
Тип: Офисы
Площадь: 378.60 м2
Отделка:выполнена стандартная офисная отделка
1 105 000 в месяц
35 024 в год за м2
Позвонить Подробнее
Спортивная (5 мин. 🚶)
Москва, Улица 10-летия Октября, 11
Офисно-гостиничный комплекс (ул. 10-летия Октября, 11)
Тип: Офисы
Площадь: 414.00 м2
Отделка:выполнена стандартная офисная отделка
1 575 000 в месяц
45 652 в год за м2
Позвонить Подробнее
Марьина Роща (12 мин. 🚶)
Москва, Полковая улица, 3
Бизнес-центр «Офис-парк Шереметьевский»
Тип: Офисы
Площадь: 453.30 м2
Отделка:качественная отделка
1 322 125 в месяц
35 000 в год за м2
Позвонить Подробнее
Проспект Вернадского (14 мин. 🚶)
Москва, Улица Удальцова, 1А
Бизнес-центр «Удальцова Плаза»
Тип: Офисы
Площадь: 402.77 м2
Отделка:выполнена стандартная офисная отделка
1 443 259 в месяц
43 000 в год за м2
Позвонить Подробнее
Кунцевская (17 мин. 🚗)
Москва, Инновационный центр Сколково, улица Сикорского, 11
БЦ "Ренова Лаб Сколково"
Тип: Офисы
Площадь: 389.40 м2
Отделка:качественная отделка
1 187 670 в месяц
36 600 в год за м2
Позвонить Подробнее
Третьяковская (4 мин. 🚶)
Москва, 3-й Кадашёвский переулок, 6с2
Офисно ездание «3-й Кадашевский 6с2»
Тип: Офисы
Площадь: 450.00 м2
1 500 000 в месяц
40 000 в год за м2
Позвонить Подробнее
Тульская (10 мин. 🚶)
Москва, Варшавское шоссе, 1с1-2
Бизнес-центр W Plaza (В Плаза)
Тип: Офисы
Площадь: 436.00 м2
Отделка:выполнена стандартная офисная отделка
1 351 600 в месяц
37 200 в год за м2
Позвонить Подробнее
Белорусская (4 мин. 🚶)
Москва, 1-я Тверская-Ямская улица, 23с1
Деловой центр "Тверская-Ямская23"
Тип: Офисы
Площадь: 379.10 м2
Отделка:выполнена стандартная офисная отделка
1 618 757 в месяц
51 240 в год за м2
Позвонить Подробнее
Калужская (7 мин. 🚶)
Москва, улица Обручева, 23с1
Бизнес - центр "Geolog"
Тип: Офисы
Площадь: 408.90 м2
Отделка:Shell and Core
1 042 695 в месяц
30 600 в год за м2
Позвонить Подробнее
Калужская (9 мин. 🚶)
Москва, Улица Обручева, 23к3
Бизнес-центр «Газфилд»
Тип: Офисы
Площадь: 430.70 м2
Отделка:выполнена стандартная офисная отделка
1 204 165 в месяц
33 550 в год за м2
Позвонить Подробнее
Красносельская (10 мин. 🚶)
Москва, Спартаковский переулок, 2с1
Лофт-квартал «Платформа»
Тип: Офисы
Площадь: 450.00 м2
Отделка:выполнена стандартная офисная отделка
900 000 в месяц
24 000 в год за м2
Позвонить Подробнее
Улица 1905 года (13 мин. 🚶)
Закрытая продажа #63149
Тип: Офисы
Площадь: 180.00 м2
Отделка:выполнена стандартная офисная отделка
750 000 в месяц
50 000 в год за м2
Позвонить Подробнее
Спортивная (5 мин. 🚶)
Москва, Улица 10-летия Октября, 11
Офисно-гостиничный комплекс (ул. 10-летия Октября, 11)
Тип: Офисы
Площадь: 414.00 м2
Отделка:выполнена стандартная офисная отделка
1 575 000 в месяц
45 652 в год за м2
Позвонить Подробнее
Сухаревская (7 мин. 🚶)
Москва, Большая Сухаревская площадь, 9
Бизнес-центр «На Спасской»
Тип: Офисы
Площадь: 181.50 м2
Отделка:выполнена стандартная офисная отделка
692 422 в месяц
45 780 в год за м2
Позвонить Подробнее
Нахимовский проспект (5 мин. 🚶)
Москва, Одесская улица, 2кА
Бизнес-центр «Лотос»
Тип: Офисы
Площадь: 200.00 м2
Отделка:качественная отделка
790 000 в месяц
47 400 в год за м2
Позвонить Подробнее
Тургеневская (1 мин. 🚶)
Москва, Тургеневская площадь, 2
Бизнес-центр «Тургеневская 2»
Тип: Офисы
Площадь: 1065.00 м2
Отделка:выполнена стандартная офисная отделка
4 260 000 в месяц
48 000 в год за м2
Позвонить Подробнее
Менделеевская (1 мин. 🚶)
Москва, Новослободская улица, 23
Бизнес-центр «Мейерхольд»
Тип: Офисы
Площадь: 194.00 м2
Отделка:выполнена стандартная офисная отделка
767 917 в месяц
47 500 в год за м2
Позвонить Подробнее
Трубная (7 мин. 🚶)
Москва, Петровский бульвар, 5с1
Особняк «Петровский бульвар 5с1»
Тип: Офисы
Площадь: 334.54 м2
Отделка:выполнена высококачественная отделка
1 393 917 в месяц
50 000 в год за м2
Позвонить Подробнее
Тёплый стан (9 мин. 🚶)
Москва, Профсоюзная улица, 125к1
Офисный особняк «Профсоюзная 125к1»
Тип: Офисы
Площадь: 4331.40 м2
Отделка:выполнена стандартная офисная отделка
16 242 750 в месяц
45 000 в год за м2
Позвонить Подробнее
Кузнецкий Мост (5 мин. 🚶)
Москва, Улица Кузнецкий Мост, 7
Особняк «Кузнецкий Мост 7»
Тип: Офисы
Площадь: 165.00 м2
Отделка:выполнена стандартная офисная отделка
620 000 в месяц
45 091 в год за м2
Позвонить Подробнее
ЗИЛ (17 мин. 🚶)
Москва, проспект Лихачёва, 5
Технопарк ЗИЛ
Тип: Офисы
Площадь: 3600.00 м2
Отделка:выполнена стандартная офисная отделка
13 500 000 в месяц
45 000 в год за м2
Позвонить Подробнее
Белорусская (4 мин. 🚶)
Москва, 1-я Тверская-Ямская улица, 23с1
Деловой центр "Тверская-Ямская23"
Тип: Офисы
Площадь: 379.10 м2
Отделка:выполнена стандартная офисная отделка
1 618 757 в месяц
51 240 в год за м2
Позвонить Подробнее
Калужская (7 мин. 🚶)
Москва, улица Обручева, 23с1
Бизнес - центр "Geolog"
Тип: Офисы
Площадь: 985.20 м2
Отделка:Shell and Core
4 105 000 в месяц
50 000 в год за м2
Позвонить Подробнее
Цветной бульвар (9 мин. 🚶)
Москва, Большой Каретный переулок, 20с3
ОСЗ «Большой Каретный 20 с3»
Тип: Офисы
Площадь: 1579.00 м2
Отделка:выполнена стандартная офисная отделка
6 710 750 в месяц
51 000 в год за м2
Позвонить Подробнее
Цветной бульвар (6 мин. 🚶)
Москва, 1-й Колобовский переулок, 17с1
Особняк «1-й Колобовский 17 с1»
Тип: Офисы
Площадь: 157.10 м2
Отделка:качественная отделка
1 021 150 в месяц
78 000 в год за м2
Позвонить Подробнее
Цветной бульвар (4 мин. 🚶)
Москва, Садовая-Самотёчная улица, 24/27
Бизнес-центр «Мосэнка Плаза 3»
Тип: Офисы
Площадь: 321.00 м2
Отделка:выполнена стандартная офисная отделка
1 701 300 в месяц
63 600 в год за м2
Позвонить Подробнее
Цветной бульвар (4 мин. 🚶)
Москва, Цветной бульвар, 22с1
Бизнес-центр «Цветной 22 с1»
Тип: Офисы
Площадь: 474.00 м2
Отделка:выполнена стандартная офисная отделка
1 975 000 в месяц
50 000 в год за м2
Позвонить Подробнее
Цветной бульвар (4 мин. 🚶)
Москва, Садовая-Самотёчная улица, 24/27
Бизнес-центр «Мосэнка Плаза 3»
Тип: Офисы
Площадь: 662.00 м2
Отделка:выполнена стандартная офисная отделка
3 508 600 в месяц
63 600 в год за м2
Позвонить Подробнее
Цветной бульвар (14 мин. 🚶)
Москва, улица Каретный Ряд, 8
БЦ "Кустос Лофт"
Тип: Офисы
Площадь: 320.00 м2
Отделка:выполнена стандартная офисная отделка
1 066 667 в месяц
40 000 в год за м2
Позвонить Подробнее
Цветной бульвар (5 мин. 🚶)
Москва, Последний переулок, 6к1
Бизнес-центр «Последний 6 к1»
Тип: Офисы
Площадь: 968.00 м2
4 436 667 в месяц
55 000 в год за м2
Позвонить Подробнее
Цветной бульвар (6 мин. 🚶)
Москва, Троицкая улица, 5
Жилое здание «Троицкая 5»
Тип: Офисы
Площадь: 596.40 м2
Отделка:выполнена высококачественная отделка
5 000 000 в месяц
100 604 в год за м2
Позвонить Подробнее
Цветной бульвар (6 мин. 🚶)
Москва, Троицкая улица, 5
Жилое здание «Троицкая 5»
Тип: Офисы
Площадь: 331.70 м2
Отделка:выполнена высококачественная отделка
2 200 000 в месяц
79 590 в год за м2
Позвонить Подробнее