Аренда офиса Особняк "Покровка 27с5"

Объект успешно реализован!
Аренда офиса Особняк Аренда офиса Особняк Аренда офиса Особняк Аренда офиса Особняк
Аренда офиса Особняк Аренда офиса Особняк Аренда офиса Особняк Аренда офиса Особняк
Москва, улица Покровка, 27с5
Объект успешно реализован, но у нас есть много других интересных предложений. Позвоните по телефону +7 495 230-28-26, либо оставьте заявку на подбор прямо сейчас и получите список подходящих для вас объектов.
загрузка карты...
Аренда в год за м2 27 755 ₽
Аренда в месяц 1 700 000 ₽
Схема сделки прямая аренда
Кириченко Константин Юрьевич

Объект ведет консультант:

Кириченко Константин Юрьевич

Общие
ID 46059
Тип сделки Аренда
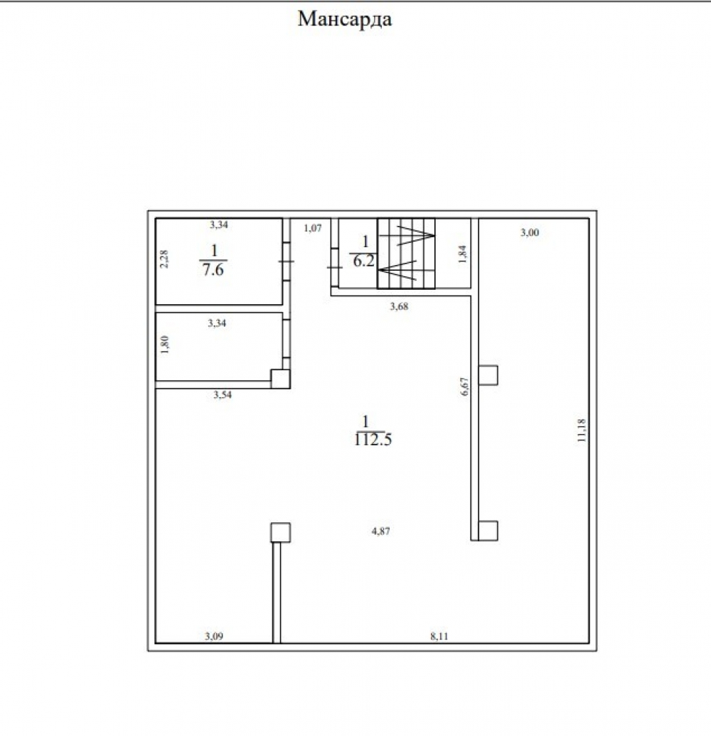
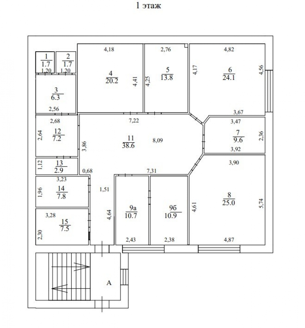
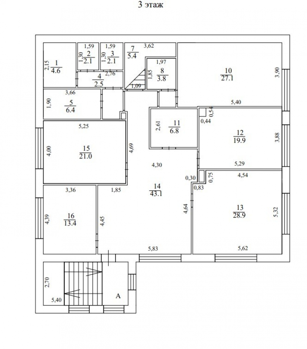
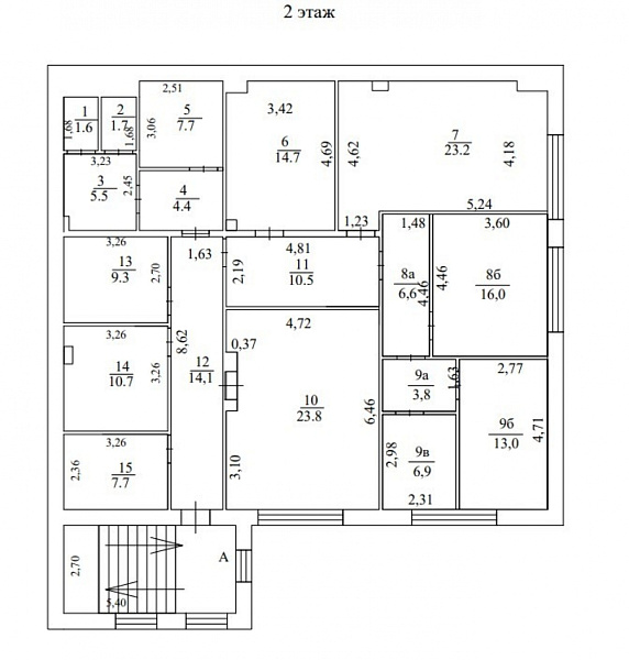
Площадь 735.00
Площадь всего 735.00
Тип объекта Особняк
Этаж -1 - 3
Всего этажей в здании 3
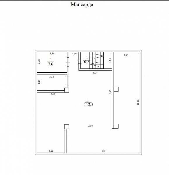
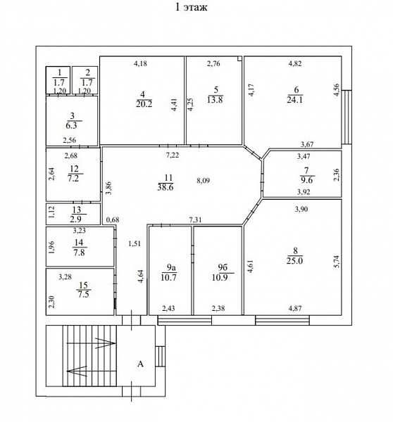
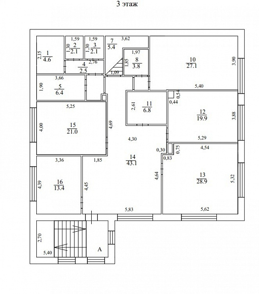
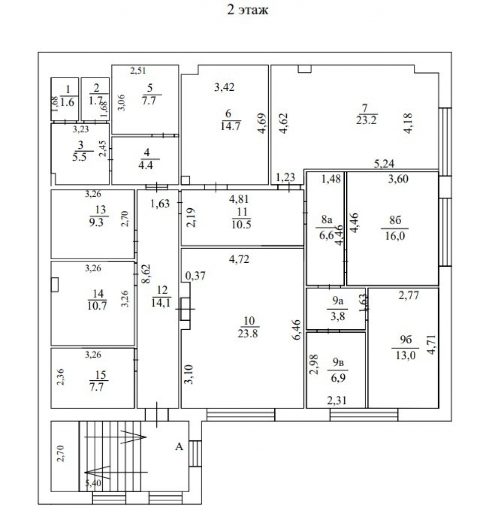
Метраж по этажам
Этаж: 1 - 200 м2
Этаж: 2 - 200 м2
Этаж: 3 - 200 м2
Этаж: Мансарда - 135 м2
Информация об объекте
Состояние объекта рабочее
Планировка Залы и кабинеты
Перекрытия Железобетонные
Нюансы Отдельный вход
Коммерческие условия
Аренда в год за м2 27 755 ₽
Аренда в месяц 1 700 000 ₽
Схема сделки прямая аренда
Тип собственника Юридическое лицо

Описание объекта
Предлагается в аренду 3х этажный Особняк с мансардой (строго под офис), по адресу: улица Покровка, 27с5. Общая площадь 735 м2, высота потолков 2,90 метров, отделка стандартная, все коммуникации. 6 мокрых точек, по 2 на каждом этаже. Выделенная мощность – 80 кВт.  Въезд под шлагбаум, 6 машиномест.

Наша оценка
Локация
Цена
Техническое оснащение
Состояние
Метраж
Общая оценка 4.8

Нужна консультация по подбору помещения под офис?

Наши специалисты подберут для вас самые выгодные варианты для долгосрочного инвестирования,
помогут в сопровождении и сделки, проверят все юридические вопросы касаемо приобретения недвижимости.

* Нажимая на кнопку «Отправить», Вы даете согласие на обработку персональных данных в соответствии с Политикой конфиденциальности

Похожие объекты

Речной вокзал (32 мин. 🚗)
Москва, Химки, Ленинградская улица, 25
Бизнес-центр «KHIMKI ONE»
Тип: Офисы
Площадь: 689.93 м2
Отделка:выполнена стандартная офисная отделка
1 121 136 в месяц
19 500 в год за м2
Позвонить Подробнее
Павелецкая (10 мин. 🚶)
Москва, Космодамианская набережная, 52с4
БЦ «Риверсайд Тауэрс»
Тип: Офисы
Площадь: 703.00 м2
Отделка:выполнена стандартная офисная отделка
3 796 200 в месяц
64 800 в год за м2
Позвонить Подробнее
Международная (5 мин. 🚶)
Москва, Пресненская набережная, 10А
Бизнес-центр «Башня на набережной»
Тип: Офисы
Площадь: 742.00 м2
Отделка:выполнена стандартная офисная отделка
7 791 000 в месяц
126 000 в год за м2
Позвонить Подробнее
Калужская (15 мин. 🚶)
Москва, Новочерёмушкинская улица, 71/32
ЖК Дом Газпрома
Тип: Офисы
Площадь: 799.10 м2
Отделка:выполнена стандартная офисная отделка
1 598 200 в месяц
24 000 в год за м2
Позвонить Подробнее
Новослободская (5 мин. 🚶)
Москва, Краснопролетарская улица, 36
Бизнес-центр «Амбер Плаза»
Тип: Офисы
Площадь: 728.00 м2
Отделка:качественная отделка
4 004 000 в месяц
66 000 в год за м2
Позвонить Подробнее
Кунцевская (10 мин. 🚗)
Москва, Можайское шоссе, 165
Бизнес-центр «Premium West»
Тип: Офисы
Площадь: 700.00 м2
Отделка:качественная отделка
1 050 000 в месяц
18 000 в год за м2
Позвонить Подробнее
Смоленская (Филевская) Смоленская (Арбатско-Покровская) (3 мин. 🚶)
Москва, Смоленская площадь, 3
Бизнес-центр «Смоленский пассаж»
Тип: Офисы
Площадь: 720.00 м2
Отделка:выполнена стандартная офисная отделка
3 526 530 в месяц
58 776 в год за м2
Позвонить Подробнее
Киевская (6 мин. 🚶)
Москва, Улица Можайский Вал, 8
Бизнес-центр «Атлантик»
Тип: Офисы
Площадь: 784.30 м2
Отделка:выполнена высококачественная отделка
3 921 500 в месяц
60 000 в год за м2
Позвонить Подробнее
Цветной бульвар (4 мин. 🚶)
Москва, Садовая-Самотёчная улица, 24/27
Бизнес-центр «Мосэнка Плаза 3»
Тип: Офисы
Площадь: 662.00 м2
Отделка:выполнена стандартная офисная отделка
3 508 600 в месяц
63 600 в год за м2
Позвонить Подробнее
Академическая (9 мин. 🚶)
Москва, Проспект 60-летия Октября, 10А
Бизнес-центр «Principal Plaza» Принципал Плаза
Тип: Офисы
Площадь: 755.20 м2
Отделка:отделка арендатора
2 945 280 в месяц
46 800 в год за м2
Позвонить Подробнее
Добрынинская (2 мин. 🚶)
Москва, Валовая улица, 35
Бизнес-центр «Wall Street»
Тип: Офисы
Площадь: 746.00 м2
Отделка:выполнена высококачественная отделка
3 605 667 в месяц
58 000 в год за м2
Позвонить Подробнее
Дмитровская (5 мин. 🚶)
Москва, Бутырская улица, 77
Бизнес-центр "Диагональ Хаус"
Тип: Офисы
Площадь: 690.00 м2
Отделка:выполнена стандартная офисная отделка
2 012 500 в месяц
35 000 в год за м2
Позвонить Подробнее
Ботанический сад (10 мин. 🚗)
Москва, улица Докукина, 8с2
Бизнес-центр "Ультрамарин"
Тип: Офисы
Площадь: 258.40 м2
Отделка:выполнена стандартная офисная отделка
538 333 в месяц
25 000 в год за м2
Позвонить Подробнее
Чкаловская (10 мин. 🚶)
Москва, Покровский бульвар, 3с1Б
Покровский бульвар, 3с1Б
Тип: Офисы
Площадь: 285.00 м2
Отделка:выполнена стандартная офисная отделка
712 500 в месяц
30 000 в год за м2
Позвонить Подробнее
Водный стадион (14 мин. 🚶)
Москва, Выборгская улица, 16с4
Бизнес-центр «Выборгская 16 с4»
Тип: Офисы
Площадь: 252.00 м2
Отделка:качественная отделка
567 000 в месяц
27 000 в год за м2
Позвонить Подробнее
Чкаловская (7 мин. 🚶)
Москва, Подсосенский переулок, 21с2
Особняк «Подсосенский 21 с2»
Тип: Офисы
Площадь: 212.20 м2
Отделка:выполнена стандартная офисная отделка
450 000 в месяц
25 448 в год за м2
Позвонить Подробнее
Калужская (10 мин. 🚶)
Москва, Улица Бутлерова, 17
Бизнес-центр «NEO GEO»
Тип: Офисы
Площадь: 173.00 м2
Отделка:отделка арендатора
375 000 в месяц
26 012 в год за м2
Позвонить Подробнее
Белорусская (12 мин. 🚶)
Москва, 5-я улица Ямского Поля, 5с1
Бизнес-центр «Ямское Плаза»
Тип: Офисы
Площадь: 1032.70 м2
Отделка:выполнена стандартная офисная отделка
2 354 556 в месяц
27 360 в год за м2
Позвонить Подробнее
Кунцевская (8 мин. 🚗)
Москва, Верейская улица, 29с134
Бизнес-центр «Верейская плаза III»
Тип: Офисы
Площадь: 334.50 м2
Отделка:выполнена стандартная офисная отделка
836 250 в месяц
30 000 в год за м2
Позвонить Подробнее
Павелецкая (7 мин. 🚶)
Москва, Летниковская улица, 18с1
Офисное здание «Летниковская 18 с1»
Тип: Офисы
Площадь: 590.00 м2
Отделка:отделка арендатора
1 357 000 в месяц
27 600 в год за м2
Позвонить Подробнее
Кунцевская (8 мин. 🚗)
Москва, Верейская улица, 29с134
Бизнес-центр «Верейская плаза III»
Тип: Офисы
Площадь: 277.30 м2
Отделка:выполнена стандартная офисная отделка
647 033 в месяц
28 000 в год за м2
Позвонить Подробнее
Белорусская (12 мин. 🚶)
Москва, 5-я улица Ямского Поля, 5с1
Бизнес-центр «Ямское Плаза»
Тип: Офисы
Площадь: 352.95 м2
Отделка:выполнена стандартная офисная отделка
804 726 в месяц
27 360 в год за м2
Позвонить Подробнее
Кунцевская (8 мин. 🚗)
Москва, Верейская улица, 29с134
Бизнес-центр «Верейская плаза III»
Тип: Офисы
Площадь: 190.40 м2
Отделка:выполнена стандартная офисная отделка
476 000 в месяц
30 000 в год за м2
Позвонить Подробнее
Алексеевская (7 мин. 🚶)
Москва, улица Годовикова, 9с15
ОСЗ "Годовикова, 9с15"
Тип: Офисы
Площадь: 1687.50 м2
Отделка:выполнена стандартная офисная отделка
3 751 875 в месяц
26 680 в год за м2
Позвонить Подробнее