Аренда офиса Бизнес-центр «GreenPoint»

Аренда офиса Бизнес-центр «GreenPoint»
Москва, Химки, улица Панфилова, 19/1
Позвоните по телефону +7 495 230-28-26, либо оставьте заявку на просмотр прямо сейчас и узнайте условия специального предложения по объекту.
загрузка карты...
Аренда в год за м2 25 000 ₽
Аренда в месяц 496 875 ₽
Схема сделки прямая аренда
Первушина Марина Алексеевна

Объект ведет консультант:

Первушина Марина Алексеевна

Общие
ID 56995
Тип сделки Аренда
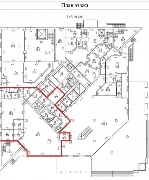
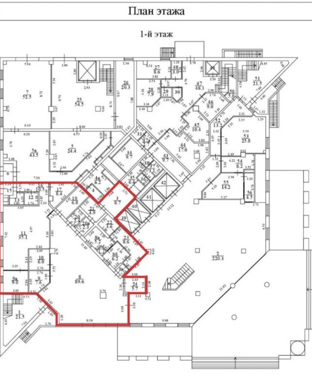
Площадь 238.50
Площадь всего 15296.00
Тип объекта Бизнес-центр
Класс здания B
Этаж 1
Всего этажей в здании 17
Метраж по этажам
Информация об объекте
Состояние блока выполнена стандартная офисная отделка
Планировка Смешанная
Коммуникации Система видеонаблюдения,Интернет,Телефония
Парковка многоуровневая 3600р/мес
КПП Гостевой пропуск
Коммерческие условия
Аренда в год за м2 25 000 ₽
Аренда в месяц 496 875 ₽
Схема сделки прямая аренда
Тип собственника Юридическое лицо

Описание объекта
Предлагаем в аренду помещение банка на первом этаже бизнес-центра класса В+ в Химках. До метро Планерная предусмотрен бесплатный шаттл.
Помещение смешанной планировки (зона open-space и переговорные), стандартный ремонт, отдельный вход с улицы и с зоны БЦ. В здании установлена приторно-вытяжная вентиляция и центральное кондиционирование.
За дополнительную плату предоставляются места на парковке.
Помещение свободно к заезду.

Нужна консультация по подбору помещения под офис?

Наши специалисты подберут для вас самые выгодные варианты для долгосрочного инвестирования,
помогут в сопровождении и сделки, проверят все юридические вопросы касаемо приобретения недвижимости.

* Нажимая на кнопку «Отправить», Вы даете согласие на обработку персональных данных в соответствии с Политикой конфиденциальности

Похожие объекты

Речной вокзал (14 мин. 🚗)
Москва, Смольная улица, 14
Бизнес-центр «Смольный»
Тип: Офисы
Площадь: 221.47 м2
Отделка:выполнена стандартная офисная отделка
461 396 в месяц
25 000 в год за м2
Позвонить Подробнее
Водный стадион (14 мин. 🚶)
Москва, Выборгская улица, 16с4
Бизнес-центр «Выборгская 16 с4»
Тип: Офисы
Площадь: 222.00 м2
Отделка:качественная отделка
507 825 в месяц
27 450 в год за м2
Позвонить Подробнее
Добрынинская (9 мин. 🚶)
Москва, Пятницкая улица, 55/25с4
Бизнес-центр «Пятницкая 55/25 с4»
Тип: Офисы
Площадь: 242.30 м2
Отделка:выполнена стандартная офисная отделка
666 325 в месяц
33 000 в год за м2
Позвонить Подробнее
Авиамоторная (13 мин. 🚶)
Москва, Проезд Завода Серп и Молот, 10
Бизнес-центр «Интеграл»
Тип: Офисы
Площадь: 255.30 м2
Отделка:выполнена стандартная офисная отделка
778 665 в месяц
36 600 в год за м2
Позвонить Подробнее
Бунинская аллея (4 мин. 🚶)
Москва, улица Адмирала Руднева, 20
БЦ "Варяг"
Тип: Офисы
Площадь: 220.00 м2
Отделка:качественная отделка
210 000 в месяц
11 455 в год за м2
Позвонить Подробнее
Тульская (2 мин. 🚶)
Москва, Гамсоновский переулок, 2с11
Бизнес-центр "Рябовская мануфактура" Ryabov LOFT
Тип: Офисы
Площадь: 236.40 м2
Отделка:выполнена высококачественная отделка
985 000 в месяц
50 000 в год за м2
Позвонить Подробнее
Ленинский проспект (10 мин. 🚶)
Москва, Улица Орджоникидзе, 11с10
Бизнес-парк «Оржоникидзе 11»
Тип: Офисы
Площадь: 228.20 м2
Отделка:выполнена стандартная офисная отделка
855 750 в месяц
45 000 в год за м2
Позвонить Подробнее
Красносельская (10 мин. 🚶)
Москва, Спартаковский переулок, 2с1
Лофт-квартал «Платформа»
Тип: Офисы
Площадь: 230.00 м2
Отделка:выполнена стандартная офисная отделка
620 000 в месяц
32 348 в год за м2
Позвонить Подробнее
Павелецкая (7 мин. 🚶)
Москва, Кожевническая улица, 13с1
Историческая усадьба Скворцовых
Тип: Офисы
Площадь: 240.00 м2
Отделка:требуется косметический ремонт
1 200 000 в месяц
60 000 в год за м2
Позвонить Подробнее
Шелепиха (10 мин. 🚶)
Москва, Заречная улица, вл6/1
Бизнес - центр "Эйлер"
Тип: Офисы
Площадь: 253.00 м2
Отделка:Shell and Core
1 096 333 в месяц
52 000 в год за м2
Позвонить Подробнее
Планерная (28 мин. 🚗)
Москва, Куркинское шоссе, 2
Бизнес-центр «Aero City»
Тип: Офисы
Площадь: 228.40 м2
Отделка:Shell and Core
228 107 в месяц
11 985 в год за м2
Позвонить Подробнее
(6 мин. 🚶)
Москва, Никитский переулок, 4с1
Офисное здание «Никитский 4 с1»
Тип: Офисы
Площадь: 240.00 м2
Отделка:выполнена стандартная офисная отделка
1 330 000 в месяц
66 500 в год за м2
Позвонить Подробнее
Речной вокзал (14 мин. 🚗)
Москва, Смольная улица, 14
Бизнес-центр «Смольный»
Тип: Офисы
Площадь: 221.47 м2
Отделка:выполнена стандартная офисная отделка
461 396 в месяц
25 000 в год за м2
Позвонить Подробнее
Водный стадион (14 мин. 🚶)
Москва, Выборгская улица, 16с4
Бизнес-центр «Выборгская 16 с4»
Тип: Офисы
Площадь: 222.00 м2
Отделка:качественная отделка
507 825 в месяц
27 450 в год за м2
Позвонить Подробнее
Ботанический сад (12 мин. 🚶)
Москва, улица Докукина, 16с1
Бизнес-центр «Леоново»
Тип: Офисы
Площадь: 894.30 м2
Отделка:выполнена стандартная офисная отделка
1 894 426 в месяц
25 420 в год за м2
Позвонить Подробнее
Ботанический сад (12 мин. 🚶)
Москва, улица Докукина, 16с1
Бизнес-центр «Леоново»
Тип: Офисы
Площадь: 540.00 м2
Отделка:выполнена стандартная офисная отделка
1 125 000 в месяц
25 000 в год за м2
Позвонить Подробнее
Шаболовская (10 мин. 🚗)
Москва, 2-й Верхний Михайловский проезд, 9с5
Офисное здание «2-й Верхний Михайловский 9 с5»
Тип: Офисы
Площадь: 523.60 м2
Отделка:выполнена стандартная офисная отделка
1 108 985 в месяц
25 416 в год за м2
Позвонить Подробнее
ВДНХ (15 мин. 🚶)
Москва, Ракетный бульвар, 16
Бизнес-центр «Алексеевская Башня»
Тип: Офисы
Площадь: 333.90 м2
Отделка:выполнена стандартная офисная отделка
712 877 в месяц
25 620 в год за м2
Позвонить Подробнее
Белорусская (10 мин. 🚶)
Москва, Средний Тишинский переулок, 28
Бизнес-центр «Чайка Плаза 2»
Тип: Офисы
Площадь: 112.00 м2
Отделка:качественная отделка
256 667 в месяц
27 500 в год за м2
Позвонить Подробнее
Багратионовская (4 мин. 🚶)
Москва, Улица Барклая, 13с1
БЦ Барклая 13
Тип: Офисы
Площадь: 371.40 м2
Отделка:выполнена стандартная офисная отделка
780 000 в месяц
25 202 в год за м2
Позвонить Подробнее
Кожуховская (6 мин. 🚶)
Москва, 2-й Южнопортовый проезд, 14/22
Офисно-складской комплекс «Южнопортовый»
Тип: Офисы
Площадь: 2500.00 м2
Отделка:требуется косметический ремонт
5 000 000 в месяц
24 000 в год за м2
Позвонить Подробнее
Кожуховская (6 мин. 🚶)
Москва, 2-й Южнопортовый проезд, 14/22
Офисно-складской комплекс «Южнопортовый»
Тип: Офисы
Площадь: 1520.00 м2
Отделка:требуется косметический ремонт
3 040 000 в месяц
24 000 в год за м2
Позвонить Подробнее
Кожуховская (6 мин. 🚶)
Москва, 2-й Южнопортовый проезд, 14/22
Офисно-складской комплекс «Южнопортовый»
Тип: Офисы
Площадь: 980.00 м2
Отделка:выполнена стандартная офисная отделка
1 960 000 в месяц
24 000 в год за м2
Позвонить Подробнее
Кожуховская (6 мин. 🚶)
Москва, 2-й Южнопортовый проезд, 14/22
Офисно-складской комплекс «Южнопортовый»
Тип: Офисы
Площадь: 670.00 м2
Отделка:требуется косметический ремонт
1 340 000 в месяц
24 000 в год за м2
Позвонить Подробнее
Планерная (28 мин. 🚗)
Москва, Куркинское шоссе, 2
Бизнес-центр «Aero City»
Тип: Офисы
Площадь: 628.10 м2
Отделка:Shell and Core
688 869 в месяц
13 161 в год за м2
Позвонить Подробнее
Планерная (28 мин. 🚗)
Москва, Куркинское шоссе, 2
Бизнес-центр «Aero City»
Тип: Офисы
Площадь: 431.60 м2
Отделка:Shell and Core
431 025 в месяц
11 984 в год за м2
Позвонить Подробнее
Планерная (28 мин. 🚗)
Москва, Куркинское шоссе, 2
Бизнес-центр «Aero City»
Тип: Офисы
Площадь: 187.30 м2
Отделка:Shell and Core
308 967 в месяц
19 795 в год за м2
Позвонить Подробнее
Планерная (28 мин. 🚗)
Москва, Куркинское шоссе, 2
Бизнес-центр «Aero City»
Тип: Офисы
Площадь: 265.30 м2
Отделка:Shell and Core
284 192 в месяц
12 855 в год за м2
Позвонить Подробнее
Планерная (28 мин. 🚗)
Москва, Куркинское шоссе, 2
Бизнес-центр «Aero City»
Тип: Офисы
Площадь: 228.40 м2
Отделка:Shell and Core
228 107 в месяц
11 985 в год за м2
Позвонить Подробнее
Планерная (28 мин. 🚗)
Москва, Куркинское шоссе, 2
Бизнес-центр «Aero City»
Тип: Офисы
Площадь: 995.30 м2
Отделка:Shell and Core
993 973 в месяц
11 984 в год за м2
Позвонить Подробнее
Планерная (24 мин. 🚗)
Москва, Химки, улица Панфилова, 19/1
Бизнес-центр «GreenPoint»
Тип: Офисы
Площадь: 397.00 м2
Отделка:выполнена стандартная офисная отделка
612 042 в месяц
18 500 в год за м2
Позвонить Подробнее
Планерная (24 мин. 🚗)
Москва, Химки, улица Панфилова, 19/1
Бизнес-центр «GreenPoint»
Тип: Офисы
Площадь: 480.56 м2
Отделка:выполнена стандартная офисная отделка
740 863 в месяц
18 500 в год за м2
Позвонить Подробнее
Планерная (25 мин. 🚗)
Москва, Международное шоссе, 28Бс3
Бизнес-центр «Скайпойнт»
Тип: Офисы
Площадь: 1099.60 м2
Отделка:выполнена стандартная офисная отделка
1 392 827 в месяц
15 200 в год за м2
Позвонить Подробнее
Планерная (25 мин. 🚗)
Москва, Международное шоссе, 28Бс3
Бизнес-центр «Скайпойнт»
Тип: Офисы
Площадь: 548.30 м2
Отделка:выполнена стандартная офисная отделка
694 513 в месяц
15 200 в год за м2
Позвонить Подробнее
Планерная (12 мин. 🚗)
Москва, Химки, Ленинградская улица, 39с5
Бизнес-парк «Химки A»
Тип: Офисы
Площадь: 337.50 м2
Отделка:выполнена стандартная офисная отделка
506 250 в месяц
18 000 в год за м2
Позвонить Подробнее
Планерная (12 мин. 🚗)
Москва, Химки, Ленинградская улица, 39с5
Бизнес-парк «Химки A»
Тип: Офисы
Площадь: 1420.30 м2
Отделка:выполнена стандартная офисная отделка
2 130 450 в месяц
18 000 в год за м2
Позвонить Подробнее