Аренда индустриальной недвижимости Парк Рябиновая

Аренда индустриальной недвижимости Парк Рябиновая Аренда индустриальной недвижимости Парк Рябиновая Аренда индустриальной недвижимости Парк Рябиновая
Аренда индустриальной недвижимости Парк Рябиновая - превью Аренда индустриальной недвижимости Парк Рябиновая - превью Аренда индустриальной недвижимости Парк Рябиновая - превью
Москва, Рябиновая улица, 44
Позвоните по телефону +7 495 230-28-26, либо оставьте заявку на просмотр прямо сейчас и узнайте условия специального предложения по объекту.
загрузка карты...
Аренда в год за м2 20 000 ₽
Аренда в месяц 3 333 333 ₽
Схема сделки прямая аренда
Шеин Михаил Юрьевич

Объект ведет консультант:

Шеин Михаил Юрьевич

Общие
ID 59833
Тип сделки Аренда
Площадь 2000.00
Площадь всего 16764.00
Тип объекта Складской комплекс
Этаж 1
Всего этажей в здании 6
Метраж по этажам
Информация об объекте
Состояние объекта требуется реконструкция
Состояние блока Shell and Core
Планировка Открытая
Перекрытия Железобетонные
Коммерческие условия
Аренда в год за м2 20 000 ₽
Аренда в месяц 3 333 333 ₽
Схема сделки прямая аренда

Описание объекта
Предлагается в аренду помещение в "Парке Рябиновая", по адресу: Рябиновая улица, 44.
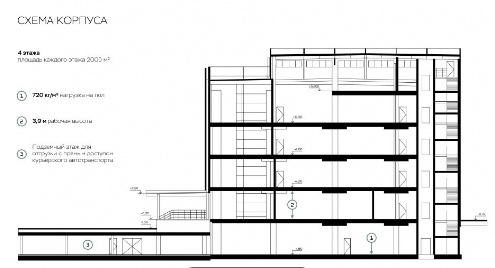
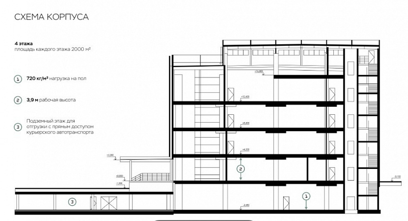
Помещение на 2 этаже, общей площадью 2 000 м2. 8х8м. шаг колонн; Бетонный пол с антипылевым покрытием (720 кг/м² нагрузка на пол). 4 грузовых лифта грузоподъемностью 5 т.; Автоматические секционные ворота. Подземный этаж для отгрузки с прямым доступом курьерского автотранспорта. Пандус для разгрузки малотоннажного транспорта (+0,9 м). Электроснабжение — 2 МВт, II категория.

Нужна консультация ?

Наши специалисты подберут для вас самые выгодные варианты для долгосрочного инвестирования,
помогут в сопровождении и сделки, проверят все юридические вопросы касаемо приобретения недвижимости.

* Нажимая на кнопку «Отправить», Вы даете согласие на обработку персональных данных в соответствии с Политикой конфиденциальности

Похожие объекты

Ховрино (35 мин. 🚗)
Московская область, Химки, микрорайон Сходня, улица Некрасова, вл69с1
ОСЗ "Химки, микрорайон Сходня, ул. Некрасова, вл69с1"
Тип: Индустриальная недвижимость
Площадь: 2000.00 м2
2 100 000 в месяц
12 600 в год за м2
Позвонить Подробнее
Царицыно (31 мин. 🚗)
Москва, 6-я Радиальная улица, 17
ПСК "КЛАСТЕР" 6-я Радиальная 17
Тип: Индустриальная недвижимость
Площадь: 2048.00 м2
2 969 600 в месяц
17 400 в год за м2
Позвонить Подробнее
Новохохловская (8 мин. 🚶)
Москва, Новохохловская улица, 21к2с3
ОСК "Ринг Парк"
Тип: Индустриальная недвижимость
Площадь: 2084.50 м2
3 126 750 в месяц
18 000 в год за м2
Позвонить Подробнее
Мякинино (30 мин. 🚶)
Московская область, Красногорск, Красногорский бульвар, 4с1
ТЦ "Терабит"
Тип: Индустриальная недвижимость
Площадь: 2000.00 м2
2 000 000 в месяц
12 000 в год за м2
Позвонить Подробнее

Московская область, Ленинский городской округ, Видное, Северная промзона, вл16
СК "Бразис Логистик"
Тип: Индустриальная недвижимость
Площадь: 1975.00 м2
1 826 875 в месяц
11 100 в год за м2
Позвонить Подробнее
Павелецкая (10 мин. 🚗)
Москва, Павелецкая набережная, 2с18
Бизнес-парк «Loft Ville»
Тип: Индустриальная недвижимость
Площадь: 1700.00 м2
2 720 000 в месяц
19 200 в год за м2
Позвонить Подробнее
Отрадное (8 мин. 🚗)
Москва, Алтуфьевское шоссе, 27Ас1
AFI Пром Алтуфьево
Тип: Индустриальная недвижимость
Площадь: 1555.40 м2
2 721 950 в месяц
21 000 в год за м2
Позвонить Подробнее
Отрадное (8 мин. 🚗)
Москва, Алтуфьевское шоссе, 27Ас1
AFI Пром Алтуфьево
Тип: Индустриальная недвижимость
Площадь: 983.40 м2
1 720 950 в месяц
21 000 в год за м2
Позвонить Подробнее
Отрадное (8 мин. 🚗)
Москва, Алтуфьевское шоссе, 27Ас1
AFI Пром Алтуфьево
Тип: Индустриальная недвижимость
Площадь: 1523.60 м2
2 666 300 в месяц
21 000 в год за м2
Позвонить Подробнее
Отрадное (8 мин. 🚗)
Москва, Алтуфьевское шоссе, 27Ас1
AFI Пром Алтуфьево
Тип: Индустриальная недвижимость
Площадь: 965.70 м2
1 689 975 в месяц
21 000 в год за м2
Позвонить Подробнее
Выхино (19 мин. 🚶)
Москва, Косинская улица, 7
Офисно-производственный комплекс "Косинская улица, 7"
Тип: Индустриальная недвижимость
Площадь: 1036.50 м2
1 900 000 в месяц
21 997 в год за м2
Позвонить Подробнее
Царицыно (31 мин. 🚗)
Москва, 6-я Радиальная улица, 17
ПСК "КЛАСТЕР" 6-я Радиальная 17
Тип: Индустриальная недвижимость
Площадь: 1157.80 м2
1 821 370 в месяц
18 878 в год за м2
Позвонить Подробнее
Новохохловская (8 мин. 🚶)
Москва, Новохохловская улица, 21к2с3
ОСК "Ринг Парк"
Тип: Индустриальная недвижимость
Площадь: 2084.50 м2
3 126 750 в месяц
18 000 в год за м2
Позвонить Подробнее
Саларьево (17 мин. 🚶)
Москва, Новомосковский административный округ, район Коммунарка, квартал № 74, 1с2
Складской комплекс "Саларьево"
Тип: Индустриальная недвижимость
Площадь: 3600.00 м2
5 400 000 в месяц
18 000 в год за м2
Позвонить Подробнее
Саларьево (17 мин. 🚶)
Москва, Новомосковский административный округ, район Коммунарка, квартал № 74, 1с2
Складской комплекс "Саларьево"
Тип: Индустриальная недвижимость
Площадь: 7200.00 м2
10 800 000 в месяц
18 000 в год за м2
Позвонить Подробнее
Царицыно (31 мин. 🚗)
Москва, 6-я Радиальная улица, 17
ПСК "КЛАСТЕР" 6-я Радиальная 17
Тип: Индустриальная недвижимость
Площадь: 2553.80 м2
3 845 570 в месяц
18 070 в год за м2
Позвонить Подробнее
Верхние Лихоборы Лихоборы (20 мин. 🚗)
Москва, Лихоборская набережная, 11с16
Здание "Лихоборская набережная, 11с16"
Тип: Индустриальная недвижимость
Площадь: 239.00 м2
358 500 в месяц
18 000 в год за м2
Позвонить Подробнее
Озёрная (15 мин. 🚗)
Москва, Рябиновая улица, 53с2
Производственно-складской комплекс ММВЗ
Тип: Индустриальная недвижимость
Площадь: 3395.00 м2
6 507 083 в месяц
23 000 в год за м2
Позвонить Подробнее
Озёрная (7 мин. 🚗)
Москва, Рябиновая улица, 44
Парк Рябиновая
Тип: Индустриальная недвижимость
Площадь: 3040.00 м2
5 066 667 в месяц
20 000 в год за м2
Позвонить Подробнее