Аренда индустриальной недвижимости Парк Рябиновая

Аренда индустриальной недвижимости Парк Рябиновая Аренда индустриальной недвижимости Парк Рябиновая Аренда индустриальной недвижимости Парк Рябиновая
Аренда индустриальной недвижимости Парк Рябиновая - превью Аренда индустриальной недвижимости Парк Рябиновая - превью Аренда индустриальной недвижимости Парк Рябиновая - превью
Москва, Рябиновая улица, 44
Позвоните по телефону +7 495 230-28-26, либо оставьте заявку на просмотр прямо сейчас и узнайте условия специального предложения по объекту.
загрузка карты...
Аренда в год за м2 20 000 ₽
Аренда в месяц 5 066 667 ₽
Схема сделки прямая аренда
Шеин Михаил Юрьевич

Объект ведет консультант:

Шеин Михаил Юрьевич

Общие
ID 59834
Тип сделки Аренда
Площадь 3040.00
Площадь всего 16764.00
Тип объекта Складской комплекс
Этаж 1
Всего этажей в здании 6
Метраж по этажам
Информация об объекте
Состояние объекта требуется реконструкция
Состояние блока Shell and Core
Планировка Открытая
Перекрытия Железобетонные
Коммерческие условия
Аренда в год за м2 20 000 ₽
Аренда в месяц 5 066 667 ₽
Схема сделки прямая аренда

Описание объекта
Предлагается в аренду помещение в "Парке Рябиновая", по адресу: Рябиновая улица, 44.
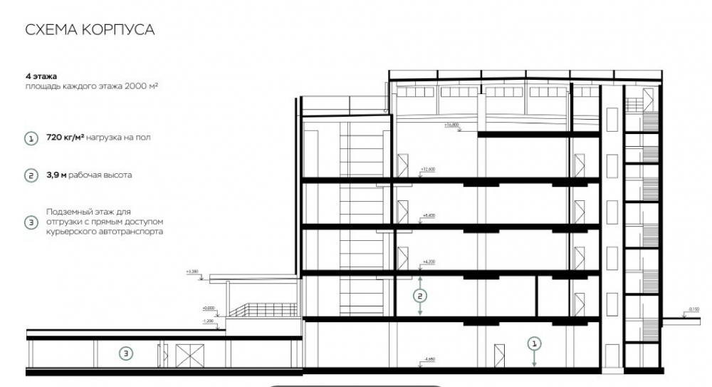
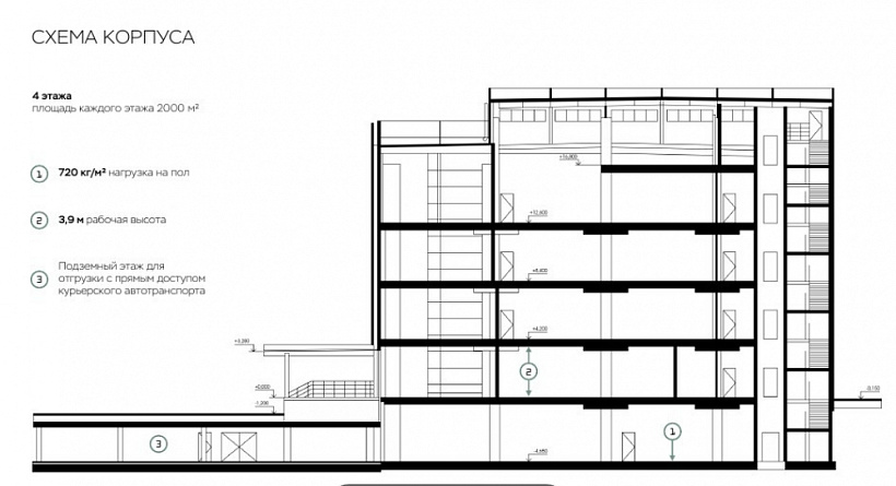
Помещение на -1 этаже + антресоль, общей площадью 3 040 м2. -1 этаж 2 500 м2, антресоль 540 м2.  8х8м. шаг колонн; Бетонный пол с антипылевым покрытием (720 кг/м² нагрузка на пол). 4 грузовых лифта грузоподъемностью 5 т.; Автоматические секционные ворота. Подземный этаж для отгрузки с прямым доступом курьерского автотранспорта. Пандус для разгрузки малотоннажного транспорта (+0,9 м). Электроснабжение — 2 МВт, II категория.

Нужна консультация ?

Наши специалисты подберут для вас самые выгодные варианты для долгосрочного инвестирования,
помогут в сопровождении и сделки, проверят все юридические вопросы касаемо приобретения недвижимости.

* Нажимая на кнопку «Отправить», Вы даете согласие на обработку персональных данных в соответствии с Политикой конфиденциальности

Похожие объекты

(15 мин. 🚗)
Московская область, Долгопрудный, микрорайон Шереметьевский, Южная улица, 1
СК "Элма Шереметьево"
Тип: Индустриальная недвижимость
Площадь: 3000.00 м2
2 700 000 в месяц
10 800 в год за м2
Позвонить Подробнее

Московская область, Дмитровский муниципальный округ, деревня Глазово, территория индустриального парка Северное Шереметьево, 19
Складской комплекс ПЛТ «Северное Шереметьево»
Тип: Индустриальная недвижимость
Площадь: 3000.00 м2
3 125 000 в месяц
12 500 в год за м2
Позвонить Подробнее
Тёплый стан (14 мин. 🚗)
Москва, Новомосковский административный округ, район Коммунарка, Калужское шоссе, 21-й километр, с1
ТЦ "Мега Теплый Стан"
Тип: Индустриальная недвижимость
Площадь: 3000.00 м2
4 125 000 в месяц
16 500 в год за м2
Позвонить Подробнее
Котельники (20 мин. 🚗)
Московская область, Котельники, 1-й Покровский проезд, 5
ТЦ "Мега Белая Дача"
Тип: Индустриальная недвижимость
Площадь: 3000.00 м2
4 125 000 в месяц
16 500 в год за м2
Позвонить Подробнее
Ховрино (29 мин. 🚶)
Московская область, Химки, микрорайон ИКЕА, к1
ТЦ "Мега Химки"
Тип: Индустриальная недвижимость
Площадь: 3000.00 м2
4 125 000 в месяц
16 500 в год за м2
Позвонить Подробнее
Дубровка (1 мин. 🚶)
Москва, Шарикоподшипниковская улица, 13с3
ТЦ ДУБРОВКА
Тип: Индустриальная недвижимость
Площадь: 3240.00 м2
3 402 000 в месяц
12 600 в год за м2
Позвонить Подробнее
Царицыно (31 мин. 🚗)
Москва, 6-я Радиальная улица, 17
ПСК "КЛАСТЕР" 6-я Радиальная 17
Тип: Индустриальная недвижимость
Площадь: 1157.80 м2
1 821 370 в месяц
18 878 в год за м2
Позвонить Подробнее
Новохохловская (8 мин. 🚶)
Москва, Новохохловская улица, 21к2с3
ОСК "Ринг Парк"
Тип: Индустриальная недвижимость
Площадь: 2084.50 м2
3 126 750 в месяц
18 000 в год за м2
Позвонить Подробнее
Саларьево (17 мин. 🚶)
Москва, Новомосковский административный округ, район Коммунарка, квартал № 74, 1с2
Складской комплекс "Саларьево"
Тип: Индустриальная недвижимость
Площадь: 3600.00 м2
5 400 000 в месяц
18 000 в год за м2
Позвонить Подробнее
Саларьево (17 мин. 🚶)
Москва, Новомосковский административный округ, район Коммунарка, квартал № 74, 1с2
Складской комплекс "Саларьево"
Тип: Индустриальная недвижимость
Площадь: 7200.00 м2
10 800 000 в месяц
18 000 в год за м2
Позвонить Подробнее
Царицыно (31 мин. 🚗)
Москва, 6-я Радиальная улица, 17
ПСК "КЛАСТЕР" 6-я Радиальная 17
Тип: Индустриальная недвижимость
Площадь: 2553.80 м2
3 845 570 в месяц
18 070 в год за м2
Позвонить Подробнее
Верхние Лихоборы Лихоборы (20 мин. 🚗)
Москва, Лихоборская набережная, 11с16
Здание "Лихоборская набережная, 11с16"
Тип: Индустриальная недвижимость
Площадь: 239.00 м2
358 500 в месяц
18 000 в год за м2
Позвонить Подробнее
Ховрино (35 мин. 🚗)
Московская область, городской округ Солнечногорск, территория Индустриальный Парк Есипово
ПСК "Есипово" Industrial City
Тип: Индустриальная недвижимость
Площадь: 1335.01 м2
2 002 515 в месяц
18 000 в год за м2
Позвонить Подробнее
Кантемировская (14 мин. 🚗)
Москва, Котляковская улица, 6с3
Офисно-производственный комплекс "Котляковская улица, 6с3"
Тип: Индустриальная недвижимость
Площадь: 866.00 м2
1 450 000 в месяц
20 092 в год за м2
Позвонить Подробнее
Отрадное (8 мин. 🚗)
Москва, Алтуфьевское шоссе, 27Ас1
AFI Пром Алтуфьево
Тип: Индустриальная недвижимость
Площадь: 840.80 м2
1 471 400 в месяц
21 000 в год за м2
Позвонить Подробнее
Отрадное (8 мин. 🚗)
Москва, Алтуфьевское шоссе, 27Ас1
AFI Пром Алтуфьево
Тип: Индустриальная недвижимость
Площадь: 1053.40 м2
1 843 450 в месяц
21 000 в год за м2
Позвонить Подробнее
Отрадное (8 мин. 🚗)
Москва, Алтуфьевское шоссе, 27Ас1
AFI Пром Алтуфьево
Тип: Индустриальная недвижимость
Площадь: 1196.60 м2
2 094 050 в месяц
21 000 в год за м2
Позвонить Подробнее
Отрадное (8 мин. 🚗)
Москва, Алтуфьевское шоссе, 27Ас1
AFI Пром Алтуфьево
Тип: Индустриальная недвижимость
Площадь: 2076.80 м2
3 634 400 в месяц
21 000 в год за м2
Позвонить Подробнее
Озёрная (15 мин. 🚗)
Москва, Рябиновая улица, 53с2
Производственно-складской комплекс ММВЗ
Тип: Индустриальная недвижимость
Площадь: 3395.00 м2
6 507 083 в месяц
23 000 в год за м2
Позвонить Подробнее
Озёрная (7 мин. 🚗)
Москва, Рябиновая улица, 44
Парк Рябиновая
Тип: Индустриальная недвижимость
Площадь: 2000.00 м2
3 333 333 в месяц
20 000 в год за м2
Позвонить Подробнее