Продажа торгового помещения Жилой дом "Ленинградский пр-т 71кГ"

Продажа торгового помещения Жилой дом Продажа торгового помещения Жилой дом Продажа торгового помещения Жилой дом
Продажа торгового помещения Жилой дом Продажа торгового помещения Жилой дом Продажа торгового помещения Жилой дом
Москва, Ленинградский проспект, 71кГ
Позвоните по телефону +7 495 230-28-26, либо оставьте заявку на просмотр прямо сейчас и узнайте условия специального предложения по объекту.
загрузка карты...
Капина Владлена Викторовна

Объект ведет консультант:

Капина Владлена Викторовна

Общие
ID 60529
Тип сделки Продажа
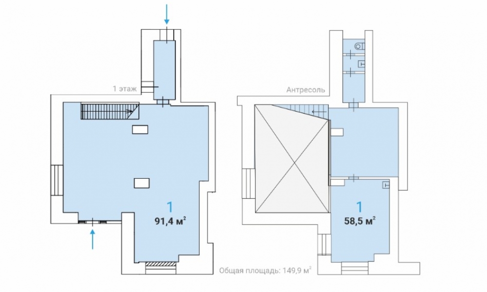
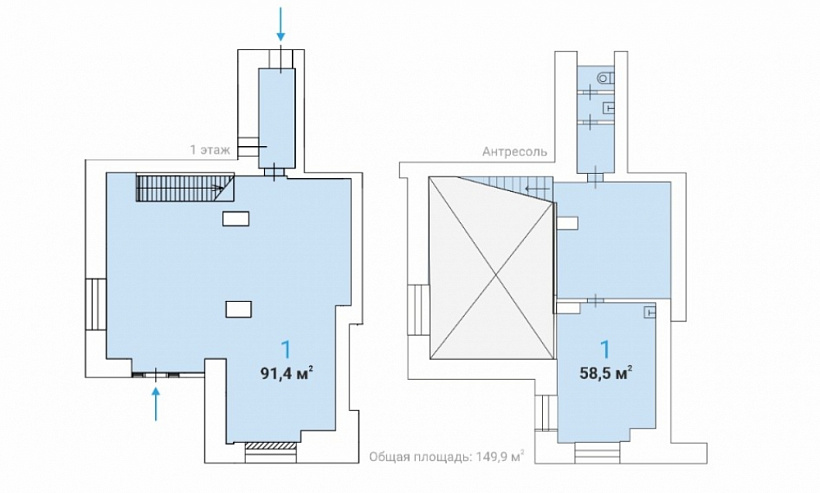
Площадь 105.40
Площадь всего 9785.00
Тип объекта Жилое здание
Этаж 1
Всего этажей в здании 9
Метраж по этажам
Этаж: 1 - 62.8 м2
Этаж: антресоль - 42.6 м2
Информация об объекте
Состояние объекта рабочее
Состояние блока отделка арендатора
Планировка Открытая
Перекрытия Железобетонные
Нюансы Отдельный вход
Торговая недвижимость
Линия домов 1 линия
Возможности Витрины,Место для рекламы,Проходное место,Проездное место
Коммерческие условия
За все 84 000 000 ₽
За м 2 796 964 ₽
Тип собственника Юридическое лицо

Описание объекта
Предлагается на продажу помещение на Ленинградском проспекте, САО, г. Москва. Шаговая доступность от ст. метро «Сокол» — менее 1 минуты пешком. Отличная пешеходная и транспортная доступность.  В окружении находятся жилой комплекс «Соколиное гнездо», бизнес-центр «Алкон», торговый центр «Метромаркет», ВУЗ «Университет Синергия».

Схема сделки: договор купли-продажи недвижимости (ДКПН)

Отлично подойдёт под любой вид деятельности: торговое помещение, магазин, оптика, студия красоты, магазин косметики, офис продаж, кофейня и др.

Нужна консультация покупке или продаже торговых помещений?

Наши специалисты подберут для вас самые выгодные варианты для долгосрочного инвестирования,
помогут в сопровождении и сделки, проверят все юридические вопросы касаемо приобретения недвижимости.

* Нажимая на кнопку «Отправить», Вы даете согласие на обработку персональных данных в соответствии с Политикой конфиденциальности

Похожие объекты

Тульская (9 мин. 🚶)
Москва, ЖК Аура
ЖК "АУРА"
Тип: Торговое помещение
Площадь: 98.40 м2
Мощность:30 кВт
113 317 440 за все
1 151 600 за м2
Позвонить Подробнее
Тульская (9 мин. 🚶)
Москва, ЖК Аура
ЖК "АУРА"
Тип: Торговое помещение
Площадь: 107.90 м2
Мощность:32 кВт
121 560 140 за все
1 126 600 за м2
Позвонить Подробнее
Тульская (9 мин. 🚶)
Москва, ЖК Аура
ЖК "АУРА"
Тип: Торговое помещение
Площадь: 105.70 м2
Мощность:32 кВт
119 419 860 за все
1 129 800 за м2
Позвонить Подробнее
Бульвар Рокоссовского (3 мин. 🚶)
Москва, ЖК Назаре́
ЖК "Назаре"
Тип: Торговое помещение
Площадь: 106.90 м2
Мощность:30 кВт
136 832 000 за все
1 280 000 за м2
Позвонить Подробнее
Чеховская (9 мин. 🚶)
Москва, улица Петровка, 19с7
Особняк "улица Петровка, 19с7"
Тип: Торговое помещение
Площадь: 108.00 м2
Мощность:45 кВт
95 000 000 за все
879 630 за м2
Позвонить Подробнее
Проспект Мира (3 мин. 🚶)
Москва, Проспект Мира, 40
Бизнес-центр «Garden Mir»
Тип: Торговое помещение
Площадь: 100.30 м2
Мощность:30 кВт
275 323 500 за все
2 745 000 за м2
Позвонить Подробнее
Ростокино (5 мин. 🚶)
Москва, Проспект Мира, 222
МФК "Мираполис"
Тип: Торговое помещение
Площадь: 107.40 м2
80 550 000 за все
750 000 за м2
Позвонить Подробнее
Строгино (24 мин. 🚗)
Московская область, городской округ Красногорск, ЖК Рига Хиллс, к1
ЖК Riga Hills (Рига хилс)
Тип: Торговое помещение
Площадь: 100.00 м2
37 924 200 за все
379 242 за м2
Позвонить Подробнее
Ростокино (5 мин. 🚶)
Москва, Проспект Мира, 222
МФК "Мираполис"
Тип: Торговое помещение
Площадь: 100.60 м2
53 318 000 за все
530 000 за м2
Позвонить Подробнее
Краснопресненская (5 мин. 🚶)
Москва, улица Красная Пресня, 12
Жилой дом " Красная Пресня 12"
Тип: Торговое помещение
Площадь: 109.00 м2
113 000 000 за все
1 036 697 за м2
Позвонить Подробнее
Красносельская (5 мин. 🚶)
Москва, Верхняя Красносельская улица, 17Ас1Б
БЦ "Верхняя Красносельская улица, 17Ас1Б"
Тип: Торговое помещение
Площадь: 101.90 м2
24 913 500 за все
244 490 за м2
Позвонить Подробнее
Тульская (11 мин. 🚗)
Москва, ЖК Пейв
ЖК "ПЕЙВ"
Тип: Торговое помещение
Площадь: 94.80 м2
64 151 160 за все
676 700 за м2
Позвонить Подробнее
Первомайская (12 мин. 🚶)
Москва, 5-я Парковая улица, 42
Жилое здание "5-я Парковая улица, 42"
Тип: Торговое помещение
Площадь: 286.50 м2
Мощность:15 кВт
76 000 000 за все
265 271 за м2
Позвонить Подробнее
Ростокино (5 мин. 🚶)
Москва, Проспект Мира, 222
МФК "Мираполис"
Тип: Торговое помещение
Площадь: 107.40 м2
80 550 000 за все
750 000 за м2
Позвонить Подробнее
Некрасовка (10 мин. 🚶)
Москва, Рождественская улица, 27к1
Жилой дом "Рождественская 27"
Тип: Торговое помещение
Площадь: 363.40 м2
Мощность:25 кВт
86 400 000 за все
237 755 за м2
Позвонить Подробнее
Краснопресненская (5 мин. 🚶)
Москва, улица Красная Пресня, 12
Жилой дом " Красная Пресня 12"
Тип: Торговое помещение
Площадь: 52.90 м2
77 000 000 за все
1 455 577 за м2
Позвонить Подробнее
Домодедовская (20 мин. 🚗)
Московская область, городской округ Домодедово, село Домодедово, Высотная улица, 9
ЖК "Домодедово парк"
Тип: Торговое помещение
Площадь: 202.00 м2
Мощность:40 кВт
79 499 000 за все
393 559 за м2
Позвонить Подробнее
Братиславская (4 мин. 🚶)
Москва, улица Перерва, 54
Жилое здание "Перерва, 54"
Тип: Торговое помещение
Площадь: 717.00 м2
Мощность:40 кВт
85 000 000 за все
118 550 за м2
Позвонить Подробнее
Боровское шоссе (17 мин. 🚗)
Москва, Инновационный центр Сколково, район Южный
Upside Tech в Сколково
Тип: Торговое помещение
Площадь: 187.72 м2
82 592 318 за все
439 976 за м2
Позвонить Подробнее
Печатники (15 мин. 🚶)
Москва, ЖК Портленд
ЖК "Портленд"
Тип: Торговое помещение
Площадь: 128.90 м2
81 439 020 за все
631 800 за м2
Позвонить Подробнее
Печатники (15 мин. 🚶)
Москва, ЖК Портленд
ЖК "Портленд"
Тип: Торговое помещение
Площадь: 149.70 м2
87 110 430 за все
581 900 за м2
Позвонить Подробнее
(6 мин. 🚶)
Москва, жилой комплекс Преображенская Площадь
ЖК "Преображенская площадь"
Тип: Торговое помещение
Площадь: 130.00 м2
82 298 575 за все
633 066 за м2
Позвонить Подробнее
Люблино (2 мин. 🚶)
Москва, Совхозная улица, 10Б
ЖК "L`CLUB"
Тип: Торговое помещение
Площадь: 123.00 м2
Мощность:50 кВт
92 000 000 за все
747 967 за м2
Позвонить Подробнее
Шелепиха (10 мин. 🚶)
Москва, Заречная улица, вл6/1
Бизнес - центр "Эйлер"
Тип: Торговое помещение
Площадь: 93.47 м2
Мощность:25 кВт
83 936 060 за все
898 000 за м2
Позвонить Подробнее
Сокол Сокольники Соколиная Гора (3 мин. 🚶)
Москва, Ленинградский проспект, 69с1
Жилое здание "Ленинградский пр-т 69"
Тип: Торговое помещение
Площадь: 50.00 м2
Мощность:100 кВт
14 000 000 за все
280 000 за м2
Позвонить Подробнее
Сокол Сокольники Соколиная Гора (3 мин. 🚶)
Москва, Ленинградский проспект, 69с1
Жилое здание "Ленинградский пр-т 69"
Тип: Торговое помещение
Площадь: 250.00 м2
Мощность:100 кВт
57 000 000 за все
228 000 за м2
Позвонить Подробнее
Сокол Сокольники Соколиная Гора (3 мин. 🚶)
Москва, Ленинградский проспект, 69с1
Жилое здание "Ленинградский пр-т 69"
Тип: Торговое помещение
Площадь: 300.00 м2
Мощность:100 кВт
71 000 000 за все
236 667 за м2
Позвонить Подробнее
Сокол Сокольники Соколиная Гора (15 мин. 🚗)
Москва, Часовая улица, 28к2
ЖК "SOUL (СОУЛ)"
Тип: Торговое помещение
Площадь: 59.60 м2
41 809 698 за все
701 505 за м2
Позвонить Подробнее
Сокол Сокольники Соколиная Гора (15 мин. 🚗)
Москва, Часовая улица, 28к2
ЖК "SOUL (СОУЛ)"
Тип: Торговое помещение
Площадь: 64.80 м2
39 347 532 за все
607 215 за м2
Позвонить Подробнее
Сокол Сокольники Соколиная Гора (1 мин. 🚶)
Москва, Ленинградский проспект, 71кГ
Жилой дом "Ленинградский пр-т 71кГ"
Тип: Торговое помещение
Площадь: 43.70 м2
66 000 000 за все
1 510 297 за м2
Позвонить Подробнее
Сокол Сокольники Соколиная Гора (15 мин. 🚗)
Москва, Часовая улица, 28к2
ЖК "SOUL (СОУЛ)"
Тип: Торговое помещение
Площадь: 72.30 м2
49 170 146 за все
680 085 за м2
Позвонить Подробнее
Сокол Сокольники Соколиная Гора (19 мин. 🚗)
Москва, Волоколамское шоссе, 1с1
Офисное здание «Проектный институт»
Тип: Торговое помещение
Площадь: 33.70 м2
Мощность:25 кВт
33 363 001 за все
990 000 за м2
Позвонить Подробнее
Сокольники (13 мин. 🚶)
Москва, Рубцовско-Дворцовая улица, 4
Здание в ЖВ "Ренессанс"
Тип: Торговое помещение
Площадь: 1071.87 м2
1 122 200 000 за все
1 046 955 за м2
Позвонить Подробнее