Продажа торгового помещения БЦ "MOUNT (МАУНТ)"

Продажа торгового помещения БЦ
Москва, Боровское шоссе, вл2
Позвоните по телефону +7 495 230-28-26, либо оставьте заявку на просмотр прямо сейчас и узнайте условия специального предложения по объекту.
загрузка карты...
Кириченко Константин Юрьевич

Объект ведет консультант:

Кириченко Константин Юрьевич

Общие
ID 60808
Тип сделки Продажа
Площадь 124.00
Площадь всего 26236.00
Тип объекта Бизнес-центр
Этаж 1
Всего этажей в здании 20
Метраж по этажам
Информация об объекте
Состояние объекта новое строительство
Состояние блока помещение без отделки
Планировка Смешанная
Перекрытия Железобетонные
Торговая недвижимость
Линия домов 1 линия
Возможности Место для рекламы,Проходное место,Проездное место
Коммерческие условия
За все 48 980 000 ₽
За м 2 395 000 ₽

Описание объекта
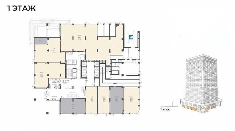
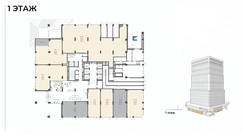
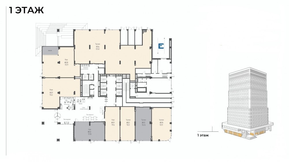
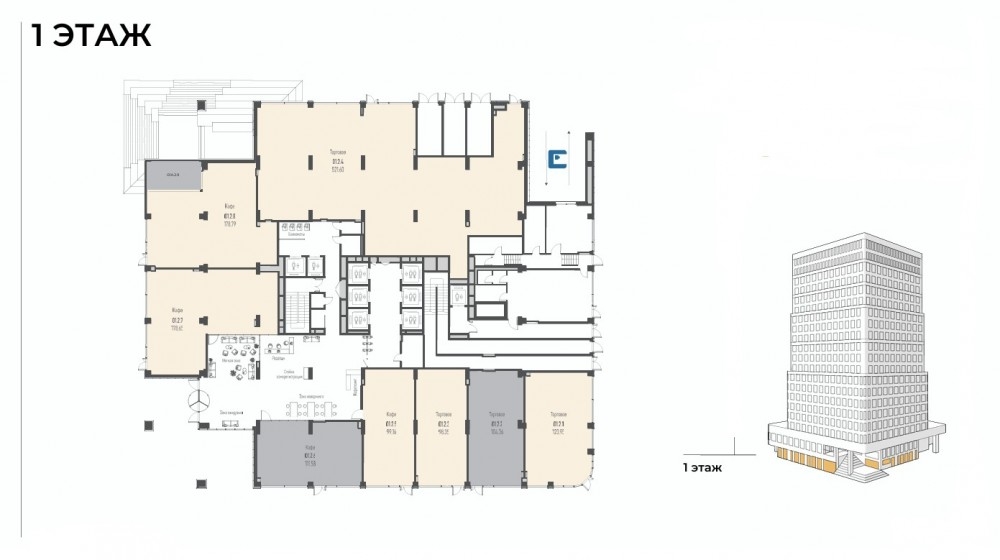
Предлагается на продажу торговое помещение в новом Бизнес-центре "MOUNT". Расположение на пересечении двух основных транспортных артерий: Боровского шоссе и МКАД. Отсюда легко добираться до Москвы-Сити и аэропорта Внуково. Площадь 124 м2. Пространство создано так, что работа в нем не просто эффективна, но и вдохновляет и приносит радость на ежедневной основе. От больших корпораций до стартапов — здесь все могут формировать комфортные условия с осознанным подходом и уважением к личным границам.

На плане под № 01.2.1

Нужна консультация покупке или продаже торговых помещений?

Наши специалисты подберут для вас самые выгодные варианты для долгосрочного инвестирования,
помогут в сопровождении и сделки, проверят все юридические вопросы касаемо приобретения недвижимости.

* Нажимая на кнопку «Отправить», Вы даете согласие на обработку персональных данных в соответствии с Политикой конфиденциальности

Похожие объекты

Спец. предложение

Добрынинская (5 мин. 🚶)
Москва, Житная улица, 10
Жилое здание «Житная 10»
Тип: Торговое помещение
Площадь: 120.00 м2
Мощность:15 кВт
29 000 000 за все
241 667 за м2
Позвонить Подробнее
Бунинская аллея (15 мин. 🚗)
Закрытая продажа #63762
Тип: Торговое помещение
Площадь: 130.70 м2
37 998 411 за все
290 730 за м2
Позвонить Подробнее
Бунинская аллея (15 мин. 🚗)
Закрытая продажа #63759
Тип: Торговое помещение
Площадь: 136.00 м2
39 210 160 за все
288 310 за м2
Позвонить Подробнее
Печатники (15 мин. 🚶)
Москва, ЖК Портленд
ЖК "Портленд"
Тип: Торговое помещение
Площадь: 128.90 м2
81 439 020 за все
631 800 за м2
Позвонить Подробнее
(16 мин. 🚗)
Москва, Базовская улица, 24Б
Жилое здание "Базовская улица, 24Б"
Тип: Торговое помещение
Площадь: 118.10 м2
Мощность:25 кВт
35 000 000 за все
296 359 за м2
Позвонить Подробнее
Закрытая продажа #63773
Тип: Торговое помещение
Площадь: 124.10 м2
30 022 272 за все
241 920 за м2
Позвонить Подробнее
(6 мин. 🚶)
Москва, жилой комплекс Преображенская Площадь
ЖК "Преображенская площадь"
Тип: Торговое помещение
Площадь: 130.00 м2
82 298 575 за все
633 066 за м2
Позвонить Подробнее
(6 мин. 🚶)
Москва, жилой комплекс Преображенская Площадь
ЖК "Преображенская площадь"
Тип: Торговое помещение
Площадь: 132.10 м2
74 667 868 за все
565 237 за м2
Позвонить Подробнее
Люблино (2 мин. 🚶)
Москва, Совхозная улица, 10Б
ЖК "L`CLUB"
Тип: Торговое помещение
Площадь: 123.00 м2
Мощность:50 кВт
92 000 000 за все
747 967 за м2
Позвонить Подробнее
Савёловская (8 мин. 🚶)
Москва, Угловой переулок, 27
Жилое здание "Угловой переулок, 27"
Тип: Торговое помещение
Площадь: 129.60 м2
30 000 000 за все
231 481 за м2
Позвонить Подробнее
Черкизовская (5 мин. 🚶)
Москва, Амурская улица, 2к1
ЖК "Амурский парк" к1
Тип: Торговое помещение
Площадь: 123.40 м2
Мощность:20 кВт
53 000 000 за все
429 498 за м2
Позвонить Подробнее
Щёлковская (26 мин. 🚗)
Московская область, Балашиха, Балашихинское шоссе, 8
ЖК "Квартал Авиаторов"
Тип: Торговое помещение
Площадь: 123.60 м2
Мощность:25 кВт
45 000 000 за все
364 078 за м2
Позвонить Подробнее
Новослободская (3 мин. 🚶)
Москва, Долгоруковская улица, 27с1
Долгоруковская улица, 27с1
Тип: Торговое помещение
Площадь: 67.00 м2
Мощность:15 кВт
48 910 000 за все
730 000 за м2
Позвонить Подробнее
Коптево (7 мин. 🚶)
Закрытая продажа #61435
Тип: Торговое помещение
Площадь: 250.00 м2
Мощность:30 кВт
48 000 000 за все
192 000 за м2
Позвонить Подробнее
Улица 1905 года (13 мин. 🚶)
Москва, Мантулинская улица, 2
Жилое здание "Мантулинская 2"
Тип: Торговое помещение
Площадь: 92.00 м2
52 000 000 за все
565 217 за м2
Позвонить Подробнее

Спец. предложение

Планерная (20 мин. 🚗)
Московская область, Химки, Ленинградское шоссе, вл5
Торговый центр "Лига"
Тип: Торговое помещение
Площадь: 200.00 м2
Мощность:15 кВт
50 000 000 за все
250 000 за м2
Позвонить Подробнее
Бунинская аллея (15 мин. 🚗)
Закрытая продажа #63787
Тип: Торговое помещение
Площадь: 294.90 м2
52 713 375 за все
178 750 за м2
Позвонить Подробнее
Бунинская аллея (15 мин. 🚗)
Закрытая продажа #63786
Тип: Торговое помещение
Площадь: 288.80 м2
52 417 200 за все
181 500 за м2
Позвонить Подробнее
Бунинская аллея (15 мин. 🚗)
Закрытая продажа #63785
Тип: Торговое помещение
Площадь: 289.90 м2
52 521 183 за все
181 170 за м2
Позвонить Подробнее
Бунинская аллея (15 мин. 🚗)
Закрытая продажа #63784
Тип: Торговое помещение
Площадь: 283.00 м2
51 613 540 за все
182 380 за м2
Позвонить Подробнее
Бунинская аллея (15 мин. 🚗)
Закрытая продажа #63783
Тип: Торговое помещение
Площадь: 276.50 м2
51 158 030 за все
185 020 за м2
Позвонить Подробнее
Бунинская аллея (15 мин. 🚗)
Закрытая продажа #63782
Тип: Торговое помещение
Площадь: 269.60 м2
51 067 632 за все
189 420 за м2
Позвонить Подробнее
Бунинская аллея (15 мин. 🚗)
Закрытая продажа #63781
Тип: Торговое помещение
Площадь: 275.50 м2
51 882 160 за все
188 320 за м2
Позвонить Подробнее
Бунинская аллея (15 мин. 🚗)
Закрытая продажа #63780
Тип: Торговое помещение
Площадь: 281.50 м2
52 826 290 за все
187 660 за м2
Позвонить Подробнее
Говорово (8 мин. 🚶)
Москва, Боровское шоссе, вл2
БЦ "MOUNT (МАУНТ)"
Тип: Торговое помещение
Площадь: 178.80 м2
69 374 400 за все
388 000 за м2
Позвонить Подробнее
Говорово (8 мин. 🚶)
Москва, Боровское шоссе, вл2
БЦ "MOUNT (МАУНТ)"
Тип: Торговое помещение
Площадь: 521.60 м2
208 640 000 за все
400 000 за м2
Позвонить Подробнее
Говорово (8 мин. 🚶)
Москва, Боровское шоссе, вл2
БЦ "MOUNT (МАУНТ)"
Тип: Торговое помещение
Площадь: 98.40 м2
43 099 200 за все
438 000 за м2
Позвонить Подробнее
Говорово (10 мин. 🚶)
Закрытая продажа #63357
Тип: Торговое помещение
Площадь: 2070.60 м2
Мощность:200 кВт
220 000 000 за все
106 249 за м2
Позвонить Подробнее