Продажа торгового помещения ЖК "Сиреневый парк"

Продажа торгового помещения ЖК Продажа торгового помещения ЖК Продажа торгового помещения ЖК Продажа торгового помещения ЖК Продажа торгового помещения ЖК Продажа торгового помещения ЖК
Продажа торгового помещения ЖК Продажа торгового помещения ЖК Продажа торгового помещения ЖК Продажа торгового помещения ЖК Продажа торгового помещения ЖК Продажа торгового помещения ЖК
Москва, Тагильская улица, вл4
Позвоните по телефону +7 495 230-28-26, либо оставьте заявку на просмотр прямо сейчас и узнайте условия специального предложения по объекту.
загрузка карты...
Общие
ID 61219
Тип сделки Продажа
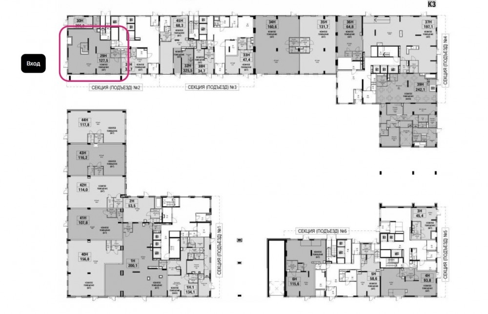
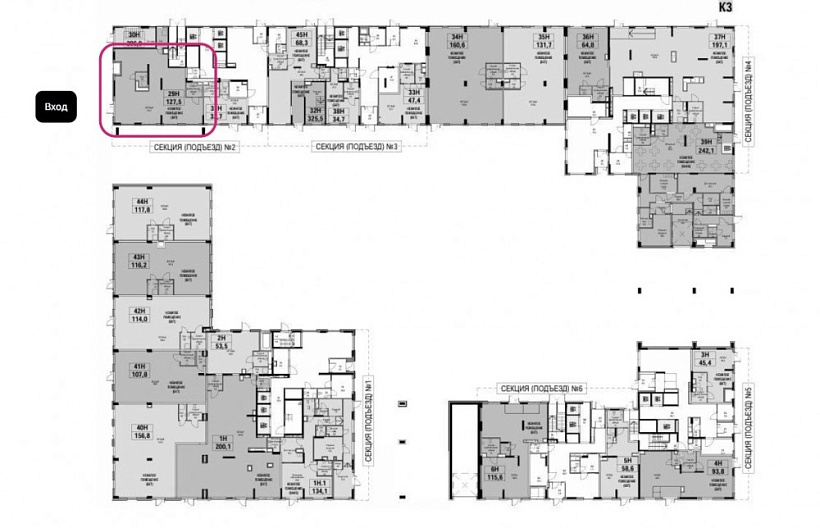
Площадь 127.50
Площадь всего 10567.00
Тип объекта Жилой комплекс
Этаж 1
Всего этажей в здании 24
Метраж по этажам
Информация об объекте
Состояние объекта рабочее
Состояние блока Shell and Core
Планировка Открытая
Перекрытия Железобетонные
Нюансы Отдельный вход,ПСН,Новостройка
Новостройка Новостройка
Торговая недвижимость
Линия домов 1 линия
Возможности Витрины,Место для рекламы,Проходное место,Проездное место
Электр. мощность (кВт) 25
Коммерческие условия
За все 72 500 000 ₽
За м 2 568 627 ₽
Тип собственника Физическое лицо

Описание объекта
Продается помещение свободного назначения в ЖК комфорт-класса "Сиреневый Парк", по адресу: Москва, Тагильская улица, вл 4к4, площадью 127.5 кв.м. Масштабный проект ЖК "Сиреневый парк" реализуется в Восточном административном округе Москвы, в одном из наиболее зеленых и экологически чистых районов Москвы. Здесь формируется современный, уютный квартал с удобными квартирами, благоустроенными дворами и объектами инфраструктуры. Общий объем жилья в проекте: 4250 квартир. В пешей доступности  станция метро Бульвар Рокоссовского, а также станция метро Щелковская, расположенная в 15 минутах на транспорте. Помещение находится в центре жилого массива на финальной стадии готовности, все корпуса вокруг сданы и заселены.

Угловое помещение на центральном бульваре у входа в арку.
Потенциальный МАП 570 000 ₽/мес.

Дом строится, ввод 1 кв. 2026, ключи до 30.09.2026.

Торговое окружение:
ВкусВилл Пятерочка, Медцентр, Авоська, АвтоТехЦентр № 1, гостиница, школа.

Преимущества:
Плотный современный жилой массив, дома рядом заселены.
Последний строящийся корпус внутри готового квартала, люди живут.
Угловое ровное помещение рядом с торговым стилобатом,
Торец секции у проходной арки.
Парковка у входа.
Вход с променада, 4 витринных окна.
Мощность электричества 25 кВт, можно увеличить.

Нужна консультация покупке или продаже торговых помещений?

Наши специалисты подберут для вас самые выгодные варианты для долгосрочного инвестирования,
помогут в сопровождении и сделки, проверят все юридические вопросы касаемо приобретения недвижимости.

* Нажимая на кнопку «Отправить», Вы даете согласие на обработку персональных данных в соответствии с Политикой конфиденциальности

Похожие объекты

Пятницкое шоссе (10 мин. 🚗)
Московская область, Красногорск, Парковая улица, 2
ЖК "LEVEL Лесной"
Тип: Торговое помещение
Площадь: 133.80 м2
Мощность:27 кВт
34 000 000 за все
254 111 за м2
Позвонить Подробнее
Строгино (24 мин. 🚗)
Московская область, городской округ Красногорск, ЖК Рига Хиллс, к1
ЖК Riga Hills (Рига хилс)
Тип: Торговое помещение
Площадь: 123.05 м2
42 944 450 за все
349 000 за м2
Позвонить Подробнее
Закрытая продажа #64183
Тип: Торговое помещение
Площадь: 120.70 м2
38 662 624 за все
320 320 за м2
Позвонить Подробнее
Партизанская (8 мин. 🚶)
Москва, Окружной проезд, 16
Окружной проезд, 16
Тип: Торговое помещение
Площадь: 126.10 м2
40 000 000 за все
317 209 за м2
Позвонить Подробнее
(16 мин. 🚗)
Москва, Базовская улица, 24Б
Жилое здание "Базовская улица, 24Б"
Тип: Торговое помещение
Площадь: 118.10 м2
Мощность:25 кВт
35 000 000 за все
296 359 за м2
Позвонить Подробнее
Черкизовская (5 мин. 🚶)
Москва, Амурская улица, 2к1
ЖК "Амурский парк" к1
Тип: Торговое помещение
Площадь: 123.40 м2
Мощность:20 кВт
53 000 000 за все
429 498 за м2
Позвонить Подробнее
Закрытая продажа #64135
Тип: Торговое помещение
Площадь: 130.10 м2
78 442 494 за все
602 940 за м2
Позвонить Подробнее
Закрытая продажа #64125
Тип: Торговое помещение
Площадь: 126.10 м2
53 272 206 за все
422 460 за м2
Позвонить Подробнее
Закрытая продажа #64124
Тип: Торговое помещение
Площадь: 139.20 м2
70 811 040 за все
508 700 за м2
Позвонить Подробнее
Закрытая продажа #64123
Тип: Торговое помещение
Площадь: 133.10 м2
64 786 425 за все
486 750 за м2
Позвонить Подробнее
Закрытая продажа #64122
Тип: Торговое помещение
Площадь: 130.70 м2
53 166 146 за все
406 780 за м2
Позвонить Подробнее
Закрытая продажа #64121
Тип: Торговое помещение
Площадь: 124.10 м2
61 948 238 за все
499 180 за м2
Позвонить Подробнее
Первомайская (12 мин. 🚶)
Москва, 5-я Парковая улица, 42
Жилое здание "5-я Парковая улица, 42"
Тип: Торговое помещение
Площадь: 286.50 м2
Мощность:15 кВт
76 000 000 за все
265 271 за м2
Позвонить Подробнее
Закрытая продажа #64136
Тип: Торговое помещение
Площадь: 106.00 м2
67 980 980 за все
641 330 за м2
Позвонить Подробнее
Закрытая продажа #64135
Тип: Торговое помещение
Площадь: 130.10 м2
78 442 494 за все
602 940 за м2
Позвонить Подробнее
Павелецкая (8 мин. 🚶)
Москва, Летниковская улица, 6к2
ЖК "Voxhall (ВоксХолл)"
Тип: Торговое помещение
Площадь: 41.00 м2
Мощность:15 кВт
70 000 000 за все
1 707 317 за м2
Позвонить Подробнее
Закрытая продажа #64124
Тип: Торговое помещение
Площадь: 139.20 м2
70 811 040 за все
508 700 за м2
Позвонить Подробнее
Закрытая продажа #64117
Тип: Торговое помещение
Площадь: 251.20 м2
74 219 552 за все
295 460 за м2
Позвонить Подробнее
Выставочная (14 мин. 🚶)
Москва, Кутузовский проспект, 22
Жилое здание «Кутузовский 22»
Тип: Торговое помещение
Площадь: 200.70 м2
Мощность:22 кВт
75 000 000 за все
373 692 за м2
Позвонить Подробнее
Краснопресненская (5 мин. 🚶)
Москва, улица Красная Пресня, 12
Жилой дом " Красная Пресня 12"
Тип: Торговое помещение
Площадь: 52.90 м2
77 000 000 за все
1 455 577 за м2
Позвонить Подробнее
Тульская (2 мин. 🚶)
Москва, Гамсоновский переулок, 2с11
Бизнес-центр "Рябовская мануфактура" Ryabov LOFT
Тип: Торговое помещение
Площадь: 153.30 м2
Мощность:40 кВт
70 518 000 за все
460 000 за м2
Позвонить Подробнее
Новослободская (3 мин. 🚶)
Москва, Долгоруковская улица, 27с1
Долгоруковская улица, 27с1
Тип: Торговое помещение
Площадь: 93.30 м2
Мощность:15 кВт
68 109 000 за все
730 000 за м2
Позвонить Подробнее
Павелецкая (10 мин. 🚶)
Закрытая продажа #63977
Тип: Торговое помещение
Площадь: 68.80 м2
Мощность:27 кВт
72 079 283 за все
1 047 664 за м2
Позвонить Подробнее
Домодедовская (20 мин. 🚗)
Московская область, городской округ Домодедово, село Домодедово, Высотная улица, 9
ЖК "Домодедово парк"
Тип: Торговое помещение
Площадь: 202.00 м2
Мощность:40 кВт
79 499 000 за все
393 559 за м2
Позвонить Подробнее
Бульвар Рокоссовского (5 мин. 🚶)
Москва, Тюменский проезд, 3к1
ЖК "Преображение"
Тип: Торговое помещение
Площадь: 1222.60 м2
Мощность:155 кВт
230 000 000 за все
188 124 за м2
Позвонить Подробнее
Бульвар Рокоссовского (5 мин. 🚶)
Москва, Открытое шоссе, 18Ак1
ЖК «Лосиноостровский парк»
Тип: Торговое помещение
Площадь: 82.80 м2
Мощность:15 кВт
40 572 000 за все
490 000 за м2
Позвонить Подробнее
Бульвар Рокоссовского (8 мин. 🚶)
Москва, Тагильская улица, вл4
ЖК "Сиреневый парк"
Тип: Торговое помещение
Площадь: 325.50 м2
100 721 093 за все
309 435 за м2
Позвонить Подробнее
Бульвар Рокоссовского (8 мин. 🚶)
Москва, Тагильская улица, вл4
ЖК "Сиреневый парк"
Тип: Торговое помещение
Площадь: 296.90 м2
96 072 683 за все
323 586 за м2
Позвонить Подробнее
Бульвар Рокоссовского (8 мин. 🚶)
Москва, Тагильская улица, вл4
ЖК "Сиреневый парк"
Тип: Торговое помещение
Площадь: 2129.10 м2
Мощность:100 кВт
361 947 000 за все
170 000 за м2
Позвонить Подробнее