Продажа торгового помещения Бизнес-центр "Stone Мнёвники"

Объект успешно реализован!
Продажа торгового помещения Бизнес-центр Продажа торгового помещения Бизнес-центр Продажа торгового помещения Бизнес-центр Продажа торгового помещения Бизнес-центр Продажа торгового помещения Бизнес-центр
Продажа торгового помещения Бизнес-центр Продажа торгового помещения Бизнес-центр Продажа торгового помещения Бизнес-центр Продажа торгового помещения Бизнес-центр Продажа торгового помещения Бизнес-центр
Москва, улица Нижние Мнёвники, 50с1
Объект успешно реализован, но у нас есть много других интересных предложений. Позвоните по телефону +7 495 230-28-26, либо оставьте заявку на подбор прямо сейчас и получите список подходящих для вас объектов.
загрузка карты...
Общие
ID 60840
Тип сделки Продажа
Площадь 105.90
Площадь всего 28500.00
Тип объекта Бизнес-центр
Класс здания A
Этаж 1
Всего этажей в здании 18
Метраж по этажам
Информация об объекте
Состояние объекта новое строительство
Состояние блока Shell and Core
Планировка Открытая
Перекрытия Железобетонные
Нюансы Отдельный вход
Новостройка Новостройка
Торговая недвижимость
Линия домов 1 линия
Возможности Витрины,Место для рекламы,Проходное место,Проездное место
Электр. мощность (кВт) 15
Коммерческие условия
За все 151 437 000 ₽
За м 2 1 430 000 ₽
Тип собственника Юридическое лицо

Описание объекта
STONE Мнёвники предлагает стрит ритейл в живописном районе у воды и парков. Башня М2. Помещение на 1 этаже, площадь 105.9 м2. Хорошая транспортная доступность обеспечивает удобную связь с основными деловыми районами. Этот бизнес-центр станет оптимальным вариантом для тех, кто ценит комфорт, природу и городскую жизнь, кто хочет сохранять баланс между работой и личной жизнью, быть частью команды и одновременно иметь возможность быть собой.

Сдача IV квартал 2027 года. Готовность 2028 год.
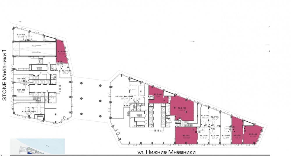
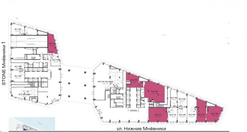
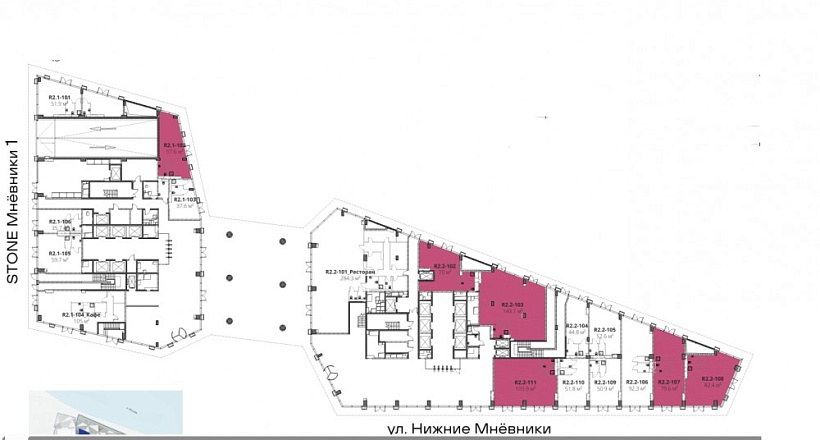
На плане R2.2-111

Беспроцентная рассрочка:
Первоначальный взнос от 20%,
Отсутствие переплат (нет % на остаток),
Срок действия рассрочки – до окончания строительства.

Наша оценка
Локация
Цена
Техническое оснащение
Состояние
Метраж
Общая оценка 5

Нужна консультация покупке или продаже торговых помещений?

Наши специалисты подберут для вас самые выгодные варианты для долгосрочного инвестирования,
помогут в сопровождении и сделки, проверят все юридические вопросы касаемо приобретения недвижимости.

* Нажимая на кнопку «Отправить», Вы даете согласие на обработку персональных данных в соответствии с Политикой конфиденциальности

Похожие объекты

Краснопресненская (5 мин. 🚶)
Москва, улица Красная Пресня, 12
Жилой дом " Красная Пресня 12"
Тип: Торговое помещение
Площадь: 109.00 м2
113 000 000 за все
1 036 697 за м2
Позвонить Подробнее
Красносельская (5 мин. 🚶)
Москва, Верхняя Красносельская улица, 17Ас1Б
БЦ "Верхняя Красносельская улица, 17Ас1Б"
Тип: Торговое помещение
Площадь: 101.90 м2
24 913 500 за все
244 490 за м2
Позвонить Подробнее
Озёрная (3 мин. 🚶)
Москва, Озёрная улица, 42с1
ЖК "Страна Озёрная"
Тип: Торговое помещение
Площадь: 100.90 м2
82 490 000 за все
817 542 за м2
Позвонить Подробнее
Тульская (11 мин. 🚗)
Москва, ЖК Пейв
ЖК "ПЕЙВ"
Тип: Торговое помещение
Площадь: 94.80 м2
64 151 160 за все
676 700 за м2
Позвонить Подробнее
(6 мин. 🚶)
Москва, жилой комплекс Преображенская Площадь
ЖК "Преображенская площадь"
Тип: Торговое помещение
Площадь: 108.10 м2
72 907 849 за все
674 448 за м2
Позвонить Подробнее
(6 мин. 🚶)
Москва, жилой комплекс Преображенская Площадь
ЖК "Преображенская площадь"
Тип: Торговое помещение
Площадь: 107.70 м2
65 137 400 за все
604 804 за м2
Позвонить Подробнее
Проспект Мира (3 мин. 🚶)
Москва, Проспект Мира, 40
Бизнес-центр «Garden Mir»
Тип: Торговое помещение
Площадь: 100.30 м2
Мощность:30 кВт
275 323 500 за все
2 745 000 за м2
Позвонить Подробнее
Шелепиха (10 мин. 🚶)
Москва, Заречная улица, вл6/1
Бизнес - центр "Эйлер"
Тип: Торговое помещение
Площадь: 98.53 м2
Мощность:25 кВт
88 479 940 за все
898 000 за м2
Позвонить Подробнее
Ховрино (15 мин. 🚗)
Москва, Лобненская улица, 14
ТЦ "Зодиак"
Тип: Торговое помещение
Площадь: 98.40 м2
Мощность:50 кВт
37 195 200 за все
378 000 за м2
Позвонить Подробнее
Ховрино (15 мин. 🚗)
Москва, Лобненская улица, 14
ТЦ "Зодиак"
Тип: Торговое помещение
Площадь: 97.45 м2
Мощность:50 кВт
42 076 800 за все
431 778 за м2
Позвонить Подробнее
Говорово (8 мин. 🚶)
Москва, Боровское шоссе, вл2
БЦ "MOUNT (МАУНТ)"
Тип: Торговое помещение
Площадь: 98.40 м2
43 099 200 за все
438 000 за м2
Позвонить Подробнее
Сокол Сокольники Соколиная Гора (1 мин. 🚶)
Москва, Ленинградский проспект, 71кГ
Жилой дом "Ленинградский пр-т 71кГ"
Тип: Торговое помещение
Площадь: 105.40 м2
84 000 000 за все
796 964 за м2
Позвонить Подробнее
Багратионовская (4 мин. 🚶)
Москва, улица Барклая, 6
ЖК "Барклая 6"
Тип: Торговое помещение
Площадь: 180.00 м2
Мощность:36 кВт
150 000 000 за все
833 333 за м2
Позвонить Подробнее
Ленинский проспект (10 мин. 🚶)
Москва, Ленинский проспект, 38
Бизнес-центр «Lunar (Лунар)»
Тип: Торговое помещение
Площадь: 90.40 м2
Мощность:15 кВт
153 680 000 за все
1 700 000 за м2
Позвонить Подробнее
Боровское шоссе (17 мин. 🚗)
Москва, Инновационный центр Сколково, район Южный
Upside Tech в Сколково
Тип: Торговое помещение
Площадь: 344.74 м2
162 301 240 за все
470 793 за м2
Позвонить Подробнее
Проспект Мира (3 мин. 🚶)
Москва, Проспект Мира, 40
Бизнес-центр «Garden Mir»
Тип: Торговое помещение
Площадь: 50.70 м2
Мощность:25 кВт
139 171 500 за все
2 745 000 за м2
Позвонить Подробнее
Калужская (12 мин. 🚗)
Москва, улица Обручева, 11
ТЦ "улица Обручева, 11"
Тип: Торговое помещение
Площадь: 510.10 м2
150 000 000 за все
294 060 за м2
Позвонить Подробнее
(6 мин. 🚗)
Москва, Новомосковский административный округ, район Внуково, квартал № 19, 1с1
Бизнес-парк "Переделкино"
Тип: Торговое помещение
Площадь: 434.00 м2
Мощность:80 кВт
148 409 560 за все
341 958 за м2
Позвонить Подробнее
Тверская (8 мин. 🚶)
Москва, Богословский переулок, 16/6с1
Жилое здание "Богословский пер. 16/6с1"
Тип: Торговое помещение
Площадь: 66.10 м2
144 000 000 за все
2 178 517 за м2
Позвонить Подробнее
Дубровка (30 мин. 🚶)
Москва, улица Эдуарда Стрельцова, 2к1
ЖК «FORIVER (Форивер)»
Тип: Торговое помещение
Площадь: 207.20 м2
Мощность:91 кВт
136 400 000 за все
658 301 за м2
Позвонить Подробнее
Дубровка (30 мин. 🚶)
Москва, улица Эдуарда Стрельцова, 2к1
ЖК «FORIVER (Форивер)»
Тип: Торговое помещение
Площадь: 269.90 м2
Мощность:81 кВт
158 310 000 за все
586 551 за м2
Позвонить Подробнее
Смоленская (Филевская) Смоленская (Арбатско-Покровская) (13 мин. 🚶)
Москва, улица Плющиха, 42
Жилое здание "Плющиха 42"
Тип: Торговое помещение
Площадь: 181.40 м2
Мощность:36 кВт
139 000 000 за все
766 262 за м2
Позвонить Подробнее
Авиамоторная (15 мин. 🚶)
Москва, улица Золоторожский Вал, 11
Бизнес-центр "STONE Римский"
Тип: Торговое помещение
Площадь: 170.80 м2
Мощность:15 кВт
157 136 000 за все
920 000 за м2
Позвонить Подробнее
Домодедовская (26 мин. 🚗)
Московская область, Ленинский городской округ, посёлок Развилка, Римский проезд, 5с1
Здание в ЖК "Римский"
Тип: Торговое помещение
Площадь: 510.00 м2
Мощность:85 кВт
163 472 000 за все
320 533 за м2
Позвонить Подробнее