Продажа торгового помещения ЖК "1-й Измайловский"

Продажа торгового помещения ЖК Продажа торгового помещения ЖК
Продажа торгового помещения ЖК Продажа торгового помещения ЖК
Москва, Монтажная улица, вл8/24
Позвоните по телефону +7 495 230-28-26, либо оставьте заявку на просмотр прямо сейчас и узнайте условия специального предложения по объекту.
загрузка карты...
Баринов Игорь Юрьевич

Объект ведет консультант:

Баринов Игорь Юрьевич

Общие
ID 61790
Тип сделки Продажа
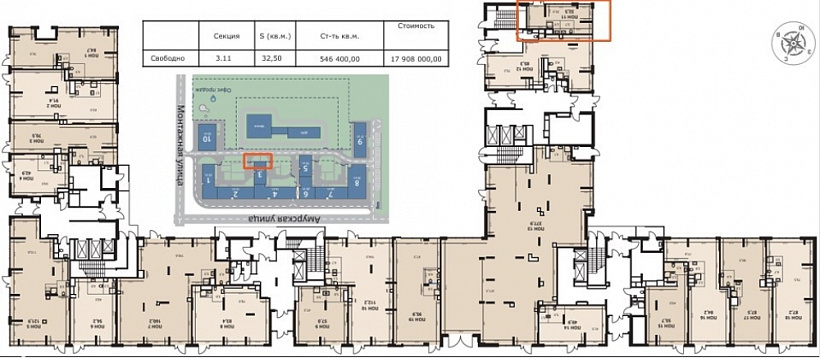
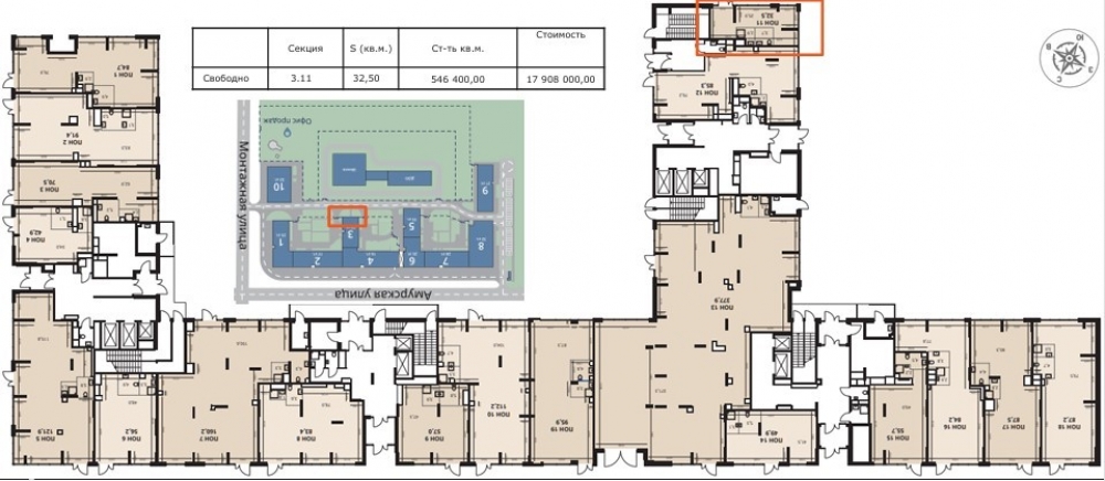
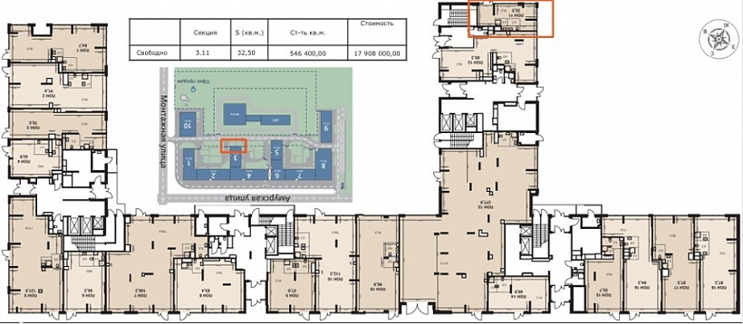
Площадь 32.50
Площадь всего 141838.00
Тип объекта Жилой комплекс
Этаж 1
Всего этажей в здании 23
Метраж по этажам
Информация об объекте
Состояние объекта рабочее
Состояние блока помещение без отделки
Планировка Открытая
Перекрытия Железобетонные
Нюансы Отдельный вход,ПСН
Торговая недвижимость
Линия домов 1 линия
Возможности Зона разгрузки,Витрины,Место для рекламы,Проходное место,Проездное место
Электр. мощность (кВт) 5
Коммерческие условия
За все 17 908 000 ₽
За м 2 551 015 ₽
Тип собственника Юридическое лицо

Описание объекта
Корпус 1-2. Современный жилой комплекс «1-й Измайловский» идеальное место для проживания, расположенное в восточной части Москвы в окружении 14 000 гектаров леса. «1-й Измайловский» пронизан атмосферой здорового образа жизни и благополучия.
Население комплекса составит более 3 000 человек.

Форма договора ДДУ
Сдача - 3 квартал 2028 - корпуса 3-5
Отдельный вход
Большие витринные окна
Выделенная мощность – 0,2 кВт на м²
Современная инженерия
Свободная планировка
Состояние помещения - под отделку

Наша оценка
Локация
Цена
Техническое оснащение
Состояние
Метраж
Общая оценка 5

Нужна консультация покупке или продаже торговых помещений?

Наши специалисты подберут для вас самые выгодные варианты для долгосрочного инвестирования,
помогут в сопровождении и сделки, проверят все юридические вопросы касаемо приобретения недвижимости.

* Нажимая на кнопку «Отправить», Вы даете согласие на обработку персональных данных в соответствии с Политикой конфиденциальности

Похожие объекты

Селигерская (13 мин. 🚶)
Москва, Дубнинская улица, 37к1
Жилое здание "Дубнинская улица, 37к1"
Тип: Торговое помещение
Площадь: 32.80 м2
Мощность:15 кВт
15 000 000 за все
457 317 за м2
Позвонить Подробнее
Ростокино (5 мин. 🚶)
Москва, Проспект Мира, 222
МФК "Мираполис"
Тип: Торговое помещение
Площадь: 33.30 м2
33 000 000 за все
990 991 за м2
Позвонить Подробнее
Новослободская (3 мин. 🚶)
Москва, Долгоруковская улица, 27с1
Долгоруковская улица, 27с1
Тип: Торговое помещение
Площадь: 29.80 м2
Мощность:15 кВт
25 330 000 за все
850 000 за м2
Позвонить Подробнее
Молодёжная (30 мин. 🚗)
Московская область, Одинцовский городской округ, рабочий посёлок Новоивановское, бульвар Эйнштейна, 3
ЖК "Инновация"
Тип: Торговое помещение
Площадь: 30.50 м2
Мощность:10 кВт
16 900 000 за все
554 098 за м2
Позвонить Подробнее
Сокол Сокольники Соколиная Гора (19 мин. 🚗)
Москва, Волоколамское шоссе, 1с1
Офисное здание «Проектный институт»
Тип: Торговое помещение
Площадь: 33.70 м2
Мощность:25 кВт
33 363 001 за все
990 000 за м2
Позвонить Подробнее
Академическая (3 мин. 🚶)
Москва, Профсоюзная улица, 5/9
Жилое здание "Профсоюзная улица, 5/9"
Тип: Торговое помещение
Площадь: 33.40 м2
50 160 000 за все
1 501 796 за м2
Позвонить Подробнее
Красносельская (3 мин. 🚶)
Москва, Краснопрудная улица, 26
Жилое здание "Краснопрудная 26"
Тип: Торговое помещение
Площадь: 34.30 м2
Мощность:15 кВт
42 500 000 за все
1 239 067 за м2
Позвонить Подробнее
Щёлковская (14 мин. 🚗)
Москва, Монтажная улица, вл8/24
ЖК "1-й Измайловский"
Тип: Торговое помещение
Площадь: 28.80 м2
Мощность:6 кВт
14 115 120 за все
490 108 за м2
Позвонить Подробнее
Сходненская (3 мин. 🚶)
Москва, Бульвар Яна Райниса, 2к1
Жилое здание «Яна Райниса 2 к1»
Тип: Торговое помещение
Площадь: 35.00 м2
Мощность:15 кВт
46 500 000 за все
1 328 571 за м2
Позвонить Подробнее
Тушинская (1 мин. 🚶)
Москва, Тушинская улица, 24с15
ОСЗ "Тушинская, 24с15"
Тип: Торговое помещение
Площадь: 30.50 м2
42 000 000 за все
1 377 049 за м2
Позвонить Подробнее
Рязанский проспект (8 мин. 🚶)
Москва, улица Академика Скрябина, 3/1к1
Жилой дом " Академика Скрябина, 3/1к1"
Тип: Торговое помещение
Площадь: 58.40 м2
Мощность:20 кВт
19 200 000 за все
328 767 за м2
Позвонить Подробнее
Новокосино (90 мин. 🚗)
Московская область, Орехово-Зуево, Набережная улица, 20
Жилое здание "Орехово-Зуево, Набережная улица, 20"
Тип: Торговое помещение
Площадь: 422.00 м2
Мощность:50 кВт
18 000 000 за все
42 654 за м2
Позвонить Подробнее
(10 мин. 🚶)
Москва, улица Михайлова, 31А
ЖК "Михайлова, 31"
Тип: Торговое помещение
Площадь: 72.50 м2
Мощность:90 кВт
18 125 000 за все
250 000 за м2
Позвонить Подробнее
Молодёжная (30 мин. 🚗)
Московская область, Одинцовский городской округ, рабочий посёлок Новоивановское, бульвар Эйнштейна, 3
ЖК "Инновация"
Тип: Торговое помещение
Площадь: 30.50 м2
Мощность:10 кВт
16 900 000 за все
554 098 за м2
Позвонить Подробнее
ВДНХ (16 мин. 🚶)
Москва, проспект Мира, 131
Жилое здание "проспект Мира, 131"
Тип: Торговое помещение
Площадь: 61.00 м2
18 300 000 за все
300 000 за м2
Позвонить Подробнее
Бутырская (10 мин. 🚶)
Москва, улица Руставели, 8Б
Жилое здание " Руставели, 8Б"
Тип: Торговое помещение
Площадь: 136.70 м2
Мощность:15 кВт
16 500 000 за все
120 702 за м2
Позвонить Подробнее
Шипиловская (5 мин. 🚗)
Московская область, Ленинский городской округ, посёлок Развилка
ЖК "Миловидное"
Тип: Торговое помещение
Площадь: 69.90 м2
16 500 000 за все
236 052 за м2
Позвонить Подробнее
Кунцевская (25 мин. 🚗)
Московская область, Одинцовский городской округ, Звенигород, район Восточный, 3-й микрорайон, 17
ЖК "Восточный"
Тип: Торговое помещение
Площадь: 69.20 м2
Мощность:15 кВт
17 950 000 за все
259 393 за м2
Позвонить Подробнее
Академическая (7 мин. 🚶)
Москва, улица Дмитрия Ульянова, 10/1к1
Жилое здание "улица Дмитрия Ульянова, 10/1к1"
Тип: Торговое помещение
Площадь: 19.90 м2
19 530 000 за все
981 407 за м2
Позвонить Подробнее
Академическая (7 мин. 🚶)
Москва, улица Дмитрия Ульянова, 10/1к1
Жилое здание "улица Дмитрия Ульянова, 10/1к1"
Тип: Торговое помещение
Площадь: 16.70 м2
16 380 000 за все
980 838 за м2
Позвонить Подробнее
Ховрино (25 мин. 🚗)
Москва, Ленинградское шоссе, 228к6
ЖК «1-й Ленинградский», к. 1
Тип: Торговое помещение
Площадь: 53.30 м2
Мощность:15 кВт
18 000 000 за все
337 711 за м2
Позвонить Подробнее
Ховрино (26 мин. 🚗)
Московская область, Химки, микрорайон Клязьма-Старбеево, квартал Международный, жилой комплекс 1-й Химкинский, к1.4
ЖК "1-й Химкинский"
Тип: Торговое помещение
Площадь: 69.40 м2
Мощность:10 кВт
17 547 980 за все
252 853 за м2
Позвонить Подробнее
Щёлковская (8 мин. 🚶)
Москва, Уральская улица, 5А
Административное здание "Уральская улица, 5А"
Тип: Торговое помещение
Площадь: 78.10 м2
50 400 000 за все
645 327 за м2
Позвонить Подробнее
Щёлковская (26 мин. 🚗)
Московская область, Балашиха, Балашихинское шоссе, 8
ЖК "Квартал Авиаторов"
Тип: Торговое помещение
Площадь: 123.60 м2
Мощность:25 кВт
45 000 000 за все
364 078 за м2
Позвонить Подробнее
Щёлковская (3 мин. 🚶)
Москва, Уральская улица, 1Бс1
ТЦ "Уральская 1Бс1"
Тип: Торговое помещение
Площадь: 1122.00 м2
Мощность:400 кВт
320 000 000 за все
285 205 за м2
Позвонить Подробнее
Щёлковская (8 мин. 🚶)
Москва, Уральская улица, 5А
Административное здание "Уральская улица, 5А"
Тип: Торговое помещение
Площадь: 150.70 м2
Мощность:20 кВт
37 800 000 за все
250 829 за м2
Позвонить Подробнее
Щёлковская (14 мин. 🚗)
Москва, Монтажная улица, вл8/24
ЖК "1-й Измайловский"
Тип: Торговое помещение
Площадь: 60.50 м2
Мощность:12 кВт
26 530 850 за все
438 526 за м2
Позвонить Подробнее
Щёлковская (14 мин. 🚗)
Москва, Монтажная улица, вл8/24
ЖК "1-й Измайловский"
Тип: Торговое помещение
Площадь: 49.10 м2
Мощность:10 кВт
23 236 820 за все
473 255 за м2
Позвонить Подробнее
Щёлковская (14 мин. 🚗)
Москва, Монтажная улица, вл8/24
ЖК "1-й Измайловский"
Тип: Торговое помещение
Площадь: 39.10 м2
Мощность:10 кВт
19 113 500 за все
488 836 за м2
Позвонить Подробнее
Щёлковская (14 мин. 🚗)
Москва, Монтажная улица, вл8/24
ЖК "1-й Измайловский"
Тип: Торговое помещение
Площадь: 28.80 м2
Мощность:6 кВт
14 115 120 за все
490 108 за м2
Позвонить Подробнее
Щёлковская (14 мин. 🚗)
Москва, Монтажная улица, вл8/24
ЖК "1-й Измайловский"
Тип: Торговое помещение
Площадь: 70.20 м2
Мощность:14 кВт
30 495 740 за все
434 412 за м2
Позвонить Подробнее
Щёлковская (14 мин. 🚗)
Москва, Монтажная улица, вл8/24
ЖК "1-й Измайловский"
Тип: Торговое помещение
Площадь: 54.20 м2
23 792 040 за все
438 968 за м2
Позвонить Подробнее
Щёлковская (14 мин. 🚗)
Москва, Монтажная улица, вл8/24
ЖК "1-й Измайловский"
Тип: Торговое помещение
Площадь: 89.10 м2
35 825 640 за все
402 084 за м2
Позвонить Подробнее
Щёлковская (14 мин. 🚗)
Москва, Монтажная улица, вл8/24
ЖК "1-й Измайловский"
Тип: Торговое помещение
Площадь: 64.80 м2
Мощность:12 кВт
27 728 880 за все
427 915 за м2
Позвонить Подробнее