Продажа торгового помещения Жилое здание "улица Арбат, 30/3с2"

Продажа торгового помещения Жилое здание Продажа торгового помещения Жилое здание Продажа торгового помещения Жилое здание
Продажа торгового помещения Жилое здание Продажа торгового помещения Жилое здание Продажа торгового помещения Жилое здание
Москва, улица Арбат, 30/3с2
Позвоните по телефону +7 495 230-28-26, либо оставьте заявку на просмотр прямо сейчас и узнайте условия специального предложения по объекту.
загрузка карты...
Первушина Марина Алексеевна

Объект ведет консультант:

Первушина Марина Алексеевна

Общие
ID 61911
Тип сделки Продажа
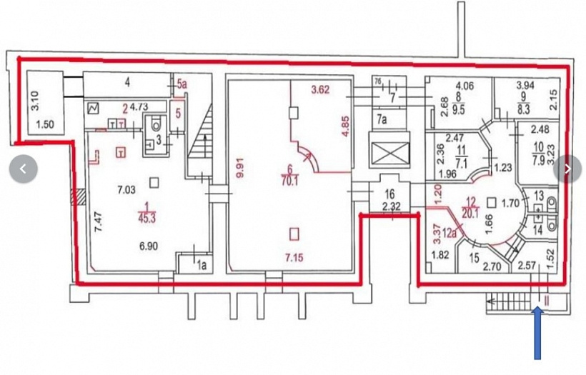
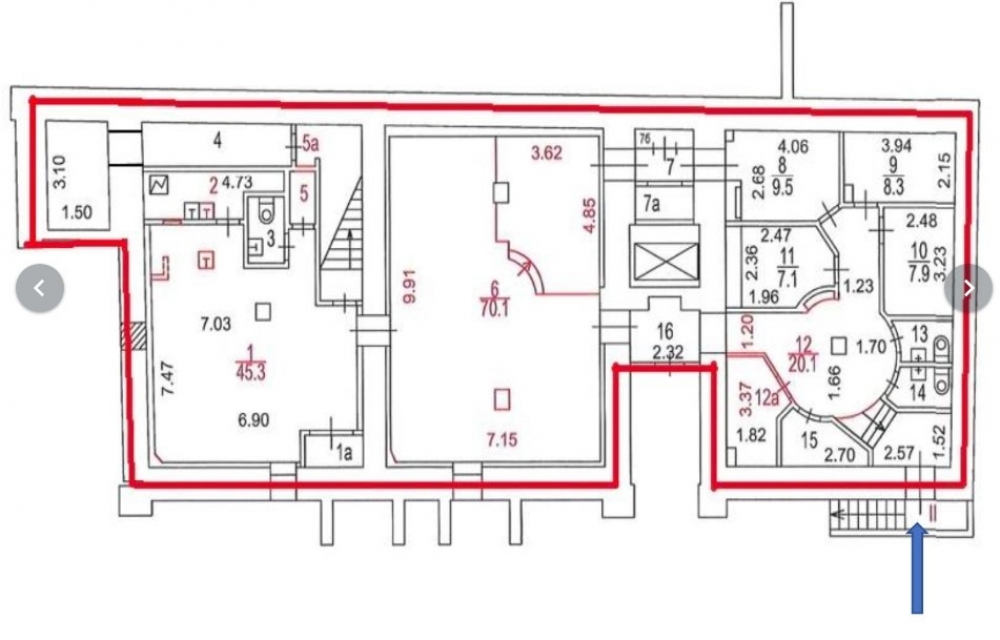
Площадь 212.90
Площадь всего 2250.00
Тип объекта Жилое здание
Этаж -1
Всего этажей в здании 6
Метраж по этажам
Информация об объекте
Состояние объекта рабочее
Состояние блока требуется косметический ремонт
Планировка Смешанная
Перекрытия Железобетонные
Парковка городская
Нюансы Отдельный вход
Торговая недвижимость
Линия домов 1 линия
Возможности Зона разгрузки,Витрины,Место для рекламы,Проходное место,Проездное место
Коммерческие условия
За все 52 000 000 ₽
За м 2 244 246 ₽
Тип собственника Юридическое лицо

Описание объекта
Предлагаем к продаже помещение под торговлю/офис/услуги на Арбате.
Подвал жилого дома. Отдельный вход со двора. Потолки 2,8м. Центральные коммуникации.

Нужна консультация покупке или продаже торговых помещений?

Наши специалисты подберут для вас самые выгодные варианты для долгосрочного инвестирования,
помогут в сопровождении и сделки, проверят все юридические вопросы касаемо приобретения недвижимости.

* Нажимая на кнопку «Отправить», Вы даете согласие на обработку персональных данных в соответствии с Политикой конфиденциальности

Похожие объекты

Селигерская (1 мин. 🚶)
Москва, Коровинское шоссе, 1А
ОСЗ "Коровинское ш., д.1А стр.1"
Тип: Торговое помещение
Площадь: 208.40 м2
114 000 000 за все
547 025 за м2
Позвонить Подробнее
Ул. Старокачаловская (28 мин. 🚶)
Московская область, Ленинский городской округ, посёлок Битца, жилой комплекс Южная Битца, Южный бульвар, 6
ЖК "Южная Битца"
Тип: Торговое помещение
Площадь: 199.00 м2
Мощность:40 кВт
39 999 990 за все
201 005 за м2
Позвонить Подробнее
Добрынинская (9 мин. 🚶)
Москва, Большой Строченовский переулок, 9
ЖК "Резиденция Замоскворечье"
Тип: Торговое помещение
Площадь: 225.60 м2
Мощность:25 кВт
97 100 000 за все
430 408 за м2
Позвонить Подробнее
Закрытая продажа #62640
Тип: Торговое помещение
Площадь: 231.90 м2
58 577 940 за все
252 600 за м2
Позвонить Подробнее
Закрытая продажа #62471
Тип: Торговое помещение
Площадь: 227.40 м2
61 200 000 за все
269 129 за м2
Позвонить Подробнее

Спец. предложение

Планерная (20 мин. 🚗)
Московская область, Химки, Ленинградское шоссе, вл5
Торговый центр "Лига"
Тип: Торговое помещение
Площадь: 200.00 м2
Мощность:15 кВт
68 000 000 за все
340 000 за м2
Позвонить Подробнее
Домодедовская (20 мин. 🚗)
Московская область, городской округ Домодедово, село Домодедово, Высотная улица, 9
ЖК "Домодедово парк"
Тип: Торговое помещение
Площадь: 202.00 м2
Мощность:40 кВт
55 000 000 за все
272 277 за м2
Позвонить Подробнее
Выставочная (14 мин. 🚶)
Москва, Кутузовский проспект, 22
Жилое здание «Кутузовский 22»
Тип: Торговое помещение
Площадь: 200.70 м2
85 000 000 за все
423 518 за м2
Позвонить Подробнее
Марьина Роща (10 мин. 🚶)
Москва, Складочная улица, 6
БЦ "GUSTAV" (Густав)
Тип: Торговое помещение
Площадь: 204.66 м2
Мощность:15 кВт
63 894 852 за все
312 200 за м2
Позвонить Подробнее
Маяковская (16 мин. 🚶)
Москва, Большая Грузинская улица, 36с3
Жилой дом "Большая Грузинская 36с3"
Тип: Торговое помещение
Площадь: 228.60 м2
61 500 000 за все
269 029 за м2
Позвонить Подробнее

Московская область, Люберцы, улица 8 Марта, 32
ЖК Влюберцы
Тип: Торговое помещение
Площадь: 207.00 м2
Мощность:120 кВт
86 320 000 за все
417 005 за м2
Позвонить Подробнее
Бунинская аллея (28 мин. 🚗)
Москва, поселение Рязановское, улица Уточкина, 5к2
ЖК "Алхимово"
Тип: Торговое помещение
Площадь: 205.00 м2
Мощность:37 кВт
85 280 000 за все
416 000 за м2
Позвонить Подробнее
Тушинская (1 мин. 🚶)
Москва, Тушинская улица, 24с15
ОСЗ "Тушинская, 24с15"
Тип: Торговое помещение
Площадь: 58.60 м2
Мощность:3 кВт
48 600 000 за все
829 352 за м2
Позвонить Подробнее
Щёлковская (8 мин. 🚶)
Москва, Уральская улица, 5А
Административное здание "Уральская улица, 5А"
Тип: Торговое помещение
Площадь: 78.10 м2
50 400 000 за все
645 327 за м2
Позвонить Подробнее
Партизанская (8 мин. 🚶)
Москва, Окружной проезд, 16
Окружной проезд, 16
Тип: Торговое помещение
Площадь: 126.10 м2
49 500 000 за все
392 546 за м2
Позвонить Подробнее
Бунинская аллея (36 мин. 🚗)
Москва, Новомосковский административный округ, район Щербинка, Любучанская улица, 1
ЖК «Остафьево»
Тип: Торговое помещение
Площадь: 133.90 м2
Мощность:27 кВт
52 000 000 за все
388 350 за м2
Позвонить Подробнее
Саларьево (9 мин. 🚶)
Москва, Новомосковский административный округ, район Коммунарка, квартал № 70
ЖК "1-й Саларьевский»
Тип: Торговое помещение
Площадь: 129.20 м2
Мощность:25 кВт
50 579 176 за все
391 480 за м2
Позвонить Подробнее
Саларьево (9 мин. 🚶)
Москва, Новомосковский административный округ, район Коммунарка, квартал № 70
ЖК "1-й Саларьевский»
Тип: Торговое помещение
Площадь: 113.50 м2
Мощность:22 кВт
48 883 955 за все
430 696 за м2
Позвонить Подробнее
Саларьево (9 мин. 🚶)
Москва, Новомосковский административный округ, район Коммунарка, квартал № 70
ЖК "1-й Саларьевский»
Тип: Торговое помещение
Площадь: 136.50 м2
Мощность:25 кВт
49 118 915 за все
359 846 за м2
Позвонить Подробнее
Саларьево (9 мин. 🚶)
Москва, Новомосковский административный округ, район Коммунарка, квартал № 70
ЖК "1-й Саларьевский»
Тип: Торговое помещение
Площадь: 147.20 м2
Мощность:30 кВт
54 722 040 за все
371 753 за м2
Позвонить Подробнее
Владыкино (15 мин. 🚶)
Москва, Северо-Восточный административный округ, район Отрадное, жилой комплекс Сигнальный 16, 2.1
ЖК "Сигнальный"
Тип: Торговое помещение
Площадь: 82.00 м2
Мощность:16 кВт
53 500 000 за все
652 439 за м2
Позвонить Подробнее
Закрытая продажа #62470
Тип: Торговое помещение
Площадь: 180.80 м2
52 200 000 за все
288 717 за м2
Позвонить Подробнее
Братиславская (8 мин. 🚗)
Москва, Иловайская улица, 3Ас2
ЖК «Страна.Заречная"
Тип: Торговое помещение
Площадь: 116.00 м2
50 990 000 за все
439 569 за м2
Позвонить Подробнее
Улица 1905 года (13 мин. 🚶)
Москва, Мантулинская улица, 2
Жилое здание "Мантулинская 2"
Тип: Торговое помещение
Площадь: 92.00 м2
56 000 000 за все
608 696 за м2
Позвонить Подробнее
Смоленская (Филевская) Смоленская (Арбатско-Покровская) (13 мин. 🚶)
Москва, улица Плющиха, 42
Жилое здание "Плющиха 42"
Тип: Торговое помещение
Площадь: 181.40 м2
Мощность:36 кВт
163 000 000 за все
898 567 за м2
Позвонить Подробнее
Смоленская (Филевская) Смоленская (Арбатско-Покровская) (10 мин. 🚶)
Москва, Улица Новый Арбат, 30/9
Жилое здание «Новый Арбат 30/9»
Тип: Торговое помещение
Площадь: 61.70 м2
33 000 000 за все
534 846 за м2
Позвонить Подробнее
Смоленская (Филевская) Смоленская (Арбатско-Покровская) (5 мин. 🚶)
Москва, улица Арбат, 39
Клубный дом Artisan
Тип: Торговое помещение
Площадь: 188.90 м2
Мощность:68 кВт
311 685 000 за все
1 650 000 за м2
Позвонить Подробнее
Смоленская (Филевская) Смоленская (Арбатско-Покровская) (8 мин. 🚶)
Москва, Смоленская-Сенная площадь, 27с1
Жилое здание «Смоленская-Сенная 27 с1»
Тип: Торговое помещение
Площадь: 545.70 м2
Мощность:100 кВт
556 000 000 за все
1 018 875 за м2
Позвонить Подробнее
Смоленская (Филевская) Смоленская (Арбатско-Покровская) (5 мин. 🚶)
Москва, улица Арбат, 39
Клубный дом Artisan
Тип: Торговое помещение
Площадь: 405.50 м2
394 146 000 за все
972 000 за м2
Позвонить Подробнее
Смоленская (Филевская) Смоленская (Арбатско-Покровская) (5 мин. 🚶)
Москва, улица Арбат, 39
Клубный дом Artisan
Тип: Торговое помещение
Площадь: 560.70 м2
605 556 000 за все
1 080 000 за м2
Позвонить Подробнее
Смоленская (Филевская) Смоленская (Арбатско-Покровская) (7 мин. 🚶)
Закрытая продажа #59968
Тип: Торговое помещение
Площадь: 812.00 м2
365 400 000 за все
450 000 за м2
Позвонить Подробнее
Смоленская (Филевская) Смоленская (Арбатско-Покровская) (8 мин. 🚶)
Москва, Большой Власьевский переулок, 14с1
Жилой дом "Большой Власьевский переулок, 14с1"
Тип: Торговое помещение
Площадь: 619.90 м2
Мощность:42 кВт
169 000 000 за все
272 625 за м2
Позвонить Подробнее
Смоленская (Филевская) Смоленская (Арбатско-Покровская) (3 мин. 🚶)
Москва, Новинский бульвар, 1/2
Жилое здание "Новинский бульвар д. 1/2"
Тип: Торговое помещение
Площадь: 147.10 м2
Мощность:25 кВт
125 035 000 за все
850 000 за м2
Позвонить Подробнее
Смоленская (Филевская) Смоленская (Арбатско-Покровская) (8 мин. 🚶)
Закрытая продажа #42321
Тип: Торговое помещение
Площадь: 13080.00 м2
5 000 000 000 за все
382 263 за м2
Позвонить Подробнее