Продажа торгового помещения ЖK "Красноказаpменная 15 к4"

Объект успешно реализован!
Продажа торгового помещения ЖK Продажа торгового помещения ЖK Продажа торгового помещения ЖK Продажа торгового помещения ЖK Продажа торгового помещения ЖK
Продажа торгового помещения ЖK Продажа торгового помещения ЖK Продажа торгового помещения ЖK Продажа торгового помещения ЖK Продажа торгового помещения ЖK
Москва, Красноказарменная улица, 15к4
Объект успешно реализован, но у нас есть много других интересных предложений. Позвоните по телефону +7 495 230-28-26, либо оставьте заявку на подбор прямо сейчас и получите список подходящих для вас объектов.
загрузка карты...
Общие
ID 62744
Тип сделки Продажа
Площадь 104.20
Тип объекта Жилой комплекс
Этаж 1
Всего этажей в здании 26
Метраж по этажам
Информация об объекте
Состояние объекта рабочее
Состояние блока Shell and Core
Планировка Смешанная
Перекрытия Железобетонные
Парковка Парковка есть и зона разгрузки тоже
Нюансы Отдельный вход
Торговая недвижимость
Линия домов 1 линия
Возможности Зона разгрузки,Витрины,Место для рекламы,Проходное место,Проездное место
Электр. мощность (кВт) 21
Коммерческие условия
За все 31 200 000 ₽
За м 2 299 424 ₽
Тип собственника Физическое лицо

Описание объекта
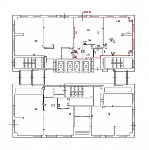
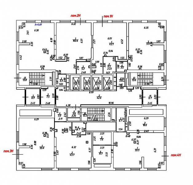
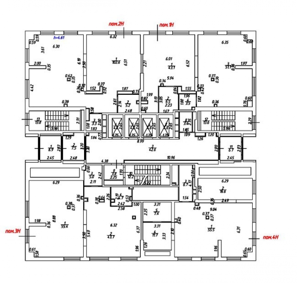
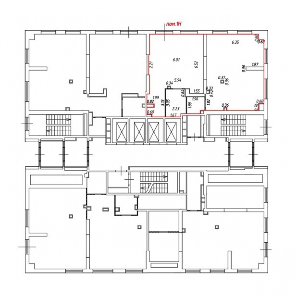
Продажа помещения свободного назначения 104.2 м2 на 1 этаже в ЖK «Красноказаpменная 15 к4».  

Угловое помещение , окна на садик и на институт , вход на дорогу ( удобная зона загрузки погрузки выгрузки )

До метрo «Aвиамoторная» — ~10 минут пeшком

Пеpвая линия дoмoв, прямaя видимoсть с улицы Энергетической

Хaрaктeристики помещения:
Площадь: 104,2 кв м
Высота потолка: 5 м
Электрическая мощность: 21 кВт

Отдельный вход с фасада
Витринное остекление — отличная видимость с улицы

Помещение свободного назначения, первый этаж
Преимущества:
Высокая жил­ая плотность — около 1 750 квартир в ЖК
Рядом 3 государственных ВУЗа
Отличный пешеходный трафик, первая линия

Подходит под: магазин, шоурум, салон, офис, услуги населению

Нужна консультация покупке или продаже торговых помещений?

Наши специалисты подберут для вас самые выгодные варианты для долгосрочного инвестирования,
помогут в сопровождении и сделки, проверят все юридические вопросы касаемо приобретения недвижимости.

* Нажимая на кнопку «Отправить», Вы даете согласие на обработку персональных данных в соответствии с Политикой конфиденциальности

Похожие объекты

Красносельская (5 мин. 🚶)
Москва, Верхняя Красносельская улица, 17Ас1Б
БЦ "Верхняя Красносельская улица, 17Ас1Б"
Тип: Торговое помещение
Площадь: 101.90 м2
24 913 500 за все
244 490 за м2
Позвонить Подробнее
Домодедовская (20 мин. 🚗)
Закрытая продажа #61148
Тип: Торговое помещение
Площадь: 98.00 м2
Мощность:20 кВт
38 612 000 за все
394 000 за м2
Позвонить Подробнее
Озёрная (3 мин. 🚶)
Москва, Озёрная улица, 42с1
ЖК "Страна Озёрная"
Тип: Торговое помещение
Площадь: 100.90 м2
82 490 000 за все
817 542 за м2
Позвонить Подробнее
Бунинская аллея (15 мин. 🚗)
Закрытая продажа #63771
Тип: Торговое помещение
Площадь: 106.10 м2
18 545 219 за все
174 790 за м2
Позвонить Подробнее
Бунинская аллея (15 мин. 🚗)
Закрытая продажа #63767
Тип: Торговое помещение
Площадь: 104.00 м2
18 212 480 за все
175 120 за м2
Позвонить Подробнее
Тульская (11 мин. 🚗)
Москва, ЖК Пейв
ЖК "ПЕЙВ"
Тип: Торговое помещение
Площадь: 94.80 м2
64 151 160 за все
676 700 за м2
Позвонить Подробнее
(6 мин. 🚶)
Москва, жилой комплекс Преображенская Площадь
ЖК "Преображенская площадь"
Тип: Торговое помещение
Площадь: 108.10 м2
72 907 849 за все
674 448 за м2
Позвонить Подробнее
(6 мин. 🚶)
Москва, жилой комплекс Преображенская Площадь
ЖК "Преображенская площадь"
Тип: Торговое помещение
Площадь: 107.70 м2
65 137 400 за все
604 804 за м2
Позвонить Подробнее
Проспект Мира (3 мин. 🚶)
Москва, Проспект Мира, 40
Бизнес-центр «Garden Mir»
Тип: Торговое помещение
Площадь: 100.30 м2
Мощность:30 кВт
275 323 500 за все
2 745 000 за м2
Позвонить Подробнее
Закрытая продажа #63724
Тип: Торговое помещение
Площадь: 110.90 м2
33 411 952 за все
301 280 за м2
Позвонить Подробнее
Бульвар Рокоссовского (17 мин. 🚶)
Москва, Погонный проезд, 13
Жилое здание "Погонный проезд, 13"
Тип: Торговое помещение
Площадь: 93.70 м2
Мощность:18 кВт
37 000 000 за все
394 877 за м2
Позвонить Подробнее
Шелепиха (10 мин. 🚶)
Москва, Заречная улица, вл6/1
Бизнес - центр "Эйлер"
Тип: Торговое помещение
Площадь: 98.53 м2
Мощность:25 кВт
88 479 940 за все
898 000 за м2
Позвонить Подробнее
Новослободская (3 мин. 🚶)
Москва, Долгоруковская улица, 27с1
Долгоруковская улица, 27с1
Тип: Торговое помещение
Площадь: 42.60 м2
Мощность:15 кВт
34 080 000 за все
800 000 за м2
Позвонить Подробнее

Спец. предложение

Добрынинская (5 мин. 🚶)
Москва, Житная улица, 10
Жилое здание «Житная 10»
Тип: Торговое помещение
Площадь: 120.00 м2
Мощность:15 кВт
29 000 000 за все
241 667 за м2
Позвонить Подробнее
Смоленская (Филевская) Смоленская (Арбатско-Покровская) (10 мин. 🚶)
Москва, Улица Новый Арбат, 30/9
Жилое здание «Новый Арбат 30/9»
Тип: Торговое помещение
Площадь: 61.70 м2
33 000 000 за все
534 846 за м2
Позвонить Подробнее
Тульская (11 мин. 🚗)
Москва, ЖК Пейв
ЖК "ПЕЙВ"
Тип: Торговое помещение
Площадь: 37.80 м2
31 113 180 за все
823 100 за м2
Позвонить Подробнее
Закрытая продажа #63773
Тип: Торговое помещение
Площадь: 124.10 м2
30 022 272 за все
241 920 за м2
Позвонить Подробнее
Тёплый стан (4 мин. 🚶)
Москва, Профсоюзная улица, 152к1
Административное «Профсоюзная 152 к2»
Тип: Торговое помещение
Площадь: 54.80 м2
Мощность:20 кВт
29 990 000 за все
547 263 за м2
Позвонить Подробнее
Савёловская (8 мин. 🚶)
Москва, Угловой переулок, 27
Жилое здание "Угловой переулок, 27"
Тип: Торговое помещение
Площадь: 129.60 м2
30 000 000 за все
231 481 за м2
Позвонить Подробнее
ВДНХ (16 мин. 🚶)
Москва, проспект Мира, 131
Жилое здание "проспект Мира, 131"
Тип: Торговое помещение
Площадь: 82.00 м2
28 700 000 за все
350 000 за м2
Позвонить Подробнее
Закрытая продажа #63724
Тип: Торговое помещение
Площадь: 110.90 м2
33 411 952 за все
301 280 за м2
Позвонить Подробнее
Селигерская (7 мин. 🚶)
Москва, Дмитровское шоссе, 93к2
Жилое здание "Дмитровское шоссе, 93к2"
Тип: Торговое помещение
Площадь: 67.90 м2
30 000 000 за все
441 826 за м2
Позвонить Подробнее
(10 мин. 🚶)
Москва, Ленинский проспект, 88к2
Жилое здание "Ленинский проспект, 88к2"
Тип: Торговое помещение
Площадь: 265.20 м2
Мощность:15 кВт
33 900 000 за все
127 828 за м2
Позвонить Подробнее
Медведково (30 мин. 🚗)
Московская область, Мытищи, улица Стрельбище Динамо, 10
ЖК "Мытищи Парк"
Тип: Торговое помещение
Площадь: 94.40 м2
Мощность:31 кВт
28 500 000 за все
301 907 за м2
Позвонить Подробнее
Авиамоторная (15 мин. 🚶)
Москва, улица Золоторожский Вал, 11
Бизнес-центр "STONE Римский"
Тип: Торговое помещение
Площадь: 275.80 м2
330 960 000 за все
1 200 000 за м2
Позвонить Подробнее
Авиамоторная (15 мин. 🚶)
Москва, улица Золоторожский Вал, 11
Бизнес-центр "STONE Римский"
Тип: Торговое помещение
Площадь: 170.80 м2
Мощность:15 кВт
157 136 000 за все
920 000 за м2
Позвонить Подробнее