Аренда индустриальной недвижимости ТЦ "Мега Теплый Стан"

Аренда индустриальной недвижимости ТЦ
Москва, Новомосковский административный округ, район Коммунарка, Калужское шоссе, 21-й километр, с1
Позвоните по телефону +7 495 230-28-26, либо оставьте заявку на просмотр прямо сейчас и узнайте условия специального предложения по объекту.
загрузка карты...
Аренда в год за м2 16 500 ₽
Аренда в месяц 8 250 000 ₽
Схема сделки субаренда
Капина Владлена Викторовна

Объект ведет консультант:

Капина Владлена Викторовна

Общие
ID 63071
Тип сделки Аренда
Площадь 6000.00
Площадь всего 33700.00
Тип объекта Торговый центр
Этаж 1
Всего этажей в здании 2
Метраж по этажам
Информация об объекте
Состояние объекта рабочее
Состояние блока отделка арендатора
Планировка Открытая
Перекрытия Железобетонные
Нюансы Отдельный вход
Коммерческие условия
Аренда в год за м2 16 500 ₽
Аренда в месяц 8 250 000 ₽
Схема сделки субаренда
Тип собственника Юридическое лицо

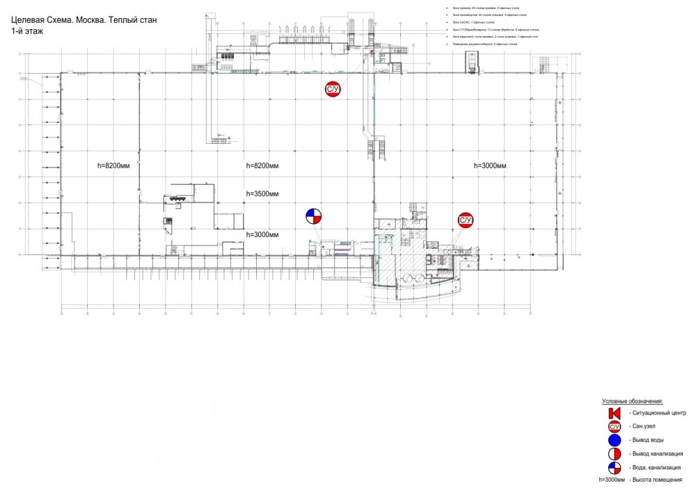
Описание объекта
Предлагаем в субаренду 6000 м2 сроком от 3-5 лет. Помещение, где ранее располагалась IKEA, ТЦ "Мега Теплый Стан". Складские и торговые площади + зона шоурума.
Возможно деление от 3000 кв.м. НДС не включен в ставку.
Кол-во ворот: 6
Системы пожарной сигнализации, пожаротушения +
Все коммуникации заведены
Парковочные места по запросу. Год постройки 2001.

Допустимы нагрузки на полы: 2080 кг/м2 (1 этаж), 610 кг/м2 (2 этаж)
Электрическая мощность 1.5 мВт
Высота между нулевым уровнем и складом в зоне разгрузки 1200 (мм)

Шаг колонн на складе 8000/11000
Шаг колонн торговая зона 8000/11000

Нужна консультация ?

Наши специалисты подберут для вас самые выгодные варианты для долгосрочного инвестирования,
помогут в сопровождении и сделки, проверят все юридические вопросы касаемо приобретения недвижимости.

* Нажимая на кнопку «Отправить», Вы даете согласие на обработку персональных данных в соответствии с Политикой конфиденциальности

Похожие объекты

Тушинская (15 мин. 🚶)
Закрытая продажа #63954
Тип: Индустриальная недвижимость
Площадь: 5700.00 м2
7 410 000 в месяц
15 600 в год за м2
Позвонить Подробнее

Московская область, Дмитровский муниципальный округ, деревня Глазово, территория индустриального парка Северное Шереметьево, 19
Складской комплекс ПЛТ «Северное Шереметьево»
Тип: Индустриальная недвижимость
Площадь: 6000.00 м2
6 250 000 в месяц
12 500 в год за м2
Позвонить Подробнее
Котельники (20 мин. 🚗)
Московская область, Котельники, 1-й Покровский проезд, 5
ТЦ "Мега Белая Дача"
Тип: Индустриальная недвижимость
Площадь: 6000.00 м2
8 250 000 в месяц
16 500 в год за м2
Позвонить Подробнее
Ховрино (29 мин. 🚶)
Московская область, Химки, микрорайон ИКЕА, к1
ТЦ "Мега Химки"
Тип: Индустриальная недвижимость
Площадь: 6000.00 м2
8 250 000 в месяц
16 500 в год за м2
Позвонить Подробнее
Тушинская (15 мин. 🚶)
Закрытая продажа #63954
Тип: Индустриальная недвижимость
Площадь: 5700.00 м2
7 410 000 в месяц
15 600 в год за м2
Позвонить Подробнее
Тушинская (15 мин. 🚶)
Закрытая продажа #63953
Тип: Индустриальная недвижимость
Площадь: 11700.00 м2
15 210 000 в месяц
15 600 в год за м2
Позвонить Подробнее
Тушинская (15 мин. 🚶)
Закрытая продажа #63952
Тип: Индустриальная недвижимость
Площадь: 13564.00 м2
17 633 200 в месяц
15 600 в год за м2
Позвонить Подробнее
Кантемировская (14 мин. 🚗)
Москва, Котляковская улица, 6с8
Офисно-производственный комплекс "Котляковская улица, 6с8"
Тип: Индустриальная недвижимость
Площадь: 1310.00 м2
1 800 000 в месяц
16 489 в год за м2
Позвонить Подробнее
Царицыно (31 мин. 🚗)
Москва, 6-я Радиальная улица, 17
ПСК "КЛАСТЕР" 6-я Радиальная 17
Тип: Индустриальная недвижимость
Площадь: 2048.00 м2
2 969 600 в месяц
17 400 в год за м2
Позвонить Подробнее
Новохохловская (8 мин. 🚶)
Москва, Новохохловская улица, 21к2с3
ОСК "Ринг Парк"
Тип: Индустриальная недвижимость
Площадь: 2084.50 м2
3 126 750 в месяц
18 000 в год за м2
Позвонить Подробнее
Саларьево (17 мин. 🚶)
Москва, Новомосковский административный округ, район Коммунарка, квартал № 74, 1с2
Складской комплекс "Саларьево"
Тип: Индустриальная недвижимость
Площадь: 3600.00 м2
5 400 000 в месяц
18 000 в год за м2
Позвонить Подробнее
Саларьево (17 мин. 🚶)
Москва, Новомосковский административный округ, район Коммунарка, квартал № 74, 1с2
Складской комплекс "Саларьево"
Тип: Индустриальная недвижимость
Площадь: 7200.00 м2
10 800 000 в месяц
18 000 в год за м2
Позвонить Подробнее
Царицыно (31 мин. 🚗)
Москва, 6-я Радиальная улица, 17
ПСК "КЛАСТЕР" 6-я Радиальная 17
Тип: Индустриальная недвижимость
Площадь: 2553.80 м2
3 845 570 в месяц
18 070 в год за м2
Позвонить Подробнее
Верхние Лихоборы Лихоборы (20 мин. 🚗)
Москва, Лихоборская набережная, 11с16
Здание "Лихоборская набережная, 11с16"
Тип: Индустриальная недвижимость
Площадь: 239.00 м2
358 500 в месяц
18 000 в год за м2
Позвонить Подробнее
Котельники (20 мин. 🚗)
Московская область, Котельники, 1-й Покровский проезд, 5
ТЦ "Мега Белая Дача"
Тип: Индустриальная недвижимость
Площадь: 6000.00 м2
8 250 000 в месяц
16 500 в год за м2
Позвонить Подробнее
Братиславская (20 мин. 🚗)
Москва, Краснодарский проезд, 2
Склад-автостоянка "Москва, Краснодарский проезд, 2"
Тип: Индустриальная недвижимость
Площадь: 3600.00 м2
4 680 000 в месяц
15 600 в год за м2
Позвонить Подробнее
Тёплый стан (14 мин. 🚗)
Москва, Новомосковский административный округ, район Коммунарка, Калужское шоссе, 21-й километр, с1
ТЦ "Мега Теплый Стан"
Тип: Индустриальная недвижимость
Площадь: 3000.00 м2
4 125 000 в месяц
16 500 в год за м2
Позвонить Подробнее
Тёплый стан (14 мин. 🚗)
Москва, Новомосковский административный округ, район Коммунарка, Калужское шоссе, 21-й километр, с1
ТЦ "Мега Теплый Стан"
Тип: Индустриальная недвижимость
Площадь: 34020.00 м2
46 777 500 в месяц
16 500 в год за м2
Позвонить Подробнее