Аренда офиса Бизнес Квартал «Арма»

Объект успешно реализован!
Аренда офиса Бизнес Квартал «Арма»
Москва, Нижний Сусальный переулок, 5с4
Объект успешно реализован, но у нас есть много других интересных предложений. Позвоните по телефону +7 495 230-28-26, либо оставьте заявку на подбор прямо сейчас и получите список подходящих для вас объектов.
загрузка карты...
Аренда в год за м2 55 000 ₽
Аренда в месяц 943 250 ₽
Схема сделки прямая аренда
Первушина Марина Алексеевна

Объект ведет консультант:

Первушина Марина Алексеевна

Общие
ID 63299
Тип сделки Аренда
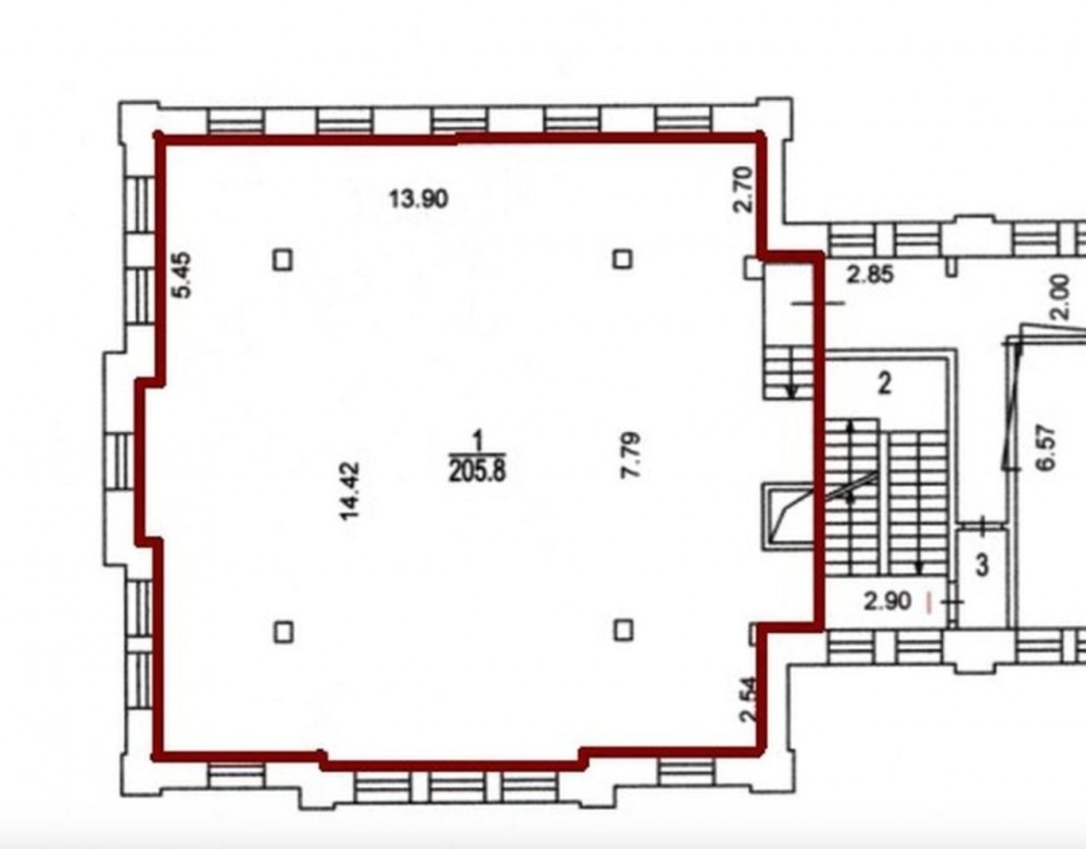
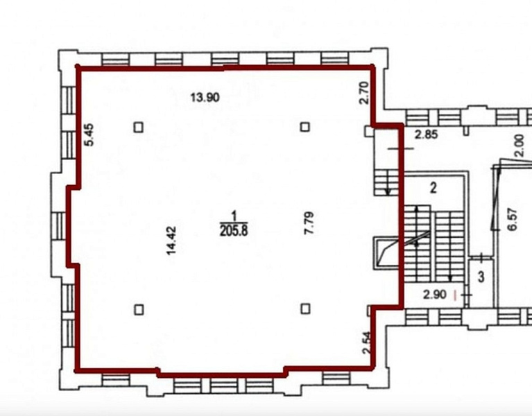
Площадь 205.80
Площадь всего 6642.00
Тип объекта Бизнес-парк
Этаж 2
Всего этажей в здании 4
Метраж по этажам
Информация об объекте
Состояние объекта рабочее
Состояние блока отделка в стиле Loft
Планировка Открытая
Перекрытия Железобетонные
Парковка наземная 12000 р/мес
Коммерческие условия
Аренда в год за м2 55 000 ₽
Аренда в месяц 943 250 ₽
Схема сделки прямая аренда
Тип собственника Юридическое лицо

Описание объекта
Предлагаем в аренду офис в Арме. До м.КУрская 2 минуты пешком.
Офис расположен на 2-м этаже, свободная планировка, ремонт в стиле лофт. Установлена приточная вентиляция и кондиционирование.
Офис сдается без мебели, но есть возможность ее аренды.
В ставку включена эксплуатация, к/у оплачиваются отдельно.
За дополнительную плату предоставляются места на парковке.
Офис свободен к заезду

Нужна консультация по подбору помещения под офис?

Наши специалисты подберут для вас самые выгодные варианты для долгосрочного инвестирования,
помогут в сопровождении и сделки, проверят все юридические вопросы касаемо приобретения недвижимости.

* Нажимая на кнопку «Отправить», Вы даете согласие на обработку персональных данных в соответствии с Политикой конфиденциальности

Похожие объекты

Пл. Революции (3 мин. 🚶)
Москва, Никольская улица, 10
Бизнес-центр «Никольская плаза»
Тип: Офисы
Площадь: 217.40 м2
Отделка:выполнена стандартная офисная отделка
1 032 650 в месяц
57 000 в год за м2
Позвонить Подробнее
Красные Ворота (13 мин. 🚶)
Москва, Улица Александра Лукьянова, 3
Бизнес-центр «Зенит-Интер I»
Тип: Офисы
Площадь: 190.00 м2
Отделка:выполнена стандартная офисная отделка
522 500 в месяц
33 000 в год за м2
Позвонить Подробнее
Краснопресненская (5 мин. 🚶)
Москва, переулок Капранова, 3с2
Бизнес-центр «Премьер Плаза» с2
Тип: Офисы
Площадь: 202.60 м2
Отделка:выполнена стандартная офисная отделка
928 583 в месяц
55 000 в год за м2
Позвонить Подробнее
Белорусская (4 мин. 🚶)
Москва, 4-й Лесной переулок, 4
Бизнес-центр «White Stone»
Тип: Офисы
Площадь: 222.00 м2
Отделка:выполнена стандартная офисная отделка
1 512 900 в месяц
81 778 в год за м2
Позвонить Подробнее
Полянка (3 мин. 🚶)
Москва, Улица Малая Полянка, 2
МФК Онегин (Onegin)
Тип: Офисы
Площадь: 194.50 м2
Отделка:выполнена стандартная офисная отделка
700 000 в месяц
43 188 в год за м2
Позвонить Подробнее
Полянка (5 мин. 🚶)
Москва, улица Большая Якиманка, 17/2с1
Бизнес центр "улица Большая Якиманка, 17/2с1"
Тип: Офисы
Площадь: 214.80 м2
Отделка:качественная отделка
966 600 в месяц
54 000 в год за м2
Позвонить Подробнее
Проспект Мира (9 мин. 🚶)
Москва, улица Щепкина, 29
Бизнес-центр "улица Щепкина, 29"
Тип: Офисы
Площадь: 223.00 м2
Отделка:выполнена стандартная офисная отделка
960 015 в месяц
51 660 в год за м2
Позвонить Подробнее
Краснопресненская (7 мин. 🚶)
Москва, Малый Предтеченский переулок, 1/2
Административное здание "Малый Предтеченский пер. 1/2с1"
Тип: Офисы
Площадь: 188.10 м2
Отделка:выполнена стандартная офисная отделка
862 125 в месяц
55 000 в год за м2
Позвонить Подробнее
Семёновская (7 мин. 🚗)
Москва, улица Ибрагимова, 31к47
БЦ РТС Семёновский
Тип: Офисы
Площадь: 215.90 м2
Отделка:отделка арендатора
378 000 в месяц
21 010 в год за м2
Позвонить Подробнее
Чеховская
Москва, Столешников переулок, 9с3
Жилое здание "Столешников переулок, 9с3"
Тип: Офисы
Площадь: 217.00 м2
Отделка:качественная отделка
1 450 000 в месяц
80 184 в год за м2
Позвонить Подробнее
Речной вокзал (14 мин. 🚗)
Москва, Смольная улица, 14
Бизнес-центр «Смольный»
Тип: Офисы
Площадь: 221.47 м2
Отделка:выполнена стандартная офисная отделка
461 396 в месяц
25 000 в год за м2
Позвонить Подробнее
Нахимовский проспект (5 мин. 🚶)
Москва, Одесская улица, 2кА
Бизнес-центр «Лотос»
Тип: Офисы
Площадь: 200.00 м2
Отделка:качественная отделка
790 000 в месяц
47 400 в год за м2
Позвонить Подробнее
Комсомольская (11 мин. 🚶)
Москва, Докучаев переулок, 8
Особняк «Докучаев 8»
Тип: Офисы
Площадь: 1222.80 м2
5 387 147 в месяц
52 867 в год за м2
Позвонить Подробнее
Парк культуры (6 мин. 🚶)
Москва, Улица Остоженка, 28
Бизнес-центр «Алексеевский дом»
Тип: Офисы
Площадь: 248.20 м2
Отделка:выполнена стандартная офисная отделка
1 097 665 в месяц
53 070 в год за м2
Позвонить Подробнее
Савёловская (7 мин. 🚶)
Москва, Вятская улица, 27
Бизнес-парк «Фактория»
Тип: Офисы
Площадь: 502.00 м2
Отделка:отделка в стиле Loft
2 158 600 в месяц
51 600 в год за м2
Позвонить Подробнее
Белорусская (4 мин. 🚶)
Москва, 1-я Тверская-Ямская улица, 23с1
Деловой центр "Тверская-Ямская23"
Тип: Офисы
Площадь: 103.10 м2
Отделка:выполнена стандартная офисная отделка
429 600 в месяц
50 002 в год за м2
Позвонить Подробнее
Пл. Революции (3 мин. 🚶)
Москва, Никольская улица, 10
Бизнес-центр «Никольская плаза»
Тип: Офисы
Площадь: 217.40 м2
Отделка:выполнена стандартная офисная отделка
1 032 650 в месяц
57 000 в год за м2
Позвонить Подробнее
Пл. Революции (3 мин. 🚶)
Москва, Никольская улица, 10
Бизнес-центр «Никольская плаза»
Тип: Офисы
Площадь: 636.80 м2
Отделка:выполнена стандартная офисная отделка
3 024 800 в месяц
57 000 в год за м2
Позвонить Подробнее
Краснопресненская (5 мин. 🚶)
Москва, переулок Капранова, 3с2
Бизнес-центр «Премьер Плаза» с2
Тип: Офисы
Площадь: 202.60 м2
Отделка:выполнена стандартная офисная отделка
928 583 в месяц
55 000 в год за м2
Позвонить Подробнее
Павелецкая (9 мин. 🚶)
Москва, Космодамианская набережная, 52с1
Бизнес-центр «Риверсайд Тауэрс»
Тип: Офисы
Площадь: 1410.00 м2
Отделка:выполнена стандартная офисная отделка
6 768 000 в месяц
57 600 в год за м2
Позвонить Подробнее
Павелецкая (9 мин. 🚶)
Москва, Космодамианская набережная, 52с1
Бизнес-центр «Риверсайд Тауэрс»
Тип: Офисы
Площадь: 881.00 м2
Отделка:выполнена стандартная офисная отделка
4 140 700 в месяц
56 400 в год за м2
Позвонить Подробнее
Павелецкая (9 мин. 🚶)
Москва, Космодамианская набережная, 52с1
Бизнес-центр «Риверсайд Тауэрс»
Тип: Офисы
Площадь: 458.00 м2
Отделка:выполнена стандартная офисная отделка
2 152 600 в месяц
56 400 в год за м2
Позвонить Подробнее
Полянка (5 мин. 🚶)
Москва, улица Большая Якиманка, 17/2с1
Бизнес центр "улица Большая Якиманка, 17/2с1"
Тип: Офисы
Площадь: 272.10 м2
Отделка:выполнена стандартная офисная отделка
1 199 508 в месяц
52 900 в год за м2
Позвонить Подробнее
Полянка (5 мин. 🚶)
Москва, улица Большая Якиманка, 17/2с1
Бизнес центр "улица Большая Якиманка, 17/2с1"
Тип: Офисы
Площадь: 214.80 м2
Отделка:качественная отделка
966 600 в месяц
54 000 в год за м2
Позвонить Подробнее
Курская (5 мин. 🚶)
Москва, Улица Земляной Вал, 9
Бизнес-центр «СитиДел»
Тип: Офисы
Площадь: 844.10 м2
Отделка:выполнена стандартная офисная отделка
4 891 560 в месяц
69 540 в год за м2
Позвонить Подробнее
Курская (5 мин. 🚶)
Москва, Нижний Сусальный переулок, 5с4
Бизнес Квартал «Арма»
Тип: Офисы
Площадь: 500.00 м2
Отделка:отделка в стиле Loft
4 884 000 в месяц
117 216 в год за м2
Позвонить Подробнее
Курская (5 мин. 🚶)
Москва, 2-й Сыромятнический переулок, 1
Бизнес-центр "Дельта Плаза"
Тип: Офисы
Площадь: 205.00 м2
Отделка:выполнена стандартная офисная отделка
1 135 871 в месяц
66 490 в год за м2
Позвонить Подробнее
Курская (9 мин. 🚶)
Москва, Улица Земляной Вал, 4с1
Бизнес-центр «Земляной 4 с1»
Тип: Офисы
Площадь: 171.80 м2
Отделка:выполнена стандартная офисная отделка
415 183 в месяц
29 000 в год за м2
Позвонить Подробнее
Курская (7 мин. 🚶)
Москва, Большой Казённый переулок, 8с1
Офисное здание «Большой Казённый 8 с1»
Тип: Офисы
Площадь: 832.00 м2
3 350 000 в месяц
48 317 в год за м2
Позвонить Подробнее
Курская (5 мин. 🚶)
Москва, Улица Земляной Вал, 9
Бизнес-центр «СитиДел»
Тип: Офисы
Площадь: 210.00 м2
Отделка:выполнена стандартная офисная отделка
875 000 в месяц
50 000 в год за м2
Позвонить Подробнее
Курская (5 мин. 🚶)
Москва, Улица Земляной Вал, 9
Бизнес-центр «СитиДел»
Тип: Офисы
Площадь: 910.70 м2
Отделка:выполнена стандартная офисная отделка
3 794 583 в месяц
50 000 в год за м2
Позвонить Подробнее
Курская (9 мин. 🚶)
Москва, Улица Земляной Вал, 4с1
Бизнес-центр «Земляной 4 с1»
Тип: Офисы
Площадь: 180.00 м2
Отделка:выполнена стандартная офисная отделка
585 000 в месяц
39 000 в год за м2
Позвонить Подробнее
Курская (3 мин. 🚗)
Москва, Нижняя Сыромятническая улица, 10с9
Бизнес-центр «Artplay»
Тип: Офисы
Площадь: 137.80 м2
Отделка:отделка в стиле Loft
459 333 в месяц
40 000 в год за м2
Позвонить Подробнее
Курская (7 мин. 🚶)
Москва, Подсосенский переулок, 23с2
БЦ "Подсосенский 23"
Тип: Офисы
Площадь: 212.20 м2
Отделка:выполнена стандартная офисная отделка
390 000 в месяц
22 055 в год за м2
Позвонить Подробнее
Курская (5 мин. 🚶)
Москва, 2-й Сыромятнический переулок, 1
Бизнес-центр "Дельта Плаза"
Тип: Офисы
Площадь: 1621.90 м2
Отделка:качественная отделка
8 190 595 в месяц
60 600 в год за м2
Позвонить Подробнее
Курская (9 мин. 🚶)
Москва, Улица Земляной Вал, 4с1
Бизнес-центр «Земляной 4 с1»
Тип: Офисы
Площадь: 351.00 м2
Отделка:выполнена стандартная офисная отделка
1 086 903 в месяц
37 159 в год за м2
Позвонить Подробнее