Аренда офиса Бизнес-центр «Никольская плаза»

Объект успешно реализован!
Аренда офиса Бизнес-центр «Никольская плаза» Аренда офиса Бизнес-центр «Никольская плаза» Аренда офиса Бизнес-центр «Никольская плаза»
Аренда офиса Бизнес-центр «Никольская плаза» - превью Аренда офиса Бизнес-центр «Никольская плаза» - превью Аренда офиса Бизнес-центр «Никольская плаза» - превью
Москва, Никольская улица, 10
Объект успешно реализован, но у нас есть много других интересных предложений. Позвоните по телефону +7 495 230-28-26, либо оставьте заявку на подбор прямо сейчас и получите список подходящих для вас объектов.
загрузка карты...
Аренда в год за м2 57 000 ₽
Аренда в месяц 3 024 800 ₽
Схема сделки прямая аренда
Общие
ID 63384
Тип сделки Аренда
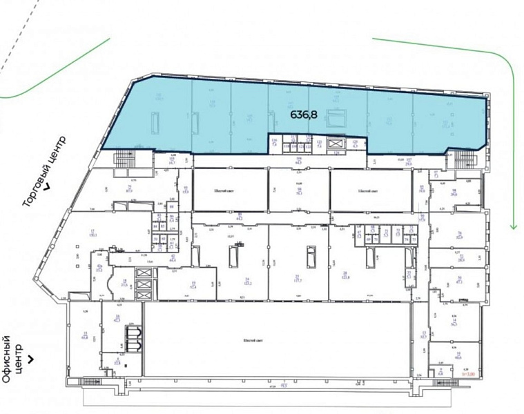
Площадь 636.80
Площадь всего 36000.00
Тип объекта Бизнес-центр
Класс здания A
Этаж 6
Всего этажей в здании 10
Метраж по этажам
Информация об объекте
Состояние блока выполнена стандартная офисная отделка
Планировка Залы и кабинеты
Коммуникации Система видеонаблюдения,Интернет,Телефония
Парковка подземная 45000р/мес
КПП Гостевой пропуск
Коммерческие условия
Аренда в год за м2 57 000 ₽
Аренда в месяц 3 024 800 ₽
Схема сделки прямая аренда
Тип собственника Юридическое лицо

Описание объекта
Предлагаем в аренду офис в бизнес-центре класса А на Никольской улице. До м.Лубянка 3-4 минуты пешком.
Офис расположен на шестом этаже. Помещение кабинетной панировки с ремонтом. Установлены системы приточно-вытяжной вентиляции и кондиционирования.
В ставку включена эксплуатация, к/у оплачиваются отдельно.
За дополнительную плату предоставляются места на парковке.
Офис свободен к заезду

Нужна консультация по подбору помещения под офис?

Наши специалисты подберут для вас самые выгодные варианты для долгосрочного инвестирования,
помогут в сопровождении и сделки, проверят все юридические вопросы касаемо приобретения недвижимости.

* Нажимая на кнопку «Отправить», Вы даете согласие на обработку персональных данных в соответствии с Политикой конфиденциальности

Похожие объекты

Боровское шоссе (17 мин. 🚗)
Москва, Инновационный центр Сколково, улица Нобеля, 5
Бизнес-Центр ТЕХНОПАРК. "Квартал Менделеева"
Тип: Офисы
Площадь: 682.55 м2
Отделка:выполнена стандартная офисная отделка
1 564 177 в месяц
27 500 в год за м2
Позвонить Подробнее
Боровское шоссе (17 мин. 🚗)
Москва, Инновационный центр Сколково, улица Нобеля, 1
Бизнес-Центр ТЕХНОПАРК. "Квартал Менделеева"
Тип: Офисы
Площадь: 587.23 м2
Отделка:выполнена стандартная офисная отделка
1 345 735 в месяц
27 500 в год за м2
Позвонить Подробнее
Международная (5 мин. 🚶)
Москва, Пресненская набережная, 10А
Бизнес-центр «Башня на набережной»
Тип: Офисы
Площадь: 670.00 м2
Отделка:выполнена стандартная офисная отделка
6 130 500 в месяц
109 800 в год за м2
Позвонить Подробнее
Марксистская (7 мин. 🚶)
Москва, Таганская улица, 17-23
Бизнес-центр «Мосэнка Парк Тауэрс 4»
Тип: Офисы
Площадь: 616.00 м2
Отделка:выполнена стандартная офисная отделка
2 567 693 в месяц
50 020 в год за м2
Позвонить Подробнее
Савёловская (10 мин. 🚶)
Москва, Улица Двинцев, 12к1
Бизнес-центр «Двинцев»
Тип: Офисы
Площадь: 683.00 м2
Отделка:качественная отделка
3 779 779 в месяц
66 409 в год за м2
Позвонить Подробнее
Китай-город (7 мин. 🚶)
Москва, Подкопаевский переулок, 4
Бизнес-центр «Ивановская горка»
Тип: Офисы
Площадь: 599.00 м2
Отделка:качественная отделка
4 242 917 в месяц
85 000 в год за м2
Позвонить Подробнее
Таганская (19 мин. 🚶)
Москва, Космодамианская набережная, 32-34
Жилое здание "Космодамианская набережная, 32-34"
Тип: Офисы
Площадь: 574.00 м2
Отделка:выполнена стандартная офисная отделка
1 578 500 в месяц
33 000 в год за м2
Позвонить Подробнее
Планерная (23 мин. 🚗)
Московская область, Химки, Куркинское шоссе, с2
Бизнес-центр «Aero City (Аэро Сити)»
Тип: Офисы
Площадь: 628.10 м2
Отделка:Shell and Core
654 533 в месяц
12 505 в год за м2
Позвонить Подробнее
Сретенский бульвар (5 мин. 🚶)
Москва, Милютинский переулок, 13
Бизнес-центр На Милютинском
Тип: Офисы
Площадь: 587.00 м2
Отделка:качественная отделка
6 148 800 в месяц
125 699 в год за м2
Позвонить Подробнее
Сретенский бульвар (5 мин. 🚶)
Москва, Милютинский переулок, 13
Бизнес-центр На Милютинском
Тип: Офисы
Площадь: 638.00 м2
Отделка:выполнена стандартная офисная отделка
3 250 000 в месяц
61 129 в год за м2
Позвонить Подробнее
Дмитровская (6 мин. 🚶)
Москва, Бутырская улица, 76с4
Бизнес-центр "Дмитровский" с4
Тип: Офисы
Площадь: 694.60 м2
Отделка:качественная отделка
3 183 583 в месяц
55 000 в год за м2
Позвонить Подробнее
Профсоюзная (5 мин. 🚶)
Москва, Улица Кржижановского, 14к3
Бизнес-центр «Ферро-Плаза»
Тип: Офисы
Площадь: 615.00 м2
Отделка:качественная отделка
2 050 000 в месяц
40 000 в год за м2
Позвонить Подробнее
Деловой центр Деловой центр (МЦК) (2 мин. 🚶)
Москва, Пресненская набережная, 6с2
Москва-Сити "Башня Империя"
Тип: Офисы
Площадь: 63.00 м2
Отделка:качественная отделка
300 000 в месяц
57 143 в год за м2
Позвонить Подробнее
Белорусская (11 мин. 🚶)
Москва, Лесная улица, 43
Бизнес-центр «Лесная 43»
Тип: Офисы
Площадь: 550.00 м2
Отделка:качественная отделка
2 841 667 в месяц
62 000 в год за м2
Позвонить Подробнее
Белорусская (11 мин. 🚶)
Москва, Лесная улица, 43
Бизнес-центр «Лесная 43»
Тип: Офисы
Площадь: 800.00 м2
Отделка:выполнена стандартная офисная отделка
3 993 334 в месяц
59 900 в год за м2
Позвонить Подробнее
Марьина Роща (14 мин. 🚶)
Москва, Улица Сущёвский Вал, 18
Бизнес-центр «NOVO» (ново)
Тип: Офисы
Площадь: 1312.00 м2
Отделка:выполнена высококачественная отделка
6 560 000 в месяц
60 000 в год за м2
Позвонить Подробнее
Римская (2 мин. 🚶)
Москва, Бульвар Энтузиастов, 2
Бизнес-центр «Golden Gate»
Тип: Офисы
Площадь: 1572.00 м2
Отделка:качественная отделка
7 205 000 в месяц
55 000 в год за м2
Позвонить Подробнее
Римская (2 мин. 🚶)
Москва, Бульвар Энтузиастов, 2
Бизнес-центр «Golden Gate»
Тип: Офисы
Площадь: 786.00 м2
Отделка:качественная отделка
3 602 500 в месяц
55 000 в год за м2
Позвонить Подробнее
Полянка (5 мин. 🚶)
Москва, улица Большая Якиманка, 17/2с1
Бизнес центр "улица Большая Якиманка, 17/2с1"
Тип: Офисы
Площадь: 1012.00 м2
Отделка:выполнена стандартная офисная отделка
4 486 450 в месяц
53 199 в год за м2
Позвонить Подробнее
Маяковская (4 мин. 🚶)
Москва, 4-я Тверская-Ямская улица, 14с1
Особняк "4-я Тверская-Ямская улица, 14с1"
Тип: Офисы
Площадь: 2621.00 м2
Отделка:выполнена стандартная офисная отделка
12 109 020 в месяц
55 440 в год за м2
Позвонить Подробнее
Краснопресненская (5 мин. 🚶)
Москва, переулок Капранова, 3с2
Бизнес-центр «Премьер Плаза» с2
Тип: Офисы
Площадь: 173.00 м2
Отделка:выполнена стандартная офисная отделка
793 839 в месяц
55 064 в год за м2
Позвонить Подробнее
Полянка (5 мин. 🚶)
Москва, улица Большая Якиманка, 17/2с1
Бизнес центр "улица Большая Якиманка, 17/2с1"
Тип: Офисы
Площадь: 467.00 м2
Отделка:выполнена стандартная офисная отделка
2 101 500 в месяц
54 000 в год за м2
Позвонить Подробнее
Полянка (5 мин. 🚶)
Москва, улица Большая Якиманка, 17/2с1
Бизнес центр "улица Большая Якиманка, 17/2с1"
Тип: Офисы
Площадь: 253.00 м2
Отделка:выполнена стандартная офисная отделка
1 201 750 в месяц
57 000 в год за м2
Позвонить Подробнее
Сретенский бульвар (5 мин. 🚶)
Москва, Милютинский переулок, 13
Бизнес-центр На Милютинском
Тип: Офисы
Площадь: 638.00 м2
Отделка:выполнена стандартная офисная отделка
3 250 000 в месяц
61 129 в год за м2
Позвонить Подробнее
Пл. Революции (3 мин. 🚶)
Москва, Никольская улица, 10
Бизнес-центр «Никольская плаза»
Тип: Офисы
Площадь: 149.00 м2
Отделка:выполнена стандартная офисная отделка
682 917 в месяц
55 000 в год за м2
Позвонить Подробнее
Пл. Революции (4 мин. 🚶)
Москва, Ветошный переулок, 7
Особняк «Ветошный 7»
Тип: Офисы
Площадь: 161.50 м2
Отделка:качественная отделка
1 800 000 в месяц
133 746 в год за м2
Позвонить Подробнее