Продажа торгового помещения ЖК "UNO. Головинские пруды"

Объект успешно реализован!
Продажа торгового помещения ЖК
Москва, Михалковская улица, 50
Объект успешно реализован, но у нас есть много других интересных предложений. Позвоните по телефону +7 495 230-28-26, либо оставьте заявку на подбор прямо сейчас и получите список подходящих для вас объектов.
загрузка карты...
Общие
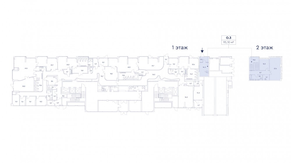
ID 61845
Тип сделки Продажа
Площадь 95.10
Площадь всего 33797.00
Тип объекта Жилой комплекс
Этаж 1 - 2
Всего этажей в здании 29
Метраж по этажам
Информация об объекте
Состояние объекта рабочее
Состояние блока Shell and Core
Планировка Открытая
Перекрытия Железобетонные
Нюансы Отдельный вход,ПСН
Новостройка Новостройка
Торговая недвижимость
Линия домов 1 линия
Возможности Витрины,Место для рекламы,Проходное место,Проездное место
Электр. мощность (кВт) 15
Коммерческие условия
За все 27 579 000 ₽
За м 2 290 000 ₽
Тип собственника Юридическое лицо

Описание объекта
Продается помещение свободного назначения в ЖК UNO Головинские пруды, по адресу: Москва, ул. Михалковская, д. 50, площадью 95,1 кв.м. Перспективная коммерческая недвижимость для премиального бизнеса. Приватная территория, близость к метро, подземный паркинг создают все условия для комфортной городской жизни. UNO Головинские пруды располагается в САО, 9 минут пешком от МЦК «Коптево» и 10 минут от метро «Войковская». Удобный выезд на Ленинградское и Дмитровское шоссе, СВХ. Количество жителей в радиусе 1 км - 27 000 человек. Уютный столичный район, между двух огромных парков с водоемами.

Технические характеристики:
1 и 2 этаж 28 этажного жилого дома, площадью 95,1 м2. Отдельный вход со двора,  помещение в двух уровнях, высота потолков 5,5 м.

Коммерческие условия:
Стоимость объекта - 27 579 000 рублей,
Стоимость за м2 - 290 000 рублей.

Нужна консультация покупке или продаже торговых помещений?

Наши специалисты подберут для вас самые выгодные варианты для долгосрочного инвестирования,
помогут в сопровождении и сделки, проверят все юридические вопросы касаемо приобретения недвижимости.

* Нажимая на кнопку «Отправить», Вы даете согласие на обработку персональных данных в соответствии с Политикой конфиденциальности

Похожие объекты

(5 мин. 🚶)
Закрытая продажа #30692
Тип: Торговое помещение
Площадь: 93.50 м2
17 765 043 за все
190 000 за м2
Позвонить Подробнее
Закрытая продажа #64052
Тип: Торговое помещение
Площадь: 100.50 м2
42 270 300 за все
420 600 за м2
Позвонить Подробнее
Красносельская (5 мин. 🚶)
Москва, Верхняя Красносельская улица, 17Ас1Б
БЦ "Верхняя Красносельская улица, 17Ас1Б"
Тип: Торговое помещение
Площадь: 101.90 м2
24 913 500 за все
244 490 за м2
Позвонить Подробнее
Новослободская (3 мин. 🚶)
Москва, Долгоруковская улица, 27с1
Долгоруковская улица, 27с1
Тип: Торговое помещение
Площадь: 93.30 м2
Мощность:15 кВт
68 109 000 за все
730 000 за м2
Позвонить Подробнее
Домодедовская (20 мин. 🚗)
Закрытая продажа #61148
Тип: Торговое помещение
Площадь: 98.00 м2
Мощность:20 кВт
38 612 000 за все
394 000 за м2
Позвонить Подробнее
Улица 1905 года (13 мин. 🚶)
Москва, Мантулинская улица, 2
Жилое здание "Мантулинская 2"
Тип: Торговое помещение
Площадь: 92.00 м2
52 000 000 за все
565 217 за м2
Позвонить Подробнее
Ленинский проспект (10 мин. 🚶)
Москва, Ленинский проспект, 38
Бизнес-центр «Lunar (Лунар)»
Тип: Торговое помещение
Площадь: 90.40 м2
Мощность:15 кВт
153 680 000 за все
1 700 000 за м2
Позвонить Подробнее
Озёрная (3 мин. 🚶)
Москва, Озёрная улица, 42с1
ЖК "Страна Озёрная"
Тип: Торговое помещение
Площадь: 100.90 м2
82 490 000 за все
817 542 за м2
Позвонить Подробнее
Бунинская аллея (15 мин. 🚗)
Закрытая продажа #63767
Тип: Торговое помещение
Площадь: 104.00 м2
18 212 480 за все
175 120 за м2
Позвонить Подробнее
Печатники (15 мин. 🚶)
Москва, ЖК Портленд
ЖК "Портленд"
Тип: Торговое помещение
Площадь: 86.30 м2
59 469 330 за все
689 100 за м2
Позвонить Подробнее
Печатники (15 мин. 🚶)
Москва, ЖК Портленд
ЖК "Портленд"
Тип: Торговое помещение
Площадь: 92.20 м2
58 261 180 за все
631 900 за м2
Позвонить Подробнее
Тульская (11 мин. 🚗)
Москва, ЖК Пейв
ЖК "ПЕЙВ"
Тип: Торговое помещение
Площадь: 94.80 м2
64 151 160 за все
676 700 за м2
Позвонить Подробнее
Закрытая продажа #64050
Тип: Торговое помещение
Площадь: 39.60 м2
28 888 200 за все
729 500 за м2
Позвонить Подробнее
Красносельская (5 мин. 🚶)
Москва, Верхняя Красносельская улица, 17Ас1Б
БЦ "Верхняя Красносельская улица, 17Ас1Б"
Тип: Торговое помещение
Площадь: 101.90 м2
24 913 500 за все
244 490 за м2
Позвонить Подробнее
Новослободская (3 мин. 🚶)
Москва, Долгоруковская улица, 27с1
Долгоруковская улица, 27с1
Тип: Торговое помещение
Площадь: 29.80 м2
Мощность:15 кВт
25 330 000 за все
850 000 за м2
Позвонить Подробнее

Спец. предложение

Добрынинская (5 мин. 🚶)
Москва, Житная улица, 10
Жилое здание «Житная 10»
Тип: Торговое помещение
Площадь: 120.00 м2
Мощность:15 кВт
29 000 000 за все
241 667 за м2
Позвонить Подробнее
Закрытая продажа #63773
Тип: Торговое помещение
Площадь: 124.10 м2
30 022 272 за все
241 920 за м2
Позвонить Подробнее
Тёплый стан (4 мин. 🚶)
Москва, Профсоюзная улица, 152к1
Административное «Профсоюзная 152 к2»
Тип: Торговое помещение
Площадь: 54.80 м2
Мощность:20 кВт
29 990 000 за все
547 263 за м2
Позвонить Подробнее
Савёловская (8 мин. 🚶)
Москва, Угловой переулок, 27
Жилое здание "Угловой переулок, 27"
Тип: Торговое помещение
Площадь: 129.60 м2
30 000 000 за все
231 481 за м2
Позвонить Подробнее
ВДНХ (16 мин. 🚶)
Москва, проспект Мира, 131
Жилое здание "проспект Мира, 131"
Тип: Торговое помещение
Площадь: 77.00 м2
26 950 000 за все
350 000 за м2
Позвонить Подробнее
ВДНХ (16 мин. 🚶)
Москва, проспект Мира, 131
Жилое здание "проспект Мира, 131"
Тип: Торговое помещение
Площадь: 82.00 м2
28 700 000 за все
350 000 за м2
Позвонить Подробнее
Селигерская (7 мин. 🚶)
Москва, Дмитровское шоссе, 93к2
Жилое здание "Дмитровское шоссе, 93к2"
Тип: Торговое помещение
Площадь: 67.90 м2
30 000 000 за все
441 826 за м2
Позвонить Подробнее
Медведково (30 мин. 🚗)
Московская область, Мытищи, улица Стрельбище Динамо, 10
ЖК "Мытищи Парк"
Тип: Торговое помещение
Площадь: 94.40 м2
Мощность:31 кВт
28 500 000 за все
301 907 за м2
Позвонить Подробнее
(16 мин. 🚗)
Москва, Новомосковский административный округ, Филимонковский район, жилой комплекс Середневский Лес, 4.3
ЖК "Середневский лес"
Тип: Торговое помещение
Площадь: 62.30 м2
Мощность:12 кВт
25 000 000 за все
401 284 за м2
Позвонить Подробнее
Коптево (7 мин. 🚶)
Закрытая продажа #61435
Тип: Торговое помещение
Площадь: 250.00 м2
Мощность:30 кВт
48 000 000 за все
192 000 за м2
Позвонить Подробнее