Арендный бизнес Отдельно стоящее здание "Подольск, Некрасова проезд 13"

Арендный бизнес Отдельно стоящее здание Арендный бизнес Отдельно стоящее здание Арендный бизнес Отдельно стоящее здание Арендный бизнес Отдельно стоящее здание
Арендный бизнес Отдельно стоящее здание Арендный бизнес Отдельно стоящее здание Арендный бизнес Отдельно стоящее здание Арендный бизнес Отдельно стоящее здание
Округ:
Тип: Арендный бизнес, Торговое помещение
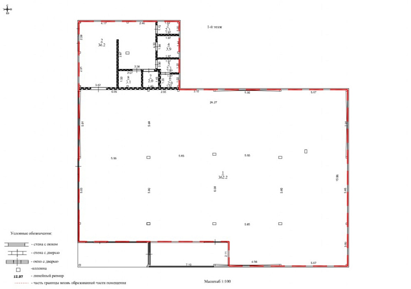
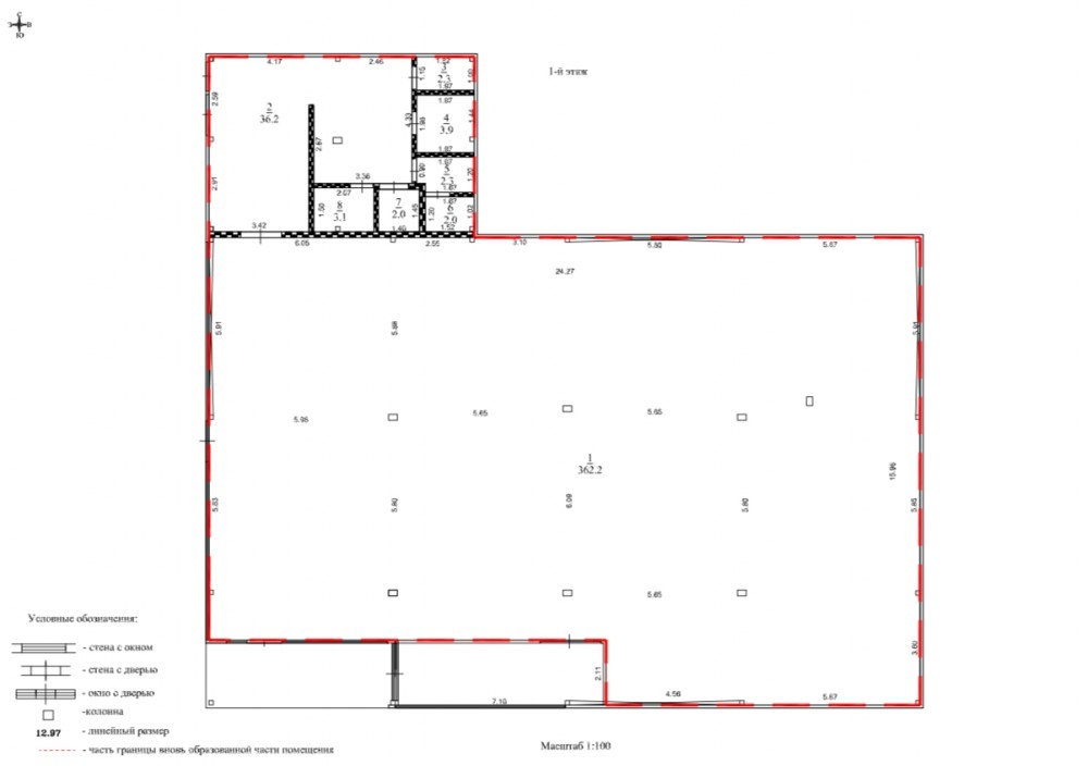
Площадь: 430.80 м2 Метро: Аннино (59 мин. 🚗)
Московская область, Подольск, проезд Некрасова, 13
Позвоните по телефону +7 495 230-28-26, либо оставьте заявку на просмотр прямо сейчас и узнайте условия специального предложения по объекту.
загрузка карты...
Общие
ID 58198
Тип сделки Продажа
Площадь 430.80
Площадь всего 430.00
Тип объекта Торговый центр
Этаж 1
Всего этажей в здании 1
Метраж по этажам
Информация об объекте
Состояние блока отделка арендатора
Планировка Открытая
Нюансы Отдельный вход
Торговая недвижимость
Линия домов 1 линия
Возможности Зона разгрузки,Торговый центр,Витрины,Место для рекламы,Проходное место,Проездное место
Электр. мощность (кВт) 150
Коммерческие условия
За все 54 000 000 ₽
За м 2 125 348 ₽
Арендный бизнес
Окупаемость 8 Лет 4 мес.
По первому месяцу 8 Лет 4 мес.
Доходность 12.00 %
По первому месяцу 12.00 %
Ставка аренды 545 000 ₽ в мес
Арендная ставка за кв\м в год 15 181 ₽
Арендатор Верный
Срок договора 10 Лет

Описание объекта
Предлагается в продажу готовый арендный бизнес - отдельно стоящее здание по адресу: МО, г. Подольск, Некрасова проезд, д. 13. Земельный участок в собственности.
Современный полноценный супермаркет со свежим мясом и выпечкой. Охват большого жилого массива как многоквартирного, так и частного жилого сектора.
Арендатор: Верный, МАП 545 000 руб, ДДА на 10 лет от 2024 г., привязка к РТО - 5,5%.
Алкогольная лицензия получена.

Нужна консультация по подбору арендного бизнеса?

Наши специалисты подберут для вас самые выгодные варианты для долгосрочного инвестирования,
помогут в сопровождении и сделки, проверят все юридические вопросы касаемо приобретения недвижимости.

* Нажимая на кнопку «Отправить», Вы даете согласие на обработку персональных данных в соответствии с Политикой конфиденциальности

Похожие объекты

Доходность 12.24 %

Фонвизинская (6 мин. 🚶)
Закрытая продажа #31227
Тип: Арендный бизнес, Торговое помещение
Площадь: 414.00 м2
Арендатор: Магнит
Месячный платеж: 1 946 645
219 000 000 за все
528 986 за м2
Позвонить Подробнее

Доходность 3.79 %

Кузнецкий Мост (6 мин. 🚶)
Москва, Неглинная улица, 14/1А
Особняк «Неглинная 14/1А»
Тип: Арендный бизнес, Торговое помещение
Площадь: 401.30 м2
Мощность:41 кВт
Арендатор: ВТБ
Месячный платеж: 3 000 000
950 000 000 за все
2 367 306 за м2
Позвонить Подробнее

Доходность 12.50 %

Ховрино (42 мин. 🚗)
Закрытая продажа #62804
Тип: Арендный бизнес, Торговое помещение
Площадь: 410.00 м2
Арендатор: Магнит, Аптека
Месячный платеж: 1 167 250
112 000 000 за все
273 171 за м2
Позвонить Подробнее

Доходность 6.67 %

Красные Ворота (9 мин. 🚶)
Москва, Басманный переулок, 8с5
«Басманный 8с5»
Тип: Арендный бизнес, Торговое помещение
Площадь: 454.00 м2
Мощность:180 кВт
Арендатор: Автосервис
Месячный платеж: 700 000
210 000 000 за все
462 555 за м2
Позвонить Подробнее

Доходность 12.77 %

Ховрино (30 мин. 🚗)
Москва, Зеленоград, 22-й микрорайон, 6.4
ЖК "Зеленый парк"
Тип: Арендный бизнес, Торговое помещение
Площадь: 405.60 м2
Мощность:81 кВт
Арендатор: Пятёрочка
Месячный платеж: 1 200 000
135 000 000 за все
332 840 за м2
Позвонить Подробнее

Доходность 7.74 %

Ул. Скобелевская ( мин. 🚗)
Московская область, Ленинский городской округ, Симферопольское шоссе, 25-й километр, с4
ОСЗ "Симферопольское ш. 24-й км . с4"
Тип: Арендный бизнес, Торговое помещение
Площадь: 414.00 м2
Мощность:330 кВт
Арендатор: Вкусно и точка
Месячный платеж: 1 880 000
290 000 000 за все
700 483 за м2
Позвонить Подробнее

Доходность 6.90 %

Медведково (30 мин. 🚗)
Московская область, Королёв, Пионерская улица, 1
Встроено-пристроенное здание "Пионерская 1"
Тип: Арендный бизнес, Торговое помещение
Площадь: 470.00 м2
Мощность:180 кВт
Арендатор: Вкусно и точка
Месячный платеж: 800 000
139 000 000 за все
295 745 за м2
Позвонить Подробнее

Доходность 10.00 %


Псков, Коммунальная улица, 41
ОСЗ "Коммунальная 41"
Тип: Арендный бизнес, Торговое помещение
Площадь: 389.00 м2
Арендатор: Вкусно и точка
Месячный платеж: 1 500 000
180 000 000 за все
462 725 за м2
Позвонить Подробнее

Доходность 13.95 %

Алтуфьево (10 мин. 🚗)
Закрытая продажа #61257
Тип: Арендный бизнес, Торговое помещение
Площадь: 455.00 м2
Мощность:32 кВт
Арендатор: Школа акробатики +4, СДЕК
Месячный платеж: 780 000
67 000 000 за все
147 253 за м2
Позвонить Подробнее

Доходность 14.12 %

Кунцевская (18 мин. 🚗)
Московская область, Одинцово, улица Чистяковой, 8к2
ЖК "Аметист"
Тип: Арендный бизнес, Торговое помещение
Площадь: 448.30 м2
Мощность:60 кВт
Арендатор: Магнит
Месячный платеж: 1 772 000
175 000 000 за все
390 364 за м2
Позвонить Подробнее

Доходность 12.50 %

Ховрино (15 мин. 🚗)
Москва, Лобненская улица, 14
ТЦ "Зодиак"
Тип: Арендный бизнес, Торговое помещение
Площадь: 409.23 м2
Мощность:70 кВт
Арендатор: Яндекс.Лавка
Месячный платеж: 988 700
94 915 169 за все
231 936 за м2
Позвонить Подробнее

Доходность 18.46 %

Озёрная (15 мин. 🚶)
Москва, Большая Очаковская улица, 23/8
Жилой дом "Большая Очаковская 23/8"
Тип: Арендный бизнес, Торговое помещение
Площадь: 390.00 м2
Арендатор: кладовкин
Месячный платеж: 500 000
44 500 000 за все
114 103 за м2
Позвонить Подробнее

Доходность 16.90 %

Бунинская аллея (50 мин. 🚗)
Московская область, Чехов, микрорайон Губернский, 2
ОСЗ "Губернский 2"
Тип: Арендный бизнес, Торговое помещение
Площадь: 752.00 м2
Арендатор: Верный
Месячный платеж: 735 000
59 000 000 за все
78 457 за м2
Позвонить Подробнее

Доходность 10.81 %

Аэропорт (2 мин. 🚶)
Москва, Ленинградский проспект, 47с2
Бизнес-центр "Авион"
Тип: Арендный бизнес, Торговое помещение
Площадь: 209.10 м2
Арендатор: Компьютерный клуб
Месячный платеж: 443 911
49 000 000 за все
234 338 за м2
Позвонить Подробнее

Спец. предложение

Доходность 12.90 %

Белорусская (8 мин. 🚶)
Москва, 2-я Тверская-Ямская улица, 54
Жилое здание "2-я Тверская-Ямская улица, 54"
Тип: Арендный бизнес, Торговое помещение
Площадь: 220.00 м2
Мощность:15 кВт
Арендатор: Множество разных
Месячный платеж: 540 000
49 990 000 за все
227 227 за м2
Позвонить Подробнее

Доходность 10.08 %

Ул. Скобелевская (15 мин. 🚗)
Москва, Варшавское шоссе, 282к2
ЖК "Никольские луга"
Тип: Арендный бизнес, Торговое помещение
Площадь: 137.00 м2
Мощность:27 кВт
Арендатор: Радуга
Месячный платеж: 390 000
58 000 000 за все
423 358 за м2
Позвонить Подробнее

Доходность 12.77 %

Марьина Роща (3 мин. 🚶)
Москва, улица Сущёвский Вал, 53
Административный Центр на 1й линии ТТК
Тип: Арендный бизнес, Торговое помещение
Площадь: 23.00 м2
Мощность:12 кВт
Арендатор: Табак BlackTab
Месячный платеж: 418 000
55 176 000 за все
2 398 957 за м2
Позвонить Подробнее

Доходность 15.19 %

Марьина Роща (3 мин. 🚶)
Москва, улица Сущёвский Вал, 53
Административный Центр на 1й линии ТТК
Тип: Арендный бизнес, Торговое помещение
Площадь: 204.70 м2
Мощность:15 кВт
Арендатор: Ивановский текстиль
Месячный платеж: 550 000
52 800 000 за все
257 938 за м2
Позвонить Подробнее

Доходность 5.77 %

Тверская (3 мин. 🚶)
Москва, Малый Гнездниковский переулок, 10
Административное здание "Малый Гнездниковский переулок, 10"
Тип: Арендный бизнес, Торговое помещение
Площадь: 84.00 м2
Мощность:13 кВт
Арендатор: Центр медицинского массажа
Месячный платеж: 250 000
52 000 000 за все
619 048 за м2
Позвонить Подробнее

Доходность 9.23 %

Мичуринский проспект (10 мин. 🚶)
Москва, улица Лобачевского, 120
ЖК "Крылья"
Тип: Арендный бизнес, Торговое помещение
Площадь: 71.80 м2
Мощность:17 кВт
Арендатор: Красное и белое
Месячный платеж: 300 000
50 000 000 за все
696 379 за м2
Позвонить Подробнее

Доходность 11.21 %

Румянцево (13 мин. 🚶)
Москва, Новомосковский административный округ, район Коммунарка, деревня Дудкино, Цветочная улица, 3
ЖК "Тропарево Парк к2.3"
Тип: Арендный бизнес, Торговое помещение
Площадь: 156.60 м2
Арендатор: Магнит
Месячный платеж: 438 480
54 600 000 за все
348 659 за м2
Позвонить Подробнее

Доходность 9.60 %

Бабушкинская (17 мин. 🚗)
Московская область, Мытищи, жилой комплекс Ярославский Квартал, 1.2
ЖК "Ярославский квартал"
Тип: Арендный бизнес, Торговое помещение
Площадь: 146.20 м2
Мощность:35 кВт
Арендатор: Магнит
Месячный платеж: 424 000
53 000 000 за все
362 517 за м2
Позвонить Подробнее

Доходность 14.46 %

Аэропорт (5 мин. 🚶)
Москва, Ленинградский проспект, 47
Административное здание AIR Space
Тип: Арендный бизнес, Торговое помещение
Площадь: 209.10 м2
Мощность:42 кВт
Арендатор: Компьютерный клуб
Месячный платеж: 443 911
49 000 000 за все
234 338 за м2
Позвонить Подробнее

Доходность 12.63 %

Войковская (16 мин. 🚗)
Москва, Улица Космонавта Волкова, 6А
Офисное здание «Космонавта Волкова 6а»
Тип: Арендный бизнес, Торговое помещение
Площадь: 204.00 м2
Мощность:30 кВт
Арендатор: Самокат
Месячный платеж: 458 388
55 010 000 за все
269 657 за м2
Позвонить Подробнее

Доходность 10.53 %

Аннино (13 мин. 🚗)
Московская область, Ленинский городской округ, рабочий посёлок Бутово, жилой комплекс Бутово Парк, 18к1
ТЦ "Мармел"
Тип: Арендный бизнес, Торговое помещение
Площадь: 2473.30 м2
Мощность:283 кВт
Арендатор: Множество разных
Месячный платеж: 1 500 000
170 000 000 за все
68 734 за м2
Позвонить Подробнее

Доходность 10.08 %

Аннино (40 мин. 🚗)
Московская область, Ленинский городской округ, посёлок Битца, жилой комплекс Южная Битца, Ботаническая улица, 12
ЖК "Южная Битца"
Тип: Арендный бизнес, Торговое помещение
Площадь: 260.00 м2
Мощность:50 кВт
Арендатор: Магнит
Месячный платеж: 710 000
84 000 000 за все
323 077 за м2
Позвонить Подробнее

Доходность 12.12 %

Аннино (10 мин. 🚶)
Москва, Варшавское шоссе, 145к7
Встроено-пристроенное «Варшавское 145 к7»
Тип: Арендный бизнес, Торговое помещение
Площадь: 1190.10 м2
Мощность:150 кВт
Арендатор: склад инструментов, натяжные потолки, Автозапчасти
Месячный платеж: 1 678 700
165 000 000 за все
138 644 за м2
Позвонить Подробнее