Арендный бизнес ЖК "Мой Адрес в Северном"

Арендный бизнес ЖК Арендный бизнес ЖК
Арендный бизнес ЖК Арендный бизнес ЖК
Округ: НАО
Тип: Арендный бизнес, Торговое помещение
Площадь: 445.10 м2 Метро: Ховрино (17 мин. 🚗)
Москва, Долгопрудная аллея, 14к1
Позвоните по телефону +7 495 230-28-26, либо оставьте заявку на просмотр прямо сейчас и узнайте условия специального предложения по объекту.
загрузка карты...
Общие
ID 58485
Тип сделки Продажа
Площадь 445.10
Тип объекта Жилой комплекс
Этаж 1
Всего этажей в здании 14
Метраж по этажам
Информация об объекте
Состояние объекта рабочее
Состояние блока Shell & Core
Планировка Открытая
Перекрытия Железобетонные
Нюансы Отдельный вход
Торговая недвижимость
Линия домов 1 линия
Возможности Витрины,Место для рекламы,Проходное место,Проездное место
Электр. мощность (кВт) 60
Коммерческие условия
За все 133 000 000 ₽
За м 2 298 809 ₽
Арендный бизнес
Окупаемость 11 Лет 8 мес.
По первому месяцу 11 Лет 8 мес.
Доходность 8.57 %
По первому месяцу 8.57 %
Ставка аренды 950 000 ₽ в мес
Арендная ставка за кв\м в год 25 612 ₽
Арендатор Дикси
Срок договора 10 Лет

Описание объекта
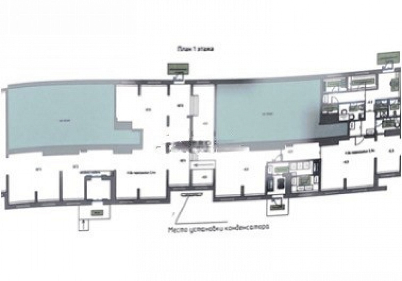
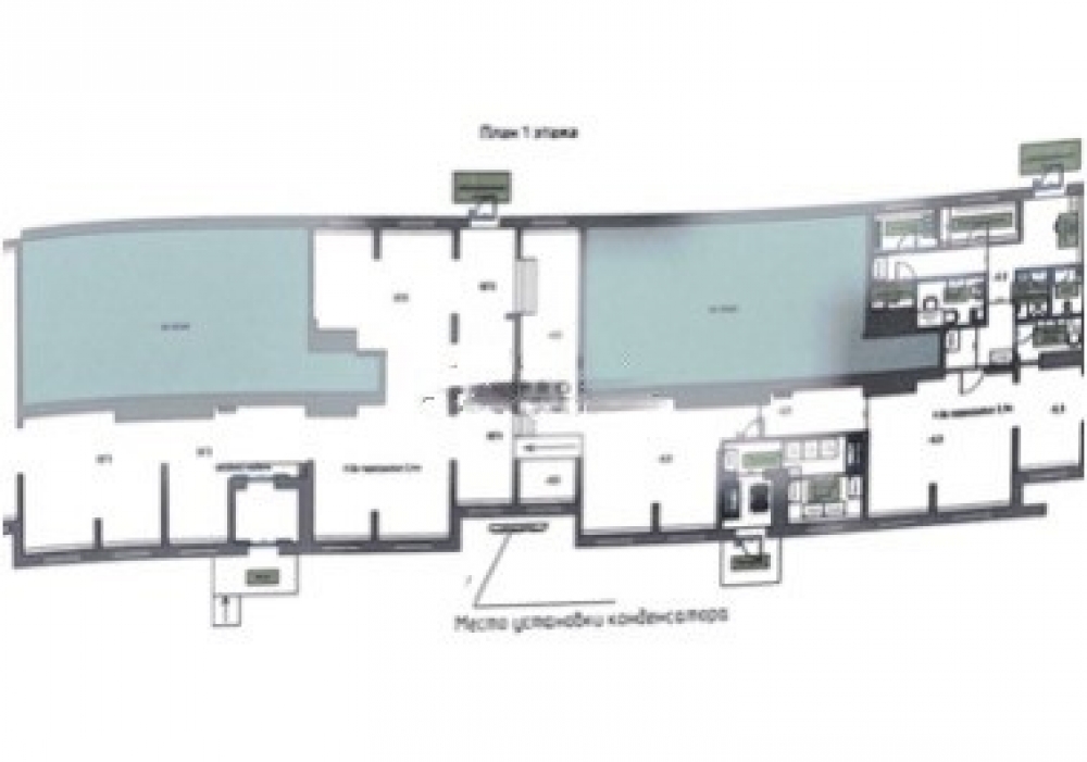
Продажа торгового помещения 445,1 м2 с арендатором супермаркет "Дикси" на Долгопрудной аллее, д. 14к1 (20 минут транспортом от метро Селигерская). 1 линия домов.
Помещение 445,1 м2, располагается на 1 этаже, открытая планировка, вход на уровне земли (без ступенек и пандусов), высота потолка 4,2 м, окна выходят на две стороны дома.
Электрическая мощность 60 кВт. Парковка перед фасадом. Место для размещения рекламы.
Расположено напротив наземной парковки Жилого Комплекса. Преимущества местоположения: густонаселенный жилой район. Более 4 500 квартир и 10 000 жильцов в
радиусе 500 метров. Остановки общественного транспорта и станция МЦД "Долгопружная" (5 минут пешком). Развитая инфраструктура: наличие парковки, школа, детский сад,
магазины, кафе.

Арендатор: супермаркет "Дикси", договор аренды от 28.08.2024 года на 10 лет, месячная арендная плата начиная с 25 месяца аренды 950 500 рублей или 5% от РТО. Окупаемость
11,7 лет.

Нужна консультация по подбору арендного бизнеса?

Наши специалисты подберут для вас самые выгодные варианты для долгосрочного инвестирования,
помогут в сопровождении и сделки, проверят все юридические вопросы касаемо приобретения недвижимости.

* Нажимая на кнопку «Отправить», Вы даете согласие на обработку персональных данных в соответствии с Политикой конфиденциальности

Похожие объекты

Доходность 12.24 %

Фонвизинская (6 мин. 🚶)
Закрытая продажа #31227
Тип: Арендный бизнес, Торговое помещение
Площадь: 414.00 м2
Арендатор: Магнит
Месячный платеж: 1 946 645
219 000 000 за все
528 986 за м2
Позвонить Подробнее

Доходность 3.79 %

Кузнецкий Мост (6 мин. 🚶)
Москва, Неглинная улица, 14/1А
Особняк «Неглинная 14/1А»
Тип: Арендный бизнес, Торговое помещение
Площадь: 401.30 м2
Мощность:41 кВт
Арендатор: ВТБ
Месячный платеж: 3 000 000
950 000 000 за все
2 367 306 за м2
Позвонить Подробнее

Доходность 12.50 %

Ховрино (42 мин. 🚗)
Закрытая продажа #62804
Тип: Арендный бизнес, Торговое помещение
Площадь: 410.00 м2
Арендатор: Магнит, Аптека
Месячный платеж: 1 167 250
112 000 000 за все
273 171 за м2
Позвонить Подробнее

Доходность 6.67 %

Красные Ворота (9 мин. 🚶)
Москва, Басманный переулок, 8с5
«Басманный 8с5»
Тип: Арендный бизнес, Торговое помещение
Площадь: 454.00 м2
Мощность:180 кВт
Арендатор: Автосервис
Месячный платеж: 700 000
210 000 000 за все
462 555 за м2
Позвонить Подробнее

Доходность 12.77 %

Ховрино (30 мин. 🚗)
Москва, Зеленоград, 22-й микрорайон, 6.4
ЖК "Зеленый парк"
Тип: Арендный бизнес, Торговое помещение
Площадь: 405.60 м2
Мощность:81 кВт
Арендатор: Пятёрочка
Месячный платеж: 1 200 000
135 000 000 за все
332 840 за м2
Позвонить Подробнее

Доходность 7.74 %

Ул. Скобелевская ( мин. 🚗)
Московская область, Ленинский городской округ, Симферопольское шоссе, 25-й километр, с4
ОСЗ "Симферопольское ш. 24-й км . с4"
Тип: Арендный бизнес, Торговое помещение
Площадь: 414.00 м2
Мощность:330 кВт
Арендатор: Вкусно и точка
Месячный платеж: 1 880 000
290 000 000 за все
700 483 за м2
Позвонить Подробнее

Доходность 6.90 %

Медведково (30 мин. 🚗)
Московская область, Королёв, Пионерская улица, 1
Встроено-пристроенное здание "Пионерская 1"
Тип: Арендный бизнес, Торговое помещение
Площадь: 470.00 м2
Мощность:180 кВт
Арендатор: Вкусно и точка
Месячный платеж: 800 000
139 000 000 за все
295 745 за м2
Позвонить Подробнее

Доходность 13.95 %

Алтуфьево (10 мин. 🚗)
Закрытая продажа #61257
Тип: Арендный бизнес, Торговое помещение
Площадь: 455.00 м2
Мощность:32 кВт
Арендатор: Школа акробатики +4, СДЕК
Месячный платеж: 780 000
67 000 000 за все
147 253 за м2
Позвонить Подробнее

Доходность 11.54 %

Щукинская (7 мин. 🚶)
Москва, улица Маршала Василевского, 5к1
Жилой дом "Маршала Василевского, 5к1"
Тип: Арендный бизнес, Торговое помещение
Площадь: 481.20 м2
Мощность:80 кВт
Арендатор: Дикси
Месячный платеж: 1 000 000
125 000 000 за все
259 767 за м2
Позвонить Подробнее

Доходность 14.12 %

Кунцевская (18 мин. 🚗)
Московская область, Одинцово, улица Чистяковой, 8к2
ЖК "Аметист"
Тип: Арендный бизнес, Торговое помещение
Площадь: 448.30 м2
Мощность:60 кВт
Арендатор: Магнит
Месячный платеж: 1 772 000
175 000 000 за все
390 364 за м2
Позвонить Подробнее

Доходность 12.50 %

Ховрино (15 мин. 🚗)
Москва, Лобненская улица, 14
ТЦ "Зодиак"
Тип: Арендный бизнес, Торговое помещение
Площадь: 409.23 м2
Мощность:70 кВт
Арендатор: Яндекс.Лавка
Месячный платеж: 988 700
94 915 169 за все
231 936 за м2
Позвонить Подробнее

Доходность 12.77 %

Окружная (5 мин. 🚶)
Москва, 3-й Нижнелихоборский проезд, 16к1
Жилой Дом
Тип: Арендный бизнес, Торговое помещение
Площадь: 471.00 м2
Мощность:60 кВт
Арендатор: Яндекс.Лавка
Месячный платеж: 1 356 192
140 000 000 за все
297 240 за м2
Позвонить Подробнее

Доходность 10.43 %

Медведково (55 мин. 🚗)
Московская область, Королёв, проспект Королёва, 22
Жилое здание "Королёв, проспект Королёва, 22"
Тип: Арендный бизнес, Торговое помещение
Площадь: 624.60 м2
Мощность:75 кВт
Арендатор: Дикси
Месячный платеж: 945 000
135 000 000 за все
216 138 за м2
Позвонить Подробнее

Доходность 9.38 %

Саларьево (25 мин. 🚗)
Москва, Новомосковский административный округ, район Внуково, улица Медовая Долина, 2
ЖК «Баркли Медовая долина»
Тип: Арендный бизнес, Торговое помещение
Площадь: 372.00 м2
Мощность:74 кВт
Арендатор: Пятёрочка
Месячный платеж: 800 000
130 000 000 за все
349 462 за м2
Позвонить Подробнее

Доходность 11.32 %

Добрынинская (1 мин. 🚶)
Москва, Большая Серпуховская улица, 8/7с2
Административное здание «Большая Серпуховская 8/7 с2»
Тип: Арендный бизнес, Торговое помещение
Площадь: 172.10 м2
Мощность:80 кВт
Арендатор: Сеть корейских стритфудов Chicko
Месячный платеж: 963 000
135 000 000 за все
784 428 за м2
Позвонить Подробнее

Доходность 12.63 %

Новокосино (30 мин. 🚗)
Московская область, Богородский городской округ, деревня Щемилово, улица Орлова, 6А
Здание "деревня Щемилово, улица Орлова, 6А"
Тип: Арендный бизнес, Торговое помещение
Площадь: 747.60 м2
Мощность:150 кВт
Арендатор: Пятёрочка, Аптека ЗдравСити, Wildberries
Месячный платеж: 1 194 000
135 000 000 за все
180 578 за м2
Позвонить Подробнее

Доходность 11.43 %

Динамо (13 мин. 🚶)
Москва, Беговая улица, 17к1
Жилое здание "Беговая ул., 17К1"
Тип: Арендный бизнес, Торговое помещение
Площадь: 329.50 м2
Мощность:40 кВт
Арендатор: Яндекс.доставка
Месячный платеж: 1 089 821
139 000 000 за все
421 851 за м2
Позвонить Подробнее

Доходность 11.54 %

Марьино (20 мин. 🚶)
Москва, Донецкая улица, 30к1
ЖК "Квартал домашний"
Тип: Арендный бизнес, Торговое помещение
Площадь: 199.00 м2
Мощность:36 кВт
Арендатор: «French Bakery», Вайлдберриз, Аптека РИГЛА, Табак Panda Puffs
Месячный платеж: 1 005 000
126 000 000 за все
633 166 за м2
Позвонить Подробнее

Доходность 12.77 %

Ховрино (30 мин. 🚗)
Москва, Зеленоград, 22-й микрорайон, 6.4
ЖК "Зеленый парк"
Тип: Арендный бизнес, Торговое помещение
Площадь: 405.60 м2
Мощность:81 кВт
Арендатор: Пятёрочка
Месячный платеж: 1 200 000
135 000 000 за все
332 840 за м2
Позвонить Подробнее

Доходность 11.11 %

Котельники
Московская область, городской округ Люберцы, посёлок городского типа Красково, улица Карла Маркса, 63
ЖК "Красково-Олимпийский"
Тип: Арендный бизнес, Торговое помещение
Площадь: 1323.20 м2
Мощность:150 кВт
Арендатор: Дикси, мясо, Кофейня Аэростат
Месячный платеж: 1 160 000
125 000 000 за все
94 468 за м2
Позвонить Подробнее

Доходность 15.58 %

Владыкино (14 мин. 🚶)
Москва, Алтуфьевское шоссе, 14
Жилой дом "Алтуфьевское ш. 14"
Тип: Арендный бизнес, Торговое помещение
Площадь: 1100.00 м2
Мощность:200 кВт
Арендатор: натяжные потолки, свет - производство - шоу-рум, бытовые услуги
Месячный платеж: 1 200 000
120 000 000 за все
109 091 за м2
Позвонить Подробнее

Доходность 11.21 %

Беляево (3 мин. 🚶)
Москва, Профсоюзная улица, 104
Жилое здание "Профсоюзная улица, 104"
Тип: Арендный бизнес, Торговое помещение
Площадь: 285.00 м2
Мощность:50 кВт
Арендатор: центр укрепления семьи, Салон красоты
Месячный платеж: 780 000
125 000 000 за все
438 596 за м2
Позвонить Подробнее

Доходность 6.90 %

Медведково (30 мин. 🚗)
Московская область, Королёв, Пионерская улица, 1
Встроено-пристроенное здание "Пионерская 1"
Тип: Арендный бизнес, Торговое помещение
Площадь: 470.00 м2
Мощность:180 кВт
Арендатор: Вкусно и точка
Месячный платеж: 800 000
139 000 000 за все
295 745 за м2
Позвонить Подробнее

Доходность 10.81 %

Марьина Роща (3 мин. 🚶)
Москва, улица Сущёвский Вал, 53
Административный Центр на 1й линии ТТК
Тип: Арендный бизнес, Торговое помещение
Площадь: 135.90 м2
Мощность:50 кВт
Арендатор: Заряд от Магнит
Месячный платеж: 1 100 000
132 000 000 за все
971 302 за м2
Позвонить Подробнее

Доходность 11.01 %

Ховрино (7 мин. 🚶)
Москва, улица Дыбенко, 28с2
ОСЗ "Дыбенко улица дом 28 стр. 2"
Тип: Арендный бизнес, Торговое помещение
Площадь: 833.70 м2
Мощность:120 кВт
Арендатор: Магнит, Планета Здоровья, Магнит Косметик
Месячный платеж: 1 950 000
260 000 000 за все
311 863 за м2
Позвонить Подробнее

Доходность 12.50 %

Ховрино (42 мин. 🚗)
Закрытая продажа #62804
Тип: Арендный бизнес, Торговое помещение
Площадь: 410.00 м2
Арендатор: Магнит, Аптека
Месячный платеж: 1 167 250
112 000 000 за все
273 171 за м2
Позвонить Подробнее

Доходность 12.00 %

Ховрино (20 мин. 🚗)
Московская область, Химки, микрорайон Подрезково, Центральная улица, 2/5
Здание "Химки, микрорайон Подрезково, Центральная улица, 2/5"
Тип: Арендный бизнес, Торговое помещение
Площадь: 204.90 м2
Мощность:70 кВт
Арендатор: Самокат, Парикмахерская
Месячный платеж: 558 000
72 000 000 за все
351 391 за м2
Позвонить Подробнее

Доходность 12.50 %

Ховрино (26 мин. 🚗)
Московская область, Химки, микрорайон Клязьма-Старбеево, квартал Международный, жилой комплекс 1-й Химкинский, к1.4
ЖК "1-й Химкинский"
Тип: Арендный бизнес, Торговое помещение
Площадь: 50.30 м2
Мощность:10 кВт
Арендатор: ЗдесьАптека
Месячный платеж: 230 000
26 200 000 за все
520 875 за м2
Позвонить Подробнее

Доходность 12.77 %

Ховрино (30 мин. 🚗)
Москва, Зеленоград, 22-й микрорайон, 6.4
ЖК "Зеленый парк"
Тип: Арендный бизнес, Торговое помещение
Площадь: 405.60 м2
Мощность:81 кВт
Арендатор: Пятёрочка
Месячный платеж: 1 200 000
135 000 000 за все
332 840 за м2
Позвонить Подробнее

Доходность 11.65 %

Ховрино (90 мин. 🚗)
Московская область, Клин, улица Ленина, 14
Здание "Клин, улица Ленина, 14"
Тип: Арендный бизнес, Торговое помещение
Площадь: 701.20 м2
Мощность:150 кВт
Арендатор: Медицинская клиника
Месячный платеж: 565 000
70 000 000 за все
99 829 за м2
Позвонить Подробнее

Доходность 7.19 %

Ховрино (25 мин. 🚗)
Московская область, Химки, Береговая улица, 2
Жилой дом "Береговая 2"
Тип: Арендный бизнес, Торговое помещение
Площадь: 122.50 м2
Мощность:25 кВт
Арендатор: Офис
Месячный платеж: 120 000
20 000 000 за все
163 265 за м2
Позвонить Подробнее

Доходность 14.81 %

Ховрино (15 мин. 🚗)
Москва, Лобненская улица, 14
ТЦ "Зодиак"
Тип: Арендный бизнес, Торговое помещение
Площадь: 99.24 м2
Мощность:50 кВт
Арендатор: Wildberries, ПВЗ Озон
Месячный платеж: 292 460
31 585 710 за все
318 276 за м2
Позвонить Подробнее

Доходность 13.04 %

Ховрино (15 мин. 🚗)
Москва, Лобненская улица, 14
ТЦ "Зодиак"
Тип: Арендный бизнес, Торговое помещение
Площадь: 135.40 м2
Мощность:70 кВт
Арендатор: Винный магазин "Винлаб"
Месячный платеж: 444 247
47 978 719 за все
354 348 за м2
Позвонить Подробнее

Доходность 15.58 %

Ховрино (50 мин. 🚗)
Московская область, Клин, улица Карла Маркса, 8А
ТЦ "Терем"
Тип: Арендный бизнес, Торговое помещение
Площадь: 2950.00 м2
Мощность:250 кВт
Арендатор: Множество разных
Месячный платеж: 1 985 788
175 000 000 за все
59 322 за м2
Позвонить Подробнее

Доходность 14.81 %

Ховрино (15 мин. 🚗)
Москва, Лобненская улица, 14
ТЦ "Зодиак"
Тип: Арендный бизнес, Торговое помещение
Площадь: 77.82 м2
Мощность:60 кВт
Арендатор: Папа Джонс
Месячный платеж: 256 806
27 735 048 за все
356 400 за м2
Позвонить Подробнее

Доходность 13.95 %

Ховрино (15 мин. 🚗)
Москва, Лобненская улица, 14
ТЦ "Зодиак"
Тип: Арендный бизнес, Торговое помещение
Площадь: 3364.00 м2
Мощность:613 кВт
Арендатор: Папа Джонс, Wildberries, ВкусВилл - Даркстор, Яндекс.Лавка, ПВЗ Озон, Пятёрочка, Винный магазин , Строительная компания, Автомойка шиномонтаж
Месячный платеж: 7 353 512
738 976 615 за все
219 672 за м2
Позвонить Подробнее