Арендный бизнес Жилое здание «Павла Андреева 28 к7»

Объект успешно реализован!
Арендный бизнес Жилое здание «Павла Андреева 28 к7»
Округ: ЦАО
Тип: Арендный бизнес, Торговое помещение
Площадь: 217.50 м2 Метро: Серпуховская (12 мин. 🚶)
Москва, улица Павла Андреева, 28к7
Объект успешно реализован, но у нас есть много других интересных предложений. Позвоните по телефону +7 495 230-28-26, либо оставьте заявку на подбор прямо сейчас и получите список подходящих для вас объектов.
загрузка карты...
Алёхин Кирилл Олегович

Объект ведет консультант:

Алёхин Кирилл Олегович

Общие
ID 59721
Тип сделки Продажа
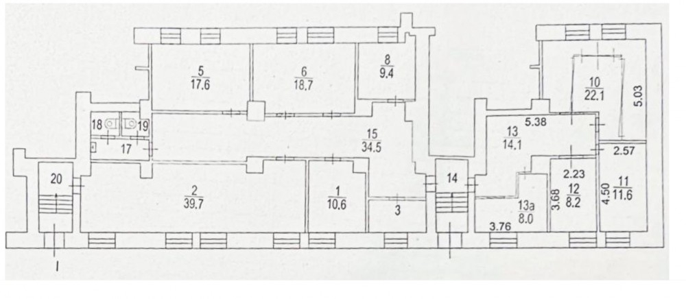
Площадь 217.50
Тип объекта Жилое здание
Этаж 1
Всего этажей в здании 5
Метраж по этажам
Информация об объекте
Состояние объекта рабочее
Состояние блока отделка арендатора
Планировка Смешанная
Коммуникации Система видеонаблюдения,Интернет,Телефония
Перекрытия Железобетонные
КПП Гостевой пропуск
Нюансы Отдельный вход
Торговая недвижимость
Линия домов 1 линия
Возможности Зона разгрузки,Витрины,Место для рекламы,Проходное место,Проездное место
Электр. мощность (кВт) 50
Коммерческие условия
За все 110 000 000 ₽
За м 2 505 747 ₽
Тип собственника Физическое лицо
Арендный бизнес
Окупаемость 10 Лет 10 мес.
По первому месяцу 13 Лет 3 мес.
Доходность 9.23 %
По первому месяцу 7.55 %
Ставка аренды 696 000 ₽ в мес
Арендная ставка за кв\м в год 38 400 ₽
Арендатор Дикси
Срок договора 10 Лет
Индексация 4 %

Описание объекта
Предлагается в продажу готовый арендный бизнес, по адресу: Москва, Павла Андреева, д. 28 к7, площадью 217,5 кв.м. на пересечение улиц Мытная и Павла Андреева. Развитая инфраструктура, среди жилого массива, активный пешеходный и автомобильный трафик. Расположение в шаговой доступности от любой из станций метро: Октябрьская, Добрынинская, Павелецкая, Шабловская.

Технические характеристики:
1 этаж 8-ми этажного жилого дома, Первая линия, этаж - 1, два отдельных входа с улицы, высота потолков - 3 м., место для вывески.

Арендатор:
Федеральная сеть "Дикси",
ДДА 10 лет с 09.25, индексация безусловная 4% с 3 года,
МАП - 5 % от РТО, минимум 696 000 рублей, ГАП - 8 352 000 рублей.

Коммерческие условия:
Стоимость объекта - 110 000 000 рублей,
Стоимость кв. м - 505 747 рублей.

Нужна консультация по подбору арендного бизнеса?

Наши специалисты подберут для вас самые выгодные варианты для долгосрочного инвестирования,
помогут в сопровождении и сделки, проверят все юридические вопросы касаемо приобретения недвижимости.

* Нажимая на кнопку «Отправить», Вы даете согласие на обработку персональных данных в соответствии с Политикой конфиденциальности

Похожие объекты

Доходность 13.48 %

Братиславская (15 мин. 🚗)
Москва, Перервинский бульвар, 17к1
Жилое здание "Перервинский бульвар, 17к1"
Тип: Арендный бизнес, Торговое помещение
Площадь: 210.90 м2
Мощность:33 кВт
Арендатор: Самокат
Месячный платеж: 600 000
64 080 000 за все
303 841 за м2
Позвонить Подробнее

Доходность 10.43 %

Бульвар Рокоссовского (15 мин. 🚶)
Москва, ЖК Открытый Парк
ЖК "Открытый Парк"
Тип: Арендный бизнес, Торговое помещение
Площадь: 229.10 м2
Мощность:46 кВт
Арендатор: аптека "Горздрав"
Месячный платеж: 765 000
109 500 000 за все
477 957 за м2
Позвонить Подробнее

Доходность 15.19 %

Марьина Роща (3 мин. 🚶)
Москва, улица Сущёвский Вал, 53
Административный Центр на 1й линии ТТК
Тип: Арендный бизнес, Торговое помещение
Площадь: 204.70 м2
Мощность:15 кВт
Арендатор: Ивановский текстиль
Месячный платеж: 550 000
52 800 000 за все
257 938 за м2
Позвонить Подробнее

Доходность 12.63 %

Войковская (16 мин. 🚗)
Москва, Улица Космонавта Волкова, 6А
Офисное здание «Космонавта Волкова 6а»
Тип: Арендный бизнес, Торговое помещение
Площадь: 204.00 м2
Мощность:30 кВт
Арендатор: Самокат
Месячный платеж: 498 649
59 837 970 за все
293 323 за м2
Позвонить Подробнее

Доходность 13.48 %

Марьина Роща (3 мин. 🚶)
Москва, улица Сущёвский Вал, 53
Административный Центр на 1й линии ТТК
Тип: Арендный бизнес, Торговое помещение
Площадь: 216.00 м2
Мощность:150 кВт
Арендатор: Бетбум
Месячный платеж: 1 238 000
110 000 000 за все
509 259 за м2
Позвонить Подробнее

Доходность 10.08 %

Братиславская (5 мин. 🚶)
Москва, улица Перерва, 52
Жилое здание "Перерва, 52"
Тип: Арендный бизнес, Торговое помещение
Площадь: 230.00 м2
Мощность:55 кВт
Арендатор: Винный магазин "Винлаб", ПВЗ Озон, Табак, Шаурма, Дом быта
Месячный платеж: 700 000
83 000 000 за все
360 870 за м2
Позвонить Подробнее

Доходность 11.21 %

Деловой центр Деловой центр (МЦК) (7 мин. 🚶)
Москва, улица Антонова-Овсеенко, 4
Жилое здание "Антонова-Овсеенко, 4"
Тип: Арендный бизнес, Торговое помещение
Площадь: 210.10 м2
Мощность:35 кВт
Арендатор: Самокат
Месячный платеж: 840 000
89 754 720 за все
427 200 за м2
Позвонить Подробнее

Доходность 9.45 %

(19 мин. 🚗)
Московская область, Балашиха, микрорайон Новое Павлино
ЖК "Новоград Павлино"
Тип: Арендный бизнес, Торговое помещение
Площадь: 212.20 м2
Мощность:38 кВт
Арендатор: ВкусВилл, Аптека РИГЛА, НеДым
Месячный платеж: 457 000
58 000 000 за все
273 327 за м2
Позвонить Подробнее

Доходность 9.02 %

(37 мин. 🚗)
Московская область, Одинцовский городской округ, посёлок городского типа Заречье, Луговая улица, 3
ЖК "Заречье парк"
Тип: Арендный бизнес, Торговое помещение
Площадь: 207.00 м2
Мощность:35 кВт
Арендатор: Самокат
Месячный платеж: 615 000
81 200 000 за все
392 271 за м2
Позвонить Подробнее

Доходность 7.69 %

Тульская (2 мин. 🚶)
Москва, Гамсоновский переулок, 2с11
Бизнес-центр "Рябовская мануфактура" Ryabov LOFT
Тип: Арендный бизнес, Офисы
Площадь: 236.40 м2
Отделка:выполнена высококачественная отделка
Арендатор: Рекламное агенство
Месячный платеж: 714 879
111 108 000 за все
470 000 за м2
Позвонить Подробнее

Доходность 12.50 %

Варшавская (20 мин. 🚗)
Москва, Каширское шоссе, 8к1
Жилое здание "Каширское шоссе, 8к1"
Тип: Арендный бизнес, Торговое помещение
Площадь: 232.00 м2
Мощность:25 кВт
Арендатор: Limon магазин одежды
Месячный платеж: 250 000
23 900 000 за все
103 017 за м2
Позвонить Подробнее

Доходность 9.09 %

Каширская (11 мин. 🚶)
Москва, Пролетарский проспект, 6к2с2
Здание "Пролетарский проспект, 6к2с2"
Тип: Арендный бизнес, Торговое помещение
Площадь: 225.00 м2
Мощность:100 кВт
Арендатор: Автосервис
Месячный платеж: 742 500
98 000 000 за все
435 556 за м2
Позвонить Подробнее

Доходность 11.01 %

Сокол Сокольники Соколиная Гора (1 мин. 🚶)
Москва, Ленинградский проспект, 78к1
Жилое здание «Ленинградский 78 к1»
Тип: Арендный бизнес, Торговое помещение
Площадь: 699.30 м2
Арендатор: Магнолия
Месячный платеж: 1 100 000
119 000 000 за все
170 170 за м2
Позвонить Подробнее

Доходность 11.11 %

Кузьминки (7 мин. 🚶)
Москва, Волгоградский проспект, 105
ОСЗ "Волгоградский проспект, 105"
Тип: Арендный бизнес, Торговое помещение
Площадь: 510.10 м2
Арендатор: Магнолия
Месячный платеж: 1 000 000
108 000 000 за все
211 723 за м2
Позвонить Подробнее

Доходность 16.67 %

Партизанская (5 мин. 🚶)
Москва, Окружной проезд, 16с2
ОСЗ "Окружной пр-д 16с2"
Тип: Арендный бизнес, Торговое помещение
Площадь: 1463.40 м2
Арендатор: Чижик, фирменный кондитерский магазин Славяночка, салон электротранспорта
Месячный платеж: 1 673 060
120 000 000 за все
82 001 за м2
Позвонить Подробнее

Доходность 15.58 %

Владыкино (14 мин. 🚶)
Москва, Алтуфьевское шоссе, 14
Жилой дом "Алтуфьевское ш. 14"
Тип: Арендный бизнес, Торговое помещение
Площадь: 1100.00 м2
Мощность:200 кВт
Арендатор: натяжные потолки, свет - производство - шоу-рум, бытовые услуги
Месячный платеж: 1 200 000
120 000 000 за все
109 091 за м2
Позвонить Подробнее

Доходность 13.79 %

Ясенево (11 мин. 🚶)
Москва, улица Паустовского, 8к1
Здание "улица Паустовского, 8к1"
Тип: Арендный бизнес, Торговое помещение
Площадь: 522.00 м2
Мощность:65 кВт
Арендатор: Озон Фреш
Месячный платеж: 1 044 000
105 000 000 за все
201 149 за м2
Позвонить Подробнее

Доходность 10.43 %

Бульвар Рокоссовского (15 мин. 🚶)
Москва, ЖК Открытый Парк
ЖК "Открытый Парк"
Тип: Арендный бизнес, Торговое помещение
Площадь: 229.10 м2
Мощность:46 кВт
Арендатор: аптека "Горздрав"
Месячный платеж: 765 000
109 500 000 за все
477 957 за м2
Позвонить Подробнее

Доходность 10.43 %

(2 мин. 🚶)
Москва, Ташкентская улица, 12/20
Жилое здание "Ташкентская улица, 12/20"
Тип: Арендный бизнес, Торговое помещение
Площадь: 170.90 м2
Мощность:50 кВт
Арендатор: аптека Столички, ВинЛаб
Месячный платеж: 700 000
99 500 000 за все
582 212 за м2
Позвонить Подробнее

Доходность 12.24 %

(12 мин. 🚶)
Москва, Клязьминская улица, 9с2
Жилое здание "Клязьминская улица, 9с2"
Тип: Арендный бизнес, Торговое помещение
Площадь: 242.50 м2
Мощность:106 кВт
Арендатор: Аптека Мелодия здоровья, Улыбка радуги
Месячный платеж: 800 000
100 000 000 за все
412 371 за м2
Позвонить Подробнее

Доходность 13.48 %

Марьина Роща (3 мин. 🚶)
Москва, улица Сущёвский Вал, 53
Административный Центр на 1й линии ТТК
Тип: Арендный бизнес, Торговое помещение
Площадь: 216.00 м2
Мощность:150 кВт
Арендатор: Бетбум
Месячный платеж: 1 238 000
110 000 000 за все
509 259 за м2
Позвонить Подробнее

Доходность 10.43 %

Жулебино (40 мин. 🚗)
Московская область, Жуковский, улица Гагарина, 62
ЖК "Гагаринский"
Тип: Арендный бизнес, Торговое помещение
Площадь: 580.20 м2
Мощность:116 кВт
Арендатор: Пятёрочка
Месячный платеж: 1 050 000
119 900 000 за все
206 653 за м2
Позвонить Подробнее

Доходность 12.24 %

Домодедовская (6 мин. 🚗)
Москва, Каширское шоссе, 144к2
ОСЗ "Каширское ш. 144к2"
Тип: Арендный бизнес, Торговое помещение
Площадь: 420.00 м2
Мощность:65 кВт
Арендатор: Даркстор Озон
Месячный платеж: 1 100 000
118 800 000 за все
282 857 за м2
Позвонить Подробнее

Доходность 9.76 %

Китай-город (10 мин. 🚶)
Москва, Хохловский переулок, 13с1
БЦ "Нега"
Тип: Арендный бизнес, Офисы
Площадь: 191.10 м2
Отделка:выполнена высококачественная отделка
Арендатор: -
Месячный платеж: 955 500
117 526 500 за все
615 000 за м2
Позвонить Подробнее