Продажа торгового помещения STONE SOKOLNIKI

Продажа торгового помещения STONE SOKOLNIKI Продажа торгового помещения STONE SOKOLNIKI
Продажа торгового помещения STONE SOKOLNIKI - превью Продажа торгового помещения STONE SOKOLNIKI - превью
Москва, улица Гастелло, 30
Позвоните по телефону +7 495 230-28-26, либо оставьте заявку на просмотр прямо сейчас и узнайте условия специального предложения по объекту.
загрузка карты...
Общие
ID 60248
Тип сделки Продажа
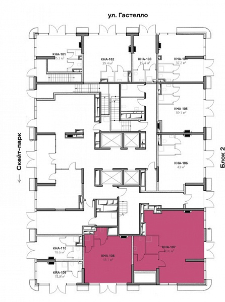
Площадь 80.60
Площадь всего 65000.00
Тип объекта Жилой комплекс
Класс здания A
Этаж 1
Всего этажей в здании 33
Метраж по этажам
Информация об объекте
Состояние объекта новое строительство
Состояние блока Shell and Core
Планировка Открытая
Перекрытия Железобетонные
Нюансы Отдельный вход
Новостройка Новостройка
Торговая недвижимость
Линия домов 1 линия
Возможности Витрины,Место для рекламы,Проходное место,Проездное место
Электр. мощность (кВт) 20
Коммерческие условия
За все 63 915 800 ₽
За м 2 793 000 ₽
Тип собственника Юридическое лицо

Описание объекта
Продажа помещения свободного назначения в новом ЖК бизнес-класса SOKOLNIKI, по адресу: ВАО, Москва, ул. Гастелло, 30, площадью 80 кв.м. В пешей доступности находятся две станции метро — «Сокольники» и «Электрозаводская». Удобный выезд на ТТК, шоссе Энтузиастов и Садовое кольцо.

ЖК состоит из 3 башен высотой 24, 28 и 33 этажа. Включает в себя 763 квартиры (2 289 жителей) с чистовой и дизайнерской отделкой (быстрое заселение). В радиусе 10-15 минутной пешей доступности проживает 12 600 человек (по данным ЦПИ).

Ввод в эксплуатацию 1-й квартал 2027 года.

Технические характеристики :
1 этаж 33-х этажного жилого дома, площадью 80.6 кв.м.
Свободная планировка, высота потолков 4 м, витринное остекление, место для размещения вывески, индивидуальный вход, мокрая точка в помещении, безбарьерный доступ, мультизональные системы VRF кондиционирования (с большей точностью поддерживает заданную температуру в помещении, чем обычный кондиционер), приточно-вытяжная система вентиляции, внутрипольные конвекторы.

Коммерческие условия:
Беспроцентная рассрочка:
Первоначальный взнос от 20%,
Отсутствие переплат (нет % на остаток),
Срок действия рассрочки – до окончания строительства.

Наша оценка
Локация
Цена
Техническое оснащение
Состояние
Метраж
Общая оценка 5

Нужна консультация покупке или продаже торговых помещений?

Наши специалисты подберут для вас самые выгодные варианты для долгосрочного инвестирования,
помогут в сопровождении и сделки, проверят все юридические вопросы касаемо приобретения недвижимости.

* Нажимая на кнопку «Отправить», Вы даете согласие на обработку персональных данных в соответствии с Политикой конфиденциальности

Похожие объекты

Бунинская аллея (15 мин. 🚗)
Закрытая продажа #63770
Тип: Торговое помещение
Площадь: 72.30 м2
14 379 024 за все
198 880 за м2
Позвонить Подробнее
Бунинская аллея (15 мин. 🚗)
Закрытая продажа #63747
Тип: Торговое помещение
Площадь: 72.30 м2
14 379 024 за все
198 880 за м2
Позвонить Подробнее
Печатники (15 мин. 🚶)
Москва, ЖК Портленд
ЖК "Портленд"
Тип: Торговое помещение
Площадь: 86.30 м2
59 469 330 за все
689 100 за м2
Позвонить Подробнее
ВДНХ (16 мин. 🚶)
Москва, проспект Мира, 131
Жилое здание "проспект Мира, 131"
Тип: Торговое помещение
Площадь: 77.00 м2
26 950 000 за все
350 000 за м2
Позвонить Подробнее
ВДНХ (16 мин. 🚶)
Москва, проспект Мира, 131
Жилое здание "проспект Мира, 131"
Тип: Торговое помещение
Площадь: 75.00 м2
22 620 000 за все
301 600 за м2
Позвонить Подробнее
ВДНХ (16 мин. 🚶)
Москва, проспект Мира, 131
Жилое здание "проспект Мира, 131"
Тип: Торговое помещение
Площадь: 82.00 м2
28 700 000 за все
350 000 за м2
Позвонить Подробнее
Коломенская (1 мин. 🚶)
Москва, проспект Андропова, 30
Жилое здание "проспект Андропова, 30"
Тип: Торговое помещение
Площадь: 75.90 м2
65 000 000 за все
856 390 за м2
Позвонить Подробнее
Тёплый стан (20 мин. 🚗)
Москва, Новомосковский административный округ, район Коммунарка, посёлок завода Мосрентген, 24
ЖК «1-й Ясеневский»
Тип: Торговое помещение
Площадь: 82.40 м2
Мощность:16 кВт
36 500 000 за все
442 961 за м2
Позвонить Подробнее
Бульвар Рокоссовского (5 мин. 🚶)
Москва, Открытое шоссе, 18Ак1
ЖК «Лосиноостровский парк»
Тип: Торговое помещение
Площадь: 82.80 м2
Мощность:15 кВт
40 572 000 за все
490 000 за м2
Позвонить Подробнее
Киевская (7 мин. 🚶)
Москва, Брянская улица, 12
Жилой дом "Брянская 12"
Тип: Торговое помещение
Площадь: 83.70 м2
110 400 000 за все
1 318 996 за м2
Позвонить Подробнее
Киевская (7 мин. 🚶)
Москва, Брянская улица, 12
Жилой дом "Брянская 12"
Тип: Торговое помещение
Площадь: 76.50 м2
96 600 000 за все
1 262 745 за м2
Позвонить Подробнее

Спец. предложение

Домодедовская (44 мин. 🚗)
Закрытая продажа #58395
Тип: Торговое помещение
Площадь: 81.60 м2
Мощность:16 кВт
15 500 000 за все
189 951 за м2
Позвонить Подробнее
Бунинская аллея (15 мин. 🚗)
Закрытая продажа #63777
Тип: Торговое помещение
Площадь: 283.90 м2
68 610 113 за все
241 670 за м2
Позвонить Подробнее
Бунинская аллея (15 мин. 🚗)
Закрытая продажа #63775
Тип: Торговое помещение
Площадь: 283.30 м2
66 408 353 за все
234 410 за м2
Позвонить Подробнее
Бунинская аллея (15 мин. 🚗)
Закрытая продажа #63774
Тип: Торговое помещение
Площадь: 295.80 м2
67 646 502 за все
228 690 за м2
Позвонить Подробнее
Домодедовская (6 мин. 🚗)
Москва, Каширское шоссе, 144к2
ОСЗ "Каширское ш. 144к2"
Тип: Торговое помещение
Площадь: 400.00 м2
Мощность:30 кВт
68 990 000 за все
172 475 за м2
Позвонить Подробнее
Печатники (15 мин. 🚶)
Москва, ЖК Портленд
ЖК "Портленд"
Тип: Торговое помещение
Площадь: 86.30 м2
59 469 330 за все
689 100 за м2
Позвонить Подробнее
Печатники (15 мин. 🚶)
Москва, ЖК Портленд
ЖК "Портленд"
Тип: Торговое помещение
Площадь: 92.20 м2
58 261 180 за все
631 900 за м2
Позвонить Подробнее
Тульская (11 мин. 🚗)
Москва, ЖК Пейв
ЖК "ПЕЙВ"
Тип: Торговое помещение
Площадь: 94.80 м2
64 151 160 за все
676 700 за м2
Позвонить Подробнее
Закрытая продажа #63726
Тип: Торговое помещение
Площадь: 181.00 м2
61 362 620 за все
339 020 за м2
Позвонить Подробнее
Отрадное (8 мин. 🚶)
Закрытая продажа #63717
Тип: Торговое помещение
Площадь: 164.40 м2
65 000 000 за все
395 377 за м2
Позвонить Подробнее
(6 мин. 🚶)
Москва, жилой комплекс Преображенская Площадь
ЖК "Преображенская площадь"
Тип: Торговое помещение
Площадь: 93.00 м2
57 823 792 за все
621 761 за м2
Позвонить Подробнее
(6 мин. 🚶)
Москва, жилой комплекс Преображенская Площадь
ЖК "Преображенская площадь"
Тип: Торговое помещение
Площадь: 107.70 м2
65 137 400 за все
604 804 за м2
Позвонить Подробнее
Деловой центр Деловой центр (МЦК) (7 мин. 🚶)
Москва, Пресненская набережная, 12
Москва-Сити «Башня Федерация»
Тип: Торговое помещение
Площадь: 52.30 м2
Мощность:26 кВт
63 800 000 за все
1 219 885 за м2
Позвонить Подробнее
Сокол Сокольники Соколиная Гора (3 мин. 🚶)
Москва, Ленинградский проспект, 69с1
Жилое здание "Ленинградский пр-т 69"
Тип: Торговое помещение
Площадь: 50.00 м2
Мощность:100 кВт
14 000 000 за все
280 000 за м2
Позвонить Подробнее
Сокол Сокольники Соколиная Гора (3 мин. 🚶)
Москва, Ленинградский проспект, 69с1
Жилое здание "Ленинградский пр-т 69"
Тип: Торговое помещение
Площадь: 250.00 м2
Мощность:100 кВт
57 000 000 за все
228 000 за м2
Позвонить Подробнее
Сокол Сокольники Соколиная Гора (3 мин. 🚶)
Москва, Ленинградский проспект, 69с1
Жилое здание "Ленинградский пр-т 69"
Тип: Торговое помещение
Площадь: 300.00 м2
Мощность:100 кВт
71 000 000 за все
236 667 за м2
Позвонить Подробнее
Сокол Сокольники Соколиная Гора (15 мин. 🚗)
Москва, Часовая улица, 28к2
ЖК "SOUL (СОУЛ)"
Тип: Торговое помещение
Площадь: 59.60 м2
41 809 698 за все
701 505 за м2
Позвонить Подробнее
Сокол Сокольники Соколиная Гора (15 мин. 🚗)
Москва, Часовая улица, 28к2
ЖК "SOUL (СОУЛ)"
Тип: Торговое помещение
Площадь: 64.80 м2
39 347 532 за все
607 215 за м2
Позвонить Подробнее
Сокол Сокольники Соколиная Гора (1 мин. 🚶)
Москва, Ленинградский проспект, 71кГ
Жилой дом "Ленинградский пр-т 71кГ"
Тип: Торговое помещение
Площадь: 43.70 м2
66 000 000 за все
1 510 297 за м2
Позвонить Подробнее
Сокол Сокольники Соколиная Гора (1 мин. 🚶)
Москва, Ленинградский проспект, 71кГ
Жилой дом "Ленинградский пр-т 71кГ"
Тип: Торговое помещение
Площадь: 105.40 м2
84 000 000 за все
796 964 за м2
Позвонить Подробнее
Сокол Сокольники Соколиная Гора (15 мин. 🚗)
Москва, Часовая улица, 28к2
ЖК "SOUL (СОУЛ)"
Тип: Торговое помещение
Площадь: 72.30 м2
49 170 146 за все
680 085 за м2
Позвонить Подробнее
Сокол Сокольники Соколиная Гора (19 мин. 🚗)
Москва, Волоколамское шоссе, 1с1
Офисное здание «Проектный институт»
Тип: Торговое помещение
Площадь: 33.70 м2
Мощность:25 кВт
33 363 001 за все
990 000 за м2
Позвонить Подробнее
Сокольники (10 мин. 🚶)
Москва, улица Гастелло, 30
STONE SOKOLNIKI
Тип: Торговое помещение
Площадь: 52.00 м2
Мощность:12 кВт
39 599 700 за все
761 533 за м2
Позвонить Подробнее
Сокольники (10 мин. 🚶)
Москва, улица Гастелло, 30
STONE SOKOLNIKI
Тип: Торговое помещение
Площадь: 43.10 м2
Мощность:10 кВт
28 144 300 за все
653 000 за м2
Позвонить Подробнее
Сокольники (10 мин. 🚶)
Москва, улица Гастелло, 30
STONE SOKOLNIKI
Тип: Торговое помещение
Площадь: 46.00 м2
Мощность:12 кВт
27 094 000 за все
589 000 за м2
Позвонить Подробнее