Продажа торгового помещения БЦ "MOUNT (МАУНТ)"

Продажа торгового помещения БЦ
Москва, Боровское шоссе, вл2
Позвоните по телефону +7 495 230-28-26, либо оставьте заявку на просмотр прямо сейчас и узнайте условия специального предложения по объекту.
загрузка карты...
Кириченко Константин Юрьевич

Объект ведет консультант:

Кириченко Константин Юрьевич

Общие
ID 60810
Тип сделки Продажа
Площадь 521.60
Площадь всего 26236.00
Тип объекта Бизнес-центр
Этаж 1
Всего этажей в здании 20
Метраж по этажам
Информация об объекте
Состояние объекта новое строительство
Состояние блока помещение без отделки
Планировка Смешанная
Перекрытия Железобетонные
Торговая недвижимость
Линия домов 1 линия
Возможности Место для рекламы,Проходное место,Проездное место
Коммерческие условия
За все 208 640 000 ₽
За м 2 400 000 ₽

Описание объекта
Предлагается на продажу торговое помещение в новом Бизнес-центре "MOUNT". Расположение на пересечении двух основных транспортных артерий: Боровского шоссе и МКАД. Отсюда легко добираться до Москвы-Сити и аэропорта Внуково. Площадь 521,60 м2. Пространство создано так, что работа в нем не просто эффективна, но и вдохновляет и приносит радость на ежедневной основе. От больших корпораций до стартапов — здесь все могут формировать комфортные условия с осознанным подходом и уважением к личным границам.

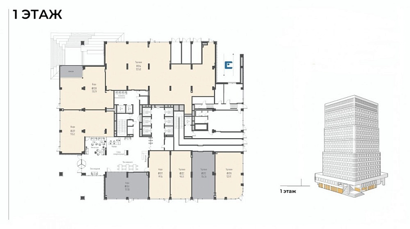
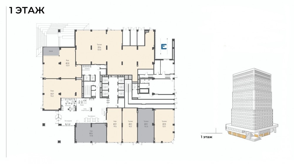
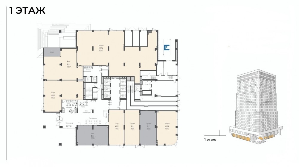
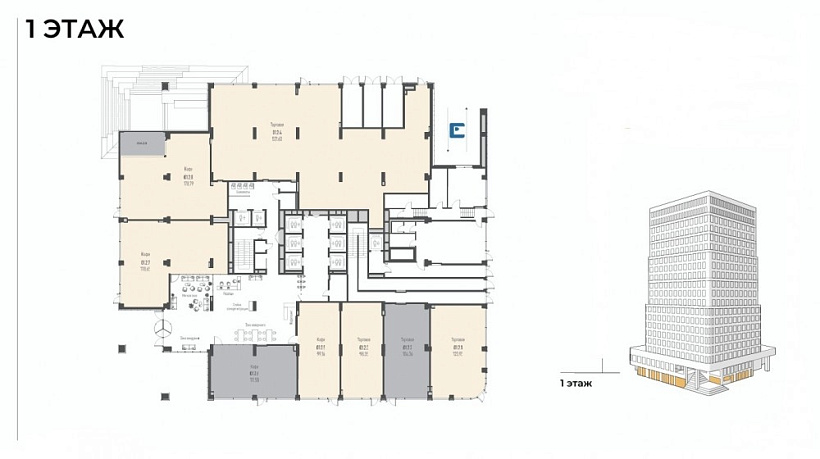
На плане под № 01.2.4

Нужна консультация покупке или продаже торговых помещений?

Наши специалисты подберут для вас самые выгодные варианты для долгосрочного инвестирования,
помогут в сопровождении и сделки, проверят все юридические вопросы касаемо приобретения недвижимости.

* Нажимая на кнопку «Отправить», Вы даете согласие на обработку персональных данных в соответствии с Политикой конфиденциальности

Похожие объекты

Смоленская (Филевская) Смоленская (Арбатско-Покровская) (5 мин. 🚶)
Москва, Переулок Сивцев Вражек, 36/18
Здание «Сивцев Вражек 36/18»
Тип: Торговое помещение
Площадь: 538.30 м2
Мощность:150 кВт
750 000 000 за все
1 393 275 за м2
Позвонить Подробнее
Ленинский проспект (10 мин. 🚶)
Москва, Ленинский проспект, 38
Бизнес-центр «Lunar (Лунар)»
Тип: Торговое помещение
Площадь: 538.90 м2
Мощность:305 кВт
414 953 000 за все
770 000 за м2
Позвонить Подробнее
Калужская (12 мин. 🚗)
Москва, улица Обручева, 11
ТЦ "улица Обручева, 11"
Тип: Торговое помещение
Площадь: 510.10 м2
150 000 000 за все
294 060 за м2
Позвонить Подробнее
(6 мин. 🚗)
Москва, Новомосковский административный округ, район Внуково, квартал № 19, 1с1
Бизнес-парк "Переделкино"
Тип: Торговое помещение
Площадь: 555.00 м2
Мощность:90 кВт
187 900 000 за все
338 559 за м2
Позвонить Подробнее
Новокосино (15 мин. 🚗)
Московская область, Балашиха, улица Флёрова, 2/3
Жилой дом
Тип: Торговое помещение
Площадь: 570.00 м2
Мощность:15 кВт
35 000 000 за все
61 404 за м2
Позвонить Подробнее
Электрозаводская (2 мин. 🚗)
Москва, Бакунинская улица, 69с1
Бизнес-центр «Александрия»
Тип: Торговое помещение
Площадь: 569.00 м2
250 000 000 за все
439 367 за м2
Позвонить Подробнее
Электрозаводская (2 мин. 🚗)
Москва, Бакунинская улица, 69с1
Бизнес-центр «Александрия»
Тип: Торговое помещение
Площадь: 569.00 м2
250 000 000 за все
439 367 за м2
Позвонить Подробнее
Дубровка (30 мин. 🚶)
Москва, улица Эдуарда Стрельцова, 2к1
ЖК «FORIVER (Форивер)»
Тип: Торговое помещение
Площадь: 544.60 м2
Мощность:95 кВт
192 820 000 за все
354 058 за м2
Позвонить Подробнее
Улица 1905 года (8 мин. 🚶)
Москва, Улица Красная Пресня, 28
Офисное здание «Красная Пресня 28»
Тип: Торговое помещение
Площадь: 561.00 м2
Мощность:30 кВт
268 205 000 за все
478 084 за м2
Позвонить Подробнее
Университет (19 мин. 🚶)
Москва, Ленинский проспект, 82/2
Жилое здание "Ленинский проспект, 82/2"
Тип: Торговое помещение
Площадь: 550.30 м2
Мощность:101 кВт
230 000 000 за все
417 954 за м2
Позвонить Подробнее
Лубянка (4 мин. 🚶)
Закрытая продажа #62870
Тип: Торговое помещение
Площадь: 534.40 м2
540 000 000 за все
1 010 479 за м2
Позвонить Подробнее
Закрытая продажа #44097
Тип: Торговое помещение
Площадь: 484.40 м2
146 609 148 за все
302 661 за м2
Позвонить Подробнее
Арбатская (Филевская) Арбатская (Арбатско-Покровская) (7 мин. 🚶)
Москва, Калашный переулок, 5
Офисное здание «Калашный 5»
Тип: Торговое помещение
Площадь: 169.10 м2
Мощность:50 кВт
209 684 000 за все
1 240 000 за м2
Позвонить Подробнее
ВДНХ (16 мин. 🚶)
Москва, проспект Мира, 131
Жилое здание "проспект Мира, 131"
Тип: Торговое помещение
Площадь: 1146.50 м2
Мощность:65 кВт
200 000 000 за все
174 444 за м2
Позвонить Подробнее
(6 мин. 🚗)
Москва, Новомосковский административный округ, район Внуково, квартал № 19, 1с1
Бизнес-парк "Переделкино"
Тип: Торговое помещение
Площадь: 555.00 м2
Мощность:90 кВт
187 900 000 за все
338 559 за м2
Позвонить Подробнее
(6 мин. 🚗)
Москва, Новомосковский административный округ, район Внуково, квартал № 19, 1с1
Бизнес-парк "Переделкино"
Тип: Торговое помещение
Площадь: 612.00 м2
Мощность:104 кВт
194 800 000 за все
318 301 за м2
Позвонить Подробнее
Дубровка (30 мин. 🚶)
Москва, улица Эдуарда Стрельцова, 2к1
ЖК «FORIVER (Форивер)»
Тип: Торговое помещение
Площадь: 544.60 м2
Мощность:95 кВт
192 820 000 за все
354 058 за м2
Позвонить Подробнее
Дубровка (30 мин. 🚶)
Москва, улица Эдуарда Стрельцова, 2к1
ЖК «FORIVER (Форивер)»
Тип: Торговое помещение
Площадь: 370.50 м2
Мощность:111 кВт
206 970 000 за все
558 623 за м2
Позвонить Подробнее
Мякинино (30 мин. 🚶)
Московская область, Красногорск, Красногорский бульвар, 4с1
ТЦ "Терабит"
Тип: Торговое помещение
Площадь: 1343.00 м2
Мощность:300 кВт
201 450 000 за все
150 000 за м2
Позвонить Подробнее
Улица 1905 года (14 мин. 🚶)
Москва, улица Сергея Макеева, вл11/9с1-10
ЖК "LIFE TIME"
Тип: Торговое помещение
Площадь: 168.60 м2
206 430 000 за все
1 224 377 за м2
Позвонить Подробнее
Улица 1905 года (14 мин. 🚶)
Москва, улица Сергея Макеева, вл11/9с1-10
ЖК "LIFE TIME"
Тип: Торговое помещение
Площадь: 172.10 м2
194 090 000 за все
1 127 775 за м2
Позвонить Подробнее
Новокузнецкая (2 мин. 🚶)
Москва, Пятницкая улица, 22с2
Особняк «Пятницкая 22 с2»
Тип: Торговое помещение
Площадь: 323.40 м2
Мощность:80 кВт
210 000 000 за все
649 351 за м2
Позвонить Подробнее
Говорово (10 мин. 🚶)
Закрытая продажа #63357
Тип: Торговое помещение
Площадь: 2070.60 м2
Мощность:200 кВт
220 000 000 за все
106 249 за м2
Позвонить Подробнее
Ботанический сад (8 мин. 🚶)
Москва, Сельскохозяйственная улица, 32
ОСЗ "Сельскохозяйственная 32"
Тип: Торговое помещение
Площадь: 281.29 м2
Мощность:108 кВт
200 000 000 за все
711 010 за м2
Позвонить Подробнее
Говорово (8 мин. 🚶)
Москва, Боровское шоссе, вл2
БЦ "MOUNT (МАУНТ)"
Тип: Торговое помещение
Площадь: 178.80 м2
69 374 400 за все
388 000 за м2
Позвонить Подробнее
Говорово (8 мин. 🚶)
Москва, Боровское шоссе, вл2
БЦ "MOUNT (МАУНТ)"
Тип: Торговое помещение
Площадь: 98.40 м2
43 099 200 за все
438 000 за м2
Позвонить Подробнее
Говорово (8 мин. 🚶)
Москва, Боровское шоссе, вл2
БЦ "MOUNT (МАУНТ)"
Тип: Торговое помещение
Площадь: 124.00 м2
48 980 000 за все
395 000 за м2
Позвонить Подробнее
Говорово (10 мин. 🚶)
Закрытая продажа #63357
Тип: Торговое помещение
Площадь: 2070.60 м2
Мощность:200 кВт
220 000 000 за все
106 249 за м2
Позвонить Подробнее