Арендный бизнес Административное «Профсоюзная 152 к2»

Арендный бизнес Административное «Профсоюзная 152 к2»
Округ: ЮЗАО
Тип: Арендный бизнес, Торговое помещение
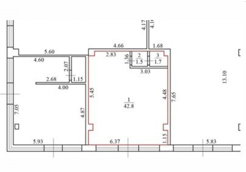
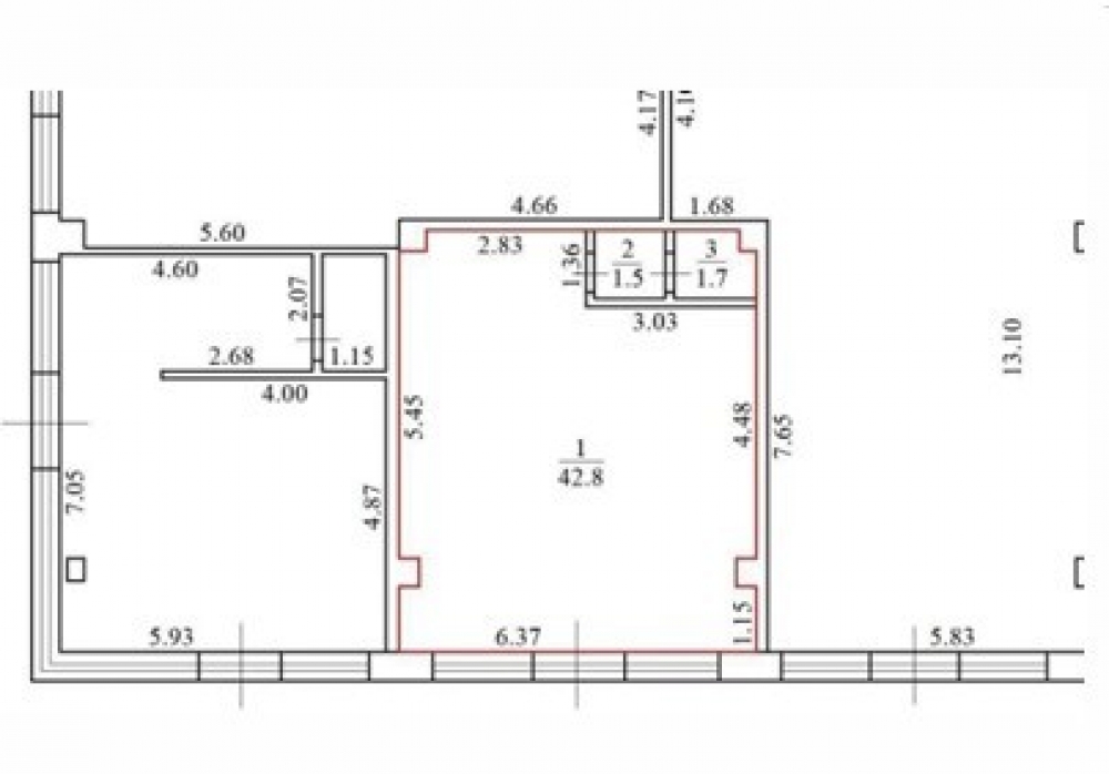
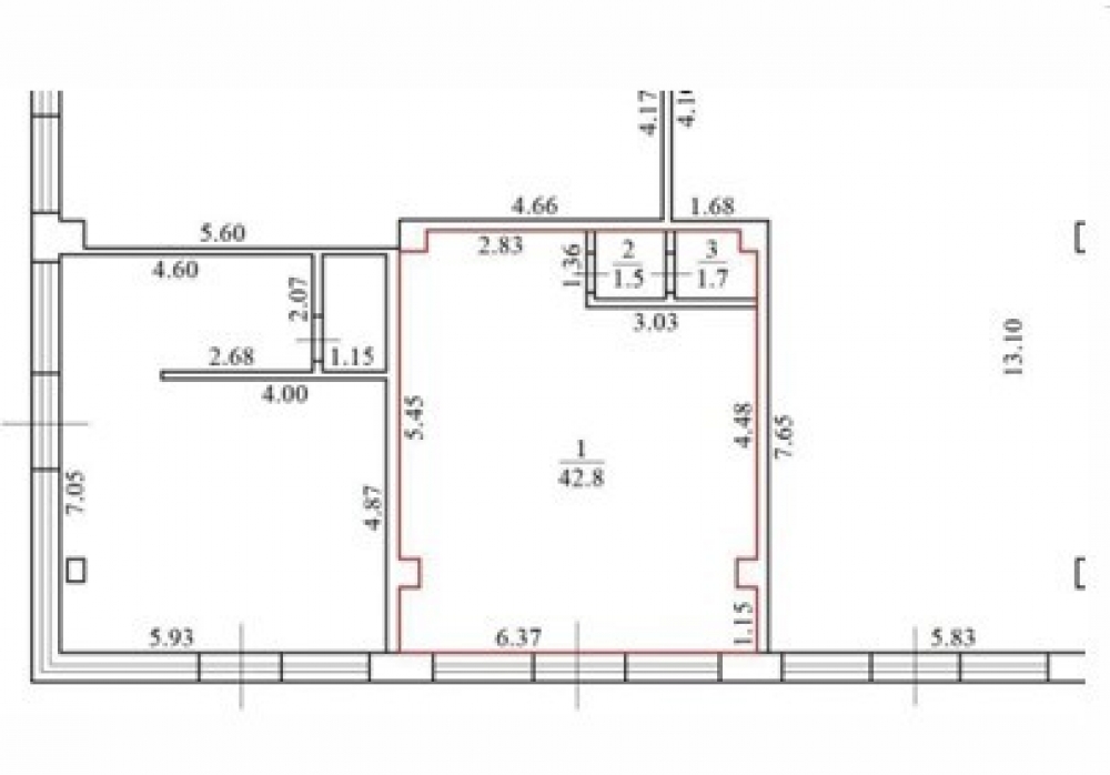
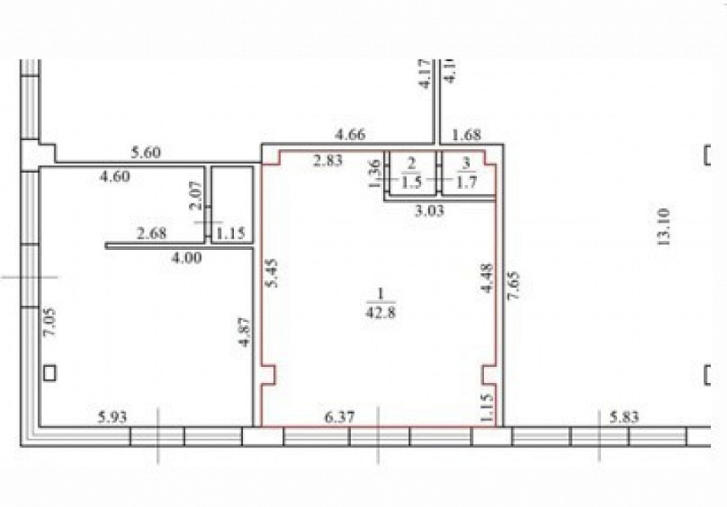
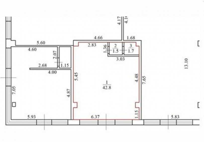
Площадь: 45.00 м2 Метро: Тёплый стан (4 мин. 🚶)
Москва, Профсоюзная улица, 152к1
Позвоните по телефону +7 495 230-28-26, либо оставьте заявку на просмотр прямо сейчас и узнайте условия специального предложения по объекту.
загрузка карты...
Капина Владлена Викторовна

Объект ведет консультант:

Капина Владлена Викторовна

Общие
ID 46965
Тип сделки Продажа
Площадь 45.00
Площадь всего 2654.00
Тип объекта Административное здание
Этаж 1
Всего этажей в здании 1
Метраж по этажам
Информация об объекте
Состояние объекта рабочее
Состояние блока отделка арендатора
Планировка Открытая
Нюансы Отдельный вход
Торговая недвижимость
Линия домов 1 линия
Возможности Зона разгрузки,Витрины,Место для рекламы,Проходное место,Проездное место
Электр. мощность (кВт) 15
Коммерческие условия
За все 42 693 000 ₽
За м 2 948 733 ₽
Тип собственника Юридическое лицо
Арендный бизнес
Окупаемость 7 Лет 7 мес.
По первому месяцу 9 Лет 6 мес.
Доходность 13.19 %
По первому месяцу 10.53 %
Ставка аренды 374 500 ₽ в мес
Арендная ставка за кв\м в год 99 867 ₽
Эксплуатация включена
Арендатор Емельянов
Индексация 7 %

Описание объекта
Hа продажу предлагается ГАБ с арендатором– сеть продуктовых магазинов «ЕМЕЛЬЯНОВ». Первая линия  домов ул. Профсоюзная. Первый этаж торгового здания,  отдельный вход, большая витрина. Помещение и здание  после ремонта, в отличном состоянии. Развитое сетевое  окружение: Почта России, Wildberries, Ароматный Мир,  СДЭК, ДоДо Пицца, Аптека Фармленд, Пятерочка, Аптека Горздрав, ЧИЖИК.

Арендная ставка: 374 500 руб. в мес.
ГАП: 4 200 000 руб.
ДА: на 11 мес. от 22.05.2024
Индексация: до 7%, безусловная

Нужна консультация по подбору арендного бизнеса?

Наши специалисты подберут для вас самые выгодные варианты для долгосрочного инвестирования,
помогут в сопровождении и сделки, проверят все юридические вопросы касаемо приобретения недвижимости.

* Нажимая на кнопку «Отправить», Вы даете согласие на обработку персональных данных в соответствии с Политикой конфиденциальности

Похожие объекты

Доходность 11.76 %

Комсомольская (5 мин. 🚶)
Москва, Новорязанская улица, 22/14
Жилое здание "Новорязанская улица, 22/14"
Тип: Арендный бизнес, Торговое помещение
Площадь: 43.00 м2
Мощность:15 кВт
Арендатор: МИЛТИ сеть магазинов готовой еды
Месячный платеж: 250 000
33 000 000 за все
767 442 за м2
Позвонить Подробнее

Доходность 9.60 %

Нахимовский проспект (5 мин. 🚶)
Москва, Одесская улица, 2кА
Бизнес-центр «Лотос»
Тип: Арендный бизнес, Офисы
Площадь: 43.00 м2
Отделка:выполнена высококачественная отделка
Арендатор: Медицинское оборудование
Месячный платеж: 320 000
40 000 000 за все
930 233 за м2
Позвонить Подробнее

Доходность 7.06 %

Новослободская (3 мин. 🚶)
Москва, Долгоруковская улица, 27с1
Долгоруковская улица, 27с1
Тип: Арендный бизнес, Торговое помещение
Площадь: 42.40 м2
Мощность:15 кВт
Арендатор: Магазин Сфера звука
Месячный платеж: 212 762
36 040 000 за все
850 000 за м2
Позвонить Подробнее

Доходность 8.11 %

Новослободская (3 мин. 🚶)
Москва, Долгоруковская улица, 27с1
Долгоруковская улица, 27с1
Тип: Арендный бизнес, Торговое помещение
Площадь: 47.50 м2
Мощность:15 кВт
Арендатор: IT-компания
Месячный платеж: 240 720
35 625 000 за все
750 000 за м2
Позвонить Подробнее

Доходность 11.32 %

Тёплый стан (20 мин. 🚗)
Москва, Новомосковский административный округ, район Коммунарка, посёлок завода Мосрентген, 24
ЖК «1-й Ясеневский»
Тип: Арендный бизнес, Торговое помещение
Площадь: 48.30 м2
Мощность:9 кВт
Арендатор: ЗдесьАптека
Месячный платеж: 230 000
29 500 000 за все
610 766 за м2
Позвонить Подробнее

Доходность 11.01 %

Мякинино (16 мин. 🚗)
Закрытая продажа #63721
Тип: Арендный бизнес, Торговое помещение
Площадь: 48.90 м2
Арендатор: аптека "Горздрав"
Месячный платеж: 294 000
39 000 000 за все
797 546 за м2
Позвонить Подробнее

Доходность 9.30 %

Бауманская (9 мин. 🚶)
Москва, Бауманская улица, 58/25с1
Особняк "Бауманская улица, 58/25с1"
Тип: Арендный бизнес, Торговое помещение
Площадь: 46.30 м2
Арендатор: Бар Настоишная
Месячный платеж: 300 000
38 500 000 за все
831 533 за м2
Позвонить Подробнее

Доходность 9.60 %

Ботанический сад (8 мин. 🚶)
Москва, Берёзовая аллея, 19к2
ЖК "Легендарный квартал"
Тип: Арендный бизнес, Торговое помещение
Площадь: 46.00 м2
Мощность:10 кВт
Арендатор: NailsUp
Месячный платеж: 120 000
20 000 000 за все
434 783 за м2
Позвонить Подробнее

Доходность 7.64 %

Деловой центр Деловой центр (МЦК) (7 мин. 🚶)
Москва, Пресненская набережная, 12
Москва-Сити «Башня Федерация»
Тип: Арендный бизнес, Торговое помещение
Площадь: 44.50 м2
Мощность:12 кВт
Арендатор: Магазин косметики
Месячный платеж: 325 740
51 000 000 за все
1 146 067 за м2
Позвонить Подробнее

Доходность 13.33 %

Деловой центр Деловой центр (МЦК) (7 мин. 🚶)
Москва, Пресненская набережная, 12
Москва-Сити «Башня Федерация»
Тип: Арендный бизнес, Торговое помещение
Площадь: 41.20 м2
Мощность:30 кВт
Арендатор: Китайский ресторан
Месячный платеж: 398 269
49 900 000 за все
1 211 165 за м2
Позвонить Подробнее

Доходность 11.54 %

Дмитровская (10 мин. 🚶)
Москва, Большая Новодмитровская улица, 23с2
Бизнес-центр «Большая Новодмитровская 23 С2»
Тип: Арендный бизнес, Офисы
Площадь: 46.00 м2
Отделка:отделка арендатора
Арендатор: Офис
Месячный платеж: 195 000
20 254 603 за все
440 317 за м2
Позвонить Подробнее

Доходность 9.38 %

Менделеевская (5 мин. 🚶)
Москва, Новослободская улица, 24Ас2
ЖК "РЕНОМЭ"
Тип: Арендный бизнес, Торговое помещение
Площадь: 42.50 м2
Мощность:8 кВт
Арендатор: Chop-chop (барбершоп
Месячный платеж: 300 000
54 400 000 за все
1 280 000 за м2
Позвонить Подробнее

Доходность 12.63 %

Бульвар Рокоссовского (10 мин. 🚗)
Москва, Открытое шоссе, 24к36
Жилое здание "Открытое шоссе, 24к36"
Тип: Арендный бизнес, Торговое помещение
Площадь: 117.30 м2
Мощность:15 кВт
Арендатор: Улыбка радуги
Месячный платеж: 350 000
42 000 000 за все
358 056 за м2
Позвонить Подробнее

Доходность 9.76 %

Смоленская (Филевская) Смоленская (Арбатско-Покровская) (10 мин. 🚶)
Москва, Малый Власьевский переулок, 14/23
Жилое здание "Малый Власьевский переулок, 14/23"
Тип: Арендный бизнес, Офисы
Площадь: 107.70 м2
Отделка:отделка арендатора
Арендатор: Фотостудия, Ателье, Пилатес
Месячный платеж: 290 000
44 803 200 за все
416 000 за м2
Позвонить Подробнее

Доходность 9.16 %

Фили (12 мин. 🚶)
Москва, Большая Филёвская улица, 6А
Жилое здание "Большая Филёвская улица, 6А"
Тип: Арендный бизнес, Торговое помещение
Площадь: 80.00 м2
Мощность:16 кВт
Арендатор: Спа-салон, фитнес студия
Месячный платеж: 250 000
42 000 000 за все
525 000 за м2
Позвонить Подробнее

Доходность 9.68 %

Тульская (10 мин. 🚶)
Москва, Варшавское шоссе, 1с1-2
Бизнес-центр W Plaza (В Плаза)
Тип: Арендный бизнес, Торговое помещение
Площадь: 230.00 м2
Мощность:70 кВт
Арендатор: Столовая
Месячный платеж: 365 000
44 900 000 за все
195 217 за м2
Позвонить Подробнее

Доходность 11.65 %

Мякинино (50 мин. 🚗)
Московская область, городской округ Красногорск, посёлок Ильинское-Усово, Заповедная улица, 20
ЖК "Ильинские Луга"
Тип: Арендный бизнес, Торговое помещение
Площадь: 127.60 м2
Мощность:25 кВт
Арендатор: РУАЙ ТАЙ, Twins Tailor
Месячный платеж: 344 520
46 500 000 за все
364 420 за м2
Позвонить Подробнее

Доходность 9.60 %

Нахимовский проспект (5 мин. 🚶)
Москва, Одесская улица, 2кА
Бизнес-центр «Лотос»
Тип: Арендный бизнес, Офисы
Площадь: 43.00 м2
Отделка:выполнена высококачественная отделка
Арендатор: Медицинское оборудование
Месячный платеж: 320 000
40 000 000 за все
930 233 за м2
Позвонить Подробнее

Доходность 11.65 %

Пражская (8 мин. 🚗)
Москва, улица Красного Маяка, 26
ЖК "Парк Сайд"
Тип: Арендный бизнес, Торговое помещение
Площадь: 77.20 м2
Мощность:15 кВт
Арендатор: Ozon, Wildberries, Яндекс Маркет
Месячный платеж: 325 000
41 900 000 за все
542 746 за м2
Позвонить Подробнее

Доходность 10.08 %

Бабушкинская (12 мин. 🚗)
Москва, Шушенская улица, 5
Жилое здание "Шушенская улица, 5"
Тип: Арендный бизнес, Торговое помещение
Площадь: 94.00 м2
Мощность:19 кВт
Арендатор: Аптека ЗдравСити, ПВЗ
Месячный платеж: 303 000
45 000 000 за все
478 723 за м2
Позвонить Подробнее

Доходность 8.70 %

Алексеевская
Москва, проспект Мира, 97
Жилое здание "проспект Мира, 97"
Тип: Арендный бизнес, Торговое помещение
Площадь: 12.80 м2
Арендатор: Табак
Месячный платеж: 300 000
41 400 000 за все
3 234 375 за м2
Позвонить Подробнее

Доходность 8.96 %

Автозаводская (8 мин. 🚶)
Москва, Велозаводская улица, 6А
Жилое здание Велозаводская, 6
Тип: Арендный бизнес, Торговое помещение
Площадь: 101.60 м2
Арендатор: ВинЛаб
Месячный платеж: 260 000
45 000 000 за все
442 913 за м2
Позвонить Подробнее

Доходность 10.81 %

Домодедовская (15 мин. 🚗)
Московская область, Ленинский городской округ, посёлок Развилка, жилой комплекс Римский
ЖК "Римский"
Тип: Арендный бизнес, Торговое помещение
Площадь: 144.40 м2
Арендатор: ВинЛаб, Табак Less
Месячный платеж: 330 000
41 500 000 за все
287 396 за м2
Позвонить Подробнее

Доходность 9.92 %

Сходненская (2 мин. 🚶)
Москва, улица Героев Панфиловцев, 1к3
Жилое здание "улица Героев Панфиловцев, 1к3"
Тип: Арендный бизнес, Торговое помещение
Площадь: 149.30 м2
Мощность:15 кВт
Арендатор: Агентство недвижимости Миэль
Месячный платеж: 373 250
45 000 000 за все
301 407 за м2
Позвонить Подробнее

Доходность 12.63 %

Тёплый стан (4 мин. 🚶)
Москва, Профсоюзная улица, 152к1
Административное «Профсоюзная 152 к2»
Тип: Арендный бизнес, Торговое помещение
Площадь: 23.30 м2
Мощность:10 кВт
Арендатор: Мостабак
Месячный платеж: 230 000
27 600 000 за все
1 184 549 за м2
Позвонить Подробнее

Доходность 11.32 %

Тёплый стан (20 мин. 🚗)
Москва, Новомосковский административный округ, район Коммунарка, посёлок завода Мосрентген, 24
ЖК «1-й Ясеневский»
Тип: Арендный бизнес, Торговое помещение
Площадь: 48.30 м2
Мощность:9 кВт
Арендатор: ЗдесьАптека
Месячный платеж: 230 000
29 500 000 за все
610 766 за м2
Позвонить Подробнее

Доходность 12.50 %

Тёплый стан (14 мин. 🚶)
Закрытая продажа #63171
Тип: Арендный бизнес, Торговое помещение
Площадь: 120.00 м2
Арендатор: Автомойка шиномонтаж
Месячный платеж: 730 000
70 000 000 за все
583 333 за м2
Позвонить Подробнее

Доходность 13.04 %

Тёплый стан (4 мин. 🚶)
Москва, Профсоюзная улица, 152к1
Административное «Профсоюзная 152 к2»
Тип: Арендный бизнес, Торговое помещение
Площадь: 85.50 м2
Мощность:60 кВт
Арендатор: бар ресторан «БАРПИВОТЕКА»
Месячный платеж: 480 000
51 840 000 за все
606 316 за м2
Позвонить Подробнее

Доходность 9.52 %

Тёплый стан ( мин. 🚗)
Москва, улица Генерала Тюленева, 4Ас1
ОСЗ "улица Генерала Тюленева, 4Ас1"
Тип: Арендный бизнес, Торговое помещение
Площадь: 1594.40 м2
Мощность:150 кВт
Арендатор: Множество разных
Месячный платеж: 2 550 000
318 800 000 за все
199 950 за м2
Позвонить Подробнее

Доходность 10.26 %

Тёплый стан (4 мин. 🚶)
Закрытая продажа #61015
Тип: Арендный бизнес, Торговое помещение
Площадь: 2135.00 м2
Мощность:60 кВт
Арендатор: Производственная компания
Месячный платеж: 2 360 000
341 600 000 за все
160 000 за м2
Позвонить Подробнее

Доходность 14.63 %

Тёплый стан (4 мин. 🚶)
Москва, Новоясеневский проспект, 1Вс1
МФК "Новоясеневский проспект, 1Вс1"
Тип: Арендный бизнес, Торговое помещение
Площадь: 740.00 м2
Мощность:30 кВт
Арендатор: Автозапчасти
Месячный платеж: 870 000
87 400 000 за все
118 108 за м2
Позвонить Подробнее

Доходность 11.65 %

Тёплый стан (4 мин. 🚶)
Закрытая продажа #61031
Тип: Арендный бизнес, Торговое помещение
Площадь: 2375.90 м2
Мощность:60 кВт
Арендатор: Спортивная организация
Месячный платеж: 3 350 000
450 000 000 за все
189 402 за м2
Позвонить Подробнее