Арендный бизнес Бизнес-центр «Виктория Плаза»

Объект успешно реализован!
Арендный бизнес Бизнес-центр «Виктория Плаза» Арендный бизнес Бизнес-центр «Виктория Плаза»
Арендный бизнес Бизнес-центр «Виктория Плаза» - превью Арендный бизнес Бизнес-центр «Виктория Плаза» - превью
Округ: ЦАО
Тип: Арендный бизнес, Торговое помещение
Площадь: 61.00 м2 Метро: Бауманская (5 мин. 🚶)
Москва, Бауманская улица, 6с2
Объект успешно реализован, но у нас есть много других интересных предложений. Позвоните по телефону +7 495 230-28-26, либо оставьте заявку на подбор прямо сейчас и получите список подходящих для вас объектов.
загрузка карты...
Федотов Владислав Александрович

Объект ведет консультант:

Федотов Владислав Александрович

Общие
ID 57039
Тип сделки Продажа
Площадь 61.00
Площадь всего 27000.00
Тип объекта Бизнес-центр
Класс здания B
Этаж 1
Всего этажей в здании 9
Метраж по этажам
Информация об объекте
Состояние объекта рабочее
Состояние блока отделка арендатора
Планировка Смешанная
Коммуникации Система пожаротушения,Система видеонаблюдения,Интернет,Телефония
Лифт пассажирский 5
КПП Гостевой пропуск
Торговая недвижимость
Линия домов 1 линия
Возможности Витрины,Место для рекламы,Проходное место,Проездное место
Электр. мощность (кВт) 37
Коммерческие условия
За все 40 000 000 ₽
За м 2 655 738 ₽
Тип собственника Физическое лицо
Арендный бизнес
Окупаемость 5 Лет 8 мес.
По первому месяцу 7 Лет 2 мес.
Доходность 17.65 %
По первому месяцу 13.95 %
Ставка аренды 467 000 ₽ в мес
Арендная ставка за кв\м в год 91 869 ₽
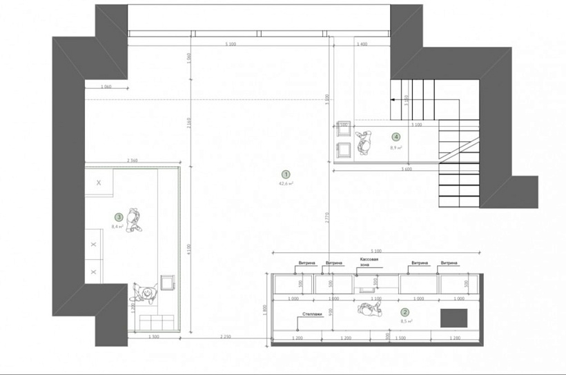
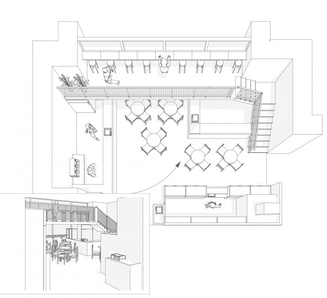
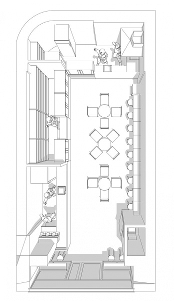
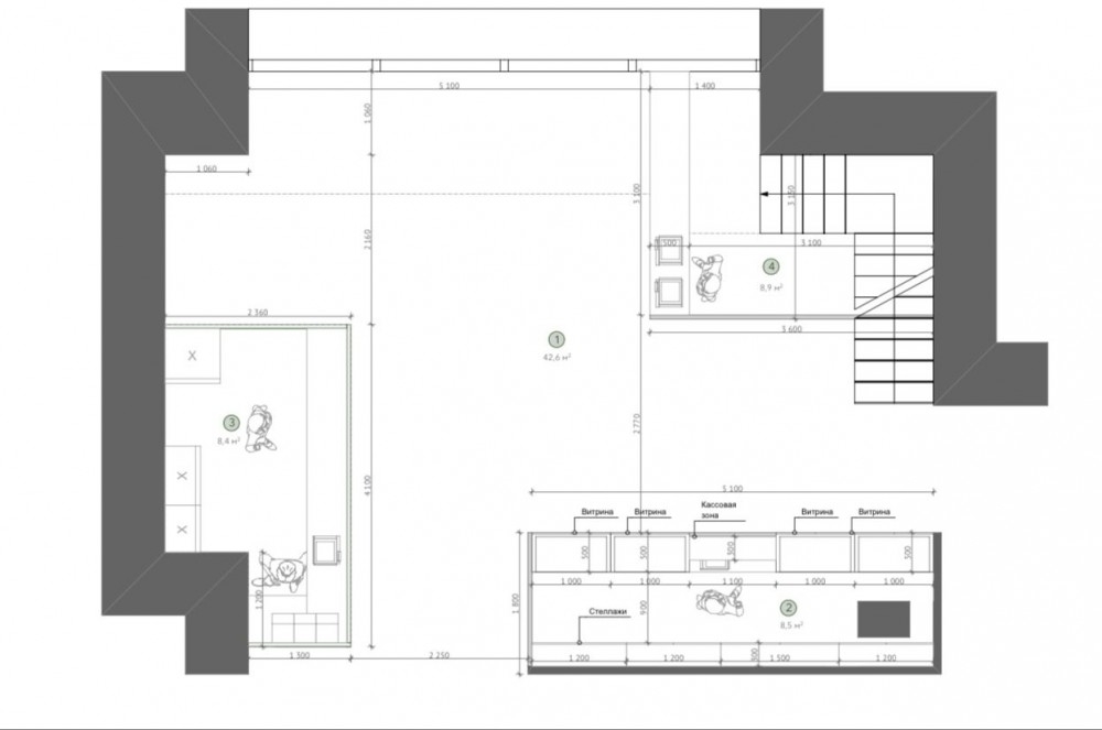
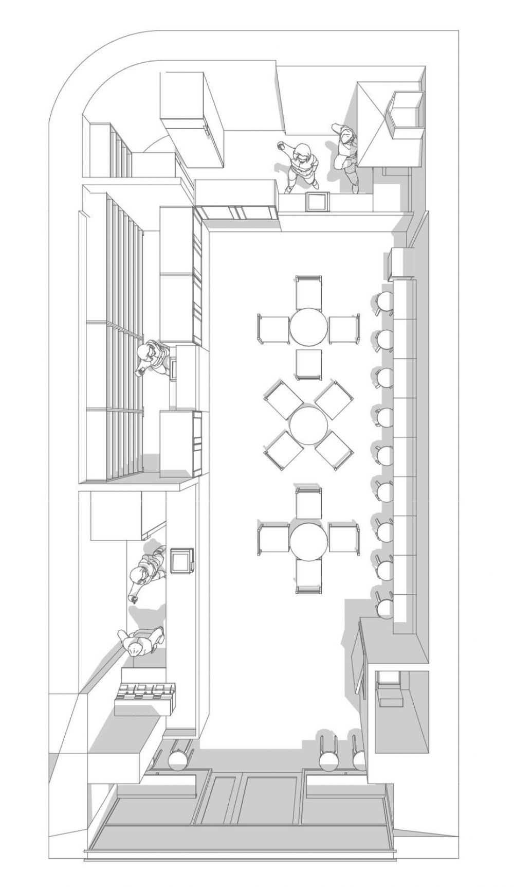
Арендатор Табак, донер кафе, Кофейня, пaвильон "Правильноe питaние"
Индексация 10 %

Описание объекта
ГАБ — готовый арендный бизнес с отличной окупаемостью

Объект находится прямо у входа в крупный бизнес-центр «Виктория Плаза».
Исключительно сетевые арендаторы.
Арендаторы сидят 3-й год!
Сетевая кофейня «Дайте Два»
Сетевой постамат «Яндекс»
Сетевой общепит быстрого питания «СВШ»
Сетевой прилавок правильного питания «Фреш Го»

МАП: 467 000р.
ГАП: 5 604 000р.
Расположен в одном из самых лучших и активных районов Москвы. Бауманка известна своей деловой активностью и обилием модной, креативной молодежи!

Суперактивный офисный трафик и зимой и летом.

Мощная генерация трафика за счёт сетевых арендаторов и удачного расположения в бизнес-центре (вход до турникетов).

Помещение находится в пешей доступности от м. Бауманская.

Идеальная видимость помещения.
Мощный рекламный потенциал за счёт панорамных окон.
Установлена электронная система дистанционного управления арендным бизнесом.
Парковка рядом с помещением.
40 посадочных мест в помещении.
Дизайнерский ремонт с полной заменой всех коммуникаций.
Видеонаблюдение с непрерывной записью.
Две мокрые точки

Наша оценка
Локация
Цена
Техническое оснащение
Состояние
Метраж
Общая оценка 5

Нужна консультация по подбору арендного бизнеса?

Наши специалисты подберут для вас самые выгодные варианты для долгосрочного инвестирования,
помогут в сопровождении и сделки, проверят все юридические вопросы касаемо приобретения недвижимости.

* Нажимая на кнопку «Отправить», Вы даете согласие на обработку персональных данных в соответствии с Политикой конфиденциальности

Похожие объекты

Доходность 9.84 %

Электрозаводская (12 мин. 🚶)
Москва, Переведеновский переулок, 13с18
МФК Центр Союз
Тип: Арендный бизнес, Офисы
Площадь: 64.80 м2
Отделка:отделка арендатора
Арендатор: Видеопродакшн
Месячный платеж: 200 230
24 300 000 за все
375 000 за м2
Позвонить Подробнее

Доходность 12.12 %

ЗИЛ (15 мин. 🚶)
Москва, Автозаводская улица, 23Ак2
БЦ "Парк Легенд"
Тип: Арендный бизнес, Офисы
Площадь: 61.00 м2
Отделка:выполнена стандартная офисная отделка
Арендатор: Строительная компания
Месячный платеж: 180 000
22 000 000 за все
360 656 за м2
Позвонить Подробнее

Доходность 10.62 %

(20 мин. 🚗)
Москва, район Троицк, 3-я Нововатутинская улица, 15к1
ЖК "Новые Ватутинки" 15к1
Тип: Арендный бизнес, Торговое помещение
Площадь: 64.00 м2
Арендатор: Аптека ЗдравСити
Месячный платеж: 200 000
28 000 000 за все
437 500 за м2
Позвонить Подробнее

Доходность 12.77 %

Саларьево (9 мин. 🚶)
Москва, Новомосковский административный округ, район Коммунарка, квартал № 70
ЖК "1-й Саларьевский»
Тип: Арендный бизнес, Торговое помещение
Площадь: 67.00 м2
Арендатор: здесь аптека
Месячный платеж: 350 000
39 000 000 за все
582 090 за м2
Позвонить Подробнее

Доходность 11.11 %


Московская область, Мытищи, Пионерская улица, 10
ЖК "Мытищи сити"
Тип: Арендный бизнес, Торговое помещение
Площадь: 60.00 м2
Арендатор: Планета Здоровья
Месячный платеж: 250 000
33 000 000 за все
550 000 за м2
Позвонить Подробнее

Спец. предложение

Доходность 13.04 %

Павелецкая (13 мин. 🚶)
Москва, Летниковская улица, 2с2
ЖК "Voxhall (ВоксХолл)"
Тип: Арендный бизнес, Торговое помещение
Площадь: 62.10 м2
Мощность:25 кВт
Арендатор: Кафе
Месячный платеж: 600 000
69 700 000 за все
1 122 383 за м2
Позвонить Подробнее

Доходность 9.76 %

Домодедовская (20 мин. 🚗)
Московская область, городской округ Домодедово, село Домодедово, Высотная улица, 9
ЖК "Домодедово парк"
Тип: Арендный бизнес, Торговое помещение
Площадь: 62.00 м2
Мощность:15 кВт
Арендатор: Множество разных
Месячный платеж: 180 000
22 000 000 за все
354 839 за м2
Позвонить Подробнее

Доходность 12.37 %

Царицыно (22 мин. 🚗)
Московская область, Ленинский городской округ, деревня Сапроново, Донская улица, 7
ЖК "1-й Донской"
Тип: Арендный бизнес, Торговое помещение
Площадь: 55.30 м2
Мощность:11 кВт
Арендатор: ПВЗ Озон, Вайлдберриз
Месячный платеж: 200 000
24 000 000 за все
433 996 за м2
Позвонить Подробнее

Доходность 10.00 %

Электрозаводская (12 мин. 🚶)
Москва, Переведеновский переулок, 13с18
МФК Центр Союз
Тип: Арендный бизнес, Офисы
Площадь: 56.70 м2
Отделка:отделка арендатора
Арендатор: Фотостудия
Месячный платеж: 173 000
20 695 500 за все
365 000 за м2
Позвонить Подробнее

Доходность 9.02 %

Партизанская (8 мин. 🚶)
Москва, Окружной проезд, 16
Окружной проезд, 16
Тип: Арендный бизнес, Торговое помещение
Площадь: 66.30 м2
Арендатор: Салон красоты
Месячный платеж: 348 100
46 200 000 за все
696 833 за м2
Позвонить Подробнее

Доходность 9.38 %

Домодедовская (20 мин. 🚗)
Московская область, городской округ Домодедово, село Домодедово, Высотная улица, 9
ЖК "Домодедово парк"
Тип: Арендный бизнес, Торговое помещение
Площадь: 67.00 м2
Мощность:10 кВт
Арендатор: Множество разных
Месячный платеж: 180 900
23 000 000 за все
343 284 за м2
Позвонить Подробнее

Доходность 9.60 %

Ховрино (21 мин. 🚗)
Закрытая продажа #58756
Тип: Арендный бизнес, Торговое помещение
Площадь: 56.00 м2
Мощность:11 кВт
Арендатор: Строительные материалы, Буханка
Месячный платеж: 190 000
30 000 000 за все
535 714 за м2
Позвонить Подробнее

Доходность 13.48 %

Отрадное (1 мин. 🚶)
Москва, улица Декабристов, 21Г
ТЦ "ул. Декабристов, д. 21Г"
Тип: Арендный бизнес, Торговое помещение
Площадь: 30.00 м2
Арендатор: кафе «Хочу шаурму»
Месячный платеж: 450 000
40 000 000 за все
1 333 333 за м2
Позвонить Подробнее

Доходность 11.76 %

Войковская (16 мин. 🚗)
Москва, Улица Космонавта Волкова, 6А
Офисное здание «Космонавта Волкова 6а»
Тип: Арендный бизнес, Торговое помещение
Площадь: 137.00 м2
Мощность:25 кВт
Арендатор: Яндекс.Лавка
Месячный платеж: 313 032
41 320 257 за все
301 608 за м2
Позвонить Подробнее

Доходность 11.76 %

Пражская (6 мин. 🚗)
Москва, улица Красного Маяка, 26А
ЖК "Парксайд"
Тип: Арендный бизнес, Торговое помещение
Площадь: 77.20 м2
Мощность:15 кВт
Арендатор: ПВЗ Озон, Вайлдберриз
Месячный платеж: 325 000
41 500 000 за все
537 565 за м2
Позвонить Подробнее

Доходность 11.54 %

Щёлковская (30 мин. 🚗)
Московская область, Щёлково, Чкаловская улица, 1
Жилой дом
Тип: Арендный бизнес, Торговое помещение
Площадь: 186.60 м2
Мощность:40 кВт
Арендатор: Улыбка радуги
Месячный платеж: 320 000
40 000 000 за все
214 362 за м2
Позвонить Подробнее

Доходность 9.02 %

Рассказовка (10 мин. 🚶)
Москва, поселение Внуковское, улица Корнея Чуковского, 3
ЖК "Переделкино Ближнее"
Тип: Арендный бизнес, Торговое помещение
Площадь: 76.50 м2
Мощность:17 кВт
Арендатор: салон "777"
Месячный платеж: 280 000
37 000 000 за все
483 660 за м2
Позвонить Подробнее

Доходность 10.08 %

Новокузнецкая (5 мин. 🚶)
Москва, Новокузнецкая улица, 30с1
Жилой Дом на Новокузнецкой улице
Тип: Арендный бизнес, Торговое помещение
Площадь: 75.00 м2
Мощность:25 кВт
Арендатор: ПВЗ Озон, Вайлдберриз
Месячный платеж: 263 000
39 000 000 за все
520 000 за м2
Позвонить Подробнее

Доходность 11.21 %

Бунинская аллея (26 мин. 🚗)
Москва, Новомосковский административный округ, район Щербинка, квартал № 103, жилой комплекс Подольские Кварталы, к2
ЖК "Подольские Кварталы" к2
Тип: Арендный бизнес, Торговое помещение
Площадь: 130.70 м2
Мощность:24 кВт
Арендатор: ВинЛаб, Табак Less
Месячный платеж: 330 000
39 600 000 за все
302 984 за м2
Позвонить Подробнее

Доходность 10.53 %

Саларьево (21 мин. 🚗)
Москва, Новомосковский административный округ, Филимонковский район, жилой комплекс Квартал Марьино, к2
ЖК "Середневский Лес и Квартал Марьино"
Тип: Арендный бизнес, Торговое помещение
Площадь: 122.50 м2
Мощность:25 кВт
Арендатор: ВинЛаб
Месячный платеж: 320 000
41 300 000 за все
337 143 за м2
Позвонить Подробнее

Доходность 12.50 %

Таганская (3 мин. 🚶)
Москва, Гончарная набережная, 3с5
Жилой дом Гончарная набережная д. 3 стр. 5
Тип: Арендный бизнес, Торговое помещение
Площадь: 76.70 м2
Арендатор: Офис
Месячный платеж: 300 000
41 000 000 за все
534 550 за м2
Позвонить Подробнее

Доходность 10.00 %

Домодедовская (15 мин. 🚗)
Московская область, Ленинский городской округ, посёлок Развилка, жилой комплекс Римский
ЖК "Римский"
Тип: Арендный бизнес, Торговое помещение
Площадь: 144.40 м2
Арендатор: ВинЛаб
Месячный платеж: 330 000
39 600 000 за все
274 238 за м2
Позвонить Подробнее

Доходность 12.50 %

Деловой центр Деловой центр (МЦК) (7 мин. 🚶)
Москва, Пресненская набережная, 12
Москва-Сити «Башня Федерация»
Тип: Арендный бизнес, Торговое помещение
Площадь: 30.10 м2
Мощность:30 кВт
Арендатор: кофейня Varka
Месячный платеж: 286 432
39 000 000 за все
1 295 681 за м2
Позвонить Подробнее

Доходность 0.77 %

Деловой центр Деловой центр (МЦК) (7 мин. 🚶)
Москва, Пресненская набережная, 12
Москва-Сити «Башня Федерация»
Тип: Арендный бизнес, Торговое помещение
Площадь: 33.90 м2
Мощность:50 кВт
Арендатор: Кафе Это Хлеб
Месячный платеж: 306
41 900 000 за все
1 235 988 за м2
Позвонить Подробнее

Доходность 12.63 %

Бауманская (10 мин. 🚶)
Москва, улица Фридриха Энгельса, 25с3
Фридриха Энгельса, 25с3
Тип: Арендный бизнес, Торговое помещение
Площадь: 42.00 м2
Мощность:15 кВт
Арендатор: Салон красоты
Месячный платеж: 250 000
30 000 000 за все
714 286 за м2
Позвонить Подробнее

Доходность 12.24 %

Бауманская (5 мин. 🚶)
Москва, Бауманская улица, 7с1
Бизнес-центр «Central Yard»
Тип: Арендный бизнес, Торговое помещение
Площадь: 106.90 м2
Арендатор: Всё и вкусно
Месячный платеж: 450 000
63 000 000 за все
589 336 за м2
Позвонить Подробнее

Доходность 16.44 %

Бауманская (2 мин. 🚶)
Москва, Бакунинская улица, 4-6с2
Жилой дом "Бакунинкская 4-5с2"
Тип: Арендный бизнес, Торговое помещение
Площадь: 131.00 м2
Арендатор: Салоны красоты Nurisha и Gr cosmo
Месячный платеж: 283 000
26 500 000 за все
202 290 за м2
Позвонить Подробнее

Доходность 9.09 %

Бауманская (3 мин. 🚶)
Москва, Бауманская улица, 44с1
Офисное здание «Бауманская 44»
Тип: Арендный бизнес, Торговое помещение
Площадь: 170.00 м2
Мощность:120 кВт
Арендатор: Стейк & Бургер Мираторг
Месячный платеж: 735 000
125 000 000 за все
735 294 за м2
Позвонить Подробнее

Доходность 16.44 %

Бауманская (7 мин. 🚶)
Закрытая продажа #38047
Тип: Арендный бизнес, Торговое помещение
Площадь: 1128.00 м2
Мощность:90 кВт
Арендатор: Азбука Вкуса
Месячный платеж: 4 950 000
360 000 000 за все
319 149 за м2
Позвонить Подробнее