Арендный бизнес ЖК "Крылья"

Арендный бизнес ЖК Арендный бизнес ЖК
Арендный бизнес ЖК Арендный бизнес ЖК
Москва, улица Лобачевского, 120
Позвоните по телефону +7 495 230-28-26, либо оставьте заявку на просмотр прямо сейчас и узнайте условия специального предложения по объекту.
загрузка карты...
Федотов Владислав Александрович

Объект ведет консультант:

Федотов Владислав Александрович

Общие
ID 57161
Тип сделки Продажа
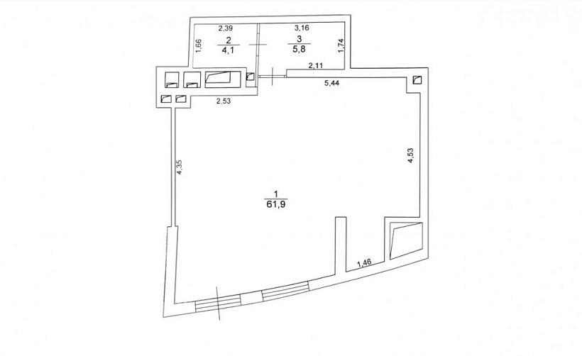
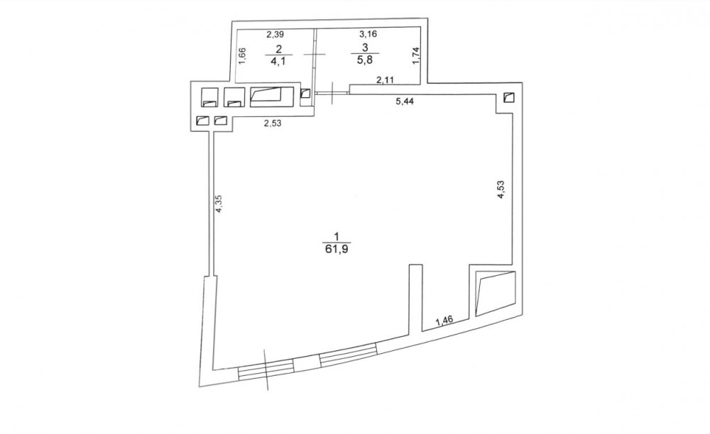
Площадь 71.80
Площадь всего 10000.00
Тип объекта Жилое здание
Этаж 1
Всего этажей в здании 20
Метраж по этажам
Информация об объекте
Состояние объекта рабочее
Состояние блока отделка арендатора
Планировка Открытая
Нюансы Отдельный вход
Торговая недвижимость
Линия домов 1 линия
Возможности Зона разгрузки,Витрины,Место для рекламы,Проходное место,Проездное место
Электр. мощность (кВт) 17
Коммерческие условия
За все 50 000 000 ₽
За м 2 696 379 ₽
Арендный бизнес
Окупаемость 10 Лет 10 мес.
По первому месяцу 13 Лет 11 мес.
Доходность 9.23 %
По первому месяцу 7.19 %
Ставка аренды 300 000 ₽ в мес
Арендная ставка за кв\м в год 50 139 ₽
Арендатор Красное и белое
Срок договора 10 Лет
Индексация 5 %

Описание объекта
Предлагается в продажу готовый арендный бизнес на 1-й линии домов в районе Раменки, в ЖК
«Крылья» 1756 квартир, в пешей достпуности ЖК «Огни» 872 квартиры,
ЖК «Событие» 1 очередь 1040 квартиры. Окружение — супермаркет
«Пятерочка», рыбный магазин, бургерная, пункты выдачи, магазин
цветов, салоны красоты. Рядом остановка общественного транспорта и
железнодорожная станция, за 5 минут можно пешком дойти до станции
метро «Аминьевская». БОЛЬШОЙ ПОТЕНЦИАЛ в развитии дорог

Объект с открытой планировкой площадью 71,2 м² расположен на
первом этаже в жилом комплексе бизнес-класса «Крылья». Арендатор —
алкомаркет «Красное&Белое», ТОП 3 крупнеших сетевых ритейлеров
РФ. Современные инженерные коммуникации. Отдельный вход с
улицы, витринное остекление, предусмотрена возможность
размещения рекламы на фасаде здания.

МАП 300 000, ДДА на 10 лет от 11.2022 года

Наша оценка
Локация
Цена
Техническое оснащение
Состояние
Метраж
Общая оценка 5

Нужна консультация по подбору арендного бизнеса?

Наши специалисты подберут для вас самые выгодные варианты для долгосрочного инвестирования,
помогут в сопровождении и сделки, проверят все юридические вопросы касаемо приобретения недвижимости.

* Нажимая на кнопку «Отправить», Вы даете согласие на обработку персональных данных в соответствии с Политикой конфиденциальности

Похожие объекты

Спец. предложение

Доходность 12.63 %

Верхние Котлы (2 мин. 🚶)
Москва, Варшавское шоссе, 18к2
Жилое здание "Варшавское шоссе, 18к2"
Тип: Арендный бизнес, Торговое помещение
Площадь: 77.30 м2
Арендатор: Красное и белое
Месячный платеж: 250 000
28 000 000 за все
362 225 за м2
Позвонить Подробнее

Доходность 12.63 %

Марьина Роща (3 мин. 🚶)
Москва, улица Сущёвский Вал, 53
Административный Центр на 1й линии ТТК
Тип: Арендный бизнес, Торговое помещение
Площадь: 70.50 м2
Мощность:80 кВт
Арендатор: Ресторан Бобби-Кю
Месячный платеж: 720 000
86 400 000 за все
1 225 532 за м2
Позвонить Подробнее

Доходность 11.76 %

Пражская (6 мин. 🚗)
Москва, улица Красного Маяка, 26А
ЖК "Парксайд"
Тип: Арендный бизнес, Торговое помещение
Площадь: 77.20 м2
Мощность:15 кВт
Арендатор: ПВЗ Озон, Вайлдберриз
Месячный платеж: 325 000
41 500 000 за все
537 565 за м2
Позвонить Подробнее

Доходность 7.69 %

Тверская (8 мин. 🚶)
Москва, Богословский переулок, 16/6с1
Жилое здание "Богословский пер. 16/6с1"
Тип: Арендный бизнес, Торговое помещение
Площадь: 76.30 м2
Арендатор: магазин обуви Basarab
Месячный платеж: 1 150 000
179 400 000 за все
2 351 245 за м2
Позвонить Подробнее

Доходность 10.53 %

Кунцевская (25 мин. 🚗)
Московская область, Одинцовский городской округ, Звенигород, район Восточный, 3-й микрорайон, 17
ЖК "Восточный"
Тип: Арендный бизнес, Торговое помещение
Площадь: 69.10 м2
Мощность:15 кВт
Арендатор: Аптека ЗдравСити
Месячный платеж: 160 000
22 500 000 за все
325 615 за м2
Позвонить Подробнее

Доходность 7.50 %

Аэропорт (5 мин. 🚶)
Москва, Ленинградский проспект, 47
Административное здание AIR Space
Тип: Арендный бизнес, Торговое помещение
Площадь: 69.90 м2
Арендатор: Бар Тройка
Месячный платеж: 437 500
70 000 000 за все
1 001 431 за м2
Позвонить Подробнее

Доходность 7.64 %

Лубянка
Москва, Никольская улица, 25
ТЦ «Наутилус»
Тип: Арендный бизнес, Торговое помещение
Площадь: 67.50 м2
Арендатор: One Price Coffee
Месячный платеж: 1 752 320
273 362 000 за все
4 049 807 за м2
Позвонить Подробнее

Доходность 7.14 %

Полянка (5 мин. 🚶)
Москва, улица Большая Полянка, 9
ЖК «Cloud Nine»
Тип: Арендный бизнес, Торговое помещение
Площадь: 72.80 м2
Мощность:15 кВт
Арендатор: Красное и белое
Месячный платеж: 360 000
84 000 000 за все
1 153 846 за м2
Позвонить Подробнее

Доходность 12.77 %

Электрозаводская (12 мин. 🚶)
Москва, Переведеновский переулок, 13с18
МФК Центр Союз
Тип: Арендный бизнес, Офисы
Площадь: 71.70 м2
Отделка:отделка арендатора
Арендатор: Видеопродакшн
Месячный платеж: 274 683
25 812 000 за все
360 000 за м2
Позвонить Подробнее

Доходность 11.76 %

Электрозаводская (12 мин. 🚶)
Москва, Переведеновский переулок, 13с18
МФК Центр Союз
Тип: Арендный бизнес, Офисы
Площадь: 72.40 м2
Отделка:отделка арендатора
Арендатор: Рекламная компания
Месячный платеж: 255 572
26 064 000 за все
360 000 за м2
Позвонить Подробнее

Доходность 10.26 %

Электрозаводская (12 мин. 🚶)
Москва, Переведеновский переулок, 13с18
МФК Центр Союз
Тип: Арендный бизнес, Офисы
Площадь: 69.70 м2
Отделка:отделка арендатора
Арендатор: Цветочная компания
Месячный платеж: 225 031
26 137 000 за все
374 993 за м2
Позвонить Подробнее

Доходность 9.84 %

Электрозаводская (12 мин. 🚶)
Москва, Переведеновский переулок, 13с18
МФК Центр Союз
Тип: Арендный бизнес, Офисы
Площадь: 64.80 м2
Отделка:отделка арендатора
Арендатор: Видеопродакшн
Месячный платеж: 200 230
24 300 000 за все
375 000 за м2
Позвонить Подробнее

Спец. предложение

Доходность 10.71 %

Волоколамская (19 мин. 🚗)
Московская область, Красногорск, Ильинское шоссе, 4
Жилое здание "Красногорск, Ильинское шоссе, 4"
Тип: Арендный бизнес, Торговое помещение
Площадь: 309.00 м2
Арендатор: Пятёрочка
Месячный платеж: 400 000
55 000 000 за все
177 994 за м2
Позвонить Подробнее

Спец. предложение

Доходность 12.90 %

Белорусская (8 мин. 🚶)
Москва, 2-я Тверская-Ямская улица, 54
Жилое здание "2-я Тверская-Ямская улица, 54"
Тип: Арендный бизнес, Торговое помещение
Площадь: 220.00 м2
Мощность:15 кВт
Арендатор: Множество разных
Месячный платеж: 540 000
49 990 000 за все
227 227 за м2
Позвонить Подробнее

Доходность 10.43 %

Белокаменная (20 мин. 🚶)
Москва, Погонный проезд, 3А
ЖК «Лосиный Остров»
Тип: Арендный бизнес, Торговое помещение
Площадь: 215.90 м2
Арендатор: Детский сад
Месячный платеж: 410 000
47 000 000 за все
217 693 за м2
Позвонить Подробнее
Филёвский парк (3 мин. 🚶)
Москва, улица Олеко Дундича, 27
Жилой дом "Олеко Дундича 27"
Тип: Арендный бизнес, Торговое помещение
Площадь: 130.00 м2
Мощность:60 кВт
Арендатор: -
Месячный платеж: 0
48 000 000 за все
369 231 за м2
Позвонить Подробнее

Доходность 10.91 %

(15 мин. 🚗)
Москва, район Троицк, Мостовая улица, 5к1
ЖК "Деснаречье"
Тип: Арендный бизнес, Торговое помещение
Площадь: 124.50 м2
Арендатор: Магнит
Месячный платеж: 350 000
45 000 000 за все
361 446 за м2
Позвонить Подробнее

Доходность 9.30 %

Краснопресненская (4 мин. 🚶)
Москва, Дружинниковская улица, 11А
Жилое здание "Дружинниковская 11А"
Тип: Арендный бизнес, Торговое помещение
Площадь: 85.10 м2
Арендатор: Стоматология
Месячный платеж: 390 000
50 000 000 за все
587 544 за м2
Позвонить Подробнее

Доходность 9.45 %

Авиамоторная (8 мин. 🚶)
Москва, Авиамоторная улица, 51
Жилое здание "Авиамоторная улица, 51"
Тип: Арендный бизнес, Торговое помещение
Площадь: 206.00 м2
Арендатор: Ароматный мир
Месячный платеж: 363 000
45 800 000 за все
222 330 за м2
Позвонить Подробнее

Доходность 13.19 %

Деловой центр Деловой центр (МЦК) (7 мин. 🚶)
Москва, Пресненская набережная, 12
Москва-Сити «Башня Федерация»
Тип: Арендный бизнес, Торговое помещение
Площадь: 41.20 м2
Мощность:30 кВт
Арендатор: Китайский ресторан
Месячный платеж: 391 740
49 900 000 за все
1 211 165 за м2
Позвонить Подробнее

Доходность 9.30 %

(7 мин. 🚗)
Москва, Гродненская улица, 9
Жилое здание "Гродненская улица, 9"
Тип: Арендный бизнес, Торговое помещение
Площадь: 125.60 м2
Арендатор: Вайлдберриз
Месячный платеж: 350 000
45 000 000 за все
358 280 за м2
Позвонить Подробнее

Доходность 14.46 %

Аэропорт (5 мин. 🚶)
Москва, Ленинградский проспект, 47
Административное здание AIR Space
Тип: Арендный бизнес, Торговое помещение
Площадь: 209.10 м2
Мощность:42 кВт
Арендатор: Компьютерный клуб
Месячный платеж: 443 911
49 000 000 за все
234 338 за м2
Позвонить Подробнее

Доходность 8.70 %

Планерная (5 мин. 🚶)
Москва, Планерная улица, 12к1
Жилое здание "Планерная 12к1"
Тип: Арендный бизнес, Торговое помещение
Площадь: 20.80 м2
Арендатор: Теле2
Месячный платеж: 350 000
48 300 000 за все
2 322 115 за м2
Позвонить Подробнее

Доходность 17.91 %

Озёрная (15 мин. 🚶)
Москва, Большая Очаковская улица, 23/8
Жилой дом "Большая Очаковская 23/8"
Тип: Арендный бизнес, Торговое помещение
Площадь: 390.00 м2
Мощность:20 кВт
Арендатор: кладовкин
Месячный платеж: 500 000
46 900 000 за все
120 256 за м2
Позвонить Подробнее