Арендный бизнес Жилое здание «Большая Переяславская 10»

Арендный бизнес Жилое здание «Большая Переяславская 10» Арендный бизнес Жилое здание «Большая Переяславская 10» Арендный бизнес Жилое здание «Большая Переяславская 10»
Арендный бизнес Жилое здание «Большая Переяславская 10» - превью Арендный бизнес Жилое здание «Большая Переяславская 10» - превью Арендный бизнес Жилое здание «Большая Переяславская 10» - превью
Округ: ЦАО
Тип: Арендный бизнес, Торговое помещение
Площадь: 2661.00 м2 Метро: Проспект Мира (10 мин. 🚶)
Москва, Большая Переяславская улица, 10
Позвоните по телефону +7 495 230-28-26, либо оставьте заявку на просмотр прямо сейчас и узнайте условия специального предложения по объекту.
загрузка карты...
Первушина Марина Алексеевна

Объект ведет консультант:

Первушина Марина Алексеевна

Общие
ID 62777
Тип сделки Продажа
Площадь 2661.00
Площадь всего 12028.00
Тип объекта Жилое здание
Класс здания B
Этаж -1 - 1
Всего этажей в здании 9
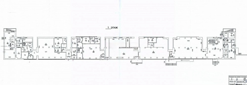
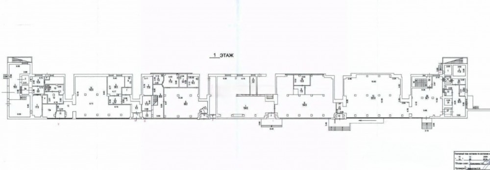
Метраж по этажам
Информация об объекте
Состояние блока отделка арендатора
Планировка Смешанная
Коммуникации Система видеонаблюдения,Интернет,Телефония
Парковка городская
КПП Гостевой пропуск
Нюансы Отдельный вход,ПСН
Торговая недвижимость
Линия домов 1 линия
Возможности Зона разгрузки,Витрины,Проходное место,Проездное место
Электр. мощность (кВт) 193
Коммерческие условия
За все 399 000 000 ₽
За м 2 149 944 ₽
Тип собственника Физическое лицо
Арендный бизнес
Окупаемость 9 Лет 6 мес.
По первому месяцу 9 Лет 6 мес.
Доходность 10.53 %
По первому месяцу 10.53 %
Ставка аренды 3 500 000 ₽ в мес
Арендная ставка за кв\м в год 15 784 ₽
Эксплуатация включена
Арендатор Пятёрочка, ПВЗ Озон, Цветы, Стоматология, Салон красоты, Студия танцев, Мебельный магазин, Квест, Пиццерия
Срок договора 10 Лет

Описание объекта
Предлагаем к покупке арендный бизнес в ЦАО. Первая линия Большой Переяславской улицы, вечерняя сторона, большой пешеходный и автомобильный трафик. До м.Проспект Мира 7-8 минут пешком.
Помещение 2661,8м2 расположено на первом и подвальном этажах жилого дома.
Якорные арендаторы - супермаркет "Пятерочка", магазин мебели "Диван.ру", квест "Клаустрофбия", студия танцев "Stage Art", пиццерия "Пицца Харт", магазин красок "Valkor". А также: строймаг, стоматология, цветы, пвз озон, салон красоты, тату-салон.
Общий МАП 3,4млн. К/у оплачиваются арендаторами отдельно.
В доме недавно был проведен капитальный ремонт.
Прямые договора, э/э 193,6квт.

Нужна консультация по подбору арендного бизнеса?

Наши специалисты подберут для вас самые выгодные варианты для долгосрочного инвестирования,
помогут в сопровождении и сделки, проверят все юридические вопросы касаемо приобретения недвижимости.

* Нажимая на кнопку «Отправить», Вы даете согласие на обработку персональных данных в соответствии с Политикой конфиденциальности

Похожие объекты

Доходность 14.63 %

Калужская (10 мин. 🚶)
Москва, Улица Бутлерова, 17
Бизнес-центр «NEO GEO»
Тип: Арендный бизнес, Офисы
Площадь: 2548.60 м2
Отделка:выполнена высококачественная отделка
Арендатор: Офис
Месячный платеж: 10 000 000
815 000 000 за все
319 783 за м2
Позвонить Подробнее

Доходность 10.43 %

Волоколамская (7 мин. 🚶)
Москва, Пятницкое шоссе, 8
Жилое здание "Пятницкое шоссе, 8"
Тип: Арендный бизнес, Торговое помещение
Площадь: 2462.50 м2
Мощность:235 кВт
Арендатор: Магнит
Месячный платеж: 3 400 000
390 000 000 за все
158 376 за м2
Позвонить Подробнее

Доходность 13.95 %

Ховрино (15 мин. 🚗)
Москва, Лобненская улица, 14
ТЦ "Зодиак"
Тип: Арендный бизнес, Торговое помещение
Площадь: 2611.00 м2
Мощность:613 кВт
Арендатор: Папа Джонс, Wildberries, ВкусВилл - Даркстор, Яндекс.Лавка, ПВЗ Озон, Пятёрочка, Винный магазин , Строительная компания
Месячный платеж: 7 185 727
720 855 815 за все
276 084 за м2
Позвонить Подробнее

Доходность 10.53 %

Аннино (13 мин. 🚗)
Московская область, Ленинский городской округ, рабочий посёлок Бутово, жилой комплекс Бутово Парк, 18к1
ТЦ "Мармел"
Тип: Арендный бизнес, Торговое помещение
Площадь: 2473.30 м2
Мощность:283 кВт
Арендатор: Множество разных
Месячный платеж: 1 500 000
170 000 000 за все
68 734 за м2
Позвонить Подробнее

Доходность 4.84 %

(10 мин. 🚗)
Москва, Крылатская улица, 2к4
Имущественный комплекс "Крылатская 2к4"
Тип: Арендный бизнес, Индустриальная недвижимость
Площадь: 2790.00 м2
Арендатор: -
Месячный платеж: 5 400 000
2 250 000 000 за все
806 452 за м2
Позвонить Подробнее

Доходность 9.30 %

Автозаводская (20 мин. 🚗)
Москва, 3-й Павелецкий проезд, 3
ЖК "Резиденция Композиторов"
Тип: Арендный бизнес, Торговое помещение
Площадь: 2471.30 м2
Мощность:595 кВт
Арендатор: Сеть фитнес центров ОБЛАКА FITNES
Месячный платеж: 3 650 000
470 000 000 за все
190 183 за м2
Позвонить Подробнее

Доходность 14.29 %

Планерная (20 мин. 🚗)
Закрытая продажа #35676
Тип: Арендный бизнес, Торговое помещение
Площадь: 3921.40 м2
Мощность:495 кВт
Арендатор: Магнит, Аптека, Фитнес-клуб, Офис, Даркстор Магнит, Множество разных
Месячный платеж: 5 016 667
420 000 000 за все
107 105 за м2
Позвонить Подробнее

Доходность 11.43 %

Строгино (8 мин. 🚶)
Закрытая продажа #63695
Тип: Арендный бизнес, Торговое помещение
Площадь: 948.00 м2
Арендатор: Пятёрочка, Инград, Россети
Месячный платеж: 3 072 000
370 000 000 за все
390 295 за м2
Позвонить Подробнее

Доходность 11.54 %

Аэропорт (6 мин. 🚶)
Москва, Ленинградский проспект, 52
Жилое здание "Ленинградский проспект, 52"
Тип: Арендный бизнес, Торговое помещение
Площадь: 1690.80 м2
Мощность:100 кВт
Арендатор: Медси
Месячный платеж: 3 800 000
395 000 000 за все
233 617 за м2
Позвонить Подробнее

Доходность 16.44 %

Бауманская (7 мин. 🚶)
Закрытая продажа #38047
Тип: Арендный бизнес, Торговое помещение
Площадь: 1128.00 м2
Мощность:90 кВт
Арендатор: Азбука Вкуса
Месячный платеж: 4 950 000
360 000 000 за все
319 149 за м2
Позвонить Подробнее

Доходность 10.43 %

Волоколамская (7 мин. 🚶)
Москва, Пятницкое шоссе, 8
Жилое здание "Пятницкое шоссе, 8"
Тип: Арендный бизнес, Торговое помещение
Площадь: 2462.50 м2
Мощность:235 кВт
Арендатор: Магнит
Месячный платеж: 3 400 000
390 000 000 за все
158 376 за м2
Позвонить Подробнее

Доходность 11.43 %

Динамо (10 мин. 🚶)
Москва, Беговая аллея, 3А
Административное здание "Беговая аллея, 3А"
Тип: Арендный бизнес, Торговое помещение
Площадь: 1239.00 м2
Арендатор: Пятёрочка, Кафе , ПВЗ Озон
Месячный платеж: 3 160 316
404 000 000 за все
326 069 за м2
Позвонить Подробнее

Доходность 8.00 %

Тульская (2 мин. 🚶)
Москва, Гамсоновский переулок, 2с11
Бизнес-центр "Рябовская мануфактура" Ryabov LOFT
Тип: Арендный бизнес, Офисы
Площадь: 753.30 м2
Отделка:отделка в стиле Loft
Арендатор: офис финансовой компании
Месячный платеж: 2 568 002
384 183 000 за все
510 000 за м2
Позвонить Подробнее

Доходность 10.91 %

Озёрная (16 мин. 🚶)
Закрытая продажа #62967
Тип: Арендный бизнес, Торговое помещение
Площадь: 1356.00 м2
Мощность:250 кВт
Арендатор: Перекресток
Месячный платеж: 3 840 000
420 000 000 за все
309 735 за м2
Позвонить Подробнее

Доходность 10.43 %

Кропоткинская (3 мин. 🚶)
Москва, Улица Остоженка, 10
Бизнес-центр "Остоженка"
Тип: Арендный бизнес, Торговое помещение
Площадь: 333.00 м2
Мощность:50 кВт
Арендатор: Азбука Вкуса (Daily)
Месячный платеж: 2 700 000
400 000 000 за все
1 201 201 за м2
Позвонить Подробнее

Доходность 10.00 %

Улица 1905 года (7 мин. 🚶)
Москва, улица Красная Пресня, 23кБс1
Жилое здание "улица Красная Пресня, 23кБс1"
Тип: Арендный бизнес, Торговое помещение
Площадь: 634.60 м2
Арендатор: Пятёрочка
Месячный платеж: 3 500 000
420 000 000 за все
661 834 за м2
Позвонить Подробнее

Доходность 6.98 %

Проспект Мира (3 мин. 🚶)
Москва, Проспект Мира, 40
Бизнес-центр «Garden Mir»
Тип: Арендный бизнес, Торговое помещение
Площадь: 368.80 м2
Мощность:60 кВт
Арендатор: Rostic`s
Месячный платеж: 1 921 500
329 400 000 за все
893 167 за м2
Позвонить Подробнее

Доходность 11.76 %

Проспект Мира (10 мин. 🚶)
Москва, Банный переулок, 2с2
Банный переулок, 2с2
Тип: Арендный бизнес, Торговое помещение
Площадь: 238.80 м2
Мощность:38 кВт
Арендатор: Самокат
Месячный платеж: 740 000
94 700 000 за все
396 566 за м2
Позвонить Подробнее

Доходность 13.04 %

Проспект Мира (5 мин. 🚶)
Закрытая продажа #41682
Тип: Арендный бизнес, Торговое помещение
Площадь: 257.00 м2
Мощность:120 кВт
Арендатор: ВкусВилл, Крошка картошка, Ля Фантази, Кофейня, МИЛТИ сеть магазинов готовой еды, Шаурма
Месячный платеж: 1 564 000
169 000 000 за все
657 588 за м2
Позвонить Подробнее

Доходность 6.00 %

Проспект Мира (5 мин. 🚶)
Москва, проспект Мира, 57с1
Жилое здание "проспект Мира дом 57"
Тип: Арендный бизнес, Торговое помещение
Площадь: 363.90 м2
Мощность:100 кВт
Арендатор: Магнолия
Месячный платеж: 900 000
180 000 000 за все
494 641 за м2
Позвонить Подробнее