Арендный бизнес Бизнес-парк «Seven ONE»

Арендный бизнес Бизнес-парк «Seven ONE» Арендный бизнес Бизнес-парк «Seven ONE» Арендный бизнес Бизнес-парк «Seven ONE»
Арендный бизнес Бизнес-парк «Seven ONE» - превью Арендный бизнес Бизнес-парк «Seven ONE» - превью Арендный бизнес Бизнес-парк «Seven ONE» - превью
Москва, Дмитровское шоссе, 71Б
Позвоните по телефону +7 495 230-28-26, либо оставьте заявку на просмотр прямо сейчас и узнайте условия специального предложения по объекту.
загрузка карты...
Баринов Игорь Юрьевич

Объект ведет консультант:

Баринов Игорь Юрьевич

Общие
ID 22011
Тип сделки Продажа
Площадь 177.00
Площадь всего 20000.00
Тип объекта Бизнес-центр
Класс здания B
Этаж 1
Всего этажей в здании 7
Информация об объекте
Состояние объекта новое строительство
Состояние блока Shell and Core
Планировка Открытая
Коммуникации Система пожаротушения,Система видеонаблюдения,Интернет,Телефония
Перекрытия Железобетонные
Отопление Центральное
Вентиляция и кондиционирование Современная система вентиляции и кондиционирования
КПП Гостевой пропуск
Нюансы Отдельный вход,ПСН
Торговая недвижимость
Линия домов 2 линия
Возможности Зона разгрузки,Витрины,Место для рекламы,Проходное место,Проездное место
Электр. мощность (кВт) 15
Коммерческие условия
За все 61 950 000 ₽
За м 2 350 000 ₽
Тип собственника Физическое лицо
Арендный бизнес
Окупаемость 11 Лет 4 мес.
По первому месяцу 14 Лет 9 мес.
Доходность 8.82 %
По первому месяцу 6.78 %
Ставка аренды 350 000 ₽ в мес
Арендная ставка за кв\м в год 23 729 ₽
Эксплуатация оплачиваются отдельно
Арендатор Студия танцев
Срок договора 5 Лет
Индексация 5 %

Описание объекта
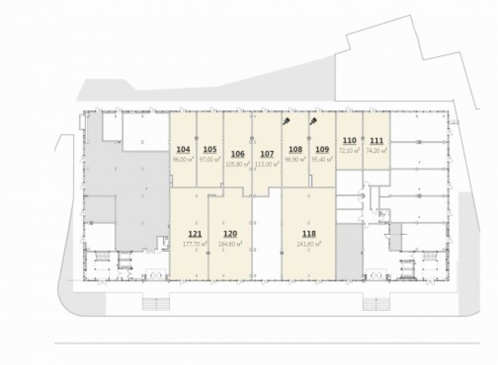
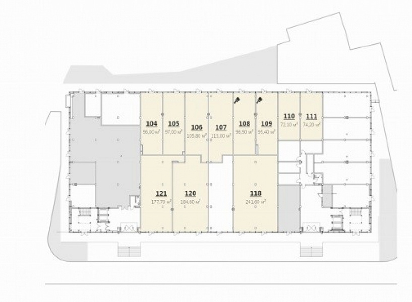
Предлагается на продажу торговое помещение на 1-м этаже современного нового бизнес-центра на севере Москвы. Площадь 177м2, открытая планировка, помещение без ремонта, отдельный вход. Бизнес-центр расположен в непосредственной близости от таких трасс, как Алтуфьевское шоссе, Дмитровское шоссе. 7ONE – это современный бизнес-центр класса В  европейском стиле. На поэтажном плане помещение №121. Арендатор Студия Танцев, Договор долгосрочный на 5 лет. Индексация Индекс ИПЦ.

Наша оценка
Локация
Цена
Техническое оснащение
Состояние
Метраж
Общая оценка 5

Нужна консультация по подбору арендного бизнеса?

Наши специалисты подберут для вас самые выгодные варианты для долгосрочного инвестирования,
помогут в сопровождении и сделки, проверят все юридические вопросы касаемо приобретения недвижимости.

* Нажимая на кнопку «Отправить», Вы даете согласие на обработку персональных данных в соответствии с Политикой конфиденциальности

Похожие объекты

Доходность 9.76 %

Китай-город (10 мин. 🚶)
Москва, Хохловский переулок, 13с1
БЦ "Нега"
Тип: Арендный бизнес, Офисы
Площадь: 191.10 м2
Отделка:выполнена высококачественная отделка
Арендатор: -
Месячный платеж: 955 500
117 526 500 за все
615 000 за м2
Позвонить Подробнее

Доходность 8.96 %

(17 мин. 🚗)
Москва, Давыдковская улица, 10
ЖК "Давыдковская улица, 10"
Тип: Арендный бизнес, Торговое помещение
Площадь: 160.00 м2
Мощность:40 кВт
Арендатор: Х5 Пятерка мини формат На лету
Месячный платеж: 900 000
120 000 000 за все
750 000 за м2
Позвонить Подробнее

Доходность 11.32 %

Добрынинская (1 мин. 🚶)
Москва, Большая Серпуховская улица, 8/7с2
Административное здание «Большая Серпуховская 8/7 с2»
Тип: Арендный бизнес, Торговое помещение
Площадь: 172.10 м2
Мощность:80 кВт
Арендатор: Сеть корейских стритфудов Chicko
Месячный платеж: 963 000
135 000 000 за все
784 428 за м2
Позвонить Подробнее

Доходность 12.00 %

Улица 1905 года (9 мин. 🚶)
Москва, Звенигородское шоссе, 7
Жилое здание "Звенигородское шоссе, 7"
Тип: Арендный бизнес, Торговое помещение
Площадь: 192.30 м2
Арендатор: Медицинская клиника, Продуктовый магазин
Месячный платеж: 600 000
60 000 000 за все
312 012 за м2
Позвонить Подробнее

Доходность 10.00 %

Аэропорт (5 мин. 🚶)
Москва, Ленинградский проспект, 47
Административное здание AIR Space
Тип: Арендный бизнес, Торговое помещение
Площадь: 163.10 м2
Арендатор: Винный магазин "Винлаб"
Месячный платеж: 525 000
79 000 000 за все
484 365 за м2
Позвонить Подробнее

Доходность 11.54 %

Щёлковская (30 мин. 🚗)
Московская область, Щёлково, Чкаловская улица, 1
Жилой дом
Тип: Арендный бизнес, Торговое помещение
Площадь: 186.60 м2
Мощность:40 кВт
Арендатор: Улыбка радуги
Месячный платеж: 320 000
40 000 000 за все
214 362 за м2
Позвонить Подробнее

Доходность 10.43 %

(2 мин. 🚶)
Москва, Ташкентская улица, 12/20
Жилое здание "Ташкентская улица, 12/20"
Тип: Арендный бизнес, Торговое помещение
Площадь: 170.90 м2
Мощность:50 кВт
Арендатор: аптека Столички, ВинЛаб
Месячный платеж: 700 000
99 500 000 за все
582 212 за м2
Позвонить Подробнее

Доходность 27.91 %

Багратионовская (14 мин. 🚶)
Москва, 2-я Филёвская улица, 8к1
Жилое здание "2-я Филёвская улица, 8к1"
Тип: Арендный бизнес, Торговое помещение
Площадь: 160.00 м2
Арендатор: Ночной клуб
Месячный платеж: 700 000
30 000 000 за все
187 500 за м2
Позвонить Подробнее

Доходность 15.00 %

Пролетарская (11 мин. 🚶)
Москва, Малая Калитниковская улица, 5
Жилое здание "Малая Калитниковская улица, 5"
Тип: Арендный бизнес, Торговое помещение
Площадь: 179.20 м2
Мощность:15 кВт
Арендатор: Ozon, Яндекс Маркет, Wildberries
Месячный платеж: 340 000
32 990 000 за все
184 096 за м2
Позвонить Подробнее

Доходность 12.90 %

Парк культуры (12 мин. 🚗)
Москва, 2-й переулок Тружеников, 4/19с1
Жилой дом "2-й пер. Тружеников 4/19с1"
Тип: Арендный бизнес, Торговое помещение
Площадь: 170.00 м2
Арендатор: Офис, Салон красоты
Месячный платеж: 250 000
35 000 000 за все
205 882 за м2
Позвонить Подробнее

Доходность 9.38 %

Саларьево (30 мин. 🚗)
Москва, поселение Филимонковское, деревня Середнево, жилой комплекс Цветочные Поляны Экопарк
ЖК: "Цветочные Поляны Экопарк"
Тип: Арендный бизнес, Торговое помещение
Площадь: 168.70 м2
Арендатор: Магнит
Месячный платеж: 389 230
60 400 000 за все
358 032 за м2
Позвонить Подробнее

Доходность 14.46 %

Царицыно (20 мин. 🚗)
Москва, Бирюлёвская улица, 49к4с2
Встроенно-пристроенное здание
Тип: Арендный бизнес, Торговое помещение
Площадь: 194.40 м2
Арендатор: Гастроном, Овощи/Фрукты, Ермолино, ПВЗ Озон, Табак
Месячный платеж: 650 000
62 000 000 за все
318 930 за м2
Позвонить Подробнее

Доходность 15.38 %


Москва, улица Татьяны Макаровой, 3
Жилое здание "Татьяны Макаровой, 3"
Тип: Арендный бизнес, Торговое помещение
Площадь: 318.20 м2
Арендатор: Аптеки Столички, АнораМаркет
Месячный платеж: 631 410
65 000 000 за все
204 274 за м2
Позвонить Подробнее

Доходность 11.21 %

Братиславская (15 мин. 🚗)
Москва, Перервинский бульвар, 17к1
Жилое здание "Перервинский львар, 17к1"
Тип: Арендный бизнес, Торговое помещение
Площадь: 210.90 м2
Мощность:33 кВт
Арендатор: Самокат
Месячный платеж: 600 000
64 080 000 за все
303 841 за м2
Позвонить Подробнее

Доходность 9.45 %

(19 мин. 🚗)
Московская область, Балашиха, микрорайон Новое Павлино
ЖК "Новоград Павлино"
Тип: Арендный бизнес, Торговое помещение
Площадь: 212.20 м2
Мощность:38 кВт
Арендатор: ВкусВилл, Аптека РИГЛА, НеДым
Месячный платеж: 457 000
58 000 000 за все
273 327 за м2
Позвонить Подробнее

Доходность 9.68 %

Октябрьское Поле (4 мин. 🚶)
Москва, улица Маршала Рыбалко, 5
Жилое здание "Маршала Рыбалко, 5"
Тип: Арендный бизнес, Торговое помещение
Площадь: 257.00 м2
Мощность:35 кВт
Арендатор: ВкусВилл
Месячный платеж: 410 000
64 000 000 за все
249 027 за м2
Позвонить Подробнее

Доходность 12.00 %

Водный стадион (3 мин. 🚶)
Москва, Головинское шоссе, 4
Жилое Здание Головинское шоссе д. 4
Тип: Арендный бизнес, Торговое помещение
Площадь: 90.00 м2
Мощность:30 кВт
Арендатор: Ивановский трикотаж, Ломбард
Месячный платеж: 550 000
61 000 000 за все
677 778 за м2
Позвонить Подробнее

Доходность 12.00 %

Улица 1905 года (9 мин. 🚶)
Москва, Звенигородское шоссе, 7
Жилое здание "Звенигородское шоссе, 7"
Тип: Арендный бизнес, Торговое помещение
Площадь: 192.30 м2
Арендатор: Медицинская клиника, Продуктовый магазин
Месячный платеж: 600 000
60 000 000 за все
312 012 за м2
Позвонить Подробнее

Доходность 12.12 %

Беговая (3 мин. 🚶)
Москва, 1-й Хорошёвский проезд, 12к1
Жилой дом "1-й Хорошёвский проезд, 12к1"
Тип: Арендный бизнес, Торговое помещение
Площадь: 69.00 м2
Мощность:30 кВт
Арендатор: Аптека Живика
Месячный платеж: 525 000
62 000 000 за все
898 551 за м2
Позвонить Подробнее

Доходность 10.08 %

Динамо (6 мин. 🚶)
Москва, улица Милашенкова, 22
Жилое здание Милашенкова 22
Тип: Арендный бизнес, Торговое помещение
Площадь: 151.40 м2
Мощность:25 кВт
Арендатор: Стоматология
Месячный платеж: 310 000
58 500 000 за все
386 394 за м2
Позвонить Подробнее

Доходность 9.38 %

Бульвар Рокоссовского (10 мин. 🚗)
Москва, Открытое шоссе, 24к36
Жилое здание "Открытое шоссе, 24к36"
Тип: Арендный бизнес, Торговое помещение
Площадь: 278.80 м2
Мощность:15 кВт
Арендатор: ПВЗ
Месячный платеж: 360 900
65 000 000 за все
233 142 за м2
Позвонить Подробнее

Доходность 11.11 %

Южная (7 мин. 🚶)
Москва, Кировоградская улица, 7
Жилой дом
Тип: Арендный бизнес, Торговое помещение
Площадь: 231.00 м2
Мощность:30 кВт
Арендатор: Красное и белое, ПВЗ Озон, Кабинет косметологии
Месячный платеж: 547 000
59 000 000 за все
255 411 за м2
Позвонить Подробнее

Доходность 10.71 %

Ховрино (50 мин. 🚗)
Московская область, Солнечногорск, Почтовая улица, 12
Жилой дом "Почтовая, 12"
Тип: Арендный бизнес, Торговое помещение
Площадь: 474.10 м2
Арендатор: Пятёрочка
Месячный платеж: 500 000
55 990 000 за все
118 097 за м2
Позвонить Подробнее

Доходность 12.24 %

Бауманская (5 мин. 🚶)
Москва, Бауманская улица, 7с1
Бизнес-центр «Central Yard»
Тип: Арендный бизнес, Торговое помещение
Площадь: 106.90 м2
Арендатор: Всё и вкусно
Месячный платеж: 450 000
63 000 000 за все
589 336 за м2
Позвонить Подробнее

Доходность 11.11 %

Петровско-Разумовская (25 мин. 🚗)
Москва, Малая Ботаническая улица, 3
Малая Ботаническая, 3
Тип: Арендный бизнес, Торговое помещение
Площадь: 349.60 м2
Мощность:100 кВт
Арендатор: Магнолия
Месячный платеж: 862 067
93 000 000 за все
266 018 за м2
Позвонить Подробнее

Доходность 10.08 %

Петровско-Разумовская (13 мин. 🚗)
Москва, Дмитровское шоссе, 64к1
Жилое здание "Дмитровское шоссе д. 64к1"
Тип: Арендный бизнес, Торговое помещение
Площадь: 357.70 м2
Арендатор: ВТБ
Месячный платеж: 2 145 619
255 000 000 за все
712 888 за м2
Позвонить Подробнее

Доходность 11.88 %

Петровско-Разумовская (17 мин. 🚗)
Москва, Дмитровское шоссе, 89
Бизнес-парк «XL-1»
Тип: Арендный бизнес, Торговое помещение
Площадь: 315.30 м2
Арендатор: Пятёрочка
Месячный платеж: 1 560 000
189 000 000 за все
599 429 за м2
Позвонить Подробнее