Арендный бизнес Особняк «Неглинная 14/1А»

Арендный бизнес Особняк «Неглинная 14/1А»
Округ: ЦАО
Тип: Арендный бизнес, Торговое помещение
Площадь: 401.30 м2 Метро: Кузнецкий Мост (6 мин. 🚶)
Москва, Неглинная улица, 14/1А
Позвоните по телефону +7 495 230-28-26, либо оставьте заявку на просмотр прямо сейчас и узнайте условия специального предложения по объекту.
загрузка карты...
Капина Владлена Викторовна

Объект ведет консультант:

Капина Владлена Викторовна

Общие
ID 45224
Тип сделки Продажа
Площадь 401.30
Площадь всего 7694.00
Тип объекта Особняк
Класс здания A
Этаж -1 - 1
Всего этажей в здании 3
Метраж по этажам
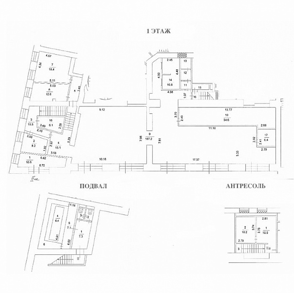
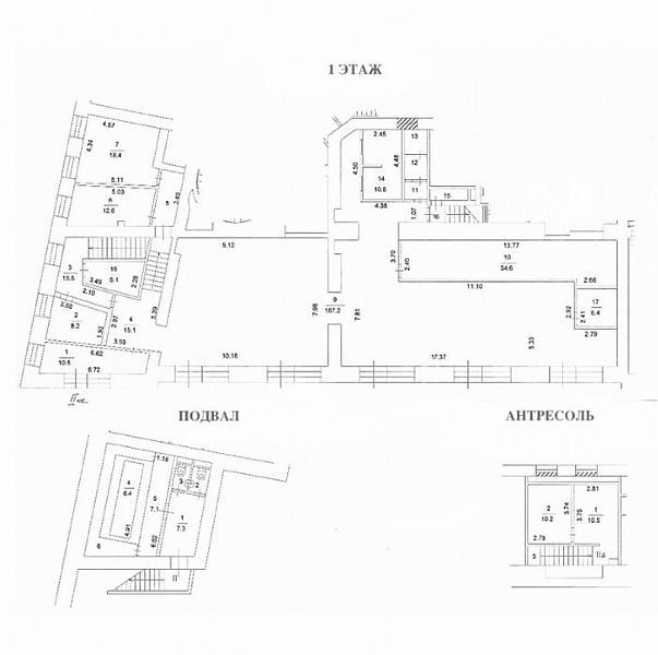
Этаж: 1 - 340.5 м2
Этаж: антресоль - 30.2 м2
Этаж: -1 - 30.6 м2
Информация об объекте
Состояние объекта рабочее
Состояние блока отделка арендатора
Планировка Смешанная
Коммуникации Система видеонаблюдения,Интернет,Телефония
Нюансы Отдельный вход
Торговая недвижимость
Линия домов 1 линия
Возможности Витрины,Место для рекламы,Проходное место,Проездное место
Электр. мощность (кВт) 41
Коммерческие условия
За все 950 000 000 ₽
За м 2 2 367 306 ₽
Тип собственника Юридическое лицо
Арендный бизнес
Окупаемость 26 Лет 5 мес.
По первому месяцу 26 Лет 5 мес.
Доходность 3.79 %
По первому месяцу 3.79 %
Ставка аренды 3 000 000 ₽ в мес
Арендная ставка за кв\м в год 89 708 ₽
Арендатор ВТБ
Срок договора 12 Лет

Описание объекта
Предлагается к продаже арендный бизнес на улице Неглинная в Мещенском районе ЦАО г. Москвы.
Административное здание, первая линия  домов, отдельный вход с фасада из каждой
витрины, большие витринные окна.

Площадь 401,3 м2, в т.ч 1 этаж-340,5 м2, антресоль - 30,2 м2, подвал - 30,6 м2

Условия аренды
Банк ВТБ24
ДА от 04.06.2013 до 31.12.2025, МАП 3.000.000, индексация по соглашению сторон.

Нужна консультация по подбору арендного бизнеса?

Наши специалисты подберут для вас самые выгодные варианты для долгосрочного инвестирования,
помогут в сопровождении и сделки, проверят все юридические вопросы касаемо приобретения недвижимости.

* Нажимая на кнопку «Отправить», Вы даете согласие на обработку персональных данных в соответствии с Политикой конфиденциальности

Похожие объекты

Доходность 12.00 %

Домодедовская (30 мин. 🚗)
Московская область, Ленинский городской округ, посёлок городского типа Мисайлово, Пригородное шоссе, 22
ЖК "Пригород. Лесное"
Тип: Арендный бизнес, Торговое помещение
Площадь: 410.00 м2
Арендатор: Магнит
Месячный платеж: 1 000 000
120 000 000 за все
292 683 за м2
Позвонить Подробнее

Доходность 11.01 %

Бульвар Дмитрия Донского (20 мин. 🚗)
Московская область, Ленинский городской округ, посёлок городского типа Боброво, ЖК Восточное Бутово, 42
ЖК "Восточное Бутово" к42
Тип: Арендный бизнес, Торговое помещение
Площадь: 409.00 м2
Арендатор: Магнит
Месячный платеж: 1 228 200
144 000 000 за все
352 078 за м2
Позвонить Подробнее

Доходность 11.54 %

(19 мин. 🚗)
Москва, Новомосковский административный округ, район Внуково, деревня Большое Свинорье, ЖК Квартал Западный, к3
ЖК "Квартал Западный" к. 3
Тип: Арендный бизнес, Торговое помещение
Площадь: 371.00 м2
Арендатор: Пятёрочка
Месячный платеж: 1 300 000
163 800 000 за все
441 509 за м2
Позвонить Подробнее

Доходность 12.00 %

Бунинская аллея (26 мин. 🚗)
Москва, Новомосковский административный округ, район Щербинка, квартал № 103, жилой комплекс Подольские Кварталы, к4
ЖК "Подольские Кварталы" к4
Тип: Арендный бизнес, Торговое помещение
Площадь: 407.00 м2
Мощность:73 кВт
Арендатор: Пятёрочка
Месячный платеж: 1 424 000
171 000 000 за все
420 147 за м2
Позвонить Подробнее

Доходность 11.11 %

Коммунарка (19 мин. 🚗)
Закрытая продажа #62480
Тип: Арендный бизнес, Торговое помещение
Площадь: 362.50 м2
Мощность:72 кВт
Арендатор: Дикси
Месячный платеж: 1 522 500
200 000 000 за все
551 724 за м2
Позвонить Подробнее

Доходность 9.52 %

Красносельская (5 мин. 🚶)
Москва, Большая Грузинская улица, 12
Жилое здание "Б. Грузинская 12"
Тип: Арендный бизнес, Торговое помещение
Площадь: 396.80 м2
Мощность:70 кВт
Арендатор: Пятёрочка
Месячный платеж: 1 850 000
233 100 000 за все
587 450 за м2
Позвонить Подробнее

Спец. предложение

Доходность 11.76 %

(20 мин. 🚗)
Москва, Новомосковский административный округ, район Коммунарка, улица Василия Ощепкова, 2
ЖК "Москвичка"
Тип: Арендный бизнес, Торговое помещение
Площадь: 406.00 м2
Мощность:83 кВт
Арендатор: Пятёрочка
Месячный платеж: 775 000
95 000 000 за все
233 990 за м2
Позвонить Подробнее

Доходность 10.34 %

Некрасовка (22 мин. 🚗)
Московская область, Люберцы, микрорайон Зенино ЖК Самолёт, Озёрная улица, 9
ЖК "Самолет"
Тип: Арендный бизнес, Торговое помещение
Площадь: 395.70 м2
Арендатор: Пятёрочка
Месячный платеж: 870 000
125 000 000 за все
315 896 за м2
Позвонить Подробнее

Доходность 12.00 %

Щёлковская (15 мин. 🚶)
Москва, Уральская улица, 17
Жилое здание "Уральская улица, 17"
Тип: Арендный бизнес, Торговое помещение
Площадь: 379.00 м2
Мощность:50 кВт
Арендатор: Дикси
Месячный платеж: 1 137 500
137 000 000 за все
361 478 за м2
Позвонить Подробнее

Доходность 9.09 %

Бунинская аллея (21 мин. 🚗)
Москва, Варшавское шоссе, 284к3
ЖК "Никольские луга"
Тип: Арендный бизнес, Торговое помещение
Площадь: 433.00 м2
Мощность:86 кВт
Арендатор: Пятёрочка
Месячный платеж: 1 600 000
210 000 000 за все
484 988 за м2
Позвонить Подробнее

Доходность 12.24 %

Бунинская аллея (17 мин. 🚗)
Закрытая продажа #61056
Тип: Арендный бизнес, Торговое помещение
Площадь: 361.50 м2
Мощность:30 кВт
Арендатор: кальянная "Мята Лаунж"
Месячный платеж: 400 000
56 000 000 за все
154 910 за м2
Позвонить Подробнее

Доходность 11.32 %

Филёвский парк (3 мин. 🚶)
Москва, улица Олеко Дундича, 27
Жилой дом "Олеко Дундича 27"
Тип: Арендный бизнес, Торговое помещение
Площадь: 406.00 м2
Мощность:120 кВт
Арендатор: Wildberries, бьюти-коворкинг, Офис
Месячный платеж: 1 515 000
160 000 000 за все
394 089 за м2
Позвонить Подробнее

Доходность 15.00 %

Щёлковская (6 мин. 🚗)
Москва, Байкальская улица, 1/3с1
Имущественный комплекс "Байкальская улица, 1/3с1"
Тип: Арендный бизнес, Торговое помещение
Площадь: 10500.00 м2
Мощность:300 кВт
Арендатор: Множество разных
Месячный платеж: 12 500 000
1 000 000 000 за все
95 238 за м2
Позвонить Подробнее

Доходность 11.76 %

Новогиреево (7 мин. 🚗)
Московская область, Балашиха, территория Западная Коммунальная Зона, шоссе Энтузиастов, 1Г
Торговый центр М7
Тип: Арендный бизнес, Торговое помещение
Площадь: 11000.00 м2
Арендатор: Множество разных
Месячный платеж: 0
990 000 000 за все
90 000 за м2
Позвонить Подробнее

Доходность 9.52 %

Кузнецкий Мост (2 мин. 🚶)
Москва, улица Рождественка, 5/7с2
Торговая Галерея на Кузнецком
Тип: Арендный бизнес, Торговое помещение
Площадь: 145.80 м2
Арендатор: Сеть бургерных Стейк и Бургер Мираторг
Месячный платеж: 2 000 000
320 000 000 за все
2 194 787 за м2
Позвонить Подробнее

Доходность 7.74 %

Кузнецкий Мост (6 мин. 🚶)
Закрытая продажа #61151
Тип: Арендный бизнес, Торговое помещение
Площадь: 156.80 м2
Мощность:100 кВт
Арендатор: ресторан «Bruno» (Lucky Group)
Месячный платеж: 1 488 375
313 600 000 за все
2 000 000 за м2
Позвонить Подробнее

Доходность 9.38 %

Кузнецкий Мост (6 мин. 🚶)
Закрытая продажа #61150
Тип: Арендный бизнес, Торговое помещение
Площадь: 54.80 м2
Мощность:100 кВт
Арендатор: ресторан «Bruno» (Lucky Group)
Месячный платеж: 892 500
145 000 000 за все
2 645 985 за м2
Позвонить Подробнее