Арендный бизнес ОСЗ "г. Ступино, Центральная улица, 1"

Арендный бизнес ОСЗ Арендный бизнес ОСЗ Арендный бизнес ОСЗ
Арендный бизнес ОСЗ Арендный бизнес ОСЗ Арендный бизнес ОСЗ
Округ:
Тип: Арендный бизнес, Торговое помещение
Площадь: 302.10 м2 Метро: Алма-Атинская (56 мин. 🚗)
Московская область, городской округ Ступино, село Лужники, Центральная улица, 1
Позвоните по телефону +7 495 230-28-26, либо оставьте заявку на просмотр прямо сейчас и узнайте условия специального предложения по объекту.
загрузка карты...
Общие
ID 58753
Тип сделки Продажа
Площадь 302.10
Площадь всего 302.10
Тип объекта Административное здание
Этаж 1
Всего этажей в здании 1
Метраж по этажам
Информация об объекте
Состояние объекта рабочее
Планировка Смешанная
Перекрытия Неизвестно
Нюансы Отдельный вход
Торговая недвижимость
Линия домов 1 линия
Возможности Зона разгрузки,Витрины,Место для рекламы,Проходное место,Проездное место
Электр. мощность (кВт) 40
Коммерческие условия
За все 42 900 000 ₽
За м 2 142 006 ₽
Тип собственника Физическое лицо
Арендный бизнес
Окупаемость 9 Лет
По первому месяцу 9 Лет
Доходность 11.11 %
По первому месяцу 11.11 %
Ставка аренды 400 000 ₽ в мес
Арендатор Дикси
Срок договора 10 Лет

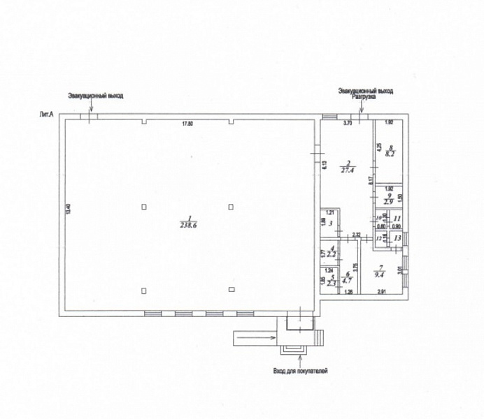
Описание объекта
Продается объект с готовым арендным бизнесом — супермаркетом «Дикси» в Ступинском районе. Общая площадь 302,10  м2. Отдельный вход и удобная зона разгрузки. Получена лицензия на алкоголь. Высокий пешеходный и автомобильный трафик, наземная парковка.
Выделенная мощность 40 кВт, высота потолков 3 м.

Договор с Дикси на 10 лет с февраля 2022, МАП 400 тыс. ₽/мес (фикс 300 + % от товарооборота)

Нужна консультация по подбору арендного бизнеса?

Наши специалисты подберут для вас самые выгодные варианты для долгосрочного инвестирования,
помогут в сопровождении и сделки, проверят все юридические вопросы касаемо приобретения недвижимости.

* Нажимая на кнопку «Отправить», Вы даете согласие на обработку персональных данных в соответствии с Политикой конфиденциальности

Похожие объекты

Доходность 15.38 %


Москва, улица Татьяны Макаровой, 3
Жилое здание "Татьяны Макаровой, 3"
Тип: Арендный бизнес, Торговое помещение
Площадь: 318.20 м2
Арендатор: Аптеки Столички, АнораМаркет
Месячный платеж: 631 410
65 000 000 за все
204 274 за м2
Позвонить Подробнее

Доходность 6.59 %

Стрешнево (10 мин. 🚶)
Москва, Волоколамское шоссе, 10
Жилое здание "Волоколамское шоссе, 10"
Тип: Арендный бизнес, Торговое помещение
Площадь: 320.00 м2
Мощность:70 кВт
Арендатор: Магнолия
Месячный платеж: 700 000
127 000 000 за все
396 875 за м2
Позвонить Подробнее

Доходность 8.70 %

Китай-город (6 мин. 🚶)
Москва, улица Покровка, 7/9-11к1
Жилой дом "улица Покровка, 7/9-11к1"
Тип: Арендный бизнес, Торговое помещение
Площадь: 315.10 м2
Мощность:30 кВт
Арендатор: Универмаг "Покровка 7/9"
Месячный платеж: 1 547 278
213 500 000 за все
677 563 за м2
Позвонить Подробнее

Доходность 10.00 %

Китай-город (10 мин. 🚶)
Москва, Хохловский переулок, 13с1
БЦ "Нега"
Тип: Арендный бизнес, Офисы
Площадь: 282.60 м2
Отделка:выполнена высококачественная отделка
Арендатор: -
Месячный платеж: 1 530 750
183 690 000 за все
650 000 за м2
Позвонить Подробнее

Доходность 11.43 %

Динамо (13 мин. 🚶)
Москва, Беговая улица, 17к1
Жилое здание "Беговая ул., 17К1"
Тип: Арендный бизнес, Торговое помещение
Площадь: 329.50 м2
Мощность:40 кВт
Арендатор: Яндекс.доставка
Месячный платеж: 1 089 821
139 000 000 за все
421 851 за м2
Позвонить Подробнее

Доходность 10.26 %

Кунцевская (30 мин. 🚗)
Москва, Новомосковский административный округ, район Внуково, посёлок совхоза Крёкшино, 18Б
ОСЗ "Крёкшино 18Б"
Тип: Арендный бизнес, Торговое помещение
Площадь: 290.00 м2
Мощность:50 кВт
Арендатор: Пятёрочка
Месячный платеж: 300 000
35 000 000 за все
120 690 за м2
Позвонить Подробнее

Доходность 9.45 %

Белорусская (3 мин. 🚶)
Москва, 1-я Тверская-Ямская улица, 27
Административное здание «1-я Тверская-Ямская 27»
Тип: Арендный бизнес, Торговое помещение
Площадь: 315.10 м2
Мощность:120 кВт
Арендатор: Ресторан
Месячный платеж: 1 462 240
225 000 000 за все
714 059 за м2
Позвонить Подробнее

Доходность 11.32 %

Крымская (15 мин. 🚶)
Москва, улица Дмитрия Ульянова, 47
Жилой дом "Дмитрия Ульянова 47"
Тип: Арендный бизнес, Торговое помещение
Площадь: 308.00 м2
Мощность:50 кВт
Арендатор: Дикси
Месячный платеж: 1 085 000
145 000 000 за все
470 779 за м2
Позвонить Подробнее

Доходность 9.38 %

Бульвар Рокоссовского (10 мин. 🚗)
Москва, Открытое шоссе, 24к36
Жилое здание "Открытое шоссе, 24к36"
Тип: Арендный бизнес, Торговое помещение
Площадь: 278.80 м2
Мощность:15 кВт
Арендатор: ПВЗ
Месячный платеж: 360 900
65 000 000 за все
233 142 за м2
Позвонить Подробнее

Доходность 9.23 %

Бульвар Рокоссовского (6 мин. 🚶)
Москва, Открытое шоссе, 18Ак7
ЖК "Лосиноостровский"
Тип: Арендный бизнес, Торговое помещение
Площадь: 306.00 м2
Мощность:61 кВт
Арендатор: Пятёрочка
Месячный платеж: 1 200 000
155 000 000 за все
506 536 за м2
Позвонить Подробнее

Доходность 10.71 %

Строгино (20 мин. 🚗)
Московская область, Красногорск, жилой комплекс Спутник, к15
ЖК "Спутник" к. 15
Тип: Арендный бизнес, Торговое помещение
Площадь: 303.00 м2
Арендатор: Магнит
Месячный платеж: 1 518 000
210 000 000 за все
693 069 за м2
Позвонить Подробнее

Доходность 12.77 %

Семёновская ( мин. 🚶)
Закрытая продажа #43792
Тип: Арендный бизнес, Торговое помещение
Площадь: 316.00 м2
Арендатор: ВТБ, ПВЗ Озон, Кофейня, Дом быта
Месячный платеж: 1 030 000
137 000 000 за все
433 544 за м2
Позвонить Подробнее

Доходность 10.08 %

Новокузнецкая (5 мин. 🚶)
Москва, Новокузнецкая улица, 30с1
Жилой Дом на Новокузнецкой улице
Тип: Арендный бизнес, Торговое помещение
Площадь: 75.00 м2
Мощность:25 кВт
Арендатор: ПВЗ Озон, Вайлдберриз
Месячный платеж: 263 000
39 000 000 за все
520 000 за м2
Позвонить Подробнее

Доходность 11.21 %

Бунинская аллея (26 мин. 🚗)
Москва, Новомосковский административный округ, район Щербинка, квартал № 103, жилой комплекс Подольские Кварталы, к2
ЖК "Подольские Кварталы" к2
Тип: Арендный бизнес, Торговое помещение
Площадь: 130.70 м2
Мощность:24 кВт
Арендатор: ВинЛаб, Табак Less
Месячный платеж: 330 000
39 600 000 за все
302 984 за м2
Позвонить Подробнее

Доходность 10.71 %

Бабушкинская (17 мин. 🚗)
Московская область, Мытищи, жилой комплекс Ярославский Квартал, 1.2
ЖК "Ярославский квартал"
Тип: Арендный бизнес, Торговое помещение
Площадь: 125.80 м2
Мощность:25 кВт
Арендатор: ВинЛаб
Месячный платеж: 354 000
44 600 000 за все
354 531 за м2
Позвонить Подробнее

Доходность 10.53 %

Саларьево (21 мин. 🚗)
Москва, Новомосковский административный округ, Филимонковский район, жилой комплекс Квартал Марьино, к2
ЖК "Середневский Лес и Квартал Марьино"
Тип: Арендный бизнес, Торговое помещение
Площадь: 122.50 м2
Мощность:25 кВт
Арендатор: ВинЛаб
Месячный платеж: 320 000
41 300 000 за все
337 143 за м2
Позвонить Подробнее

Доходность 12.50 %

Таганская (3 мин. 🚶)
Москва, Гончарная набережная, 3с5
Жилой дом Гончарная набережная д. 3 стр. 5
Тип: Арендный бизнес, Торговое помещение
Площадь: 76.70 м2
Арендатор: Офис
Месячный платеж: 300 000
41 000 000 за все
534 550 за м2
Позвонить Подробнее

Доходность 10.00 %

Домодедовская (15 мин. 🚗)
Московская область, Ленинский городской округ, посёлок Развилка, жилой комплекс Римский
ЖК "Римский"
Тип: Арендный бизнес, Торговое помещение
Площадь: 144.40 м2
Арендатор: ВинЛаб
Месячный платеж: 330 000
39 600 000 за все
274 238 за м2
Позвонить Подробнее

Доходность 12.50 %

Стрешнево (1 мин. 🚶)
Москва, 1-й Красногорский проезд, 4к2
ЖК "Моментс"
Тип: Арендный бизнес, Торговое помещение
Площадь: 41.00 м2
Мощность:8 кВт
Арендатор: сеть аптек «36,6»
Месячный платеж: 400 000
45 500 000 за все
1 109 756 за м2
Позвонить Подробнее

Доходность 12.50 %

Деловой центр Деловой центр (МЦК) (7 мин. 🚶)
Москва, Пресненская набережная, 12
Москва-Сити «Башня Федерация»
Тип: Арендный бизнес, Торговое помещение
Площадь: 30.10 м2
Мощность:30 кВт
Арендатор: кофейня Varka
Месячный платеж: 286 432
39 000 000 за все
1 295 681 за м2
Позвонить Подробнее

Доходность 0.77 %

Деловой центр Деловой центр (МЦК) (7 мин. 🚶)
Москва, Пресненская набережная, 12
Москва-Сити «Башня Федерация»
Тип: Арендный бизнес, Торговое помещение
Площадь: 33.90 м2
Мощность:50 кВт
Арендатор: Кафе Это Хлеб
Месячный платеж: 306
41 900 000 за все
1 235 988 за м2
Позвонить Подробнее

Доходность 10.43 %

Кунцевская (15 мин. 🚶)
Москва, улица Багрицкого, 3к1
Жилой дом "Багрицкого 3к1"
Тип: Арендный бизнес, Торговое помещение
Площадь: 89.00 м2
Мощность:22 кВт
Арендатор: Ароматный мир
Месячный платеж: 304 500
41 500 000 за все
466 292 за м2
Позвонить Подробнее

Доходность 17.91 %

Озёрная (15 мин. 🚶)
Москва, Большая Очаковская улица, 23/8
Жилой дом "Большая Очаковская 23/8"
Тип: Арендный бизнес, Торговое помещение
Площадь: 390.00 м2
Мощность:20 кВт
Арендатор: кладовкин
Месячный платеж: 500 000
46 900 000 за все
120 256 за м2
Позвонить Подробнее

Доходность 9.92 %

Спортивная (2 мин. 🚶)
Москва, улица Усачёва, 62
МФК Arkenston
Тип: Арендный бизнес, Торговое помещение
Площадь: 36.90 м2
Мощность:10 кВт
Арендатор: Салон красоты
Месячный платеж: 211 194
40 590 000 за все
1 100 000 за м2
Позвонить Подробнее

Доходность 10.91 %

Алма-Атинская (1 мин. 🚶)
Москва, Братеевская улица, 16к1
Жилое здание "Братеевская улица, 16к1"
Тип: Арендный бизнес, Торговое помещение
Площадь: 518.00 м2
Арендатор: Магнит
Месячный платеж: 1 150 000
155 000 000 за все
299 228 за м2
Позвонить Подробнее

Доходность 10.34 %

Алма-Атинская (1 мин. 🚶)
Москва, Братеевская улица, 16к1
Жилое здание "Братеевская улица, 16к1"
Тип: Арендный бизнес, Торговое помещение
Площадь: 34.90 м2
Арендатор: Аптека Вита
Месячный платеж: 168 000
24 200 000 за все
693 410 за м2
Позвонить Подробнее