Арендный бизнес Особняк "Покровский б. 16с5"

Арендный бизнес Особняк Арендный бизнес Особняк Арендный бизнес Особняк
Арендный бизнес Особняк Арендный бизнес Особняк Арендный бизнес Особняк
Москва, Покровский бульвар, 16с5
Позвоните по телефону +7 495 230-28-26, либо оставьте заявку на просмотр прямо сейчас и узнайте условия специального предложения по объекту.
загрузка карты...
Первушина Марина Алексеевна

Объект ведет консультант:

Первушина Марина Алексеевна

Общие
ID 45982
Тип сделки Продажа
Площадь 524.00
Площадь всего 524.00
Тип объекта Особняк
Класс здания B
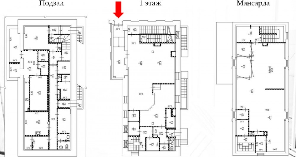
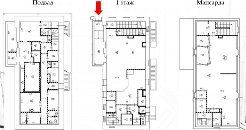
Этаж -1 - 1
Всего этажей в здании 1
Метраж по этажам
Информация об объекте
Состояние объекта рабочее
Планировка Смешанная
Перекрытия Железобетонные
Нюансы Отдельный вход,ПСН
Коммерческие условия
За все 262 000 000 ₽
За м 2 500 000 ₽
Тип собственника Юридическое лицо
Арендный бизнес
Окупаемость 9 Лет 4 мес.
По первому месяцу 12 Лет 6 мес.
Доходность 10.71 %
По первому месяцу 8.00 %
Ставка аренды 1 750 000 ₽ в мес
Эксплуатация оплачиваются отдельно
Арендатор Банк
Срок договора 10 Лет
Индексация 7 %

Описание объекта
Продается особняк класса В в центре Москвы. Здание на первой линии Покровского бульвара, 900м до м.Китай-Город и м.Чкаловская.
Текущий арендатор по долгосрочному договору - банковская структура ПСБ. Стабилтный бизнес с окупаемостью 9 лет. МАП 1,75млн/мес, индексация 7%.
Здание не является памятником. Площадь здания 524м2 (подвал, первый этаж и мансарда). Два отдельных входа, ж/б перекрытия, выделенная мощность 100кВт.
Земельный участок 336м2 в аренде. ВРУ: участки административно-делового вида, проектирование и воссоздание в рамках регенерации офисного здания.

Нужна консультация по подбору арендного бизнеса?

Наши специалисты подберут для вас самые выгодные варианты для долгосрочного инвестирования,
помогут в сопровождении и сделки, проверят все юридические вопросы касаемо приобретения недвижимости.

* Нажимая на кнопку «Отправить», Вы даете согласие на обработку персональных данных в соответствии с Политикой конфиденциальности

Похожие объекты

Доходность 10.71 %

Мякинино (46 мин. 🚗)
Московская область, городской округ Красногорск, посёлок Ильинское-Усово, ЖК Ильинские Луга, к2.7
ЖК "Ильинские Луга к.2.7
Тип: Арендный бизнес, Торговое помещение
Площадь: 491.00 м2
Арендатор: Магнит
Месячный платеж: 1 500 000
198 000 000 за все
403 259 за м2
Позвонить Подробнее

Доходность 9.68 %

Шелепиха (10 мин. 🚶)
Закрытая продажа #63710
Тип: Арендный бизнес, Торговое помещение
Площадь: 498.60 м2
Мощность:80 кВт
Арендатор: Пятёрочка
Месячный платеж: 2 243 700
350 000 000 за все
701 966 за м2
Позвонить Подробнее

Доходность 11.54 %

Новые Черёмушки (7 мин. 🚶)
Москва, улица Намёткина, 3
Административное здание "Намёткина, 3"
Тип: Арендный бизнес, Торговое помещение
Площадь: 518.90 м2
Арендатор: Даркстор Дикси
Месячный платеж: 577 500
60 000 000 за все
115 629 за м2
Позвонить Подробнее

Доходность 10.08 %

Красногвардейская (40 мин. 🚗)
Московская область, Ленинский городской округ, посёлок Развилка, Римский проезд, 13
ЖК "Римский"
Тип: Арендный бизнес, Торговое помещение
Площадь: 523.30 м2
Арендатор: Пятёрочка, Аптека ЗдравСити
Месячный платеж: 1 416 500
211 000 000 за все
403 210 за м2
Позвонить Подробнее

Доходность 9.23 %

Новые Черёмушки (7 мин. 🚶)
Москва, улица Намёткина, 3
Административное здание "Намёткина, 3"
Тип: Арендный бизнес, Торговое помещение
Площадь: 505.00 м2
Арендатор: бильярдный клуб
Месячный платеж: 540 000
70 000 000 за все
138 614 за м2
Позвонить Подробнее

Доходность 8.70 %

Бунинская аллея (16 мин. 🚗)
Москва, Новомосковский административный округ, район Щербинка, Остафьевское шоссе, 14к3
ЖК "Остафьево 14к3"
Тип: Арендный бизнес, Торговое помещение
Площадь: 525.54 м2
Арендатор: Магнит
Месячный платеж: 926 527
158 128 679 за все
300 888 за м2
Позвонить Подробнее

Доходность 13.33 %

Сходненская (21 мин. 🚗)
Закрытая продажа #61241
Тип: Арендный бизнес, Торговое помещение
Площадь: 525.00 м2
Мощность:150 кВт
Арендатор: Пятёрочка
Месячный платеж: 1 420 000
150 000 000 за все
285 714 за м2
Позвонить Подробнее

Доходность 15.00 %

Измайловская (3 мин. 🚶)
Москва, Фортунатовская улица, 20
Отдельностоящее Здание
Тип: Арендный бизнес, Торговое помещение
Площадь: 550.00 м2
Мощность:45 кВт
Арендатор: Магнит
Месячный платеж: 1 337 500
130 000 000 за все
236 364 за м2
Позвонить Подробнее

Доходность 11.54 %

Щукинская (7 мин. 🚶)
Москва, улица Маршала Василевского, 5к1
Жилой дом "Маршала Василевского, 5к1"
Тип: Арендный бизнес, Торговое помещение
Площадь: 481.20 м2
Мощность:80 кВт
Арендатор: Дикси
Месячный платеж: 1 000 000
125 000 000 за все
259 767 за м2
Позвонить Подробнее

Доходность 13.64 %

Молодёжная (13 мин. 🚶)
Москва, Молодогвардейская улица, 21к1
Жилой дом "Молодогвардейская 21к1"
Тип: Арендный бизнес, Торговое помещение
Площадь: 486.00 м2
Мощность:65 кВт
Арендатор: Озон Фреш
Месячный платеж: 900 000
91 900 000 за все
189 095 за м2
Позвонить Подробнее

Доходность 16.67 %

Калужская (7 мин. 🚶)
Москва, Старокалужское шоссе, 62
Бизнес-центр «Vallex»
Тип: Арендный бизнес, Торговое помещение
Площадь: 527.80 м2
Мощность:80 кВт
Арендатор: Озон Фреш
Месячный платеж: 1 500 000
138 300 000 за все
262 031 за м2
Позвонить Подробнее

Доходность 12.63 %

Университет (12 мин. 🚶)
Москва, проспект Вернадского, 15
Жилое здание "пр-т Вернадского, 15"
Тип: Арендный бизнес, Торговое помещение
Площадь: 477.50 м2
Мощность:80 кВт
Арендатор: Магнит
Месячный платеж: 1 700 000
183 600 000 за все
384 503 за м2
Позвонить Подробнее

Доходность 10.71 %

Дмитровская (19 мин. 🚶)
Закрытая продажа #63352
Тип: Арендный бизнес, Торговое помещение
Площадь: 1263.00 м2
Мощность:200 кВт
Арендатор: Аптека, Студия танцев, Пятёрочка, Ателье-Химчистка, кафе «Андерсон»
Месячный платеж: 2 325 717
260 000 000 за все
205 859 за м2
Позвонить Подробнее

Доходность 11.54 %

Селигерская (17 мин. 🚶)
Москва, улица Ивана Сусанина, 2с7
ТЦ "улица Ивана Сусанина, 2с7"
Тип: Арендный бизнес, Торговое помещение
Площадь: 583.00 м2
Арендатор: Пятёрочка
Месячный платеж: 2 000 000
250 000 000 за все
428 816 за м2
Позвонить Подробнее

Доходность 13.64 %

Борисово (7 мин. 🚶)
Москва, улица Мусы Джалиля, 4А
Здание "Мусы Джалиля, 4А"
Тип: Арендный бизнес, Торговое помещение
Площадь: 1663.40 м2
Мощность:170 кВт
Арендатор: Яндекс.Лавка, Хостел, Билайн, Мегафон, МТС, Энергоарктика, водомат, Пятёрочка
Месячный платеж: 2 332 900
238 000 000 за все
143 080 за м2
Позвонить Подробнее

Доходность 10.26 %

(7 мин. 🚶)
Закрытая продажа #61381
Тип: Арендный бизнес, Торговое помещение
Площадь: 887.30 м2
Мощность:270 кВт
Арендатор: Множество разных
Месячный платеж: 2 240 000
260 000 000 за все
293 024 за м2
Позвонить Подробнее

Доходность 10.43 %

Алтуфьево (18 мин. 🚶)
Закрытая продажа #61255
Тип: Арендный бизнес, Офисы
Площадь: 2393.70 м2
Отделка:отделка арендатора
Арендатор: Светофор
Месячный платеж: 2 100 000
240 000 000 за все
100 263 за м2
Позвонить Подробнее

Доходность 7.64 %

Лубянка
Москва, Никольская улица, 25
ТЦ «Наутилус»
Тип: Арендный бизнес, Торговое помещение
Площадь: 67.50 м2
Арендатор: One Price Coffee
Месячный платеж: 1 752 320
273 362 000 за все
4 049 807 за м2
Позвонить Подробнее

Доходность 10.81 %

Кутузовская (5 мин. 🚶)
Москва, Кутузовский проспект, 35
Жилой дом "Кутузовский проспект, 35"
Тип: Арендный бизнес, Торговое помещение
Площадь: 517.60 м2
Мощность:120 кВт
Арендатор: Магнолия
Месячный платеж: 2 151 043
280 000 000 за все
540 958 за м2
Позвонить Подробнее

Доходность 10.53 %

Бабушкинская (30 мин. 🚗)
Московская область, Мытищи, Хлебозаводская улица, 4
ОСЗ "г. Мытищи, ул. Хлебозаводская, 4"
Тип: Арендный бизнес, Торговое помещение
Площадь: 1787.00 м2
Мощность:150 кВт
Арендатор: Станция технического обслуживания
Месячный платеж: 1 900 000
280 000 000 за все
156 687 за м2
Позвонить Подробнее

Доходность 9.84 %

Отрадное (1 мин. 🚶)
Москва, улица Декабристов, 21Г
ТЦ "ул. Декабристов, д. 21Г"
Тип: Арендный бизнес, Торговое помещение
Площадь: 460.00 м2
Арендатор: Магнит
Месячный платеж: 1 979 100
240 000 000 за все
521 739 за м2
Позвонить Подробнее

Доходность 9.92 %

(5 мин. 🚶)
Москва, Ленинский проспект, 108А
ТЦ "Ленинский пр-т 108А"
Тип: Арендный бизнес, Торговое помещение
Площадь: 690.00 м2
Мощность:50 кВт
Арендатор: Дикси
Месячный платеж: 2 205 000
265 300 000 за все
384 493 за м2
Позвонить Подробнее

Доходность 15.79 %

Ховрино (30 мин. 🚗)
Московская область, городской округ Солнечногорск, деревня Литвиново, 1/3
Складской комплекс "Литвиново 1/3"
Тип: Арендный бизнес, Индустриальная недвижимость
Площадь: 1044.00 м2
Арендатор: Х5 Логистик
Месячный платеж: 2 500 000
245 000 000 за все
234 674 за м2
Позвонить Подробнее

Доходность 7.59 %

Маяковская (2 мин. 🚶)
Москва, 1-я Тверская-Ямская улица, 2с1
Ритейл на Маяковской
Тип: Арендный бизнес, Торговое помещение
Площадь: 148.70 м2
Арендатор: Ресторан Masters Margaritas
Месячный платеж: 968 833
237 920 000 за все
1 600 000 за м2
Позвонить Подробнее

Доходность 12.12 %

Китай-город (10 мин. 🚶)
Москва, Хохловский переулок, 13с1
БЦ "Нега"
Тип: Арендный бизнес, Офисы
Площадь: 239.40 м2
Отделка:выполнена высококачественная отделка
Арендатор: Офис
Месячный платеж: 1 174 063
155 610 000 за все
650 000 за м2
Позвонить Подробнее

Доходность 8.70 %

Китай-город (6 мин. 🚶)
Москва, улица Покровка, 7/9-11к1
Жилой дом "улица Покровка, 7/9-11к1"
Тип: Арендный бизнес, Торговое помещение
Площадь: 315.10 м2
Мощность:30 кВт
Арендатор: Универмаг "Покровка 7/9"
Месячный платеж: 1 547 278
213 500 000 за все
677 563 за м2
Позвонить Подробнее

Доходность 10.81 %

Китай-город (4 мин. 🚶)
Москва, Улица Забелина, 1
Улица Забелина, 1
Тип: Арендный бизнес, Торговое помещение
Площадь: 139.00 м2
Мощность:39 кВт
Арендатор: Ресторан Чау Чау
Месячный платеж: 1 082 000
120 000 000 за все
863 309 за м2
Позвонить Подробнее