Арендный бизнес ЖК «1-й Ясеневский»

Арендный бизнес ЖК «1-й Ясеневский»
Округ: НАО
Тип: Арендный бизнес, Торговое помещение
Площадь: 48.30 м2 Метро: Тёплый стан (20 мин. 🚗)
Москва, Новомосковский административный округ, район Коммунарка, посёлок завода Мосрентген, 24
Позвоните по телефону +7 495 230-28-26, либо оставьте заявку на просмотр прямо сейчас и узнайте условия специального предложения по объекту.
загрузка карты...
Федотов Владислав Александрович

Объект ведет консультант:

Федотов Владислав Александрович

Общие
ID 62764
Тип сделки Продажа
Площадь 48.30
Тип объекта Жилой комплекс
Этаж 1
Всего этажей в здании 25
Метраж по этажам
Информация об объекте
Состояние объекта рабочее
Состояние блока отделка арендатора
Планировка Открытая
Перекрытия Железобетонные
Нюансы Отдельный вход
Торговая недвижимость
Линия домов 1 линия
Возможности Зона разгрузки,Витрины,Место для рекламы,Проходное место,Проездное место
Электр. мощность (кВт) 9
Коммерческие условия
За все 27 800 000 ₽
За м 2 575 569 ₽
Тип собственника Юридическое лицо
Арендный бизнес
Окупаемость 8 Лет 5 мес.
По первому месяцу 10 Лет 1 мес.
Доходность 11.88 %
По первому месяцу 9.92 %
Ставка аренды 230 000 ₽ в мес
Арендная ставка за кв\м в год 57 143 ₽
Арендатор ЗдесьАптека
Срок договора 5 Лет
Индексация 5 %

Описание объекта
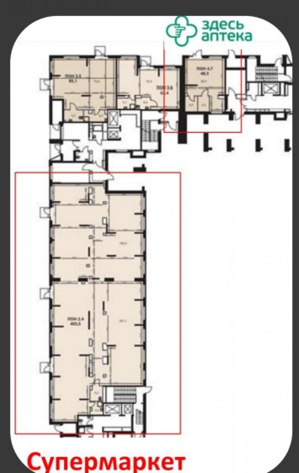
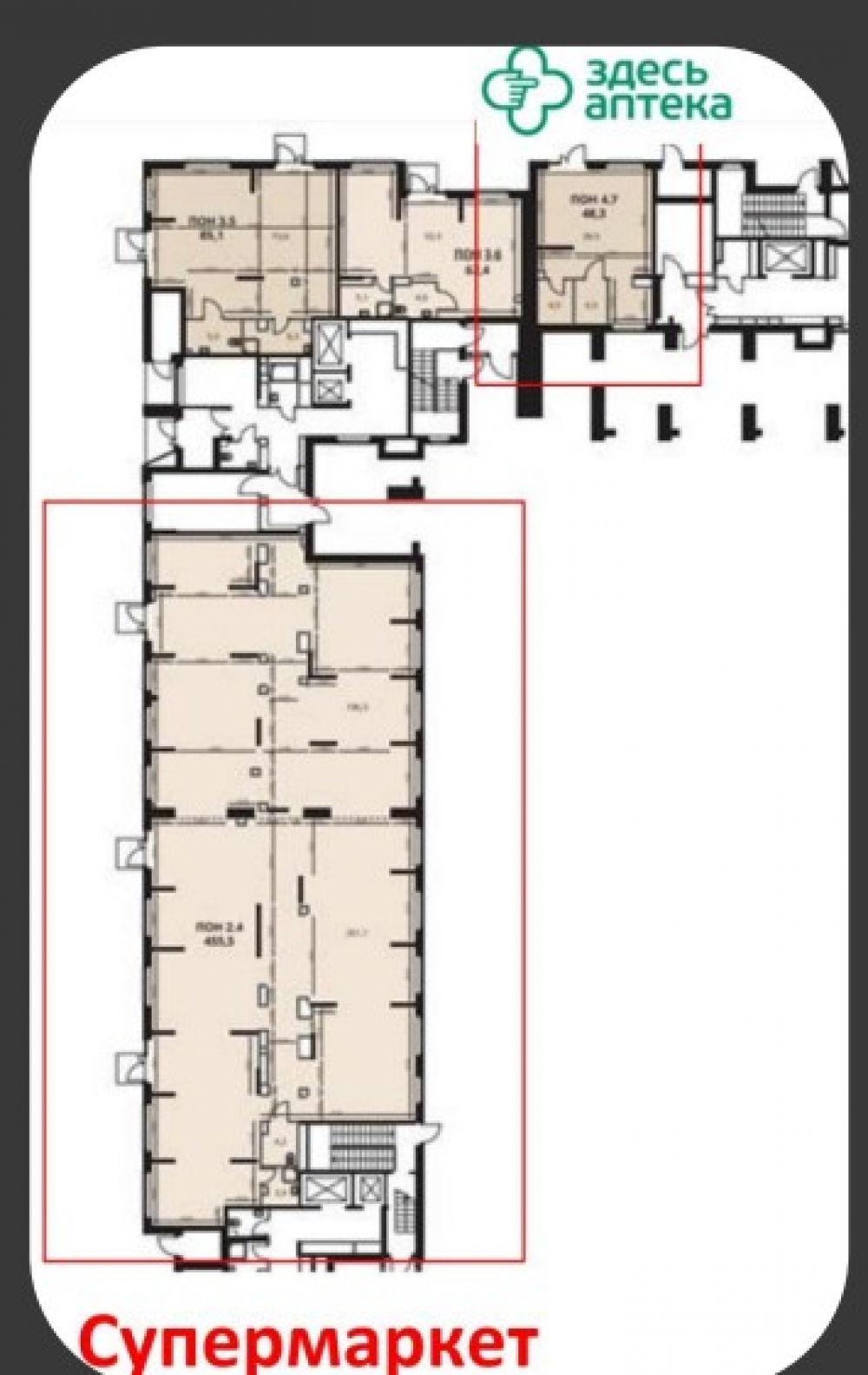
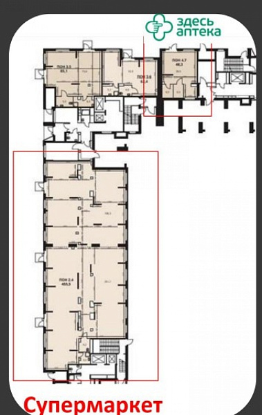
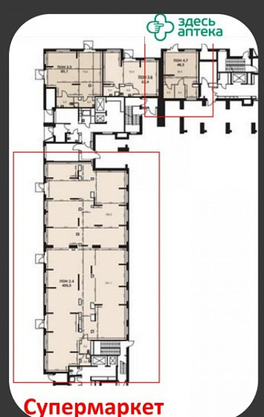
Помещение расположено в густонаселенном месте в ЖК «1-й Ясеневский» по адресу: г. Москва, пос. Мосрентген, квартал № 24, к 2
Рядом супермаркет. Через помещение пойдет трафик от метро. Напротив действующий магазин Магнит. Срок договора аренды - 5 лет. 3 мес каникулы, первый год - 170 000р, со второго - 230 000р, далее - безусловная индексация 5%. Коммунальные услуги оплачиваются отдельно.

Подписан ПДА. Ввод в эксплуатацию - 1 кв. 2026 г.

ХАРАКТЕРИСТИКИ
- Первая линия
-  Отдельный вход
-  Свободная планировка
-  Отделка от арендатора
-  Окна витринные по фасаду
-  Общая мощность – 9 кВт
-  Ключи: 1-й квартал 2026 г.
-  Рядом супермаркет

УСЛОВИЯ АРЕНДЫ
-  Арендатор – федеральная сеть аптек «Здесь аптека»
-  Договор аренды на 5 лет
-  Коммунальные платежи оплачиваются отдельно
-  Безусловная индексация 5 %

Нужна консультация по подбору арендного бизнеса?

Наши специалисты подберут для вас самые выгодные варианты для долгосрочного инвестирования,
помогут в сопровождении и сделки, проверят все юридические вопросы касаемо приобретения недвижимости.

* Нажимая на кнопку «Отправить», Вы даете согласие на обработку персональных данных в соответствии с Политикой конфиденциальности

Похожие объекты

Доходность 9.52 %

Бульвар Рокоссовского (18 мин. 🚶)
Москва, Погонный проезд, 14
Жилой дом "Погонный пр-д 14"
Тип: Арендный бизнес, Торговое помещение
Площадь: 48.00 м2
Мощность:15 кВт
Арендатор: Аптека Вита
Месячный платеж: 150 000
24 000 000 за все
500 000 за м2
Позвонить Подробнее

Доходность 9.23 %

Жулебино (3 мин. 🚶)
Москва, улица Авиаконструктора Миля, 8к1
Жилой дом "Авиаконструктора Миля 8к1"
Тип: Арендный бизнес, Торговое помещение
Площадь: 48.00 м2
Мощность:10 кВт
Арендатор: Ломбард "Аврора"
Месячный платеж: 300 000
38 990 000 за все
812 292 за м2
Позвонить Подробнее

Доходность 9.60 %

Ботанический сад (8 мин. 🚶)
Москва, Берёзовая аллея, 19к2
ЖК "Легендарный квартал"
Тип: Арендный бизнес, Торговое помещение
Площадь: 46.00 м2
Мощность:10 кВт
Арендатор: NailsUp
Месячный платеж: 120 000
20 000 000 за все
434 783 за м2
Позвонить Подробнее

Доходность 7.41 %

Пушкинская (3 мин. 🚶)
Москва, Большая Бронная улица, 25с3
Административное здание "Б. Бронная 25с3"
Тип: Арендный бизнес, Торговое помещение
Площадь: 46.50 м2
Арендатор: бутик одежды «THE KAS»
Месячный платеж: 1 175 000
190 350 000 за все
4 093 548 за м2
Позвонить Подробнее

Доходность 12.50 %

Ховрино (26 мин. 🚗)
Московская область, Химки, микрорайон Клязьма-Старбеево, квартал Международный, жилой комплекс 1-й Химкинский, к1.4
ЖК "1-й Химкинский"
Тип: Арендный бизнес, Торговое помещение
Площадь: 50.30 м2
Мощность:10 кВт
Арендатор: ЗдесьАптека
Месячный платеж: 230 000
26 200 000 за все
520 875 за м2
Позвонить Подробнее

Доходность 12.24 %

Тёплый стан (4 мин. 🚶)
Москва, Профсоюзная улица, 152к1
Административное «Профсоюзная 152 к2»
Тип: Арендный бизнес, Торговое помещение
Площадь: 45.00 м2
Мощность:15 кВт
Арендатор: Емельянов
Месячный платеж: 374 500
47 187 000 за все
1 048 600 за м2
Позвонить Подробнее

Доходность 12.00 %

Котельники (7 мин. 🚶)
Московская область, Люберцы, Шоссейная улица, 42
ЖК "Liberty"
Тип: Арендный бизнес, Торговое помещение
Площадь: 45.00 м2
Мощность:15 кВт
Арендатор: Хмель и Солод
Месячный платеж: 200 000
24 000 000 за все
533 333 за м2
Позвонить Подробнее

Доходность 10.00 %

Рязанский проспект (1 мин. 🚶)
Москва, 1-я Новокузьминская улица, 21к2
Жилое здание "1-я Новокузьминская ул. д.21 корп.2"
Тип: Арендный бизнес, Торговое помещение
Площадь: 48.30 м2
Арендатор: Сеть ломбардов «Залог Успеха»
Месячный платеж: 500 000
60 000 000 за все
1 242 236 за м2
Позвонить Подробнее

Доходность 8.82 %

Лесопарковая (4 мин. 🚶)
Москва, Варшавское шоссе, 170Ек5
ЖК "Зелёная вертикаль к5"
Тип: Арендный бизнес, Торговое помещение
Площадь: 50.00 м2
Мощность:17 кВт
Арендатор: Аптека ЗдравСити
Месячный платеж: 175 000
31 000 000 за все
620 000 за м2
Позвонить Подробнее

Доходность 15.19 %

Красные Ворота (10 мин. 🚶)
Москва, Садовая-Черногрязская улица, 13/3с1
Особняк «Садовая-Черногрязская 13/3 с1»
Тип: Арендный бизнес, Торговое помещение
Площадь: 43.20 м2
Мощность:30 кВт
Арендатор: Табак Напитки и Sеrviсе Stоrе.

Месячный платеж: 450 000
43 000 000 за все
995 370 за м2
Позвонить Подробнее

Доходность 8.70 %

Беляево (1 мин. 🚶)
Москва, Профсоюзная улица, 102с1
Торговый центр АРЕАЛ
Тип: Арендный бизнес, Торговое помещение
Площадь: 44.40 м2
Арендатор: Совкомбанк
Месячный платеж: 535 000
73 830 000 за все
1 662 838 за м2
Позвонить Подробнее

Доходность 10.34 %

Дмитровская (10 мин. 🚶)
Москва, Большая Новодмитровская улица, 23с2
Бизнес-центр «Большая Новодмитровская 23 С2»
Тип: Арендный бизнес, Офисы
Площадь: 46.00 м2
Отделка:отделка арендатора
Арендатор: Офис
Месячный платеж: 175 000
20 254 603 за все
440 317 за м2
Позвонить Подробнее

Доходность 10.62 %

(20 мин. 🚗)
Москва, район Троицк, 3-я Нововатутинская улица, 15к1
ЖК "Новые Ватутинки" 15к1
Тип: Арендный бизнес, Торговое помещение
Площадь: 64.00 м2
Арендатор: Аптека ЗдравСити
Месячный платеж: 200 000
28 000 000 за все
437 500 за м2
Позвонить Подробнее

Доходность 10.00 %

Домодедовская (6 мин. 🚗)
Москва, улица Генерала Белова, 9
Здание "улица Генерала Белова, 9"
Тип: Арендный бизнес, Торговое помещение
Площадь: 42.90 м2
Мощность:10 кВт
Арендатор: Пекарня
Месячный платеж: 200 000
30 000 000 за все
699 301 за м2
Позвонить Подробнее

Доходность 12.63 %

Бауманская (10 мин. 🚶)
Москва, улица Фридриха Энгельса, 25с3
Фридриха Энгельса, 25с3
Тип: Арендный бизнес, Торговое помещение
Площадь: 42.00 м2
Мощность:15 кВт
Арендатор: Салон красоты
Месячный платеж: 250 000
30 000 000 за все
714 286 за м2
Позвонить Подробнее

Доходность 9.84 %

Сухаревская (5 мин. 🚶)
Москва, Мещанская улица, 2
Жилое здание "Мещанская ул., 2"
Тип: Арендный бизнес, Торговое помещение
Площадь: 23.00 м2
Арендатор: Аптека
Месячный платеж: 186 000
25 300 000 за все
1 100 000 за м2
Позвонить Подробнее

Доходность 10.71 %

Отрадное (1 мин. 🚶)
Москва, Северный бульвар, 2
Жилое здание «Северный бульвар 2»
Тип: Арендный бизнес, Торговое помещение
Площадь: 33.00 м2
Арендатор: Кофейня
Месячный платеж: 210 000
29 000 000 за все
878 788 за м2
Позвонить Подробнее

Спец. предложение

Доходность 12.63 %

Верхние Котлы (2 мин. 🚶)
Москва, Варшавское шоссе, 18к2
Жилое здание "Варшавское шоссе, 18к2"
Тип: Арендный бизнес, Торговое помещение
Площадь: 77.30 м2
Арендатор: Красное и белое
Месячный платеж: 250 000
28 000 000 за все
362 225 за м2
Позвонить Подробнее

Спец. предложение

Доходность 8.00 %

Кутузовская (5 мин. 🚶)
Москва, Кутузовский проспект, 30
Жилое здание "Кутузовский проспект д. 30"
Тип: Арендный бизнес, Торговое помещение
Площадь: 96.80 м2
Мощность:15 кВт
Арендатор: Обменный пункт
Месячный платеж: 200 000
30 000 000 за все
309 917 за м2
Позвонить Подробнее

Доходность 19.05 %

(9 мин. 🚶)
Москва, Новомосковский административный округ, посёлок Внуково, Большая Внуковская улица, 15
Жилое здание "Большая Внуковская, 15"
Тип: Арендный бизнес, Торговое помещение
Площадь: 321.00 м2
Арендатор: Магазин эко-продукции ( топленого масла), Интернет-магазин, Вайлдберриз
Месячный платеж: 388 000
28 000 000 за все
87 227 за м2
Позвонить Подробнее

Доходность 15.38 %

Бульвар Рокоссовского (16 мин. 🚗)
Москва, Открытое шоссе, 19к1
Жилое здание "Открытое шоссе, 19к1"
Тип: Арендный бизнес, Торговое помещение
Площадь: 95.00 м2
Арендатор: Вайлдберриз
Месячный платеж: 250 000
25 500 000 за все
268 421 за м2
Позвонить Подробнее

Доходность 16.44 %

Бауманская (2 мин. 🚶)
Москва, Бакунинская улица, 4-6с2
Жилой дом "Бакунинкская 4-5с2"
Тип: Арендный бизнес, Торговое помещение
Площадь: 131.00 м2
Арендатор: Салоны красоты Nurisha и Gr cosmo
Месячный платеж: 283 000
26 500 000 за все
202 290 за м2
Позвонить Подробнее

Доходность 27.91 %

Багратионовская (14 мин. 🚶)
Москва, 2-я Филёвская улица, 8к1
Жилое здание "2-я Филёвская улица, 8к1"
Тип: Арендный бизнес, Торговое помещение
Площадь: 160.00 м2
Арендатор: Ночной клуб
Месячный платеж: 700 000
30 000 000 за все
187 500 за м2
Позвонить Подробнее

Доходность 7.84 %

Полянка (3 мин. 🚶)
Москва, 1-й Хвостов переулок, 3Ас2
1-й Хвостов переулок, 3Ас2
Тип: Арендный бизнес, Торговое помещение
Площадь: 22.30 м2
Мощность:15 кВт
Арендатор: Детская школа языков
Месячный платеж: 175 000
26 760 000 за все
1 200 000 за м2
Позвонить Подробнее

Доходность 14.63 %

Тёплый стан (4 мин. 🚶)
Москва, Новоясеневский проспект, 1Вс1
МФК "Новоясеневский проспект, 1Вс1"
Тип: Арендный бизнес, Торговое помещение
Площадь: 740.00 м2
Мощность:30 кВт
Арендатор: Автозапчасти
Месячный платеж: 870 000
87 400 000 за все
118 108 за м2
Позвонить Подробнее

Доходность 10.17 %

Тёплый стан ( мин. 🚗)
Москва, улица Генерала Тюленева, 4Ас1
ОСЗ "улица Генерала Тюленева, 4Ас1"
Тип: Арендный бизнес, Торговое помещение
Площадь: 1594.40 м2
Мощность:150 кВт
Арендатор: Множество разных
Месячный платеж: 2 550 000
300 000 000 за все
188 159 за м2
Позвонить Подробнее

Доходность 10.81 %

Тёплый стан (4 мин. 🚶)
Закрытая продажа #61015
Тип: Арендный бизнес, Торговое помещение
Площадь: 2135.00 м2
Мощность:60 кВт
Арендатор: Производственная компания
Месячный платеж: 2 360 000
320 000 000 за все
149 883 за м2
Позвонить Подробнее

Доходность 11.65 %

Тёплый стан (4 мин. 🚶)
Закрытая продажа #61031
Тип: Арендный бизнес, Торговое помещение
Площадь: 2375.90 м2
Мощность:60 кВт
Арендатор: Спортивная организация
Месячный платеж: 3 350 000
450 000 000 за все
189 402 за м2
Позвонить Подробнее

Доходность 12.24 %

Тёплый стан (4 мин. 🚶)
Москва, Профсоюзная улица, 152к1
Административное «Профсоюзная 152 к2»
Тип: Арендный бизнес, Торговое помещение
Площадь: 45.00 м2
Мощность:15 кВт
Арендатор: Емельянов
Месячный платеж: 374 500
47 187 000 за все
1 048 600 за м2
Позвонить Подробнее

Доходность 11.76 %

Тёплый стан (4 мин. 🚶)
Москва, Профсоюзная улица, 152к1
Административное «Профсоюзная 152 к2»
Тип: Арендный бизнес, Торговое помещение
Площадь: 23.30 м2
Мощность:10 кВт
Арендатор: ТабакВэйп
Месячный платеж: 230 000
30 360 000 за все
1 303 004 за м2
Позвонить Подробнее

Доходность 11.54 %

Тёплый стан (4 мин. 🚶)
Москва, Профсоюзная улица, 152к1
Административное «Профсоюзная 152 к2»
Тип: Арендный бизнес, Торговое помещение
Площадь: 40.00 м2
Мощность:20 кВт
Арендатор: Кафе пекарня
Месячный платеж: 300 000
37 800 000 за все
945 000 за м2
Позвонить Подробнее

Доходность 12.00 %

Тёплый стан (4 мин. 🚶)
Москва, Профсоюзная улица, 152к1
Административное «Профсоюзная 152 к2»
Тип: Арендный бизнес, Торговое помещение
Площадь: 85.50 м2
Мощность:60 кВт
Арендатор: бар ресторан «БАРПИВОТЕКА»
Месячный платеж: 480 000
57 600 000 за все
673 684 за м2
Позвонить Подробнее