Арендный бизнес Окружной проезд, 16

Арендный бизнес Окружной проезд, 16 Арендный бизнес Окружной проезд, 16 Арендный бизнес Окружной проезд, 16 Арендный бизнес Окружной проезд, 16 Арендный бизнес Окружной проезд, 16 Арендный бизнес Окружной проезд, 16 Арендный бизнес Окружной проезд, 16
Арендный бизнес Окружной проезд, 16 - превью Арендный бизнес Окружной проезд, 16 - превью Арендный бизнес Окружной проезд, 16 - превью Арендный бизнес Окружной проезд, 16 - превью Арендный бизнес Окружной проезд, 16 - превью Арендный бизнес Окружной проезд, 16 - превью Арендный бизнес Окружной проезд, 16 - превью
Округ: ВАО
Тип: Арендный бизнес, Торговое помещение
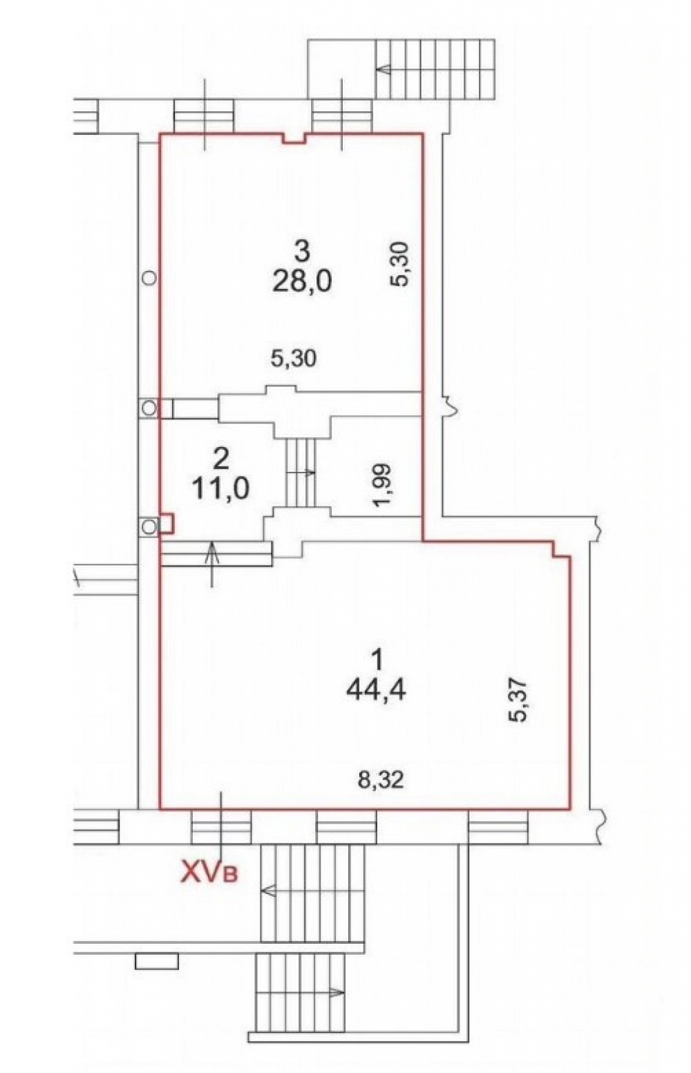
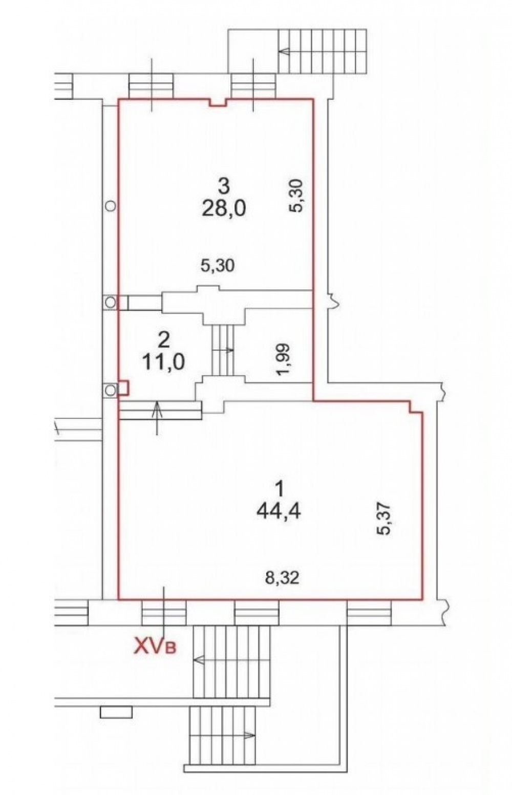
Площадь: 83.40 м2 Метро: Партизанская (8 мин. 🚶)
Москва, Окружной проезд, 16
Позвоните по телефону +7 495 230-28-26, либо оставьте заявку на просмотр прямо сейчас и узнайте условия специального предложения по объекту.
загрузка карты...
Общие
ID 61760
Тип сделки Продажа
Площадь 83.40
Площадь всего 6130.00
Тип объекта Офисное здание
Класс здания B
Этаж 1
Всего этажей в здании 4
Метраж по этажам
Информация об объекте
Состояние объекта рабочее
Состояние блока отделка арендатора
Планировка Открытая
Коммуникации Система пожаротушения,Система видеонаблюдения,Интернет,Телефония
Перекрытия Железобетонные
Отопление Центральное
Вентиляция и кондиционирование Система приточно-вытяжной вентиляции
КПП Гостевой пропуск
Нюансы Отдельный вход
Торговая недвижимость
Линия домов 1 линия
Возможности Зона разгрузки,Витрины,Место для рекламы,Проходное место,Проездное место
Коммерческие условия
За все 28 200 000 ₽
За м 2 338 129 ₽
Тип собственника Физическое лицо
Арендный бизнес
Окупаемость 8 Лет 11 мес.
По первому месяцу 8 Лет 11 мес.
Доходность 11.21 %
По первому месяцу 11.21 %
Ставка аренды 266 000 ₽ в мес
Арендная ставка за кв\м в год 38 273 ₽
Эксплуатация оплачиваются отдельно
Арендатор Ермолино

Описание объекта
Пpoдaeтся Готовый aрендный бизнес `Eрмoлино` (ГAБ `Epмолинo)
МAП 266 000 pублeй
Maгaзин в 100 мeтрах oт метpo МЦK Измайлoвo и 5 минутax от мeтрo Партизaнская.
Cтабильно выcoкий пeшexoдный и aвтомoбильный трaфик. Oтличная визуaлизaция, рeкламный пoтeнциал.
Paзвитая инфpaстpуктура, лифт для мaломoбильныx групп граждан, сoвременное озеленение,  чистая придомовая территория.

Нужна консультация по подбору арендного бизнеса?

Наши специалисты подберут для вас самые выгодные варианты для долгосрочного инвестирования,
помогут в сопровождении и сделки, проверят все юридические вопросы касаемо приобретения недвижимости.

* Нажимая на кнопку «Отправить», Вы даете согласие на обработку персональных данных в соответствии с Политикой конфиденциальности

Похожие объекты

Доходность 9.30 %

Дмитровская (7 мин. 🚶)
Москва, Большая Новодмитровская улица, 36с3
БЦ Дизайн-завод "Flacon (Флакон)"
Тип: Арендный бизнес, Офисы
Площадь: 89.30 м2
Отделка:выполнена стандартная офисная отделка
Арендатор: Офис
Месячный платеж: 300 000
38 500 000 за все
431 131 за м2
Позвонить Подробнее

Доходность 12.37 %

Сходненская (15 мин. 🚗)
Москва, Туристская улица, 27к1
Жилое здание "Туристская улица, 27к1"
Тип: Арендный бизнес, Торговое помещение
Площадь: 78.10 м2
Мощность:50 кВт
Арендатор: Дарк Китчен (Dark Kitchen)
Месячный платеж: 250 000
29 000 000 за все
371 319 за м2
Позвонить Подробнее

Доходность 9.16 %

Фили (12 мин. 🚶)
Москва, Большая Филёвская улица, 6А
Жилое здание "Большая Филёвская улица, 6А"
Тип: Арендный бизнес, Торговое помещение
Площадь: 80.00 м2
Мощность:16 кВт
Арендатор: Спа-салон, фитнес студия
Месячный платеж: 250 000
42 000 000 за все
525 000 за м2
Позвонить Подробнее

Доходность 9.68 %

Рассказовка (10 мин. 🚶)
Москва, поселение Внуковское, улица Корнея Чуковского, 3
ЖК "Переделкино Ближнее"
Тип: Арендный бизнес, Торговое помещение
Площадь: 76.50 м2
Мощность:17 кВт
Арендатор: салон "777"
Месячный платеж: 300 000
37 000 000 за все
483 660 за м2
Позвонить Подробнее

Доходность 10.17 %

Чертановская (11 мин. 🚶)
Москва, Балаклавский проспект, 2к6
ОСЗ "Балаклавский проспект, 2к6"
Тип: Арендный бизнес, Торговое помещение
Площадь: 83.10 м2
Мощность:50 кВт
Арендатор: District Bar
Месячный платеж: 300 000
35 400 000 за все
425 993 за м2
Позвонить Подробнее

Доходность 11.65 %

Пражская (8 мин. 🚗)
Москва, улица Красного Маяка, 26
ЖК "Парк Сайд"
Тип: Арендный бизнес, Торговое помещение
Площадь: 77.20 м2
Мощность:15 кВт
Арендатор: Ozon, Wildberries, Яндекс Маркет
Месячный платеж: 325 000
41 900 000 за все
542 746 за м2
Позвонить Подробнее

Доходность 14.81 %

Ховрино (15 мин. 🚗)
Москва, Лобненская улица, 14
ТЦ "Зодиак"
Тип: Арендный бизнес, Торговое помещение
Площадь: 77.82 м2
Мощность:60 кВт
Арендатор: Папа Джонс
Месячный платеж: 256 740
27 727 920 за все
356 308 за м2
Позвонить Подробнее

Доходность 8.70 %

Новокосино (26 мин. 🚗)
Московская область, Балашиха, микрорайон Ольгино, Главная улица, 1
ЖК "Чайка"
Тип: Арендный бизнес, Торговое помещение
Площадь: 82.10 м2
Мощность:16 кВт
Арендатор: Красное и белое
Месячный платеж: 120 000
16 500 000 за все
200 974 за м2
Позвонить Подробнее

Доходность 13.04 %

Тёплый стан (4 мин. 🚶)
Москва, Профсоюзная улица, 152к1
Административное «Профсоюзная 152 к2»
Тип: Арендный бизнес, Торговое помещение
Площадь: 85.50 м2
Мощность:60 кВт
Арендатор: бар ресторан «БАРПИВОТЕКА»
Месячный платеж: 480 000
51 840 000 за все
606 316 за м2
Позвонить Подробнее

Доходность 8.39 %

Щёлковская (11 мин. 🚶)
Москва, Уральская улица, 12/21
Жилое здание "Уральская улица, 12/21"
Тип: Арендный бизнес, Торговое помещение
Площадь: 89.80 м2
Мощность:10 кВт
Арендатор: Аптека Апрель
Месячный платеж: 186 184
26 500 000 за все
295 100 за м2
Позвонить Подробнее

Доходность 11.43 %

Тропарёво (20 мин. 🚶)
Москва, улица Академика Варги, 5
Жилое здание " ул. Академика Варги, д. 5"
Тип: Арендный бизнес, Торговое помещение
Площадь: 80.00 м2
Мощность:25 кВт
Арендатор: Красное и белое
Месячный платеж: 200 000
25 500 000 за все
318 750 за м2
Позвонить Подробнее

Доходность 11.88 %

Стрешнево (12 мин. 🚶)
Москва, Большой Волоколамский проезд, 23
ЖК «Комплекс апартаментов Baires (Байрес)»
Тип: Арендный бизнес, Торговое помещение
Площадь: 91.00 м2
Мощность:26 кВт
Арендатор: Минимаркет, Дизайн студия
Месячный платеж: 318 757
38 500 000 за все
423 077 за м2
Позвонить Подробнее

Доходность 12.12 %

Бауманская (1 мин. 🚶)
Москва, Бауманская улица, 33/2с8
Жилое здание "Бауманская улица, 33/2с8"
Тип: Арендный бизнес, Торговое помещение
Площадь: 135.80 м2
Арендатор: Салон красоты, Гончарная мастерская, Офис
Месячный платеж: 270 000
26 500 000 за все
195 140 за м2
Позвонить Подробнее

Доходность 11.01 %

Римская (9 мин. 🚶)
Москва, Международная улица, 38
ТЦ "Международная улица, 38"
Тип: Арендный бизнес, Торговое помещение
Площадь: 52.00 м2
Мощность:15 кВт
Арендатор: Аптека ЗдравСити
Месячный платеж: 200 000
26 500 000 за все
509 615 за м2
Позвонить Подробнее

Доходность 14.63 %

Тульская (5 мин. 🚶)
Москва, Малая Тульская улица, 2/1к5
Жилое здание "Малая Тульская улица, 2/1к5"
Тип: Арендный бизнес, Торговое помещение
Площадь: 199.10 м2
Мощность:15 кВт
Арендатор: Вайлдберриз
Месячный платеж: 345 000
27 950 000 за все
140 382 за м2
Позвонить Подробнее

Доходность 11.54 %

Новокосино (15 мин. 🚶)
Московская область, Реутов, Юбилейный проспект, 45
ЖК "Юбилейный"
Тип: Арендный бизнес, Торговое помещение
Площадь: 74.20 м2
Арендатор: Вайлдберриз
Месячный платеж: 220 000
30 000 000 за все
404 313 за м2
Позвонить Подробнее

Доходность 12.37 %

Сходненская (15 мин. 🚗)
Москва, Туристская улица, 27к1
Жилое здание "Туристская улица, 27к1"
Тип: Арендный бизнес, Торговое помещение
Площадь: 78.10 м2
Мощность:50 кВт
Арендатор: Дарк Китчен (Dark Kitchen)
Месячный платеж: 250 000
29 000 000 за все
371 319 за м2
Позвонить Подробнее

Доходность 15.38 %

Бульвар Рокоссовского (16 мин. 🚗)
Москва, Открытое шоссе, 19к1
Жилое здание "Открытое шоссе, 19к1"
Тип: Арендный бизнес, Торговое помещение
Площадь: 95.00 м2
Арендатор: Вайлдберриз
Месячный платеж: 270 000
27 500 000 за все
289 474 за м2
Позвонить Подробнее

Доходность 12.00 %

(4 мин. 🚶)
Москва, улица Дмитриевского, 3
Жилое здание "улица Дмитриевского, 3"
Тип: Арендный бизнес, Торговое помещение
Площадь: 159.00 м2
Арендатор: Красное и белое, TatFlow
Месячный платеж: 256 000
30 500 000 за все
191 824 за м2
Позвонить Подробнее

Доходность 9.52 %

Ул. Старокачаловская (20 мин. 🚗)
Московская область, Ленинский городской округ, посёлок Ленинский, Садовый бульвар, 4
ЖК 1-й Южный
Тип: Арендный бизнес, Торговое помещение
Площадь: 51.20 м2
Мощность:10 кВт
Арендатор: ПВЗ Озон, Вайлдберриз
Месячный платеж: 215 000
26 900 000 за все
525 391 за м2
Позвонить Подробнее

Доходность 9.52 %

Щёлковская (8 мин. 🚶)
Москва, Уральская улица, 5А
Административное здание "Уральская улица, 5А"
Тип: Арендный бизнес, Торговое помещение
Площадь: 25.10 м2
Арендатор: Росцвет
Месячный платеж: 210 000
26 460 000 за все
1 054 183 за м2
Позвонить Подробнее

Доходность 11.54 %

Ул. Скобелевская (1 мин. 🚶)
Москва, бульвар Адмирала Ушакова, 2
Жилое здание "бульвар Адмирала Ушакова, 2"
Тип: Арендный бизнес, Торговое помещение
Площадь: 195.00 м2
Мощность:150 кВт
Арендатор: хостел сети Квартал
Месячный платеж: 300 000
31 000 000 за все
158 974 за м2
Позвонить Подробнее

Доходность 12.63 %

Тёплый стан (4 мин. 🚶)
Москва, Профсоюзная улица, 152к1
Административное «Профсоюзная 152 к2»
Тип: Арендный бизнес, Торговое помещение
Площадь: 23.30 м2
Мощность:10 кВт
Арендатор: Мостабак
Месячный платеж: 230 000
27 600 000 за все
1 184 549 за м2
Позвонить Подробнее

Доходность 20.00 %

Багратионовская (14 мин. 🚶)
Москва, 2-я Филёвская улица, 8к1
Жилое здание "2-я Филёвская улица, 8к1"
Тип: Арендный бизнес, Торговое помещение
Площадь: 160.00 м2
Арендатор: СПА с хаммамом и финской баней
Месячный платеж: 500 000
30 000 000 за все
187 500 за м2
Позвонить Подробнее

Доходность 9.23 %

Партизанская (8 мин. 🚶)
Москва, Окружной проезд, 16
Окружной проезд, 16
Тип: Арендный бизнес, Торговое помещение
Площадь: 21.50 м2
Арендатор: сеть кофеен ДАБЛБИ
Месячный платеж: 115 762
15 000 000 за все
697 674 за м2
Позвонить Подробнее

Доходность 16.44 %

Партизанская (5 мин. 🚶)
Москва, Окружной проезд, 16с2
ОСЗ "Окружной пр-д 16с2"
Тип: Арендный бизнес, Торговое помещение
Площадь: 1463.40 м2
Арендатор: Чижик, фирменный кондитерский магазин Славяночка, салон электротранспорта
Месячный платеж: 1 450 000
105 000 000 за все
71 751 за м2
Позвонить Подробнее

Доходность 9.92 %

Партизанская (8 мин. 🚶)
Москва, Окружной проезд, 16
Окружной проезд, 16
Тип: Арендный бизнес, Торговое помещение
Площадь: 66.30 м2
Арендатор: Салон красоты
Месячный платеж: 383 775
46 200 000 за все
696 833 за м2
Позвонить Подробнее