Арендный бизнес Жилое здание "Ленинградский проспект, 52"

Арендный бизнес Жилое здание
Округ: САО
Тип: Арендный бизнес, Торговое помещение
Площадь: 1690.80 м2 Метро: Аэропорт (6 мин. 🚶)
Москва, Ленинградский проспект, 52
Позвоните по телефону +7 495 230-28-26, либо оставьте заявку на просмотр прямо сейчас и узнайте условия специального предложения по объекту.
загрузка карты...
Общие
ID 63434
Тип сделки Продажа
Площадь 1690.80
Площадь всего 23680.00
Тип объекта Жилое здание
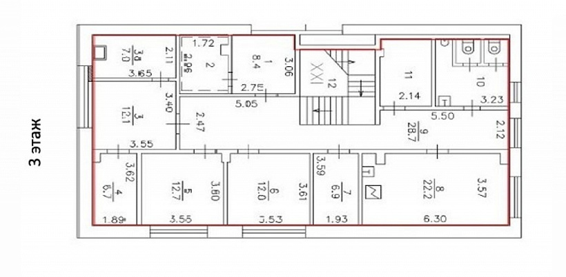
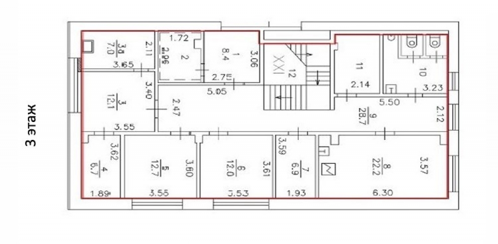
Этаж 1 - 3
Всего этажей в здании 14
Метраж по этажам
Этаж: 1 - 463 м2
Этаж: 2 - 1094.1 м2
Этаж: 3 - 135.7 м2
Информация об объекте
Состояние объекта рабочее
Состояние блока отделка арендатора
Планировка Смешанная
Перекрытия Железобетонные
Нюансы Отдельный вход
Торговая недвижимость
Линия домов 1 линия
Возможности Зона разгрузки,Витрины,Место для рекламы,Проходное место,Проездное место
Электр. мощность (кВт) 100
Коммерческие условия
За все 395 000 000 ₽
За м 2 233 617 ₽
Тип собственника Юридическое лицо
Арендный бизнес
Окупаемость 8 Лет 8 мес.
По первому месяцу 8 Лет 8 мес.
Доходность 11.54 %
По первому месяцу 11.54 %
Ставка аренды 3 800 000 ₽ в мес
Арендная ставка за кв\м в год 26 969 ₽
Арендатор Медси

Описание объекта
Помещение полностью занято одним федеральным арендатором - ГК Медси.
Долгосрочные перспективы роста дохода за счет высокого трафика локации и премиального формата арендатора.

- Витринные окна
- Городская парковка перед входом
- Автономные мультисплит - системы
- Центральные городские коммуникации
- Доступ 24/7.

Локация:
- 600 м до метро "Аэропорт"
- 1.3 км до Петровского парка
- Рядом метро "ЦСКА"
- Мощный автомобильный и пешеходный трафик

МАП - 3 800 000 руб. с НДС.
Собственность оформлена. Без обременений. Быстрый выход на сделку.

Нужна консультация по подбору арендного бизнеса?

Наши специалисты подберут для вас самые выгодные варианты для долгосрочного инвестирования,
помогут в сопровождении и сделки, проверят все юридические вопросы касаемо приобретения недвижимости.

* Нажимая на кнопку «Отправить», Вы даете согласие на обработку персональных данных в соответствии с Политикой конфиденциальности

Похожие объекты

Доходность 13.64 %

Борисово (7 мин. 🚶)
Москва, улица Мусы Джалиля, 4А
Здание "Мусы Джалиля, 4А"
Тип: Арендный бизнес, Торговое помещение
Площадь: 1663.40 м2
Мощность:170 кВт
Арендатор: Яндекс.Лавка, Хостел, Билайн, Мегафон, МТС, Энергоарктика, водомат, Пятёрочка
Месячный платеж: 2 332 900
238 000 000 за все
143 080 за м2
Позвонить Подробнее

Доходность 15.19 %

Верхние Лихоборы Лихоборы (5 мин. 🚶)
Москва, проезд Черепановых, 29
ОЗС " проезд Черепановых, 29"
Тип: Арендный бизнес, Офисы
Площадь: 1848.80 м2
Отделка:отделка арендатора
Арендатор: Хостел
Месячный платеж: 1 940 000
203 370 000 за все
110 001 за м2
Позвонить Подробнее

Доходность 11.32 %

Нагорная (15 мин. 🚶)
Москва, Севастопольский проспект, 37
Жилое здание
Тип: Арендный бизнес, Торговое помещение
Площадь: 1537.30 м2
Арендатор: Пятёрочка, ПВЗ Озон, Автозапчасти, Яндекс Маркет
Месячный платеж: 1 712 667
180 000 000 за все
117 088 за м2
Позвонить Подробнее

Доходность 10.53 %

Бабушкинская (30 мин. 🚗)
Московская область, Мытищи, Хлебозаводская улица, 4
ОСЗ "г. Мытищи, ул. Хлебозаводская, 4"
Тип: Арендный бизнес, Торговое помещение
Площадь: 1787.00 м2
Мощность:150 кВт
Арендатор: Станция технического обслуживания
Месячный платеж: 1 900 000
280 000 000 за все
156 687 за м2
Позвонить Подробнее

Доходность 9.52 %

Тёплый стан ( мин. 🚗)
Москва, улица Генерала Тюленева, 4Ас1
ОСЗ "улица Генерала Тюленева, 4Ас1"
Тип: Арендный бизнес, Торговое помещение
Площадь: 1594.40 м2
Мощность:150 кВт
Арендатор: Множество разных
Месячный платеж: 2 550 000
318 800 000 за все
199 950 за м2
Позвонить Подробнее

Доходность 16.67 %


Московская область, Электросталь, улица Мира, 29
ТЦ "Электросталь, улица Мира, 29"
Тип: Арендный бизнес, Торговое помещение
Площадь: 1845.00 м2
Мощность:278 кВт
Арендатор: Магнит, Теле2, кальянная "Мята Лаунж", Аптека ЗдравСити, Хозтовары, Мясной магазин, Сантехника, Табак, Пивной магазин
Месячный платеж: 2 026 807
165 000 000 за все
89 431 за м2
Позвонить Подробнее

Доходность 11.43 %

Строгино (8 мин. 🚶)
Закрытая продажа #63695
Тип: Арендный бизнес, Торговое помещение
Площадь: 948.00 м2
Арендатор: Пятёрочка, Инград, Россети
Месячный платеж: 3 072 000
370 000 000 за все
390 295 за м2
Позвонить Подробнее

Доходность 16.44 %

Бауманская (7 мин. 🚶)
Закрытая продажа #38047
Тип: Арендный бизнес, Торговое помещение
Площадь: 1128.00 м2
Мощность:90 кВт
Арендатор: Азбука Вкуса
Месячный платеж: 4 950 000
360 000 000 за все
319 149 за м2
Позвонить Подробнее

Доходность 14.29 %

Планерная (20 мин. 🚗)
Москва, Соколово-Мещерская улица, 29
Жилое здание "Соколово-Мещерская, 29"
Тип: Арендный бизнес, Торговое помещение
Площадь: 3921.40 м2
Мощность:495 кВт
Арендатор: Магнит, Аптека, Фитнес-клуб, Офис, Даркстор Магнит, Множество разных
Месячный платеж: 5 016 667
420 000 000 за все
107 105 за м2
Позвонить Подробнее

Доходность 10.43 %

Волоколамская (7 мин. 🚶)
Москва, Пятницкое шоссе, 8
Жилое здание "Пятницкое шоссе, 8"
Тип: Арендный бизнес, Торговое помещение
Площадь: 2462.50 м2
Мощность:235 кВт
Арендатор: Магнит
Месячный платеж: 3 400 000
390 000 000 за все
158 376 за м2
Позвонить Подробнее

Доходность 11.43 %

Динамо (10 мин. 🚶)
Москва, Беговая аллея, 3А
Административное здание "Беговая аллея, 3А"
Тип: Арендный бизнес, Торговое помещение
Площадь: 1239.00 м2
Арендатор: Пятёрочка, Кафе , ПВЗ Озон
Месячный платеж: 3 160 316
404 000 000 за все
326 069 за м2
Позвонить Подробнее

Доходность 8.00 %

Тульская (2 мин. 🚶)
Москва, Гамсоновский переулок, 2с11
Бизнес-центр "Рябовская мануфактура" Ryabov LOFT
Тип: Арендный бизнес, Офисы
Площадь: 753.30 м2
Отделка:отделка в стиле Loft
Арендатор: офис финансовой компании
Месячный платеж: 2 568 002
384 183 000 за все
510 000 за м2
Позвонить Подробнее

Доходность 10.91 %

Озёрная (16 мин. 🚶)
Закрытая продажа #62967
Тип: Арендный бизнес, Торговое помещение
Площадь: 1356.00 м2
Мощность:250 кВт
Арендатор: Перекресток
Месячный платеж: 3 840 000
420 000 000 за все
309 735 за м2
Позвонить Подробнее

Доходность 10.43 %

Кропоткинская (3 мин. 🚶)
Москва, Улица Остоженка, 10
Бизнес-центр "Остоженка"
Тип: Арендный бизнес, Торговое помещение
Площадь: 333.00 м2
Мощность:50 кВт
Арендатор: Азбука Вкуса (Daily)
Месячный платеж: 2 700 000
400 000 000 за все
1 201 201 за м2
Позвонить Подробнее

Доходность 10.00 %

Улица 1905 года (7 мин. 🚶)
Москва, улица Красная Пресня, 23кБс1
Жилое здание "улица Красная Пресня, 23кБс1"
Тип: Арендный бизнес, Торговое помещение
Площадь: 634.60 м2
Арендатор: Пятёрочка
Месячный платеж: 3 500 000
420 000 000 за все
661 834 за м2
Позвонить Подробнее

Доходность 10.53 %

Проспект Мира (10 мин. 🚶)
Москва, Большая Переяславская улица, 10
Жилое здание «Большая Переяславская 10»
Тип: Арендный бизнес, Торговое помещение
Площадь: 2661.00 м2
Мощность:193 кВт
Арендатор: Пятёрочка, ПВЗ Озон, Цветы, Стоматология, Салон красоты, Студия танцев, Мебельный магазин, Квест, Пиццерия
Месячный платеж: 3 500 000
399 000 000 за все
149 944 за м2
Позвонить Подробнее

Доходность 9.09 %

Аэропорт (1 мин. 🚶)
Москва, Ленинградский проспект, 62с26
ОСЗ "Ленинградский пр-т., д. 62 стр.26"
Тип: Арендный бизнес, Торговое помещение
Площадь: 14.40 м2
Арендатор: Ломбард Gold Premium
Месячный платеж: 200 000
26 400 000 за все
1 833 333 за м2
Позвонить Подробнее

Доходность 11.76 %

(9 мин. 🚶)
Москва, Новомосковский административный округ, посёлок Внуково, Большая Внуковская улица, 15
Жилое здание "Большая Внуковская, 15"
Тип: Арендный бизнес, Торговое помещение
Площадь: 321.00 м2
Арендатор: Вайлдберриз
Месячный платеж: 250 000
33 000 000 за все
102 804 за м2
Позвонить Подробнее

Доходность 9.84 %

(25 мин. 🚗)
Москва, Новомосковский административный округ, район Внуково, жилой комплекс Родные Кварталы, 3.3
ЖК "Родные кварталы"
Тип: Арендный бизнес, Торговое помещение
Площадь: 250.00 м2
Арендатор: Магнит
Месячный платеж: 697 480
85 000 000 за все
340 000 за м2
Позвонить Подробнее

Доходность 15.00 %

Аэропорт (5 мин. 🚶)
Москва, Ленинградский проспект, 47
Административное здание AIR Space
Тип: Арендный бизнес, Торговое помещение
Площадь: 209.10 м2
Мощность:42 кВт
Арендатор: Компьютерный клуб
Месячный платеж: 443 911
47 000 000 за все
224 773 за м2
Позвонить Подробнее

Доходность 10.00 %

Аэропорт (5 мин. 🚶)
Москва, Ленинградский проспект, 47
Административное здание AIR Space
Тип: Арендный бизнес, Торговое помещение
Площадь: 163.10 м2
Арендатор: Винный магазин "Винлаб"
Месячный платеж: 525 000
79 000 000 за все
484 365 за м2
Позвонить Подробнее