Арендный бизнес Жилое здание "Люсиновская улица, 72"

Арендный бизнес Жилое здание Арендный бизнес Жилое здание Арендный бизнес Жилое здание Арендный бизнес Жилое здание Арендный бизнес Жилое здание Арендный бизнес Жилое здание Арендный бизнес Жилое здание Арендный бизнес Жилое здание
Арендный бизнес Жилое здание Арендный бизнес Жилое здание Арендный бизнес Жилое здание Арендный бизнес Жилое здание Арендный бизнес Жилое здание Арендный бизнес Жилое здание Арендный бизнес Жилое здание Арендный бизнес Жилое здание
Округ: ЮАО
Тип: Арендный бизнес, Торговое помещение
Площадь: 1192.50 м2 Метро: Тульская (7 мин. 🚶)
Москва, Люсиновская улица, 72
Позвоните по телефону +7 495 230-28-26, либо оставьте заявку на просмотр прямо сейчас и узнайте условия специального предложения по объекту.
загрузка карты...
Кириченко Константин Юрьевич

Объект ведет консультант:

Кириченко Константин Юрьевич

Общие
ID 14807
Тип сделки Продажа
Площадь 1192.50
Площадь всего 16788.00
Тип объекта Жилое здание
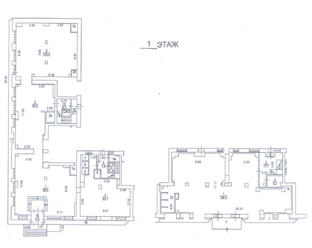
Этаж -1 - 1
Всего этажей в здании 8
Метраж по этажам
Этаж: -1 - 520,3 м2
Этаж: 1 - 672,2 м2
Информация об объекте
Состояние объекта рабочее
Состояние блока отделка арендатора
Планировка Открытая
Нюансы Отдельный вход,ПСН
Торговая недвижимость
Линия домов 1 линия
Возможности Зона разгрузки,Витрины,Место для рекламы,Проходное место,Проездное место
Электр. мощность (кВт) 250
Коммерческие условия
За все 300 000 000 ₽
За м 2 251 572 ₽
Тип собственника Юридическое лицо
Арендный бизнес
Окупаемость 12 Лет 11 мес.
По первому месяцу 12 Лет 11 мес.
Доходность 7.74 %
По первому месяцу 7.74 %
Ставка аренды 1 946 288 ₽ в мес
Арендная ставка за кв\м в год 19 585 ₽
Эксплуатация оплачиваются отдельно
Арендатор ВТБ
Срок договора 5 Лет

Описание объекта
ГОТОВЫЙ БИЗНЕС С ВТБ

Локация мечты:
• Улица Люсиновская (ЮАО Москвы)
• 7 минут до метро «Тульская»
• Первая линия домов
• Густонаселенный район (более 20 000 домохозяйств в радиусе 1 км)

Площади объекта:
• Общая: 1192,5 м²
• 1 этаж: 672,2 м² (арендатор ВТБ)
• Подвал: 520,3 м² (потенциал доп.дохода)

Ключевые преимущества:
• Надежный арендатор – ВТБ
• Отдельный вход и витринные окна
• Мощность: 250 кВт
• Высокий трафик
• Развитая инфраструктура

Дополнительный доход:
Возможность сдачи подвального помещения под:
• Складские помещения
• Развлекательный центр
• Сервисные услуги

Инвестиционная привлекательность:
• Гарантированный доход от ВТБ
• Потенциал увеличения прибыли
• Престижный район Москвы
• Стабильные арендные платежи

Продажа с НДС!

Наша оценка
Локация
Цена
Техническое оснащение
Состояние
Метраж
Общая оценка 5

Нужна консультация по подбору арендного бизнеса?

Наши специалисты подберут для вас самые выгодные варианты для долгосрочного инвестирования,
помогут в сопровождении и сделки, проверят все юридические вопросы касаемо приобретения недвижимости.

* Нажимая на кнопку «Отправить», Вы даете согласие на обработку персональных данных в соответствии с Политикой конфиденциальности

Похожие объекты

Доходность 8.57 %

(15 мин. 🚶)
Московская область, Люберцы, улица Льва Толстого, 16А
Торговый центр "Люберцы, улица Льва Толстого, 16А"
Тип: Арендный бизнес, Торговое помещение
Площадь: 1089.60 м2
Арендатор: МЯСНОВ, ОТДОХНИ, Салон красоты, Ателье ремонта бытовой техники, Медицинский центр, Вайлдберриз, Кафе
Месячный платеж: 1 000 000
140 000 000 за все
128 488 за м2
Позвонить Подробнее

Доходность 11.21 %

Строгино (48 мин. 🚗)
Московская область, муниципальный округ Истра, деревня Корсаково, 12А
ОСЗ "Истра, деревня Корсаково, 12А"
Тип: Арендный бизнес, Торговое помещение
Площадь: 1120.00 м2
Мощность:150 кВт
Арендатор: Магнит, Красное и белое, Вайлдберриз, Кафе Бакинская кухня, Сыр и колбасы, Табак, Бахча, Мясной домик, Суши Вок
Месячный платеж: 1 108 500
118 000 000 за все
105 357 за м2
Позвонить Подробнее

Доходность 9.60 %

Молодёжная (20 мин. 🚗)
Закрытая продажа #32593
Тип: Арендный бизнес, Торговое помещение
Площадь: 1100.00 м2
Арендатор: Магнолия, Множество разных, Аптека, Ресторан Шале Барвиха
Месячный платеж: 4 400 000
550 000 000 за все
500 000 за м2
Позвонить Подробнее

Доходность 10.71 %

Дмитровская (19 мин. 🚶)
Закрытая продажа #63352
Тип: Арендный бизнес, Торговое помещение
Площадь: 1263.00 м2
Мощность:200 кВт
Арендатор: Аптека, Студия танцев, Пятёрочка, Ателье-Химчистка, кафе «Андерсон»
Месячный платеж: 2 325 717
260 000 000 за все
205 859 за м2
Позвонить Подробнее

Доходность 12.37 %

Нижегородская (23 мин. 🚶)
Москва, Авиамоторная улица, 48
Складской комплекс "Авиамоторная улица, 48"
Тип: Арендный бизнес, Индустриальная недвижимость
Площадь: 1300.00 м2
Арендатор: Автосервис, Склад, Офис
Месячный платеж: 1 450 000
140 000 000 за все
107 692 за м2
Позвонить Подробнее

Доходность 9.92 %

Перово (1 мин. 🚶)
Москва, Зелёный проспект, 19
Торгово-офисный комплекс Зеленый проспект, 19
Тип: Арендный бизнес, Торговое помещение
Площадь: 1246.00 м2
Мощность:125 кВт
Арендатор: Rostic`s, Ломбард, Совкомбанк, Улыбка радуги, Пекарня
Месячный платеж: 4 300 000
520 000 000 за все
417 335 за м2
Позвонить Подробнее

Доходность 11.11 %

Войковская (16 мин. 🚗)
Москва, Улица Космонавта Волкова, 6А
Офисное здание «Космонавта Волкова 6а»
Тип: Арендный бизнес, Торговое помещение
Площадь: 1123.90 м2
Мощность:250 кВт
Арендатор: Перекресток
Месячный платеж: 2 205 840
291 170 877 за все
259 072 за м2
Позвонить Подробнее

Доходность 16.44 %

Бауманская (7 мин. 🚶)
Закрытая продажа #38047
Тип: Арендный бизнес, Торговое помещение
Площадь: 1128.00 м2
Мощность:90 кВт
Арендатор: Азбука Вкуса
Месячный платеж: 4 950 000
360 000 000 за все
319 149 за м2
Позвонить Подробнее

Доходность 12.24 %

Царицыно (9 мин. 🚶)
Москва, Каспийская улица, 22к1
ОСЗ "Каспийская улица, 22к1"
Тип: Арендный бизнес, Торговое помещение
Площадь: 1134.80 м2
Мощность:70 кВт
Арендатор: Пятёрочка, Множество разных
Месячный платеж: 1 802 002
175 000 000 за все
154 212 за м2
Позвонить Подробнее

Доходность 12.00 %

Чкаловская (2 мин. 🚶)
Закрытая продажа #63104
Тип: Арендный бизнес, Офисы
Площадь: 1300.00 м2
Отделка:качественная отделка
Арендатор: Офис
Месячный платеж: 5 958 333
590 000 000 за все
453 846 за м2
Позвонить Подробнее

Доходность 10.81 %

Аннино (10 мин. 🚶)
Москва, Варшавское шоссе, 145к7
Встроено-пристроенное «Варшавское 145 к7»
Тип: Арендный бизнес, Торговое помещение
Площадь: 1190.10 м2
Мощность:150 кВт
Арендатор: склад инструментов, натяжные потолки, Автозапчасти
Месячный платеж: 1 494 980
164 900 000 за все
138 560 за м2
Позвонить Подробнее

Доходность 15.58 %

Владыкино (14 мин. 🚶)
Москва, Алтуфьевское шоссе, 14
Жилой дом "Алтуфьевское ш. 14"
Тип: Арендный бизнес, Торговое помещение
Площадь: 1100.00 м2
Мощность:200 кВт
Арендатор: натяжные потолки, свет - производство - шоу-рум, бытовые услуги
Месячный платеж: 1 200 000
120 000 000 за все
109 091 за м2
Позвонить Подробнее

Доходность 6.98 %

Проспект Мира (3 мин. 🚶)
Москва, Проспект Мира, 40
Бизнес-центр «Garden Mir»
Тип: Арендный бизнес, Торговое помещение
Площадь: 368.80 м2
Мощность:60 кВт
Арендатор: Rostic`s
Месячный платеж: 1 921 500
329 400 000 за все
893 167 за м2
Позвонить Подробнее

Доходность 15.00 %

Планерная (15 мин. 🚗)
Московская область, Химки, Молодёжная улица, 15А
Здание "Химки, Молодёжная улица, 15А"
Тип: Арендный бизнес, Торговое помещение
Площадь: 3500.00 м2
Мощность:250 кВт
Арендатор: Пятёрочка, Тинькофф, Торговые компании
Месячный платеж: 3 600 000
330 000 000 за все
94 286 за м2
Позвонить Подробнее

Доходность 11.11 %

Ул. Скобелевская ( мин. 🚗)
Московская область, Ленинский городской округ, Симферопольское шоссе, 25-й километр, с4
ОСЗ "Симферопольское ш. 24-й км . с4"
Тип: Арендный бизнес, Торговое помещение
Площадь: 416.00 м2
Мощность:330 кВт
Арендатор: Вкусно и точка
Месячный платеж: 2 876 000
310 000 000 за все
745 192 за м2
Позвонить Подробнее

Доходность 11.11 %

Войковская (16 мин. 🚗)
Москва, Улица Космонавта Волкова, 6А
Офисное здание «Космонавта Волкова 6а»
Тип: Арендный бизнес, Торговое помещение
Площадь: 1123.90 м2
Мощность:250 кВт
Арендатор: Перекресток
Месячный платеж: 2 205 840
291 170 877 за все
259 072 за м2
Позвонить Подробнее

Доходность 7.64 %

Лубянка
Москва, Никольская улица, 25
ТЦ «Наутилус»
Тип: Арендный бизнес, Торговое помещение
Площадь: 67.50 м2
Арендатор: One Price Coffee
Месячный платеж: 1 752 320
273 362 000 за все
4 049 807 за м2
Позвонить Подробнее

Доходность 10.81 %

Кутузовская (5 мин. 🚶)
Москва, Кутузовский проспект, 35
Жилой дом "Кутузовский проспект, 35"
Тип: Арендный бизнес, Торговое помещение
Площадь: 517.60 м2
Мощность:120 кВт
Арендатор: Магнолия
Месячный платеж: 2 151 043
280 000 000 за все
540 958 за м2
Позвонить Подробнее

Доходность 9.52 %

Тёплый стан ( мин. 🚗)
Москва, улица Генерала Тюленева, 4Ас1
ОСЗ "улица Генерала Тюленева, 4Ас1"
Тип: Арендный бизнес, Торговое помещение
Площадь: 1594.40 м2
Мощность:150 кВт
Арендатор: Множество разных
Месячный платеж: 2 550 000
318 800 000 за все
199 950 за м2
Позвонить Подробнее

Доходность 10.17 %

Тульская (2 мин. 🚶)
Москва, Гамсоновский переулок, 2с11
Бизнес-центр "Рябовская мануфактура" Ryabov LOFT
Тип: Арендный бизнес, Офисы
Площадь: 570.80 м2
Отделка:отделка в стиле Loft
Арендатор: Офис рекламного агентства
Месячный платеж: 2 378 333
279 692 000 за все
490 000 за м2
Позвонить Подробнее

Доходность 8.70 %

Смоленская (Филевская) Смоленская (Арбатско-Покровская) (8 мин. 🚶)
Москва, Смоленская-Сенная площадь, 27с1
Жилое здание «Смоленская-Сенная 27 с1»
Тип: Арендный бизнес, Торговое помещение
Площадь: 237.50 м2
Арендатор: Альфа-Банк
Месячный платеж: 1 837 500
330 000 000 за все
1 389 474 за м2
Позвонить Подробнее

Доходность 11.43 %

Сретенский бульвар (5 мин. 🚶)
Москва, Улица Сретенка, 9
Жилое здание "Сретенка 9"
Тип: Арендный бизнес, Торговое помещение
Площадь: 287.20 м2
Мощность:135 кВт
Арендатор: Аптека РИГЛА, МЯСНОВ
Месячный платеж: 2 283 775
315 000 000 за все
1 096 797 за м2
Позвонить Подробнее

Доходность 14.46 %

Новокосино (29 мин. 🚗)
Закрытая продажа #62323
Тип: Арендный бизнес, Торговое помещение
Площадь: 1439.00 м2
Мощность:300 кВт
Арендатор: Пятёрочка, Ермолино, Куриный дом, Аленка, Копирка, Множество разных
Месячный платеж: 3 800 000
315 000 000 за все
218 902 за м2
Позвонить Подробнее

Доходность 10.17 %

(8 мин. 🚗)
Москва, Просторная улица, 7с1
Здание "Просторная улица, 7с1"
Тип: Арендный бизнес, Торговое помещение
Площадь: 1872.00 м2
Мощность:250 кВт
Арендатор: Пятёрочка, детский сад КосмоКидс, Самокат, Озон Фреш
Месячный платеж: 2 391 000
280 000 000 за все
149 573 за м2
Позвонить Подробнее

Доходность 15.38 %

Тульская (10 мин. 🚶)
Москва, Варшавское шоссе, 1с1-2
Бизнес-центр W Plaza (В Плаза)
Тип: Арендный бизнес, Торговое помещение
Площадь: 230.00 м2
Мощность:60 кВт
Арендатор: Кафе
Месячный платеж: 323 000
25 000 000 за все
108 696 за м2
Позвонить Подробнее

Доходность 9.68 %

Тульская (10 мин. 🚶)
Москва, Варшавское шоссе, 1с1-2
Бизнес-центр W Plaza (В Плаза)
Тип: Арендный бизнес, Торговое помещение
Площадь: 230.00 м2
Мощность:70 кВт
Арендатор: Столовая
Месячный платеж: 365 000
44 900 000 за все
195 217 за м2
Позвонить Подробнее

Доходность 14.63 %

Тульская (5 мин. 🚶)
Москва, Малая Тульская улица, 2/1к5
Жилое здание "Малая Тульская улица, 2/1к5"
Тип: Арендный бизнес, Торговое помещение
Площадь: 199.10 м2
Мощность:15 кВт
Арендатор: Вайлдберриз
Месячный платеж: 345 000
27 950 000 за все
140 382 за м2
Позвонить Подробнее

Доходность 10.81 %

Тульская (17 мин. 🚗)
Москва, Новоданиловская набережная, 6к1
Бизнес-центр «Данилов Плаза»
Тип: Арендный бизнес, Торговое помещение
Площадь: 237.30 м2
Мощность:120 кВт
Арендатор: Ресторан ProLunch
Месячный платеж: 770 000
125 000 000 за все
526 759 за м2
Позвонить Подробнее

Доходность 8.11 %

Тульская (17 мин. 🚗)
Москва, Новоданиловская набережная, 6к1
Бизнес-центр «Данилов Плаза»
Тип: Арендный бизнес, Торговое помещение
Площадь: 353.50 м2
Мощность:130 кВт
Арендатор: Пятёрочка
Месячный платеж: 984 000
183 000 000 за все
517 680 за м2
Позвонить Подробнее

Доходность 9.09 %

Тульская (2 мин. 🚶)
Москва, Гамсоновский переулок, 2с11
Бизнес-центр "Рябовская мануфактура" Ryabov LOFT
Тип: Арендный бизнес, Офисы
Площадь: 428.80 м2
Отделка:отделка в стиле Loft
Арендатор: Офис дизайн студии
Месячный платеж: 1 599 266
210 112 000 за все
490 000 за м2
Позвонить Подробнее

Доходность 10.71 %

Тульская (12 мин. 🚗)
Москва, 2-й Павелецкий проезд, 5с2
ОСЗ в ЖК "RIVERDALE APARTMENT"
Тип: Арендный бизнес, Торговое помещение
Площадь: 73.30 м2
Мощность:30 кВт
Арендатор: RD Cafe
Месячный платеж: 195 000
27 000 000 за все
368 349 за м2
Позвонить Подробнее

Доходность 12.63 %

Тульская (4 мин. 🚶)
Москва, Большая Тульская улица, 2
Жилое здание «Большая Тульская 2»
Тип: Арендный бизнес, Торговое помещение
Площадь: 512.00 м2
Мощность:35 кВт
Арендатор: Nofer
Месячный платеж: 1 650 000
199 000 000 за все
388 672 за м2
Позвонить Подробнее

Доходность 9.23 %

Тульская (2 мин. 🚶)
Москва, Гамсоновский переулок, 2с11
Бизнес-центр "Рябовская мануфактура" Ryabov LOFT
Тип: Арендный бизнес, Офисы
Площадь: 1249.80 м2
Отделка:отделка в стиле Loft
Арендатор: проектный офис АНО
Месячный платеж: 4 823 560
624 900 000 за все
500 000 за м2
Позвонить Подробнее

Доходность 10.91 %

Тульская (2 мин. 🚶)
Москва, Гамсоновский переулок, 2с11
Бизнес-центр "Рябовская мануфактура" Ryabov LOFT
Тип: Арендный бизнес, Офисы
Площадь: 84.70 м2
Отделка:выполнена стандартная офисная отделка
Арендатор: офис строительной компании
Месячный платеж: 316 200
34 727 000 за все
410 000 за м2
Позвонить Подробнее

Доходность 8.11 %

Тульская (2 мин. 🚶)
Москва, Гамсоновский переулок, 2с11
Бизнес-центр "Рябовская мануфактура" Ryabov LOFT
Тип: Арендный бизнес, Торговое помещение
Площадь: 415.40 м2
Арендатор: Столовая
Месячный платеж: 1 327 507
195 238 000 за все
470 000 за м2
Позвонить Подробнее

Доходность 8.00 %

Тульская (2 мин. 🚶)
Москва, Гамсоновский переулок, 2с11
Бизнес-центр "Рябовская мануфактура" Ryabov LOFT
Тип: Арендный бизнес, Офисы
Площадь: 753.30 м2
Отделка:отделка в стиле Loft
Арендатор: офис финансовой компании
Месячный платеж: 2 568 002
384 183 000 за все
510 000 за м2
Позвонить Подробнее