Арендный бизнес ЖК «Жемчужина Зеленограда»

Объект успешно реализован!
Арендный бизнес ЖК «Жемчужина Зеленограда» Арендный бизнес ЖК «Жемчужина Зеленограда»
Арендный бизнес ЖК «Жемчужина Зеленограда» - превью Арендный бизнес ЖК «Жемчужина Зеленограда» - превью
Округ:
Тип: Арендный бизнес, Торговое помещение
Площадь: 396.00 м2 Метро: Ховрино (30 мин. 🚗)
Москва, Зеленоград, Георгиевский проспект, к1936
Объект успешно реализован, но у нас есть много других интересных предложений. Позвоните по телефону +7 495 230-28-26, либо оставьте заявку на подбор прямо сейчас и получите список подходящих для вас объектов.
загрузка карты...
Общие
ID 60133
Тип сделки Продажа
Площадь 396.00
Тип объекта Жилой комплекс
Этаж 1
Всего этажей в здании 15
Метраж по этажам
Информация об объекте
Состояние объекта рабочее
Состояние блока отделка арендатора
Планировка Открытая
Перекрытия Железобетонные
Нюансы Отдельный вход
Новостройка Новостройка
Торговая недвижимость
Линия домов 1 линия
Возможности Витрины,Место для рекламы,Проходное место,Проездное место
Коммерческие условия
За все 90 000 000 ₽
За м 2 227 273 ₽
Арендный бизнес
Окупаемость 7 Лет 2 мес.
По первому месяцу 8 Лет 4 мес.
Доходность 13.95 %
По первому месяцу 12.00 %
Ставка аренды 900 000 ₽ в мес
Арендная ставка за кв\м в год 27 273 ₽
Эксплуатация оплачиваются отдельно
Арендатор Чижик
Срок договора 10 Лет
Индексация 5 %

Описание объекта
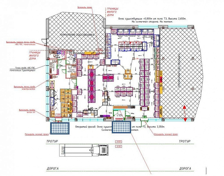
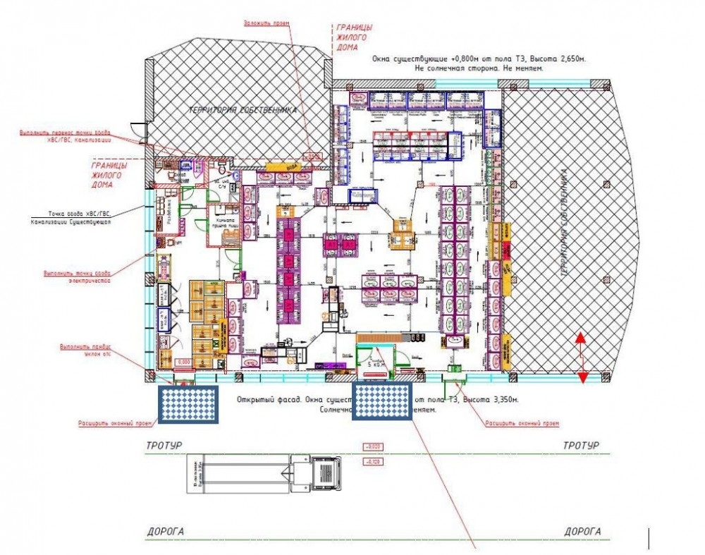
Предлагается к покупке прибыльный готовый арендный бизнес с федеральным сетевым арендатором "Чижик". Магазин успешно функционирует за счет расположения в плотном жилом массиве нового ЖК. В качестве дополнительных преимуществ: специализированное помещение для размещения супермаркета, витринные окна, потолки 5,5м, центральные коммуникации, сдано в долгосрочную аренду.

Наша оценка
Локация
Цена
Техническое оснащение
Состояние
Метраж
Общая оценка 5

Нужна консультация по подбору арендного бизнеса?

Наши специалисты подберут для вас самые выгодные варианты для долгосрочного инвестирования,
помогут в сопровождении и сделки, проверят все юридические вопросы касаемо приобретения недвижимости.

* Нажимая на кнопку «Отправить», Вы даете согласие на обработку персональных данных в соответствии с Политикой конфиденциальности

Похожие объекты

Доходность 12.00 %

Бунинская аллея (26 мин. 🚗)
Москва, Новомосковский административный округ, район Щербинка, квартал № 103, жилой комплекс Подольские Кварталы, к4
ЖК "Подольские Кварталы" к4
Тип: Арендный бизнес, Торговое помещение
Площадь: 407.00 м2
Мощность:73 кВт
Арендатор: Пятёрочка
Месячный платеж: 1 424 000
171 000 000 за все
420 147 за м2
Позвонить Подробнее

Доходность 9.30 %

Перово (60 мин. 🚗)
Московская область, городской округ Щёлково, рабочий посёлок Монино, Железнодорожная улица, 35с8
ОСЗ "Монино, Железнодорожная улица, 35с8"
Тип: Арендный бизнес, Торговое помещение
Площадь: 433.00 м2
Мощность:40 кВт
Арендатор: Множество разных
Месячный платеж: 390 000
50 000 000 за все
115 473 за м2
Позвонить Подробнее

Доходность 12.00 %

(21 мин. 🚗)
Москва, поселение Марушкинское, жилой комплекс Квартал Западный
ЖК " Квартал Западный"
Тип: Арендный бизнес, Торговое помещение
Площадь: 371.00 м2
Мощность:67 кВт
Арендатор: Пятёрочка
Месячный платеж: 1 300 000
156 000 000 за все
420 485 за м2
Позвонить Подробнее

Доходность 12.24 %

Домодедовская (6 мин. 🚗)
Москва, Каширское шоссе, 144к2
ОСЗ "Каширское ш. 144к2"
Тип: Арендный бизнес, Торговое помещение
Площадь: 420.00 м2
Мощность:65 кВт
Арендатор: Даркстор Озон
Месячный платеж: 1 100 000
118 800 000 за все
282 857 за м2
Позвонить Подробнее

Доходность 17.91 %

Озёрная (15 мин. 🚶)
Москва, Большая Очаковская улица, 23/8
Жилой дом "Большая Очаковская 23/8"
Тип: Арендный бизнес, Торговое помещение
Площадь: 390.00 м2
Мощность:20 кВт
Арендатор: кладовкин
Месячный платеж: 500 000
46 900 000 за все
120 256 за м2
Позвонить Подробнее

Доходность 8.11 %

Тульская (2 мин. 🚶)
Москва, Гамсоновский переулок, 2с11
Бизнес-центр "Рябовская мануфактура" Ryabov LOFT
Тип: Арендный бизнес, Торговое помещение
Площадь: 415.40 м2
Арендатор: Столовая
Месячный платеж: 1 327 507
195 238 000 за все
470 000 за м2
Позвонить Подробнее

Доходность 9.09 %

Тульская (2 мин. 🚶)
Москва, Гамсоновский переулок, 2с11
Бизнес-центр "Рябовская мануфактура" Ryabov LOFT
Тип: Арендный бизнес, Офисы
Площадь: 428.80 м2
Отделка:отделка в стиле Loft
Арендатор: Офис дизайн студии
Месячный платеж: 1 599 266
210 112 000 за все
490 000 за м2
Позвонить Подробнее

Доходность 11.21 %


Московская область, Солнечногорск, Красная улица, 64
Жилое здание "Солнечногорск, Красная улица, 64"
Тип: Арендный бизнес, Торговое помещение
Площадь: 430.00 м2
Арендатор: Магнит
Месячный платеж: 850 000
110 000 000 за все
255 814 за м2
Позвонить Подробнее

Доходность 10.71 %

Селигерская (10 мин. 🚗)
Москва, Солнечногорская улица, 23к1
Жилое здание "Солнечногорская улица, 23к1"
Тип: Арендный бизнес, Торговое помещение
Площадь: 373.00 м2
Арендатор: Пятёрочка
Месячный платеж: 800 000
110 000 000 за все
294 906 за м2
Позвонить Подробнее

Доходность 9.38 %

Саларьево (25 мин. 🚗)
Москва, Новомосковский административный округ, район Внуково, улица Медовая Долина, 2
ЖК «Баркли Медовая долина»
Тип: Арендный бизнес, Торговое помещение
Площадь: 372.00 м2
Мощность:74 кВт
Арендатор: Пятёрочка
Месячный платеж: 800 000
130 000 000 за все
349 462 за м2
Позвонить Подробнее

Доходность 11.01 %

Бульвар Дмитрия Донского (20 мин. 🚗)
Московская область, Ленинский городской округ, посёлок городского типа Боброво, ЖК Восточное Бутово, 42
ЖК "Восточное Бутово" к42
Тип: Арендный бизнес, Торговое помещение
Площадь: 409.00 м2
Арендатор: Магнит
Месячный платеж: 1 228 200
144 000 000 за все
352 078 за м2
Позвонить Подробнее

Доходность 11.54 %

(19 мин. 🚗)
Москва, Новомосковский административный округ, район Внуково, деревня Большое Свинорье, ЖК Квартал Западный, к3
ЖК "Квартал Западный" к. 3
Тип: Арендный бизнес, Торговое помещение
Площадь: 371.00 м2
Арендатор: Пятёрочка
Месячный платеж: 1 300 000
163 800 000 за все
441 509 за м2
Позвонить Подробнее

Доходность 13.79 %

(30 мин. 🚗)
Москва, Новомосковский административный округ, Филимонковский район, жилой комплекс Эдельвейс, 93
ЖК "Эдельвейс"
Тип: Арендный бизнес, Торговое помещение
Площадь: 475.00 м2
Арендатор: Пятёрочка, ПВЗ
Месячный платеж: 845 000
85 000 000 за все
178 947 за м2
Позвонить Подробнее

Доходность 11.11 %

Кузьминки (7 мин. 🚶)
Москва, улица Юных Ленинцев, 71к1
ОСЗ "улица Юных Ленинцев, 71к1"
Тип: Арендный бизнес, Торговое помещение
Площадь: 290.50 м2
Арендатор: Магнолия
Месячный платеж: 900 000
97 200 000 за все
334 596 за м2
Позвонить Подробнее

Доходность 13.04 %

Молодёжная (10 мин. 🚶)
Москва, Полоцкая улица, 23
Жилой дом "Полоцкая 23"
Тип: Арендный бизнес, Торговое помещение
Площадь: 286.00 м2
Мощность:35 кВт
Арендатор: Московская школа програмистов
Месячный платеж: 750 000
84 000 000 за все
293 706 за м2
Позвонить Подробнее

Доходность 8.70 %

Волгоградский проспект (8 мин. 🚶)
Москва, Автомобильный проезд, 4
Апарт - комплекс NICE LОFT
Тип: Арендный бизнес, Торговое помещение
Площадь: 122.56 м2
Арендатор: СитиСтрой
Месячный платеж: 620 000
85 500 000 за все
697 617 за м2
Позвонить Подробнее

Доходность 12.63 %

Марьина Роща (3 мин. 🚶)
Москва, улица Сущёвский Вал, 53
Административный Центр на 1й линии ТТК
Тип: Арендный бизнес, Торговое помещение
Площадь: 70.50 м2
Мощность:80 кВт
Арендатор: Ресторан Бобби-Кю
Месячный платеж: 720 000
86 400 000 за все
1 225 532 за м2
Позвонить Подробнее

Доходность 10.00 %

(10 мин. 🚶)
Москва, улица Софьи Ковалевской, 6
Жилое здание "Софьи Ковалевской 6"
Тип: Арендный бизнес, Торговое помещение
Площадь: 354.00 м2
Мощность:30 кВт
Арендатор: школа английского языка
Месячный платеж: 800 000
96 000 000 за все
271 186 за м2
Позвонить Подробнее

Доходность 7.14 %

Полянка (5 мин. 🚶)
Москва, улица Большая Полянка, 9
ЖК «Cloud Nine»
Тип: Арендный бизнес, Торговое помещение
Площадь: 72.80 м2
Мощность:15 кВт
Арендатор: Красное и белое
Месячный платеж: 360 000
84 000 000 за все
1 153 846 за м2
Позвонить Подробнее

Доходность 10.08 %

Братиславская (5 мин. 🚶)
Москва, улица Перерва, 52
Жилое здание "Перерва, 52"
Тип: Арендный бизнес, Торговое помещение
Площадь: 230.00 м2
Мощность:55 кВт
Арендатор: Винный магазин "Винлаб", ПВЗ Озон, Табак, Шаурма, Дом быта
Месячный платеж: 700 000
83 000 000 за все
360 870 за м2
Позвонить Подробнее

Доходность 11.21 %

Деловой центр Деловой центр (МЦК) (7 мин. 🚶)
Москва, улица Антонова-Овсеенко, 4
Жилое здание "Антонова-Овсеенко, 4"
Тип: Арендный бизнес, Торговое помещение
Площадь: 210.10 м2
Мощность:35 кВт
Арендатор: Самокат
Месячный платеж: 840 000
89 754 720 за все
427 200 за м2
Позвонить Подробнее

Доходность 11.11 %

Петровско-Разумовская (25 мин. 🚗)
Москва, Малая Ботаническая улица, 3
Малая Ботаническая, 3
Тип: Арендный бизнес, Торговое помещение
Площадь: 349.60 м2
Мощность:100 кВт
Арендатор: Магнолия
Месячный платеж: 862 067
93 000 000 за все
266 018 за м2
Позвонить Подробнее

Доходность 9.02 %

(37 мин. 🚗)
Московская область, Одинцовский городской округ, посёлок городского типа Заречье, Луговая улица, 3
ЖК "Заречье парк"
Тип: Арендный бизнес, Торговое помещение
Площадь: 207.00 м2
Мощность:35 кВт
Арендатор: Самокат
Месячный платеж: 615 000
81 200 000 за все
392 271 за м2
Позвонить Подробнее

Доходность 9.09 %

Каширская (11 мин. 🚶)
Москва, Пролетарский проспект, 6к2с2
Здание "Пролетарский проспект, 6к2с2"
Тип: Арендный бизнес, Торговое помещение
Площадь: 225.00 м2
Мощность:100 кВт
Арендатор: Автосервис
Месячный платеж: 742 500
98 000 000 за все
435 556 за м2
Позвонить Подробнее

Спец. предложение

Доходность 10.26 %

Ховрино (21 мин. 🚗)
Москва, Ленинградское шоссе, 229Ак1
ЖК "Молжаниново"
Тип: Арендный бизнес, Торговое помещение
Площадь: 47.00 м2
Арендатор: Аптека РИГЛА
Месячный платеж: 200 000
29 000 000 за все
617 021 за м2
Позвонить Подробнее

Доходность 6.25 %

Ховрино (25 мин. 🚗)
Московская область, Химки, Береговая улица, 2
Жилой дом "Береговая 2"
Тип: Арендный бизнес, Торговое помещение
Площадь: 122.50 м2
Мощность:25 кВт
Арендатор: Офис
Месячный платеж: 120 000
23 000 000 за все
187 755 за м2
Позвонить Подробнее

Доходность 15.79 %

Ховрино (30 мин. 🚗)
Московская область, городской округ Солнечногорск, деревня Литвиново, 1/3
Складской комплекс "Литвиново 1/3"
Тип: Арендный бизнес, Индустриальная недвижимость
Площадь: 1044.00 м2
Арендатор: Х5 Логистик
Месячный платеж: 2 500 000
245 000 000 за все
234 674 за м2
Позвонить Подробнее

Доходность 11.54 %

Ховрино (26 мин. 🚗)
Московская область, Химки, микрорайон Клязьма-Старбеево, квартал Международный, жилой комплекс 1-й Химкинский, к1.4
ЖК "1-й Химкинский"
Тип: Арендный бизнес, Торговое помещение
Площадь: 50.30 м2
Мощность:10 кВт
Арендатор: ЗдесьАптека
Месячный платеж: 230 000
29 000 000 за все
576 541 за м2
Позвонить Подробнее

Доходность 10.81 %

Ховрино (32 мин. 🚗)
Московская область, городской округ Химки, деревня Поярково, Клушинская улица, с1
ОСЗ "городской округ Химки, деревня Поярково, Клушинская улица, с1"
Тип: Арендный бизнес, Торговое помещение
Площадь: 837.00 м2
Арендатор: Пятёрочка, Чижик
Месячный платеж: 950 000
130 000 000 за все
155 317 за м2
Позвонить Подробнее

Доходность 9.38 %

Ховрино (13 мин. 🚗)
Московская область, Долгопрудный, Лихачёвское шоссе, 11А
ТЦ «Лихачевский»
Тип: Арендный бизнес, Торговое помещение
Площадь: 3000.00 м2
Арендатор: Множество разных
Месячный платеж: 5 500 000
700 000 000 за все
233 333 за м2
Позвонить Подробнее

Доходность 10.71 %

Ховрино (50 мин. 🚗)
Московская область, Солнечногорск, Почтовая улица, 12
Жилой дом "Почтовая, 12"
Тип: Арендный бизнес, Торговое помещение
Площадь: 474.10 м2
Арендатор: Пятёрочка
Месячный платеж: 500 000
55 990 000 за все
118 097 за м2
Позвонить Подробнее

Доходность 11.88 %

Ховрино (3 мин. 🚶)
Москва, улица Дыбенко, 7/1
ЖК «Discovery park»
Тип: Арендный бизнес, Торговое помещение
Площадь: 19000.00 м2
Арендатор: Множество разных
Месячный платеж: 34 953 873
3 500 000 000 за все
184 211 за м2
Позвонить Подробнее

Доходность 11.01 %

Ховрино (7 мин. 🚶)
Москва, улица Дыбенко, 28с2
ОСЗ "Дыбенко улица дом 28 стр. 2"
Тип: Арендный бизнес, Торговое помещение
Площадь: 833.70 м2
Мощность:120 кВт
Арендатор: Магнит, Планета Здоровья, Магнит Косметик
Месячный платеж: 1 950 000
260 000 000 за все
311 863 за м2
Позвонить Подробнее

Доходность 12.00 %

Ховрино (20 мин. 🚗)
Московская область, Химки, микрорайон Подрезково, Центральная улица, 2/5
Здание "Химки, микрорайон Подрезково, Центральная улица, 2/5"
Тип: Арендный бизнес, Торговое помещение
Площадь: 204.90 м2
Мощность:70 кВт
Арендатор: Самокат, Парикмахерская
Месячный платеж: 558 000
72 000 000 за все
351 391 за м2
Позвонить Подробнее

Доходность 11.65 %

Ховрино (90 мин. 🚗)
Московская область, Клин, улица Ленина, 14
Здание "Клин, улица Ленина, 14"
Тип: Арендный бизнес, Торговое помещение
Площадь: 701.20 м2
Мощность:150 кВт
Арендатор: Медицинская клиника
Месячный платеж: 565 000
70 000 000 за все
99 829 за м2
Позвонить Подробнее

Доходность 14.81 %

Ховрино (15 мин. 🚗)
Москва, Лобненская улица, 14
ТЦ "Зодиак"
Тип: Арендный бизнес, Торговое помещение
Площадь: 99.24 м2
Мощность:50 кВт
Арендатор: Wildberries, ПВЗ Озон
Месячный платеж: 292 460
31 585 710 за все
318 276 за м2
Позвонить Подробнее