Арендный бизнес ТЦ "Зодиак"

Арендный бизнес ТЦ Арендный бизнес ТЦ Арендный бизнес ТЦ Арендный бизнес ТЦ Арендный бизнес ТЦ
Арендный бизнес ТЦ Арендный бизнес ТЦ Арендный бизнес ТЦ Арендный бизнес ТЦ Арендный бизнес ТЦ
Округ: САО
Тип: Арендный бизнес, Торговое помещение
Площадь: 679.00 м2 Метро: Ховрино (15 мин. 🚗)
Москва, Лобненская улица, 14
Позвоните по телефону +7 495 230-28-26, либо оставьте заявку на просмотр прямо сейчас и узнайте условия специального предложения по объекту.
загрузка карты...
Федотов Владислав Александрович

Объект ведет консультант:

Федотов Владислав Александрович

Общие
ID 62083
Тип сделки Продажа
Площадь 679.00
Площадь всего 3364.40
Тип объекта Торговый центр
Этаж 1
Всего этажей в здании 1
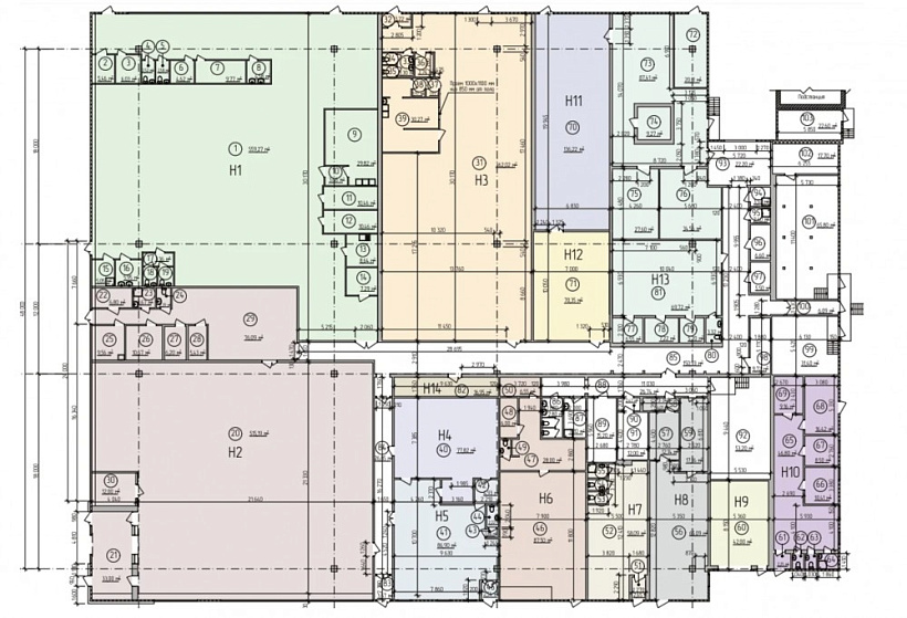
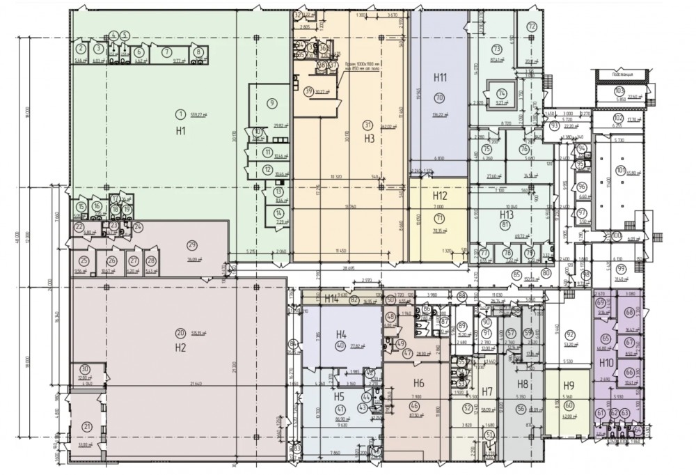
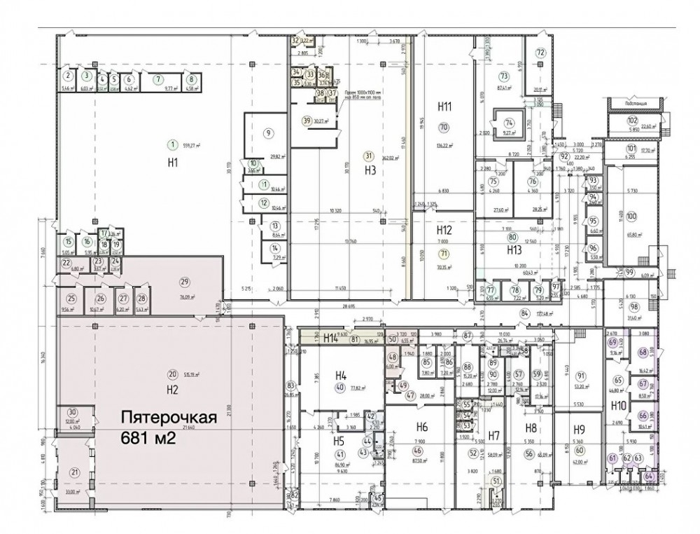
Метраж по этажам
Информация об объекте
Состояние блока отделка арендатора
Планировка Открытая
Нюансы Отдельный вход
Торговая недвижимость
Линия домов 1 линия
Возможности Зона разгрузки,Торговый центр,Витрины,Место для рекламы,Проходное место,Проездное место
Электр. мощность (кВт) 220
Коммерческие условия
За все 182 515 200 ₽
За м 2 268 800 ₽
Тип собственника Юридическое лицо
Арендный бизнес
Окупаемость 6 Лет 11 мес.
По первому месяцу 8 Лет
Доходность 14.46 %
По первому месяцу 12.50 %
Ставка аренды 1 901 200 ₽ в мес
Арендная ставка за кв\м в год 33 600 ₽
Эксплуатация оплачиваются отдельно
Арендатор Пятёрочка
Срок договора 10 Лет
Индексация 5 %

Описание объекта
Продается готовый арендный бизнес с федеральным сетевым арендаторам "Пятерочка" на долгосрочном договоре аренды.

Сложившийся жилой массив, активный и постоянный покупательский спрос
Арендаторы: Пятерочка, ВкусВилл.Доставка, Яндекс.Лавка, пиццерия Папа Джонс, аптека Горздрав, алкомаркет Винлаб, ПВЗ OZON/Wildberries и другие

Технические характеристики
Арендуемая площадь - 679 м2
На плане помещение № Н2
1-й этаж
Отдельный вход с улицы

Высота потолков – 6 м
Все инженерные системы.
Электрическая мощность - 200 Вт на м2
Парковка на 22 машины

Юридические условия
Прямая продажа помещения
Долгосрочный договор аренды на 10 лет с регистрацией

Финансовые условия
Договор от 24.02.25 на 120 месяцев
Арендная плата в месяц = 1 901 200 руб.
% от Товарооборота = 4%
Индексация аренды: начиная со 2-го года с момента подписания акта приема, не чаще 1 раза в год по соглашению сторон можно увеличить АП минимум на величину индекса потребительских цен не более чем на 5%.
Коммунальные платежи оплачиваются дополнительно.

Наша оценка
Локация
Цена
Техническое оснащение
Состояние
Метраж
Общая оценка 5

Нужна консультация по подбору арендного бизнеса?

Наши специалисты подберут для вас самые выгодные варианты для долгосрочного инвестирования,
помогут в сопровождении и сделки, проверят все юридические вопросы касаемо приобретения недвижимости.

* Нажимая на кнопку «Отправить», Вы даете согласие на обработку персональных данных в соответствии с Политикой конфиденциальности

Похожие объекты

Доходность 11.01 %

Сокол Сокольники Соколиная Гора (1 мин. 🚶)
Москва, Ленинградский проспект, 78к1
Жилое здание «Ленинградский 78 к1»
Тип: Арендный бизнес, Торговое помещение
Площадь: 699.30 м2
Арендатор: Магнолия
Месячный платеж: 1 100 000
119 000 000 за все
170 170 за м2
Позвонить Подробнее

Доходность 11.88 %

Соколиная Гора (17 мин. 🚶)
Москва, улица Бориса Жигулёнкова, 7
ЖК "Бориса Жигуленкова"
Тип: Арендный бизнес, Торговое помещение
Площадь: 665.40 м2
Мощность:110 кВт
Арендатор: Отделение реабилитации «Молодильное Яблоко»
Месячный платеж: 1 000 000
130 000 000 за все
195 371 за м2
Позвонить Подробнее

Доходность 9.92 %

(5 мин. 🚶)
Москва, Ленинский проспект, 108А
ТЦ "Ленинский пр-т 108А"
Тип: Арендный бизнес, Торговое помещение
Площадь: 690.00 м2
Мощность:50 кВт
Арендатор: Дикси
Месячный платеж: 2 205 000
265 300 000 за все
384 493 за м2
Позвонить Подробнее

Доходность 14.81 %

Юго-Западная (11 мин. 🚗)
Москва, Ленинский проспект, 158
БЦ «Гостиница Салют»
Тип: Арендный бизнес, Торговое помещение
Площадь: 639.20 м2
Мощность:130 кВт
Арендатор: Пятёрочка
Месячный платеж: 3 120 000
252 000 000 за все
394 243 за м2
Позвонить Подробнее

Доходность 10.43 %

Медведково (55 мин. 🚗)
Московская область, Королёв, проспект Королёва, 22
Жилое здание "Королёв, проспект Королёва, 22"
Тип: Арендный бизнес, Торговое помещение
Площадь: 624.60 м2
Мощность:75 кВт
Арендатор: Дикси
Месячный платеж: 945 000
135 000 000 за все
216 138 за м2
Позвонить Подробнее
Арбатская (Филевская) Арбатская (Арбатско-Покровская) (4 мин. 🚶)
Москва, Улица Новый Арбат, 5
Особняк «Новый Арбат 5»
Тип: Арендный бизнес, Торговое помещение
Площадь: 718.30 м2
Мощность:260 кВт
Арендатор: Московские пышки
Месячный платеж: 450 000
3 500 000 в месяц
58 471 в год за м2
Позвонить Подробнее

Доходность 11.43 %


Московская область, муниципальный округ Чехов, село Новый Быт, Новая улица, 30/1
ОСЗ "муниципальный округ Чехов, село Новый Быт, Новая улица, 30/1"
Тип: Арендный бизнес, Торговое помещение
Площадь: 730.00 м2
Мощность:250 кВт
Арендатор: Чижик, Вайлдберриз, ПВЗ Озон, Рыбная лавка
Месячный платеж: 700 000
73 000 000 за все
100 000 за м2
Позвонить Подробнее

Доходность 8.89 %

Савёловская (5 мин. 🚶)
Москва, Бумажный проезд, 19с4
БЦ STONE TOWERS
Тип: Арендный бизнес, Торговое помещение
Площадь: 623.70 м2
Арендатор: Центральный офис продаж девелопера
Месячный платеж: 4 158 000
686 070 000 за все
1 100 000 за м2
Позвонить Подробнее

Доходность 14.63 %

Тёплый стан (4 мин. 🚶)
Москва, Новоясеневский проспект, 1Вс1
МФК "Новоясеневский проспект, 1Вс1"
Тип: Арендный бизнес, Торговое помещение
Площадь: 740.00 м2
Мощность:30 кВт
Арендатор: Автозапчасти
Месячный платеж: 870 000
87 400 000 за все
118 108 за м2
Позвонить Подробнее

Доходность 10.00 %

Улица 1905 года (7 мин. 🚶)
Москва, улица Красная Пресня, 23кБс1
Жилое здание "улица Красная Пресня, 23кБс1"
Тип: Арендный бизнес, Торговое помещение
Площадь: 634.60 м2
Арендатор: Пятёрочка
Месячный платеж: 3 500 000
420 000 000 за все
661 834 за м2
Позвонить Подробнее

Доходность 11.65 %

Ховрино (90 мин. 🚗)
Московская область, Клин, улица Ленина, 14
Здание "Клин, улица Ленина, 14"
Тип: Арендный бизнес, Торговое помещение
Площадь: 701.20 м2
Мощность:150 кВт
Арендатор: Медицинская клиника
Месячный платеж: 565 000
70 000 000 за все
99 829 за м2
Позвонить Подробнее

Доходность 14.46 %

Ховрино (15 мин. 🚗)
Москва, Лобненская улица, 14
ТЦ "Зодиак"
Тип: Арендный бизнес, Торговое помещение
Площадь: 685.00 м2
Мощность:70 кВт
Арендатор: ВкусВилл - Даркстор
Месячный платеж: 1 710 323
164 190 960 за все
239 695 за м2
Позвонить Подробнее

Доходность 12.00 %

Бунинская аллея (26 мин. 🚗)
Москва, Новомосковский административный округ, район Щербинка, квартал № 103, жилой комплекс Подольские Кварталы, к4
ЖК "Подольские Кварталы" к4
Тип: Арендный бизнес, Торговое помещение
Площадь: 407.00 м2
Мощность:73 кВт
Арендатор: Пятёрочка
Месячный платеж: 1 424 000
171 000 000 за все
420 147 за м2
Позвонить Подробнее

Доходность 11.11 %

Авиамоторная (7 мин. 🚶)
Москва, Авиамоторная улица, 28/6
Жилое здание "Авиамоторная улица д. 28/6"
Тип: Арендный бизнес, Торговое помещение
Площадь: 590.70 м2
Мощность:45 кВт
Арендатор: Магнолия
Месячный платеж: 1 600 000
172 800 000 за все
292 534 за м2
Позвонить Подробнее

Доходность 10.81 %

Аннино (10 мин. 🚶)
Москва, Варшавское шоссе, 145к7
Встроено-пристроенное «Варшавское 145 к7»
Тип: Арендный бизнес, Торговое помещение
Площадь: 1190.10 м2
Мощность:150 кВт
Арендатор: склад инструментов, натяжные потолки, Автозапчасти
Месячный платеж: 1 494 980
164 900 000 за все
138 560 за м2
Позвонить Подробнее

Доходность 12.00 %

Перово (1 мин. 🚶)
Москва, Зелёный проспект, 19
Административное здание Зеленый проспект, 19
Тип: Арендный бизнес, Торговое помещение
Площадь: 315.00 м2
Мощность:125 кВт
Арендатор: Rostic`s
Месячный платеж: 1 500 000
180 000 000 за все
571 429 за м2
Позвонить Подробнее

Доходность 12.63 %

Тульская (4 мин. 🚶)
Москва, Большая Тульская улица, 2
Жилое здание «Большая Тульская 2»
Тип: Арендный бизнес, Торговое помещение
Площадь: 512.00 м2
Мощность:35 кВт
Арендатор: Nofer
Месячный платеж: 1 650 000
199 000 000 за все
388 672 за м2
Позвонить Подробнее

Доходность 10.00 %

Китай-город (10 мин. 🚶)
Москва, Хохловский переулок, 13с1
БЦ "Нега"
Тип: Арендный бизнес, Офисы
Площадь: 282.60 м2
Отделка:выполнена высококачественная отделка
Арендатор: -
Месячный платеж: 1 530 750
183 690 000 за все
650 000 за м2
Позвонить Подробнее

Доходность 8.11 %

Тульская (2 мин. 🚶)
Москва, Гамсоновский переулок, 2с11
Бизнес-центр "Рябовская мануфактура" Ryabov LOFT
Тип: Арендный бизнес, Торговое помещение
Площадь: 415.40 м2
Арендатор: Столовая
Месячный платеж: 1 327 507
195 238 000 за все
470 000 за м2
Позвонить Подробнее

Доходность 11.11 %

Мякинино (46 мин. 🚗)
Московская область, городской округ Красногорск, посёлок Ильинское-Усово, ЖК Ильинские Луга, к2.7
ЖК "Ильинские Луга к.2.7
Тип: Арендный бизнес, Торговое помещение
Площадь: 491.00 м2
Арендатор: Магнит
Месячный платеж: 1 571 200
198 000 000 за все
403 259 за м2
Позвонить Подробнее

Доходность 10.00 %

ВДНХ (11 мин. 🚗)
Москва, Улица Бажова, 8
Жилое здание «Бажова 8»
Тип: Арендный бизнес, Торговое помещение
Площадь: 581.00 м2
Мощность:30 кВт
Арендатор: Аптека Самсон Фарма
Месячный платеж: 1 334 000
200 000 000 за все
344 234 за м2
Позвонить Подробнее

Доходность 13.33 %

Митино (100 мин. 🚗)
Московская область, муниципальный округ Истра, деревня Борзые, Аносинская улица, 42
Торговый Центр Борзые
Тип: Арендный бизнес, Торговое помещение
Площадь: 1035.00 м2
Мощность:150 кВт
Арендатор: Множество разных
Месячный платеж: 2 100 000
189 000 000 за все
182 609 за м2
Позвонить Подробнее

Доходность 7.69 %

Тверская (8 мин. 🚶)
Москва, Богословский переулок, 16/6с1
Жилое здание "Богословский пер. 16/6с1"
Тип: Арендный бизнес, Торговое помещение
Площадь: 76.30 м2
Арендатор: магазин обуви Basarab
Месячный платеж: 1 150 000
179 400 000 за все
2 351 245 за м2
Позвонить Подробнее

Доходность 7.41 %

Пушкинская (3 мин. 🚶)
Москва, Большая Бронная улица, 25с3
Административное здание "Б. Бронная 25с3"
Тип: Арендный бизнес, Торговое помещение
Площадь: 46.50 м2
Арендатор: бутик одежды «THE KAS»
Месячный платеж: 1 175 000
190 350 000 за все
4 093 548 за м2
Позвонить Подробнее

Спец. предложение

Доходность 10.26 %

Ховрино (21 мин. 🚗)
Москва, Ленинградское шоссе, 229Ак1
ЖК "Молжаниново"
Тип: Арендный бизнес, Торговое помещение
Площадь: 47.00 м2
Арендатор: Аптека РИГЛА
Месячный платеж: 200 000
29 000 000 за все
617 021 за м2
Позвонить Подробнее

Доходность 6.25 %

Ховрино (25 мин. 🚗)
Московская область, Химки, Береговая улица, 2
Жилой дом "Береговая 2"
Тип: Арендный бизнес, Торговое помещение
Площадь: 122.50 м2
Мощность:25 кВт
Арендатор: Офис
Месячный платеж: 120 000
23 000 000 за все
187 755 за м2
Позвонить Подробнее

Доходность 15.79 %

Ховрино (30 мин. 🚗)
Московская область, городской округ Солнечногорск, деревня Литвиново, 1/3
Складской комплекс "Литвиново 1/3"
Тип: Арендный бизнес, Индустриальная недвижимость
Площадь: 1044.00 м2
Арендатор: Х5 Логистик
Месячный платеж: 2 500 000
245 000 000 за все
234 674 за м2
Позвонить Подробнее

Доходность 11.54 %

Ховрино (26 мин. 🚗)
Московская область, Химки, микрорайон Клязьма-Старбеево, квартал Международный, жилой комплекс 1-й Химкинский, к1.4
ЖК "1-й Химкинский"
Тип: Арендный бизнес, Торговое помещение
Площадь: 50.30 м2
Мощность:10 кВт
Арендатор: ЗдесьАптека
Месячный платеж: 230 000
29 000 000 за все
576 541 за м2
Позвонить Подробнее

Доходность 10.81 %

Ховрино (32 мин. 🚗)
Московская область, городской округ Химки, деревня Поярково, Клушинская улица, с1
ОСЗ "городской округ Химки, деревня Поярково, Клушинская улица, с1"
Тип: Арендный бизнес, Торговое помещение
Площадь: 837.00 м2
Арендатор: Пятёрочка, Чижик
Месячный платеж: 950 000
130 000 000 за все
155 317 за м2
Позвонить Подробнее

Доходность 9.38 %

Ховрино (13 мин. 🚗)
Московская область, Долгопрудный, Лихачёвское шоссе, 11А
ТЦ «Лихачевский»
Тип: Арендный бизнес, Торговое помещение
Площадь: 3000.00 м2
Арендатор: Множество разных
Месячный платеж: 5 500 000
700 000 000 за все
233 333 за м2
Позвонить Подробнее

Доходность 10.71 %

Ховрино (50 мин. 🚗)
Московская область, Солнечногорск, Почтовая улица, 12
Жилой дом "Почтовая, 12"
Тип: Арендный бизнес, Торговое помещение
Площадь: 474.10 м2
Арендатор: Пятёрочка
Месячный платеж: 500 000
55 990 000 за все
118 097 за м2
Позвонить Подробнее

Доходность 11.88 %

Ховрино (3 мин. 🚶)
Москва, улица Дыбенко, 7/1
ЖК «Discovery park»
Тип: Арендный бизнес, Торговое помещение
Площадь: 19000.00 м2
Арендатор: Множество разных
Месячный платеж: 34 953 873
3 500 000 000 за все
184 211 за м2
Позвонить Подробнее

Доходность 11.01 %

Ховрино (7 мин. 🚶)
Москва, улица Дыбенко, 28с2
ОСЗ "Дыбенко улица дом 28 стр. 2"
Тип: Арендный бизнес, Торговое помещение
Площадь: 833.70 м2
Мощность:120 кВт
Арендатор: Магнит, Планета Здоровья, Магнит Косметик
Месячный платеж: 1 950 000
260 000 000 за все
311 863 за м2
Позвонить Подробнее

Доходность 12.00 %

Ховрино (20 мин. 🚗)
Московская область, Химки, микрорайон Подрезково, Центральная улица, 2/5
Здание "Химки, микрорайон Подрезково, Центральная улица, 2/5"
Тип: Арендный бизнес, Торговое помещение
Площадь: 204.90 м2
Мощность:70 кВт
Арендатор: Самокат, Парикмахерская
Месячный платеж: 558 000
72 000 000 за все
351 391 за м2
Позвонить Подробнее

Доходность 12.77 %

Ховрино (30 мин. 🚗)
Москва, Зеленоград, 22-й микрорайон, 6.4
ЖК "Зеленый парк"
Тип: Арендный бизнес, Торговое помещение
Площадь: 405.60 м2
Мощность:81 кВт
Арендатор: Пятёрочка
Месячный платеж: 1 200 000
135 000 000 за все
332 840 за м2
Позвонить Подробнее

Доходность 11.65 %

Ховрино (90 мин. 🚗)
Московская область, Клин, улица Ленина, 14
Здание "Клин, улица Ленина, 14"
Тип: Арендный бизнес, Торговое помещение
Площадь: 701.20 м2
Мощность:150 кВт
Арендатор: Медицинская клиника
Месячный платеж: 565 000
70 000 000 за все
99 829 за м2
Позвонить Подробнее